1. トップページ
  2. 川崎市宮前区梶ケ谷 新築一戸建 4497万5000円

川崎市宮前区梶ケ谷 新築一戸建 4497万5000円

価格
4,498万円
物件種別
新築一戸建て
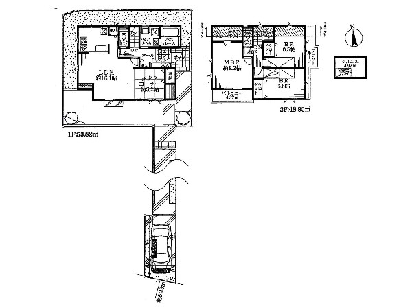
間取り
3SLDK
所在地
川崎市宮前区 梶ケ谷
交通
  • 田園都市線「宮崎台」駅 徒歩 20 分
  • 南武線「武蔵新城」駅 バス停「金山」まで 徒歩 4 分 バス利用 18分
土地面積
82.27㎡
建物面積
99.99㎡
  • 前回情報更新日 2025.12.04
  • 次回情報更新予定日 2025.12.18
資料請求 現地見学 電話でお問い合わせ
0120-150-580
外観:東急田園都市線「宮崎台」駅徒歩20分の閑静な住宅街に位置し、スタイリッシュな外観に収納豊富な間取りです。
外観:東急田園都市線「宮崎台」駅徒歩20分の閑静な住宅街に位置し、スタイリッシュな外観に収納豊富な間取りです。
間取り
間取り
外観:前面道路の幅員は5.1mあり、車のすれ違いも出来るので車の運転が苦手な方でも安心です。
外観:前面道路の幅員は5.1mあり、車のすれ違いも出来るので車の運転が苦手な方でも安心です。
食洗機 利用者が増えているのはメリットが多いから。時間の節約、手が荒れない、水道代の節約、高温度で洗うので油汚れもしっかり落とせる。まさに理想家電。
食洗機 利用者が増えているのはメリットが多いから。時間の節約、手が荒れない、水道代の節約、高温度で洗うので油汚れもしっかり落とせる。まさに理想家電。
三口ガスコンロ 同時並行で調理しやすい3口コンロです。お料理を同時にすすめることができ、料理時間の短縮にもなります。
三口ガスコンロ 同時並行で調理しやすい3口コンロです。お料理を同時にすすめることができ、料理時間の短縮にもなります。
TVモニター付インターホン モニター付インターホンが標準仕様です。不安になりがちな防犯面。目で確認できるからあんしんです。
TVモニター付インターホン モニター付インターホンが標準仕様です。不安になりがちな防犯面。目で確認できるからあんしんです。
浴室乾燥機 お風呂場そのものを乾燥機にしてしまう便利な機能。梅雨時期や花粉の時期に助かる。冬の時期には暖房機能がヒートショックを防ぐ。
浴室乾燥機 お風呂場そのものを乾燥機にしてしまう便利な機能。梅雨時期や花粉の時期に助かる。冬の時期には暖房機能がヒートショックを防ぐ。
オートバス ワンタッチでお湯張りや保温が可能なフルオートバス。保温機能でいつでも快適に入浴が可能です。
オートバス ワンタッチでお湯張りや保温が可能なフルオートバス。保温機能でいつでも快適に入浴が可能です。
ウォシュレット ウォシュレット、暖房便座機能付のトイレです。従来型に比べ節水効果があり、お手入れもしやすい。
ウォシュレット ウォシュレット、暖房便座機能付のトイレです。従来型に比べ節水効果があり、お手入れもしやすい。
周辺環境:フジスーパー上野川店(周囲にはいくつかのスーパーが点在しており、目的や曜日などで使い分けるもの良いですね。)
周辺環境:フジスーパー上野川店(周囲にはいくつかのスーパーが点在しており、目的や曜日などで使い分けるもの良いですね。)
周辺環境:相鉄ローゼン梶ヶ谷店(幹線道路沿いにあり、自転車や車で立ち寄りやすい駐車場完備のスーパーです。休日の買い出しや、お出かけ前やお帰りの立ち寄りにも便利です。)
周辺環境:相鉄ローゼン梶ヶ谷店(幹線道路沿いにあり、自転車や車で立ち寄りやすい駐車場完備のスーパーです。休日の買い出しや、お出かけ前やお帰りの立ち寄りにも便利です。)
周辺環境:梶ヶ谷金山公園(お砂場、ブランコ、滑り台のある公園、周囲からの見通しもよく安全です。)
周辺環境:梶ヶ谷金山公園(お砂場、ブランコ、滑り台のある公園、周囲からの見通しもよく安全です。)
周辺環境:ロイヤルホームセンター梶ヶ谷店(プロの大工・職人が満足できる工具・金物・資材をはじめ、リフォーム・インテリア・ガーデニング・ペット向けの商品など幅広く提供。)
周辺環境:ロイヤルホームセンター梶ヶ谷店(プロの大工・職人が満足できる工具・金物・資材をはじめ、リフォーム・インテリア・ガーデニング・ペット向けの商品など幅広く提供。)
周辺環境:ザ・ダイソー パシオス野川店(いまや売っていないものがないのではないかと錯覚してしまうほど品揃えが豊富なダイソー。)
周辺環境:ザ・ダイソー パシオス野川店(いまや売っていないものがないのではないかと錯覚してしまうほど品揃えが豊富なダイソー。)
周辺環境:オートバック梶ヶ谷(タイヤはもちろん、車検やピットサービス、カー用品などお車のことならなんでもお任せ。)
周辺環境:オートバック梶ヶ谷(タイヤはもちろん、車検やピットサービス、カー用品などお車のことならなんでもお任せ。)
周辺環境:梶ヶ谷保育園(心も身体も健康な子供、意欲的に遊べる子供、情緒豊かな子供を保育目標としてます!)
周辺環境:梶ヶ谷保育園(心も身体も健康な子供、意欲的に遊べる子供、情緒豊かな子供を保育目標としてます!)
周辺環境:宮前幼稚園(あそびは生きる力をつくる。瞳をキラキラ輝かせてあそべる子どもたちを育てます。)
周辺環境:宮前幼稚園(あそびは生きる力をつくる。瞳をキラキラ輝かせてあそべる子どもたちを育てます。)
周辺環境:野川小学校(明治6年創立で145年の歴史がある学校。総生徒数約780人で各学年120~130人。)
周辺環境:野川小学校(明治6年創立で145年の歴史がある学校。総生徒数約780人で各学年120~130人。)

この物件のココがオススメ!

宮崎台駅徒歩20分 スタイリッシュな内外観は、まるで注文住宅のようなこだわりの住宅 豊富な収納スペース完備

お気軽にどうぞ!

資料請求 現地見学 電話でお問い合わせ
0120-150-580

地図

申し訳ありません
こちらは会員限定機能です

会員登録で利用できる6つの便利機能

詳しく見る

お気軽にどうぞ!

資料請求 現地見学 電話でお問い合わせ
0120-150-580

頭金0万円・金利0.495%の場合

ボーナス時(年2回)お支払額

0

この物件の月々のお支払額

125,973

年収に対する返済比率

50

  • ※会員登録し、詳細情報を記入されますと、全ての物件で自動的に金額が表示され、大変便利です。
  • ※まだ会員登録をされていない方は、下記チェック欄をご記入ください。
  • ※上記計算は物件価格4,498万円+諸経費 8%込みの金額による結果となります。
  • ※返済金額はあくまでも目安です。

お客様の条件からシミュレーションするには?

会員登録
マイページから登録

金利

直接入力する

ボーナス払い(年2回)

返済年数

頭金

直接入力する

 万円(半角数字)

年収

 万円(半角数字)

約700m

スーパー

周辺環境:フジスーパー上野川店(周囲にはいくつかのスーパーが点在しており、目的や曜日などで使い分けるもの良いですね。)

スーパー

約700m

約850m

スーパー

周辺環境:相鉄ローゼン梶ヶ谷店(幹線道路沿いにあり、自転車や車で立ち寄りやすい駐車場完備のスーパーです。休日の買い出しや、お出かけ前やお帰りの立ち寄りにも便利です。)

スーパー

約850m

約200m

公園

周辺環境:梶ヶ谷金山公園(お砂場、ブランコ、滑り台のある公園、周囲からの見通しもよく安全です。)

公園

約200m

約850m

ホームセンター

周辺環境:ロイヤルホームセンター梶ヶ谷店(プロの大工・職人が満足できる工具・金物・資材をはじめ、リフォーム・インテリア・ガーデニング・ペット向けの商品など幅広く提供。)

ホームセンター

約850m

約1,000m

その他環境写真

周辺環境:ザ・ダイソー パシオス野川店(いまや売っていないものがないのではないかと錯覚してしまうほど品揃えが豊富なダイソー。)

その他環境写真

約1,000m

約400m

その他環境写真

周辺環境:オートバック梶ヶ谷(タイヤはもちろん、車検やピットサービス、カー用品などお車のことならなんでもお任せ。)

その他環境写真

約400m

約550m

幼稚園・保育園

周辺環境:梶ヶ谷保育園(心も身体も健康な子供、意欲的に遊べる子供、情緒豊かな子供を保育目標としてます!)

幼稚園・保育園

約550m

約1,200m

幼稚園・保育園

周辺環境:宮前幼稚園(あそびは生きる力をつくる。瞳をキラキラ輝かせてあそべる子どもたちを育てます。)

幼稚園・保育園

約1,200m

約1,200m

小学校

周辺環境:野川小学校(明治6年創立で145年の歴史がある学校。総生徒数約780人で各学年120~130人。)

小学校

約1,200m

価格 4,498万円
物件種別 新築一戸建て
間取り 3SLDK
所在地 川崎市宮前区 梶ケ谷
交通
  • 田園都市線「宮崎台」駅 徒歩 20 分
  • 南武線「武蔵新城」駅 バス停「金山」まで 徒歩 4 分 バス利用 18分
土地面積 82.27㎡
建物面積 99.99㎡
学区 野川小学校、野川中学校
用途地域 第一種住居
建ぺい率 60%
容積率 200%
地目 宅地
駐車場 有り カースペース
接道 北5.1m
権利 所有権
私道面積 無し
セットバック 無し
建物構造 木造
建物階数 3階
築年月 2025年12月
入居日 即時
都市計画 市街化区域
取引態様 仲介
物件番号 A1940
設備 公営水道、公共下水、省エネルギー対策、駐車場1台、都市近郊、地盤調査済、市街地が近い、周辺交通量少なめ、スーパーが近い(10分以内)、2沿線以上利用可、公園5分以内、システムキッチン、ガス3口、食器洗い機付き、浄水器、パントリー(食器・食品の収納庫)、ユニットバス、追い焚き、浴室乾燥機、ウォシュレット、オートバス付き、トイレ2ヶ所、浴室1坪以上、浴室に窓、暖房便座、浴室暖房、バルコニー、バルコニー2面、南面バルコニー、3階建以上、LDK15畳以上、省エネ給湯器、採光3面、全室2面採光、フローリング、全室フローリング、リビング階段、クローゼット、収納、下駄箱、全居室収納、シャンプドレッサー付き、年内入居可、モニタ付きインターフォン、複層ガラス、火災警報器(報知機)、通風良好、陽当り良好、24時間換気システム、建物10年保証
建築確認番号 -
特記事項 間取りSは納戸/景観法:有/宅地造成工事規制区域:有/高度地区:有/準防火地域:有/日影制限:有/敷地内段差:有/高さ限度:有。 /
備考 宮崎台駅徒歩20分 スタイリッシュな内外観は、まるで注文住宅のようなこだわりの住宅 豊富な収納スペース完備

こだわりポイント

  • 崖下・崖上
  • 道路狭い(4メートル未満)
  • 断熱に配慮された建物
  • 省エネに配慮された建物
  • 食器洗い洗浄乾燥機
  • 浴室換気乾燥暖房機
  • 外食を楽しめる生活
  • ウォークインクローゼット
  • リビングイン階段
  • LDKは2階に
  • LDK15帖以上
  • 広々バルコニー
  • 対面キッチン
  • 浴室1坪以上
  • パントリー
  • スーパー10分以内
  • 小児科医院10分以内
  • 保育園10分以内
  • 公園10分以内
  • 都市ガス
  • 道路広々(5m以上)
  • 整形地

お気軽にどうぞ!

資料請求 現地見学 電話でお問い合わせ
0120-150-580

このエリアでお探しの方へ

川崎市宮前区平5丁目 新築一戸建 4280万円 1号棟

田園都市線「宮前平」駅 バス停「白幡八幡前」まで 徒歩 2 分 バス利用 14分

南武線「武蔵溝ノ口」駅 バス停「白幡八幡前」まで 徒歩 2 分 バス利用 16分

川崎市宮前区 平5丁目

4,280万円

4LDK

川崎市宮前区平5丁目 新築一戸建 4380万円 3号棟

田園都市線「宮前平」駅 バス停「白幡八幡前」まで 徒歩 2 分 バス利用 14分

南武線「武蔵溝ノ口」駅 バス停「白幡八幡前」まで 徒歩 2 分 バス利用 16分

川崎市宮前区 平5丁目

4,380万円

3SLDK

川崎市宮前区平5丁目 新築一戸建 4380万円 6号棟

田園都市線「宮前平」駅 バス停「白幡八幡前」まで 徒歩 2 分 バス利用 14分

南武線「武蔵溝ノ口」駅 バス停「白幡八幡前」まで 徒歩 2 分 バス利用 16分

川崎市宮前区 平5丁目

4,380万円

3SLDK

川崎市宮前区西野川3丁目 新築一戸建 4380万円 5号棟

田園都市線「鷺沼」駅 バス停「野川台」まで 徒歩 7 分 バス利用 16分

東急東横線「武蔵小杉」駅 バス停「野川台」まで 徒歩 8 分 バス利用 29分

川崎市宮前区 西野川3丁目

4,380万円

3LDK

川崎市宮前区西野川2丁目 新築一戸建 4380万円 B号棟

南武線「武蔵新城」駅 バス停「野川小学校」まで 徒歩 4 分 バス利用 14分

田園都市線「宮前平」駅 バス停「野川小学校」まで 徒歩 4 分 バス利用 11分

川崎市宮前区 西野川2丁目

4,380万円

3SLDK

川崎市宮前区西野川2丁目 新築一戸建 4380万円 F号棟

南武線「武蔵新城」駅 バス停「野川小学校」まで 徒歩 4 分 バス利用 14分

田園都市線「宮前平」駅 バス停「野川小学校」まで 徒歩 4 分 バス利用 11分

川崎市宮前区 西野川2丁目

4,380万円

3SLDK

川崎市宮前区犬蔵1丁目 新築一戸建 4380万円 2号棟

田園都市線「鷺沼」駅 徒歩 20 分

田園都市線「たまプラーザ」駅 徒歩 22 分

川崎市宮前区 犬蔵1丁目

4,380万円

3LDK

川崎市宮前区菅生2丁目 一戸建 4480万円 A棟

田園都市線「鷺沼」駅 バス停「蔵敷」まで 徒歩 4 分 バス利用 12分

南武線「武蔵溝ノ口」駅 バス停「蔵敷」まで 徒歩 4 分 バス利用 19分

川崎市宮前区 菅生2丁目

4,480万円

2LDK+2S

川崎市宮前区平3丁目 新築一戸建 4480万円

田園都市線「溝の口」駅 バス停「平」まで 徒歩 8 分 バス利用 13分

小田急線「向ヶ丘遊園」駅 徒歩 24 分

川崎市宮前区 平3丁目

4,480万円

3LDK

川崎市宮前区東有馬2丁目 新築一戸建 4480万円

田園都市線「鷺沼」駅 バス停「野川台西口」まで 徒歩 2 分 バス利用 8分

南武線「武蔵溝ノ口」駅 バス停「東有馬第一団地前」まで 徒歩 8 分 バス利用 28分

川崎市宮前区 東有馬2丁目

4,480万円

1LDK+2S

川崎市宮前区犬蔵1丁目 新築一戸建 4480万円 1号棟

田園都市線「鷺沼」駅 徒歩 20 分

田園都市線「たまプラーザ」駅 徒歩 22 分

川崎市宮前区 犬蔵1丁目

4,480万円

4LDK

川崎市宮前区南野川2丁目 新築一戸建 4480万円 4号棟

田園都市線「鷺沼」駅 バス停「和田八幡宮下」まで 徒歩 1 分 バス利用 15分

グリーンライン「東山田」駅 徒歩 22 分

川崎市宮前区 南野川2丁目

4,480万円

4LDK

お気軽にどうぞ!

資料請求 現地見学 電話でお問い合わせ
0120-150-580
来店予約