川崎市宮前区西野川3丁目 新築一戸建 4380万円 5号棟
この物件のココがオススメ!
落ち着きのある閑静な住宅地 全棟土地面積130平米以上 LDKはタタミコーナーと合わせて20帖以上
地図
頭金0万円・金利0.495%の場合
ボーナス時(年2回)お支払額
0円
この物件の月々のお支払額
122,679円
年収に対する返済比率
49%
- ※会員登録し、詳細情報を記入されますと、全ての物件で自動的に金額が表示され、大変便利です。
- ※まだ会員登録をされていない方は、下記チェック欄をご記入ください。
- ※上記計算は物件価格4,380万円+諸経費 8%込みの金額による結果となります。
- ※返済金額はあくまでも目安です。
その他環境写真
約850m
その他環境写真
約800m
飲食店
約900m
中学校
約450m
小学校
約600m
幼稚園・保育園
約850m
| 価格 | 4,380万円 |
|---|---|
| 物件種別 | 新築一戸建て |
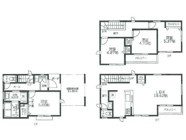
| 間取り | 3LDK |
| 所在地 | 川崎市宮前区 西野川3丁目 |
| 交通 |
|
| 土地面積 | 152.56㎡ |
| 建物面積 | 102.67㎡ |
| 学区 | 野川小学校、野川中学校 |
| 用途地域 | 第一種低層住居専用 |
| 建ぺい率 | 40% |
| 容積率 | 80% |
| 地目 | 宅地 |
| 駐車場 | 有り カースペース |
| 接道 | 南6.4m |
| 権利 | 所有権 |
| 私道面積 | 無し |
| セットバック | 無し |
| 建物構造 | 木造 |
| 建物階数 | 2階 |
| 築年月 | 2026年01月 |
| 入居日 | 2026年01月 |
| 都市計画 | 市街化区域 |
| 取引態様 | 仲介 |
| 物件番号 | A1542-5 |
| 設備 | 公営水道、公共下水、駐車場1台、緑豊かな住宅地、閑静な住宅地、都市近郊、地盤調査済、南側道路面す、前道6m以上、市街地が近い、隣家との間隔が大きい、周辺交通量少なめ、スーパーが近い(10分以内)、2沿線以上利用可、小学校徒歩10分以内、中学校徒歩10分以内、公園5分以内、システムキッチン、ガスコンロ、ガス3口、浄水器、パントリー(食器・食品の収納庫)、ユニットバス、追い焚き、浴室乾燥機、ウォシュレット、トイレ2ヶ所、浴室に窓、暖房便座、浴室暖房、バルコニー、テラス、南面バルコニー、2階建、全居室6畳以上、LDK20畳以上、グルニエ、南向き、全室2面採光、クローゼット、収納、床下収納、下駄箱、全居室収納、洗面室収納、シャンプドレッサー付き、庭、年度内入居可、モニタ付きインターフォン、複層ガラス、火災警報器(報知機)、通風良好、陽当り良好、24時間換気システム、建物10年保証 |
| 建築確認番号 | KS125-3820-50163 |
| 特記事項 | 不整形地:有/壁面後退:有/景観法:有/宅地造成工事規制区域:有/高度地区:有/日影制限:有/敷地面積最低限度:有/高さ限度:有/建築基準法22条区域、土地面積に路地状面積約32平米含む、ゴミ協定書、タタミコーナーと合わせてLDK20帖以上。 / |
| 備考 | 落ち着きのある閑静な住宅地 全棟土地面積130平米以上 LDKはタタミコーナーと合わせて20帖以上 |
こだわりポイント
- 敷地延長(旗竿地)
- 浴室換気乾燥暖房機
- 運転ラクラク生活
- 広い庭のある暮らし
- LDKは1階に
- 2階建て住宅限定
- ウォークインクローゼット
- LDK20帖以上
- 主寝室 8帖以上
- 対面キッチン
- ロフト・小屋裏収納
- パントリー
- 小学校10分以内
- スーパー10分以内
- コンビニ10分以内
- 公園10分以内
- 都市ガス
- 5棟以上の分譲地
- 道路広々(5m以上)
- 日当たり良好
- 南道路限定
- 低層住居専用地域