ようこそ!ゲストさん
お気に入り
保存した検索条件
閲覧履歴
会員登録
ログイン
0120-150-580
営業時間:午前9:00~午後9:00
沿線・駅
新百合ヶ丘
詳細条件
一戸建て
こだわり
-
該当件数
53件
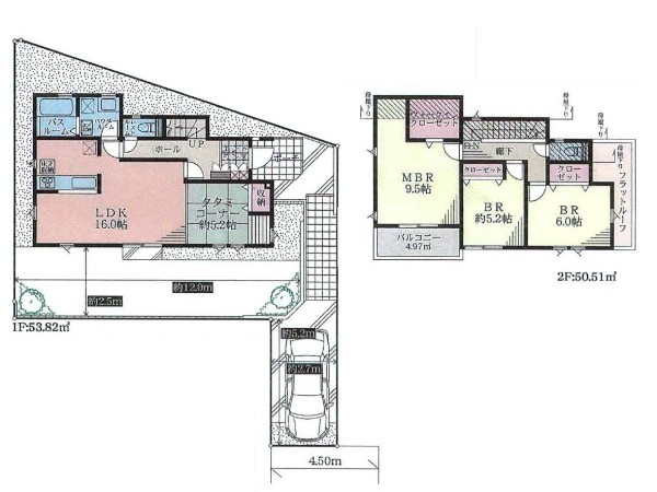
川崎市多摩区南生田2丁目 中古一戸建 3099万円
間取り
値下げしました
中古一戸建て
3,099万円
3SLDK
2026.01.23更新
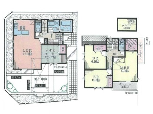
川崎市麻生区向原2丁目 中古一戸建 3199万円
3,199万円
3LDK
川崎市麻生区千代ケ丘6丁目 中古一戸建 3280万円
3,280万円
2026.01.29更新
川崎市麻生区上麻生4丁目 中古一戸建 3599万円
3,599万円
4LDK
川崎市宮前区水沢3丁目 新築一戸建 3980万円 3号棟
新築一戸建て
3,980万円
川崎市宮前区水沢3丁目 新築一戸建 4380万円 1号棟
4,380万円
2LDK+2S
申し訳ありません こちらは会員限定物件です
会員登録で利用できる6つの便利機能
川崎市宮前区水沢3丁目 新築一戸建 4480万円 2号棟
4,480万円
川崎市宮前区水沢3丁目 新築一戸建 4480万円 4号棟
川崎市多摩区西生田3丁目 新築一戸建 4490万円
建物完成しましたのでご見学頂けます!
4,490万円
川崎市麻生区王禅寺西8丁目 新築一戸建 4580万円 3号棟
4,580万円
稲城市坂浜 新築一戸建 4699万円 3号棟
4,699万円
川崎市麻生区王禅寺西8丁目 新築一戸建 4750万円 1号棟
4,750万円
川崎市麻生区東百合丘1丁目 新築一戸建 4780万円
4,780万円
川崎市麻生区千代ケ丘8丁目 中古一戸建 4780万円
2SLDK