1. トップページ
  2. 横浜市港北区新吉田東6丁目 新築一戸建 5480万円

横浜市港北区新吉田東6丁目 新築一戸建 5480万円

価格
5,480万円
物件種別
新築一戸建て
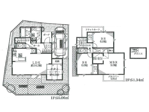
間取り
2SLDK
所在地
横浜市港北区 新吉田東6丁目
交通
  • 東急東横線「綱島」駅 徒歩 15 分
  • 東急新横浜線「新綱島」駅 徒歩 18 分
土地面積
84.52㎡
建物面積
90.36㎡
  • 前回情報更新日 2025.12.04
  • 次回情報更新予定日 2025.12.18
資料請求 現地見学 電話でお問い合わせ
0120-150-580
外観:緑豊かな住環境に佇むスタイリッシュな新築邸宅。開放感ある前面道路で車の出し入れもスムーズ。周辺には生活施設も揃い、子育て・共働き世帯にも嬉しい住環境です。
外観:緑豊かな住環境に佇むスタイリッシュな新築邸宅。開放感ある前面道路で車の出し入れもスムーズ。周辺には生活施設も揃い、子育て・共働き世帯にも嬉しい住環境です。
間取り
間取り
白を基調とした明るいリビングは、木目フロアがやさしく調和し心地よい空間を演出。対面キッチンで家族の会話も弾み、階段動線もスムーズ。家具配置もしやすいスクエアな形状が魅力です。
白を基調とした明るいリビングは、木目フロアがやさしく調和し心地よい空間を演出。対面キッチンで家族の会話も弾み、階段動線もスムーズ。家具配置もしやすいスクエアな形状が魅力です。
大容量のシューズボックスを備えた玄関は、家族分の靴や備品もすっきり収納可能。可動棚でブーツやスポーツ用品にも対応でき、いつでも“隠せる収納”で玄関まわりが美しく保てます。
大容量のシューズボックスを備えた玄関は、家族分の靴や備品もすっきり収納可能。可動棚でブーツやスポーツ用品にも対応でき、いつでも“隠せる収納”で玄関まわりが美しく保てます。
開放感のある対面キッチンは、リビング全体を見渡せる家事ラク設計。ダイニングとの距離も近く、配膳や片付けもスムーズ。収納力のあるスライド式キャビネットで調理スペースも広く確保されています。
開放感のある対面キッチンは、リビング全体を見渡せる家事ラク設計。ダイニングとの距離も近く、配膳や片付けもスムーズ。収納力のあるスライド式キャビネットで調理スペースも広く確保されています。
外観:奥行きのあるワイドバルコニーは、テーブルセットも置けるゆとりの広さ。洗濯物や布団干しはもちろん、外の空気を感じながらくつろぐ“もうひとつのリビング”としても活躍します。緑景を望む心地よさも魅力です。
外観:奥行きのあるワイドバルコニーは、テーブルセットも置けるゆとりの広さ。洗濯物や布団干しはもちろん、外の空気を感じながらくつろぐ“もうひとつのリビング”としても活躍します。緑景を望む心地よさも魅力です。
外観:陽当たりの良いバルコニーは、洗濯物がよく乾くだけでなく、ちょっとしたチェアを置いてくつろぎ空間としても活用可能。屋根付きで急な雨でも安心。暮らしの幅が広がるプラスαのアウトドア空間です。
外観:陽当たりの良いバルコニーは、洗濯物がよく乾くだけでなく、ちょっとしたチェアを置いてくつろぎ空間としても活用可能。屋根付きで急な雨でも安心。暮らしの幅が広がるプラスαのアウトドア空間です。
衣類はもちろん、季節家電やスーツケースも収まるゆとりのウォークインクローゼット。両サイドにハンガーパイプを備え、見やすく取り出しやすい収納動線を実現。家族の荷物もすっきり片付きます。
衣類はもちろん、季節家電やスーツケースも収まるゆとりのウォークインクローゼット。両サイドにハンガーパイプを備え、見やすく取り出しやすい収納動線を実現。家族の荷物もすっきり片付きます。
大きな開口部からたっぷり陽光が差し込む心地よい洋室。バルコニーへダイレクトに出られる開放的な設計で、朝の換気や布団干しもスムーズ。シンプルな空間は家具配置もしやすく、主寝室にもおすすめです。
大きな開口部からたっぷり陽光が差し込む心地よい洋室。バルコニーへダイレクトに出られる開放的な設計で、朝の換気や布団干しもスムーズ。シンプルな空間は家具配置もしやすく、主寝室にもおすすめです。
ゆとりある玄関ホールは、天井までの大型収納を備えた実用性の高い設計。アウターや備品もすっきり片付き、来客時もいつでもスマートな印象に。明るい木目フロアが温かみを添える迎賓空間です。
ゆとりある玄関ホールは、天井までの大型収納を備えた実用性の高い設計。アウターや備品もすっきり片付き、来客時もいつでもスマートな印象に。明るい木目フロアが温かみを添える迎賓空間です。
シンプルで家具配置のしやすい洋室は、クローゼット付きで収納力も確保。引き戸採用で生活動線もスムーズに。ワークスペースや子ども部屋など多用途に使える、使い勝手の良い一室です。
シンプルで家具配置のしやすい洋室は、クローゼット付きで収納力も確保。引き戸採用で生活動線もスムーズに。ワークスペースや子ども部屋など多用途に使える、使い勝手の良い一室です。
全居室には大型の収納クローゼットを完備。普段使いのお洋服や小物もまとめてスッキリ収納。居室空間を隅々まで使えるのが嬉しい。
全居室には大型の収納クローゼットを完備。普段使いのお洋服や小物もまとめてスッキリ収納。居室空間を隅々まで使えるのが嬉しい。
勾配天井を採用した居室。最大のメリットはなんと言っても開放感。通常の天井よりも上部の空間が立体的な広がりを見せるので、部屋を広く感じることができます。
勾配天井を採用した居室。最大のメリットはなんと言っても開放感。通常の天井よりも上部の空間が立体的な広がりを見せるので、部屋を広く感じることができます。
廊下に備えた可動棚付き収納は、日用品やリネン類、掃除道具などを整理しやすく“見せない収納”を実現。空間を無駄にしない設計で、暮らしのゆとりと家事効率を高めてくれます。
廊下に備えた可動棚付き収納は、日用品やリネン類、掃除道具などを整理しやすく“見せない収納”を実現。空間を無駄にしない設計で、暮らしのゆとりと家事効率を高めてくれます。
外観:高台の立地ならではの抜け感ある眺望が魅力。前面に高い建物がなく、開放的な空と街並みを望む気持ちの良い景観。陽当たり・風通しも良好で、心地よい暮らしが叶います。
外観:高台の立地ならではの抜け感ある眺望が魅力。前面に高い建物がなく、開放的な空と街並みを望む気持ちの良い景観。陽当たり・風通しも良好で、心地よい暮らしが叶います。
外観:インナーバルコニーは、家庭菜園やバーベキューなど、使い方、楽しみ方色々。急な雨でも洗濯物が濡れないというメリットも。
外観:インナーバルコニーは、家庭菜園やバーベキューなど、使い方、楽しみ方色々。急な雨でも洗濯物が濡れないというメリットも。
ダイニングテーブルやソファをゆったり配置できる広さのLDK。キッチンから全体を見渡せる安心設計で、家族とのコミュニケーションも自然に生まれます。シンプルな内装がインテリアの自由度を高めます。
ダイニングテーブルやソファをゆったり配置できる広さのLDK。キッチンから全体を見渡せる安心設計で、家族とのコミュニケーションも自然に生まれます。シンプルな内装がインテリアの自由度を高めます。
階段横に設けられた便利な収納スペースは、日用品のストックや掃除機などをしまうのに最適。動線上にあるため“使う→戻す”がスムーズで、散らかりにくい暮らしをサポートします。
階段横に設けられた便利な収納スペースは、日用品のストックや掃除機などをしまうのに最適。動線上にあるため“使う→戻す”がスムーズで、散らかりにくい暮らしをサポートします。
ゆったり浸かれるオーバル型浴槽が魅力のバスルーム。高級感ある石目調パネル&浴室乾燥機付きで、雨の日の洗濯やカビ対策にも対応。小窓付きで換気性も良く、毎日のバスタイムが心地よく過ごせます。
ゆったり浸かれるオーバル型浴槽が魅力のバスルーム。高級感ある石目調パネル&浴室乾燥機付きで、雨の日の洗濯やカビ対策にも対応。小窓付きで換気性も良く、毎日のバスタイムが心地よく過ごせます。
広々とした洗面室は、収納力のある三面鏡キャビネットとワイドな洗面台が魅力。タオルや洗剤もすっきり収まり、家事動線の良いバスルーム直結設計。お子様の身支度も並んでできるゆとりある空間です。
広々とした洗面室は、収納力のある三面鏡キャビネットとワイドな洗面台が魅力。タオルや洗剤もすっきり収まり、家事動線の良いバスルーム直結設計。お子様の身支度も並んでできるゆとりある空間です。
清潔感あるタンク一体型トイレを採用。温水洗浄機能付きで快適性もgood。手洗いカウンターやペーパー収納棚を備え、使い勝手にも配慮。シンプルな内装でインテリア小物も映える空間です。
清潔感あるタンク一体型トイレを採用。温水洗浄機能付きで快適性もgood。手洗いカウンターやペーパー収納棚を備え、使い勝手にも配慮。シンプルな内装でインテリア小物も映える空間です。
周辺環境:東急ストア綱島店(綱島駅前にあるスーパー。幅広い時間帯に利用することができ、お客様の毎日の生活に密着してお役に立ちます。)
周辺環境:東急ストア綱島店(綱島駅前にあるスーパー。幅広い時間帯に利用することができ、お客様の毎日の生活に密着してお役に立ちます。)
周辺環境:新吉田小学校(「知」確かな学力 「徳」豊かな心「体」健やかな体「公」公共心と社会参画意識「開」国際社会に寄与する開かれた心)
周辺環境:新吉田小学校(「知」確かな学力 「徳」豊かな心「体」健やかな体「公」公共心と社会参画意識「開」国際社会に寄与する開かれた心)
周辺環境:新田中学校((知)確かな学力を身につけ、自ら学ぶ、あきらめずに挑戦する生徒を育みます。(徳)のびのびと主体的に行動し、人権を尊重する豊かな心の生徒を育みます)
周辺環境:新田中学校((知)確かな学力を身につけ、自ら学ぶ、あきらめずに挑戦する生徒を育みます。(徳)のびのびと主体的に行動し、人権を尊重する豊かな心の生徒を育みます)
周辺環境:しんよしだ幼稚園(当園の園訓は「伸び伸びと 遊びを中心とした たのしい幼稚園」です。子どもたちに明るい健康的な教育環境を作り、豊かな心身の発達を助長します。)
周辺環境:しんよしだ幼稚園(当園の園訓は「伸び伸びと 遊びを中心とした たのしい幼稚園」です。子どもたちに明るい健康的な教育環境を作り、豊かな心身の発達を助長します。)
周辺環境:イオン横浜新吉田店(食料品だけでなく衣料品、日用雑貨、ドラッグストア等も揃う便利なショッピングモール。ご家族でお買い物に出かけるのも楽しいですね。)
周辺環境:イオン横浜新吉田店(食料品だけでなく衣料品、日用雑貨、ドラッグストア等も揃う便利なショッピングモール。ご家族でお買い物に出かけるのも楽しいですね。)
周辺環境:アピタテラス横浜綱島(大型スーパーと専門店の複合ショッピングセンターが、新しく生まれ変わって登場です。)
周辺環境:アピタテラス横浜綱島(大型スーパーと専門店の複合ショッピングセンターが、新しく生まれ変わって登場です。)
周辺環境:綱島公園(鶴見川の平野部に立地する標高30メートル程の独立丘上部に所在し、雑木林の広がる緑豊かな公園)
周辺環境:綱島公園(鶴見川の平野部に立地する標高30メートル程の独立丘上部に所在し、雑木林の広がる緑豊かな公園)
周辺環境:東前公園(公園全体に遊具を配置した公園。すべり台、ブランコ、砂場、鉄棒がある。)
周辺環境:東前公園(公園全体に遊具を配置した公園。すべり台、ブランコ、砂場、鉄棒がある。)
周辺環境:ゆめ酵母ひげのぱん屋(横浜のひげのぱん屋は焼きたての美味しさにこだわり続ける手作りパン屋です。)
周辺環境:ゆめ酵母ひげのぱん屋(横浜のひげのぱん屋は焼きたての美味しさにこだわり続ける手作りパン屋です。)

この物件のココがオススメ!

新築デザイナーズ住宅 『綱島駅』徒歩15分 駅が近い快適タウン 高台の立地ならではの抜け感ある眺望

お気軽にどうぞ!

資料請求 現地見学 電話でお問い合わせ
0120-150-580

地図

申し訳ありません
こちらは会員限定機能です

会員登録で利用できる6つの便利機能

詳しく見る

お気軽にどうぞ!

資料請求 現地見学 電話でお問い合わせ
0120-150-580

頭金0万円・金利0.495%の場合

ボーナス時(年2回)お支払額

0

この物件の月々のお支払額

153,491

年収に対する返済比率

61

  • ※会員登録し、詳細情報を記入されますと、全ての物件で自動的に金額が表示され、大変便利です。
  • ※まだ会員登録をされていない方は、下記チェック欄をご記入ください。
  • ※上記計算は物件価格5,480万円+諸経費 8%込みの金額による結果となります。
  • ※返済金額はあくまでも目安です。

お客様の条件からシミュレーションするには?

会員登録
マイページから登録

金利

直接入力する

ボーナス払い(年2回)

返済年数

頭金

直接入力する

 万円(半角数字)

年収

 万円(半角数字)

約1,300m

スーパー

周辺環境:東急ストア綱島店(綱島駅前にあるスーパー。幅広い時間帯に利用することができ、お客様の毎日の生活に密着してお役に立ちます。)

スーパー

約1,300m

約600m

小学校

周辺環境:新吉田小学校(「知」確かな学力 「徳」豊かな心「体」健やかな体「公」公共心と社会参画意識「開」国際社会に寄与する開かれた心)

小学校

約600m

約280m

中学校

周辺環境:新田中学校((知)確かな学力を身につけ、自ら学ぶ、あきらめずに挑戦する生徒を育みます。(徳)のびのびと主体的に行動し、人権を尊重する豊かな心の生徒を育みます)

中学校

約280m

約450m

幼稚園・保育園

周辺環境:しんよしだ幼稚園(当園の園訓は「伸び伸びと 遊びを中心とした たのしい幼稚園」です。子どもたちに明るい健康的な教育環境を作り、豊かな心身の発達を助長します。)

幼稚園・保育園

約450m

約1,400m

ショッピングセンター

周辺環境:イオン横浜新吉田店(食料品だけでなく衣料品、日用雑貨、ドラッグストア等も揃う便利なショッピングモール。ご家族でお買い物に出かけるのも楽しいですね。)

ショッピングセンター

約1,400m

約2,100m

ショッピングセンター

周辺環境:アピタテラス横浜綱島(大型スーパーと専門店の複合ショッピングセンターが、新しく生まれ変わって登場です。)

ショッピングセンター

約2,100m

約1,400m

公園

周辺環境:綱島公園(鶴見川の平野部に立地する標高30メートル程の独立丘上部に所在し、雑木林の広がる緑豊かな公園)

公園

約1,400m

約190m

公園

周辺環境:東前公園(公園全体に遊具を配置した公園。すべり台、ブランコ、砂場、鉄棒がある。)

公園

約190m

約700m

その他環境写真

周辺環境:ゆめ酵母ひげのぱん屋(横浜のひげのぱん屋は焼きたての美味しさにこだわり続ける手作りパン屋です。)

その他環境写真

約700m

価格 5,480万円
物件種別 新築一戸建て
間取り 2SLDK
所在地 横浜市港北区 新吉田東6丁目
交通
  • 東急東横線「綱島」駅 徒歩 15 分
  • 東急新横浜線「新綱島」駅 徒歩 18 分
土地面積 84.52㎡
建物面積 90.36㎡
学区 新吉田小学校、新田中学校
用途地域 第一種低層住居専用
建ぺい率 60%
容積率 100%
地目 宅地
駐車場 有り ビルトイン車庫
接道 南4.8m
権利 所有権
私道面積 有 235.78㎡ 2825/23578
セットバック 無し
建物構造 木造
建物階数 2階
築年月 2025年09月
入居日 即時
都市計画 市街化区域
取引態様 仲介
物件番号 A1840
設備 公営水道、公共下水、省エネルギー対策、ビルトインガレージ、駐車場1台、緑豊かな住宅地、閑静な住宅地、平坦地、都市近郊、地盤調査済、南側道路面す、市街地が近い、周辺交通量少なめ、2沿線以上利用可、小学校徒歩10分以内、中学校徒歩10分以内、公園5分以内、事故物件、システムキッチン、ガス3口、食器洗い機付き、浄水器、I型キッチン、パントリー(食器・食品の収納庫)、ユニットバス、追い焚き、浴室乾燥機、ウォシュレット、トイレ2ヶ所、浴室1坪以上、浴室に窓、暖房便座、浴室暖房、バルコニー、バルコニー2面、南面バルコニー、2階建、LDK15畳以上、全居室6畳以上、採光2面、南向き、フローリング、全室フローリング、リビング階段、クローゼット、収納、下駄箱、全居室収納、シャンプドレッサー付き、年内入居可、モニタ付きインターフォン、複層ガラス、火災警報器(報知機)、通風良好、陽当り良好、24時間換気システム、建物10年保証
建築確認番号 第KBI-SGM25-10-1343号
特記事項 宅地造成工事規制区域:有/高度地区:有/準防火地域:有/日影制限:有/敷地面積最低限度:有/高さ限度:有/緑化地域 間取りSは納戸 建物面積に車庫面積6.21m2含む 接道:43条但書道路につき但書許可要(建築確認取得済)。 /
備考 新築デザイナーズ住宅 『綱島駅』徒歩15分 駅が近い快適タウン 高台の立地ならではの抜け感ある眺望

こだわりポイント

  • 事故
  • 断熱に配慮された建物
  • 省エネに配慮された建物
  • 食器洗い洗浄乾燥機
  • 浴室換気乾燥暖房機
  • 外食を楽しめる生活
  • 急行電車でスピード通勤
  • 駅まで平坦ラクラク通勤
  • 2沿線利用であんしん通勤
  • 子供の多い街に住む
  • 自然を感じる暮らし
  • LDKは1階に
  • 2階建て住宅限定
  • ウォークインクローゼット
  • リビングイン階段
  • LDK15帖以上
  • 広々バルコニー
  • 対面キッチン
  • 浴室1坪以上
  • パントリー
  • 小学校10分以内
  • 大規模公園10分以内
  • コンビニ10分以内
  • 保育園10分以内
  • 幼稚園10分以内
  • 公園10分以内
  • 都市ガス
  • 屋根付きカースペース
  • 日当たり良好
  • 南道路限定
  • 整形地
  • 道路と段差無し
  • 低層住居専用地域

お気軽にどうぞ!

資料請求 現地見学 電話でお問い合わせ
0120-150-580

このエリアでお探しの方へ

横浜市鶴見区上末吉1丁目 新築一戸建 5180万円 2号棟

南武線「尻手」駅 徒歩 20 分

京浜東北線「鶴見」駅 バス停「末吉不動前」まで 徒歩 3 分 バス利用 14分

横浜市鶴見区 上末吉1丁目

5,180万円

1LDK+2S

今週末モデルハウス見学会開催中!「大船」駅利用 新築一戸建て(B) エコジョーズ

東海道本線「大船」駅 徒歩 18 分

湘南モノレール「富士見町」駅 徒歩 5 分

鎌倉市 台4丁目

5,180万円

2LDK+2S

横浜市緑区寺山町 新築一戸建 5180万円 A号棟

横浜線「中山」駅 徒歩 14 分

グリーンライン「中山」駅 バス停「寺山町」まで 徒歩 4 分 バス利用 4分

横浜市緑区 寺山町

5,180万円

4LDK

川崎市麻生区片平3丁目 新築一戸建 5180万円 2号棟

小田急線「柿生」駅 徒歩 15 分

小田急多摩線「五月台」駅 徒歩 21 分

川崎市麻生区 片平3丁目

5,180万円

3LDK

川崎市麻生区王禅寺東4丁目 新築一戸建 5180万円 2号棟

小田急線「柿生」駅 徒歩 19 分

田園都市線「あざみ野」駅 バス停「真福寺」まで 徒歩 6 分 バス利用 23分

川崎市麻生区 王禅寺東4丁目

5,180万円

4LDK

横浜市鶴見区駒岡1丁目 新築一戸建 5180万円 F棟

東急東横線「大倉山」駅 バス停「陸橋下」まで 徒歩 8 分 バス利用 12分

京浜東北線「鶴見」駅 バス停「駒岡不動尊前」まで 徒歩 9 分 バス利用 25分

横浜市鶴見区 駒岡1丁目

5,180万円

4LDK

横浜市鶴見区駒岡1丁目 新築一戸建 5180万円 D棟

東急東横線「大倉山」駅 バス停「陸橋下」まで 徒歩 8 分 バス利用 12分

京浜東北線「鶴見」駅 バス停「駒岡不動尊前」まで 徒歩 9 分 バス利用 25分

横浜市鶴見区 駒岡1丁目

5,180万円

4LDK

横浜市緑区長津田みなみ台7丁目 新築一戸建 5180万円 7号棟

田園都市線「長津田」駅 徒歩 15 分

横浜線「十日市場」駅 徒歩 15 分

横浜市緑区 長津田みなみ台7丁目

5,180万円

4LDK

横浜市神奈川区菅田町 新築一戸建 5180万円 2号棟

横浜線「鴨居」駅 バス停「小川橋」まで 徒歩 5 分 バス利用 10分

ブルーライン「片倉町」駅 バス停「小川橋」まで 徒歩 4 分 バス利用 13分

横浜市神奈川区 菅田町

5,180万円

4LDK

建物完成しました! 今週末内覧会開催中!「鶴ケ峰」駅徒歩15分 新築一戸建て ロフト完備

相模鉄道線「鶴ヶ峰」駅 徒歩 15 分

横浜線「中山」駅 バス停「薬王寺入口」まで 徒歩 6 分 バス利用 25分

横浜市旭区 鶴ケ峰本町2丁目

5,180万円

4LDK

川崎市高津区東野川1丁目 新築一戸建 5180万円 No.1

南武線「武蔵新城」駅 バス停「野川」まで 徒歩 6 分 バス利用 12分

田園都市線「鷺沼」駅 バス停「野川くぬぎ坂」まで 徒歩 2 分 バス利用 18分

川崎市高津区 東野川1丁目

5,180万円

2SLDK

川崎市宮前区西野川3丁目 新築一戸建 5180万円 1号棟

田園都市線「宮前平」駅 バス停「野川台東」まで 徒歩 1 分 バス利用 12分

南武線「武蔵中原」駅 バス停「野川台」まで 徒歩 4 分 バス利用 16分

川崎市宮前区 西野川3丁目

5,180万円

3LDK

お気軽にどうぞ!

資料請求 現地見学 電話でお問い合わせ
0120-150-580
来店予約