1. トップページ
  2. 建物完成しました! 今週末内覧会開催中!「鶴ケ峰」駅徒歩15分 新築一戸建て ロフト完備

建物完成しました! 今週末内覧会開催中!「鶴ケ峰」駅徒歩15分 新築一戸建て ロフト完備

価格
5,180万円
物件種別
新築一戸建て
間取り
4LDK
所在地
横浜市旭区 鶴ケ峰本町2丁目
交通
  • 相模鉄道線「鶴ヶ峰」駅 徒歩 15 分
  • 横浜線「中山」駅 バス停「薬王寺入口」まで 徒歩 6 分 バス利用 25分
土地面積
103.41㎡
建物面積
106.22㎡
  • 前回情報更新日 2025.11.27
  • 次回情報更新予定日 2025.12.11
資料請求 現地見学 電話でお問い合わせ
0120-150-580
外観:落ち着きある住宅街、一種低層住居専用地域内に位置しています。日当りを大きく遮られることもありません。
外観:落ち着きある住宅街、一種低層住居専用地域内に位置しています。日当りを大きく遮られることもありません。
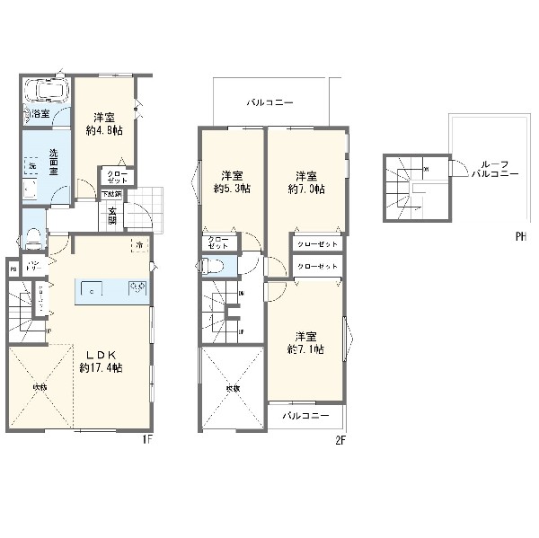
間取図
間取図
19.6帖の広々LDK。導線もしっかりと取れているので、ダイニングテーブルやソファーなどの家具もしっかりと配置できます。ゆったりとした広さの空間でご家族だんらんの時間をお過ごしください。
19.6帖の広々LDK。導線もしっかりと取れているので、ダイニングテーブルやソファーなどの家具もしっかりと配置できます。ゆったりとした広さの空間でご家族だんらんの時間をお過ごしください。
外観:四季の移り変わりを感じられる贅沢な環境。緑に恵まれたエリアで、毎日のお散歩も気持ちよさそうです。自然に包まれた穏やかな暮らしができる住環境が整っています。
外観:四季の移り変わりを感じられる贅沢な環境。緑に恵まれたエリアで、毎日のお散歩も気持ちよさそうです。自然に包まれた穏やかな暮らしができる住環境が整っています。
家族と過ごす時間を大切にしたい方にぴったりのゆとりある住空間です。窓からの日差しがリビングの隅々までしっかりと届きます。
家族と過ごす時間を大切にしたい方にぴったりのゆとりある住空間です。窓からの日差しがリビングの隅々までしっかりと届きます。
外観:散らかりがちな玄関をスッキリと保てる玄関収納は、家の中に入る時一番最初に目に付く場所だからこだわりたい。落ち着いた雰囲気の色目が、室内のカラーやデザインと調和しています。
外観:散らかりがちな玄関をスッキリと保てる玄関収納は、家の中に入る時一番最初に目に付く場所だからこだわりたい。落ち着いた雰囲気の色目が、室内のカラーやデザインと調和しています。
リビングのお子様を見守りながらお料理が出来る対面式カウンターキッチン。ご家族との会話がはずみます。
リビングのお子様を見守りながらお料理が出来る対面式カウンターキッチン。ご家族との会話がはずみます。
新しいキッチンは食事の支度が捗ります。お手伝いをしてくれるお子様と並びながら準備や片付けが出来るキッチンは、ご家族のコミュニケーションを育む場として活躍します。何気ない時間ですが、大切にしたいですね。
新しいキッチンは食事の支度が捗ります。お手伝いをしてくれるお子様と並びながら準備や片付けが出来るキッチンは、ご家族のコミュニケーションを育む場として活躍します。何気ない時間ですが、大切にしたいですね。
リビングとつづき間を隔てる引き戸を開放すれば、約25帖の大空間に。急な来客やご家族構成によってシーンで使い分けられる便利な空間です。
リビングとつづき間を隔てる引き戸を開放すれば、約25帖の大空間に。急な来客やご家族構成によってシーンで使い分けられる便利な空間です。
ゆとりの洗面スペースで朝の身支度も快適スムーズに。三面鏡で髪のセットやお化粧もストレスなくこなせ、朝から気分良く通勤通学に向かえそうですね!鏡の裏にはたっぷりと収納スペースを標準装備!
ゆとりの洗面スペースで朝の身支度も快適スムーズに。三面鏡で髪のセットやお化粧もストレスなくこなせ、朝から気分良く通勤通学に向かえそうですね!鏡の裏にはたっぷりと収納スペースを標準装備!
ゆとりの洗面スペースで朝の身支度も快適スムーズに。三面鏡で髪のセットやお化粧もストレスなくこなせ、朝から気分良く通勤通学に向かえそうですね!鏡の裏にはたっぷりと収納スペースを標準装備!
ゆとりの洗面スペースで朝の身支度も快適スムーズに。三面鏡で髪のセットやお化粧もストレスなくこなせ、朝から気分良く通勤通学に向かえそうですね!鏡の裏にはたっぷりと収納スペースを標準装備!
ユニットバスはゆったりとくつろげる1坪タイプ。足までしっかりと伸ばせる浴槽は、心身ともにしっかりと疲れを癒してくれます。お子様と一緒の入浴でも充分な広さです。
ユニットバスはゆったりとくつろげる1坪タイプ。足までしっかりと伸ばせる浴槽は、心身ともにしっかりと疲れを癒してくれます。お子様と一緒の入浴でも充分な広さです。
洗浄機能付き便座を標準装備。便座保温機能もあるので寒い季節も安心。トイレ奥のスペースにちょっとした収納を造作することも可能。トイレットペーパーなど効率的に収納できます。
洗浄機能付き便座を標準装備。便座保温機能もあるので寒い季節も安心。トイレ奥のスペースにちょっとした収納を造作することも可能。トイレットペーパーなど効率的に収納できます。
南からの明るい光が差しこむ陽だまりの空間。南に大きく面したバルコニーでお洗濯もあっという間に乾きそう。家事もスムーズにこなせますね。太陽の匂いが感じられる心地よさ。
南からの明るい光が差しこむ陽だまりの空間。南に大きく面したバルコニーでお洗濯もあっという間に乾きそう。家事もスムーズにこなせますね。太陽の匂いが感じられる心地よさ。
ウォークインクローゼットのある住まいで収納上手な生活を実現。衣類だけでなく、箱物や思い出の品もたっぷり収納できます。
ウォークインクローゼットのある住まいで収納上手な生活を実現。衣類だけでなく、箱物や思い出の品もたっぷり収納できます。
2面採光でお部屋の隅々まで明るい印象の居室。おひさまの光を、爽やかな風をたっぷりと取り込めます。居室内はいつも明るいので、毎日の生活も自然と明るくなりますね。
2面採光でお部屋の隅々まで明るい印象の居室。おひさまの光を、爽やかな風をたっぷりと取り込めます。居室内はいつも明るいので、毎日の生活も自然と明るくなりますね。
光を取り込みやすい2面採光の居室は日当たり良好です。クローゼットの完備で収納スペースも十分。初めてのお子様にとっての「自分の部屋」。学習デスクやベッドの配置もラクラクです。
光を取り込みやすい2面採光の居室は日当たり良好です。クローゼットの完備で収納スペースも十分。初めてのお子様にとっての「自分の部屋」。学習デスクやベッドの配置もラクラクです。
光を沢山取り込める大きな窓。日差しを長時間受ける事が出来る暖かいお部屋です。もちろんペアガラスなので、遮音性にも優れ、結露も発生しにくい構造。サッシ周りのカビが発生しにくくなります。
光を沢山取り込める大きな窓。日差しを長時間受ける事が出来る暖かいお部屋です。もちろんペアガラスなので、遮音性にも優れ、結露も発生しにくい構造。サッシ周りのカビが発生しにくくなります。
清潔感あるカラーで仕上げられた内装です。世代を問わず人気で、インテリアも合わせやすい色調ですので、落ち着きと安らぎを感じさせる雰囲気になっています。
清潔感あるカラーで仕上げられた内装です。世代を問わず人気で、インテリアも合わせやすい色調ですので、落ち着きと安らぎを感じさせる雰囲気になっています。
周辺環境:西友鶴ヶ峰店(西友鶴ヶ峰店まで1000m)
周辺環境:西友鶴ヶ峰店(西友鶴ヶ峰店まで1000m)
周辺環境:そうてつローゼン鶴ヶ峰店(そうてつローゼン鶴ヶ峰店まで1200m)
周辺環境:そうてつローゼン鶴ヶ峰店(そうてつローゼン鶴ヶ峰店まで1200m)
周辺環境:ちとせ保育園(ちとせ保育園まで1000m)
周辺環境:ちとせ保育園(ちとせ保育園まで1000m)
周辺環境:ひろ小児科クリニッ(ひろ小児科クリニックまで800m)
周辺環境:ひろ小児科クリニッ(ひろ小児科クリニックまで800m)
周辺環境:横浜市立鶴ケ峯中学校(横浜市立鶴ケ峯中学校まで290m)
周辺環境:横浜市立鶴ケ峯中学校(横浜市立鶴ケ峯中学校まで290m)
周辺環境:横浜市立今宿小学校(横浜市立今宿小学校まで1100m)
周辺環境:横浜市立今宿小学校(横浜市立今宿小学校まで1100m)
周辺環境:今宿幼稚園(今宿幼稚園まで1100m)
周辺環境:今宿幼稚園(今宿幼稚園まで1100m)
周辺環境:鶴ヶ峰本町第三公園(鶴ヶ峰本町第三公園まで600m)
周辺環境:鶴ヶ峰本町第三公園(鶴ヶ峰本町第三公園まで600m)
周辺環境:今宿東公園(今宿東公園まで550m)
周辺環境:今宿東公園(今宿東公園まで550m)

この物件のココがオススメ!

相鉄線「鶴ケ峰」駅から徒歩15分。全室2面採光なので、明るく通風良好。プライバシーに配慮した2階LDKは、対面キッチン・リビングイン階段。ロフト完備。

お気軽にどうぞ!

資料請求 現地見学 電話でお問い合わせ
0120-150-580

地図

申し訳ありません
こちらは会員限定機能です

会員登録で利用できる6つの便利機能

詳しく見る

お気軽にどうぞ!

資料請求 現地見学 電話でお問い合わせ
0120-150-580

頭金0万円・金利0.495%の場合

ボーナス時(年2回)お支払額

0

この物件の月々のお支払額

145,088

年収に対する返済比率

58

  • ※会員登録し、詳細情報を記入されますと、全ての物件で自動的に金額が表示され、大変便利です。
  • ※まだ会員登録をされていない方は、下記チェック欄をご記入ください。
  • ※上記計算は物件価格5,180万円+諸経費 8%込みの金額による結果となります。
  • ※返済金額はあくまでも目安です。

お客様の条件からシミュレーションするには?

会員登録
マイページから登録

金利

直接入力する

ボーナス払い(年2回)

返済年数

頭金

直接入力する

 万円(半角数字)

年収

 万円(半角数字)

約1,000m

スーパー

周辺環境:西友鶴ヶ峰店(西友鶴ヶ峰店まで1000m)

スーパー

約1,000m

約1,200m

スーパー

周辺環境:そうてつローゼン鶴ヶ峰店(そうてつローゼン鶴ヶ峰店まで1200m)

スーパー

約1,200m

約1,000m

幼稚園・保育園

周辺環境:ちとせ保育園(ちとせ保育園まで1000m)

幼稚園・保育園

約1,000m

約800m

病院

周辺環境:ひろ小児科クリニッ(ひろ小児科クリニックまで800m)

病院

約800m

約290m

中学校

周辺環境:横浜市立鶴ケ峯中学校(横浜市立鶴ケ峯中学校まで290m)

中学校

約290m

約1,100m

小学校

周辺環境:横浜市立今宿小学校(横浜市立今宿小学校まで1100m)

小学校

約1,100m

約1,100m

幼稚園・保育園

周辺環境:今宿幼稚園(今宿幼稚園まで1100m)

幼稚園・保育園

約1,100m

約600m

公園

周辺環境:鶴ヶ峰本町第三公園(鶴ヶ峰本町第三公園まで600m)

公園

約600m

約550m

公園

周辺環境:今宿東公園(今宿東公園まで550m)

公園

約550m

価格 5,180万円
物件種別 新築一戸建て
間取り 4LDK
所在地 横浜市旭区 鶴ケ峰本町2丁目
交通
  • 相模鉄道線「鶴ヶ峰」駅 徒歩 15 分
  • 横浜線「中山」駅 バス停「薬王寺入口」まで 徒歩 6 分 バス利用 25分
土地面積 103.41㎡
建物面積 106.22㎡
学区 今宿小学校、鶴ケ峯中学校
用途地域 第一種低層住居専用
建ぺい率 50%
容積率 100%
地目 宅地
駐車場 有り ビルトイン車庫 駐車場面積:7.45㎡
接道 南西4.4m
権利 所有権
私道面積 無し
セットバック 無し
建物構造 木造
建物階数 2階
築年月 2025年10月
入居日 即時
都市計画 市街化区域
取引態様 仲介
物件番号 47642
設備 公営水道、公共下水、ビルトインガレージ、緑豊かな住宅地、閑静な住宅地、地盤調査済、南側道路面す、始発駅、2沿線以上利用可、中学校徒歩10分以内、システムキッチン、ガス3口、食器洗い機付き、浄水器、I型キッチン、ユニットバス、追い焚き、浴室乾燥機、ウォシュレット、トイレ2ヶ所、浴室1坪以上、浴室に窓、暖房便座、浴室暖房、バルコニー、南面バルコニー、2階建、ロフト、LDK18畳以上、南向き、全室2面採光、フローリング、全室フローリング、リビング階段、クローゼット、収納、下駄箱、全居室収納、シャンプドレッサー付き、モニタ付きインターフォン、通風良好、陽当り良好、24時間換気システム、建物10年保証
建築確認番号 第25KAK建確00118号
特記事項 崖下につき建築制限 崖上につき建築制限: 隅切り 宅地造成工事規制区域 高度地区 準防火地域 日影制限 接道と段差 敷地面積最低限度 建物高さ10m以下 建築基準法第22条による区域 傾斜地含 建物建築・再建築の際、深基礎、基礎杭、擁壁の補修・再構築、外壁後退等の対策が必要となる場合有。建物建築・再建築の際、防護壁の設置、高基礎、外壁後退等の対策が必要となる場合有。 建物面積に車庫7.45平米含 崖下につき建築制限:有/崖上につき建築制限:有/隅切り:有/宅地造成工事規制区域:有/高度地区:有/準防火地域:有/日影制限:有/接道と段差:有/敷地面積最低限度:有/高さ限度:有/建築基準法第22条による区域 傾斜地含 建物建築・再建築の際、深基礎、基礎杭、擁壁の補修・再構築、外壁後退等の対策が必要となる場合有。建物建築・再建築の際、防護壁の設置、高基礎、
備考 相鉄線「鶴ケ峰」駅から徒歩15分。全室2面採光なので、明るく通風良好。プライバシーに配慮した2階LDKは、対面キッチン・リビングイン階段。ロフト完備。

こだわりポイント

  • 食器洗い洗浄乾燥機
  • 浴室換気乾燥暖房機
  • 急行電車でスピード通勤
  • 始発で座ってゆったり通勤
  • 大人の二人暮らし
  • 2階建て住宅限定
  • リビングイン階段
  • LDKは2階に
  • LDK18帖以上
  • 対面キッチン
  • ロフト・小屋裏収納
  • 小児科医院10分以内
  • 保育園10分以内
  • 公園10分以内
  • 都市ガス

お気軽にどうぞ!

資料請求 現地見学 電話でお問い合わせ
0120-150-580

このエリアでお探しの方へ

建物完成しました! 今週末内覧会開催中!「二俣川」駅利用 新築一戸建て 吹抜け WIC

相模鉄道線「二俣川」駅 バス停「左近山第2」まで 徒歩 7 分 バス利用 15分

相模鉄道線「鶴ヶ峰」駅 徒歩 23 分

横浜市旭区 小高町

4,990万円

4LDK

値下げしました! 「鶴ヶ峰」駅利用 新築一戸建て(1) 長期優良住宅

相模鉄道線「鶴ヶ峰」駅 バス停「辻」まで 徒歩 5 分 バス利用 16分

横浜線「中山」駅 バス停「上白根入口」まで 徒歩 11 分 バス利用 10分

横浜市旭区 上白根2丁目

5,080万円

4LDK

建物完成しました! 今週末内覧会開催中!「鶴ケ峰」駅利用 新築一戸建て 角地

相模鉄道線「鶴ヶ峰」駅 バス停「辻」まで 徒歩 7 分 バス利用 6分

横浜線「中山」駅 バス停「上白根入口」まで 徒歩 11 分 バス利用 10分

横浜市旭区 上白根2丁目

5,280万円

5LDK

今週末モデルハウス見学会開催中!「三ツ境」駅利用 新築一戸建て(1) 長期優良住宅

相模鉄道線「三ッ境」駅 バス停「ニュータウン第7」まで 徒歩 2 分 バス利用 7分

いずみ野線「二俣川」駅 バス停「ニュータウン第7」まで 徒歩 2 分 バス利用 9分

横浜市旭区 金が谷2丁目

4,880万円

4LDK

建物完成しました! 今週末内覧会開催中!「三ツ境」駅利用 新築一戸建て WIC完備

相模鉄道線「三ッ境」駅 徒歩 18 分

いずみ野線「二俣川」駅 バス停「ニュータウン第7」まで 徒歩 6 分 バス利用 9分

横浜市旭区 金が谷1丁目

5,180万円

4LDK

今週末モデルハウス見学会開催中!「二俣川」駅利用 新築一戸建て(A) 敷地面積50坪以上

相模鉄道線「二俣川」駅 バス停「ニュータウン第5」まで 徒歩 3 分 バス利用 8分

相模鉄道線「三ッ境」駅 バス停「ニュータウン第5」まで 徒歩 3 分 バス利用 9分

横浜市旭区 今宿町

5,190万円

4LDK

値下げしました!「希望ケ丘」駅徒歩7分 新築一戸建て(6)カースペース2台

相模鉄道線「希望ヶ丘」駅 徒歩 7 分

いずみ野線「二俣川」駅 徒歩 22 分

横浜市旭区 中希望が丘

5,380万円

4LDK

今週末モデルハウス見学会開催中!「希望ケ丘」駅徒歩14分 新築一戸建て(B) エコジョーズ

相模鉄道線「希望ヶ丘」駅 徒歩 14 分

いずみ野線「南万騎が原」駅 徒歩 13 分

横浜市旭区 南希望が丘

5,380万円

4LDK

今週末モデルハウス見学会開催中!「希望ケ丘」駅徒歩7分 新築一戸建て 小屋裏収納有 全居室約6帖以上

相模鉄道線「希望ヶ丘」駅 徒歩 7 分

いずみ野線「南万騎が原」駅 バス停「分譲住宅」まで 徒歩 7 分 バス利用 11分

横浜市旭区 中希望が丘

5,480万円

3LDK

今週末モデルハウス見学会開催中!「鶴ケ峰」駅利用 新築一戸建て エコジョーズ

相模鉄道線「鶴ヶ峰」駅 徒歩 17 分

いずみ野線「二俣川」駅 徒歩 21 分

横浜市旭区 川島町

3,480万円

2LDK

値下げしました!「鶴ヶ峰」駅利用 新築一戸建て(1) 全居室ペアガラス

相模鉄道線「鶴ヶ峰」駅 徒歩 23 分

相模鉄道線「鶴ヶ峰」駅 バス停「市沢上町」まで 徒歩 2 分 バス利用 7分

横浜市旭区 市沢町

3,880万円

3LDK

今週末モデルハウス見学会開催中!「上星川」駅利用 新築一戸建て(5) 全室南向き

相模鉄道線「上星川」駅 徒歩 23 分

相模鉄道線「鶴ヶ峰」駅 バス停「くぬぎ台団地入口」まで 徒歩 19 分 バス利用 6分

横浜市旭区 市沢町

4,288万円

4LDK

お気軽にどうぞ!

資料請求 現地見学 電話でお問い合わせ
0120-150-580
来店予約