1. トップページ
  2. 川崎市宮前区南野川2丁目 新築一戸建 4680万円 1号棟

川崎市宮前区南野川2丁目 新築一戸建 4680万円 1号棟

価格
4,680万円
物件種別
新築一戸建て
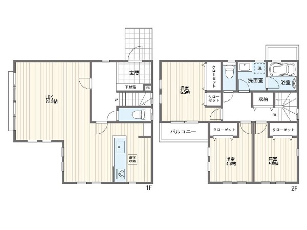
間取り
3SLDK
所在地
川崎市宮前区 南野川2丁目
交通
  • グリーンライン「東山田」駅 徒歩 23 分
  • 田園都市線「鷺沼」駅 バス停「久末」まで 徒歩 4 分 バス利用 22分
土地面積
139.93㎡
建物面積
103.09㎡
  • 前回情報更新日 2026.02.24
  • 次回情報更新予定日 2026.03.10
資料請求 現地見学 電話でお問い合わせ
0120-150-580
外観:落ち着いた雰囲気のデザイナーズ住宅!大通りから1本入った閑静な住宅街に位置し、静かな日常を送る事の出来る住環境です。
外観:落ち着いた雰囲気のデザイナーズ住宅!大通りから1本入った閑静な住宅街に位置し、静かな日常を送る事の出来る住環境です。
間取り
間取り
食洗機 利用者が増えているのはメリットが多いから。時間の節約、手が荒れない、水道代の節約、高温度で洗うので油汚れもしっかり落とせる。まさに理想家電。
食洗機 利用者が増えているのはメリットが多いから。時間の節約、手が荒れない、水道代の節約、高温度で洗うので油汚れもしっかり落とせる。まさに理想家電。
3口以上コンロ 同時並行で調理しやすい3口コンロです。お料理を同時にすすめることができ、料理時間の短縮にもなります。
3口以上コンロ 同時並行で調理しやすい3口コンロです。お料理を同時にすすめることができ、料理時間の短縮にもなります。
TVモニター付インターホン モニター付インターホンが標準仕様です。不安になりがちな防犯面。目で確認できるからあんしんです。
TVモニター付インターホン モニター付インターホンが標準仕様です。不安になりがちな防犯面。目で確認できるからあんしんです。
外観:道路との高低差がなく、駐車や出入りもスムーズ。南側が低く抜けているため、圧迫感がなく、開放的な住環境です。
外観:道路との高低差がなく、駐車や出入りもスムーズ。南側が低く抜けているため、圧迫感がなく、開放的な住環境です。
外観:開発道路のため外部車両の進入が少なく、穏やかな住環境が広がります。ご同世代のご家族が多く、子育て世帯にうれしい住宅地です。
外観:開発道路のため外部車両の進入が少なく、穏やかな住環境が広がります。ご同世代のご家族が多く、子育て世帯にうれしい住宅地です。
浴室乾燥機 お風呂場そのものを乾燥機にしてしまう便利な機能。梅雨時期や花粉の時期に助かる。冬の時期には暖房機能がヒートショックを防ぐ
浴室乾燥機 お風呂場そのものを乾燥機にしてしまう便利な機能。梅雨時期や花粉の時期に助かる。冬の時期には暖房機能がヒートショックを防ぐ
オートバス ワンタッチでお湯張りや保温が可能なフルオートバス。保温機能でいつでも快適に入浴が可能です。
オートバス ワンタッチでお湯張りや保温が可能なフルオートバス。保温機能でいつでも快適に入浴が可能です。
温水洗浄便座 ウォシュレット、暖房便座機能付のトイレです。従来型に比べ節水効果があり、お手入れもしやすい。
温水洗浄便座 ウォシュレット、暖房便座機能付のトイレです。従来型に比べ節水効果があり、お手入れもしやすい。
外観:区画整理された分譲地ならではの統一感のある綺麗な街並み、敷地もゆとりがあり、日当たりや解放感をしっかり確保。
外観:区画整理された分譲地ならではの統一感のある綺麗な街並み、敷地もゆとりがあり、日当たりや解放感をしっかり確保。
外観:【類似外観同仕様】施工例のため分譲中の建物とは外壁、屋根開口部等の形状・仕様が異なります。
外観:【類似外観同仕様】施工例のため分譲中の建物とは外壁、屋根開口部等の形状・仕様が異なります。
外観:道路面より一段上がった敷地のため、歩行者と目線が合いにくく落ち着いた暮らしを実現します。
外観:道路面より一段上がった敷地のため、歩行者と目線が合いにくく落ち着いた暮らしを実現します。
周辺環境:東山田駅(一日平均1万人の乗降者数がある駅。2008年にグリーンライン開通と共にできた新駅。)
周辺環境:東山田駅(一日平均1万人の乗降者数がある駅。2008年にグリーンライン開通と共にできた新駅。)
周辺環境:オーケー野川店(食べ盛りのお子様がいるご家庭の強い味方、魅力の量・価格のスーパーが近くにあると、とても心強いです。まとめ買いに、休日のお買い物に便利です。)
周辺環境:オーケー野川店(食べ盛りのお子様がいるご家庭の強い味方、魅力の量・価格のスーパーが近くにあると、とても心強いです。まとめ買いに、休日のお買い物に便利です。)
周辺環境:クリエイトS・D川崎南野川店(スーパーやコンビニとともに生活に欠かせないドラッグストアは、近所にあると頼もしい限りですね。)
周辺環境:クリエイトS・D川崎南野川店(スーパーやコンビニとともに生活に欠かせないドラッグストアは、近所にあると頼もしい限りですね。)
周辺環境:ローソン宮前南野川店(「マチのほっとステーション」をスローガンに掲げる通り、忙しい日々に「ほっ」とするひとときをもたらします。)
周辺環境:ローソン宮前南野川店(「マチのほっとステーション」をスローガンに掲げる通り、忙しい日々に「ほっ」とするひとときをもたらします。)
周辺環境:ザ・ダイソー  パシオス野川店(いまや売っていないものがないのではないかと錯覚してしまうほど品揃えが豊富なダイソー。)
周辺環境:ザ・ダイソー パシオス野川店(いまや売っていないものがないのではないかと錯覚してしまうほど品揃えが豊富なダイソー。)
周辺環境:ティンクルくぬぎ坂保育園(自分で考えて行動できる、明るくて思いやりのあるこどもに育てたいをモットーに教育しています。)
周辺環境:ティンクルくぬぎ坂保育園(自分で考えて行動できる、明るくて思いやりのあるこどもに育てたいをモットーに教育しています。)
周辺環境:宮前幼稚園(今この瞬間を、わくわく生き活きとびっきり輝いて生きてほしい。そんな思いで園づくりをしています。)
周辺環境:宮前幼稚園(今この瞬間を、わくわく生き活きとびっきり輝いて生きてほしい。そんな思いで園づくりをしています。)
周辺環境:南野川小学校(自然豊かな地域にある小学校です。 元気な挨拶!明るい笑顔!南野川っ子は毎日輝いています!)
周辺環境:南野川小学校(自然豊かな地域にある小学校です。 元気な挨拶!明るい笑顔!南野川っ子は毎日輝いています!)
周辺環境:野川中学校(自己の将来を思慮しながら、自主的、創造的に活動する生徒の育成を目指します。)
周辺環境:野川中学校(自己の将来を思慮しながら、自主的、創造的に活動する生徒の育成を目指します。)

この物件のココがオススメ!

閑静な住宅街に位置した2階建て住宅 静かな日常を送ることの出来る住環境です 床暖房など充実の標準設備

お気軽にどうぞ!

資料請求 現地見学 電話でお問い合わせ
0120-150-580

地図

申し訳ありません
こちらは会員限定機能です

会員登録で利用できる6つの便利機能

詳しく見る

お気軽にどうぞ!

資料請求 現地見学 電話でお問い合わせ
0120-150-580

頭金0万円・金利0.495%の場合

ボーナス時(年2回)お支払額

0

この物件の月々のお支払額

131,082

年収に対する返済比率

52

  • ※会員登録し、詳細情報を記入されますと、全ての物件で自動的に金額が表示され、大変便利です。
  • ※まだ会員登録をされていない方は、下記チェック欄をご記入ください。
  • ※上記計算は物件価格4,680万円+諸経費 8%込みの金額による結果となります。
  • ※返済金額はあくまでも目安です。

お客様の条件からシミュレーションするには?

会員登録
マイページから登録

金利

直接入力する

ボーナス払い(年2回)

返済年数

頭金

直接入力する

 万円(半角数字)

年収

 万円(半角数字)

約1,800m

周辺環境:東山田駅(一日平均1万人の乗降者数がある駅。2008年にグリーンライン開通と共にできた新駅。)

約1,800m

約1,200m

スーパー

周辺環境:オーケー野川店(食べ盛りのお子様がいるご家庭の強い味方、魅力の量・価格のスーパーが近くにあると、とても心強いです。まとめ買いに、休日のお買い物に便利です。)

スーパー

約1,200m

約400m

ドラッグストア

周辺環境:クリエイトS・D川崎南野川店(スーパーやコンビニとともに生活に欠かせないドラッグストアは、近所にあると頼もしい限りですね。)

ドラッグストア

約400m

約1,000m

コンビニ

周辺環境:ローソン宮前南野川店(「マチのほっとステーション」をスローガンに掲げる通り、忙しい日々に「ほっ」とするひとときをもたらします。)

コンビニ

約1,000m

約1,400m

その他環境写真

周辺環境:ザ・ダイソー パシオス野川店(いまや売っていないものがないのではないかと錯覚してしまうほど品揃えが豊富なダイソー。)

その他環境写真

約1,400m

約950m

幼稚園・保育園

周辺環境:ティンクルくぬぎ坂保育園(自分で考えて行動できる、明るくて思いやりのあるこどもに育てたいをモットーに教育しています。)

幼稚園・保育園

約950m

約1,300m

幼稚園・保育園

周辺環境:宮前幼稚園(今この瞬間を、わくわく生き活きとびっきり輝いて生きてほしい。そんな思いで園づくりをしています。)

幼稚園・保育園

約1,300m

約730m

小学校

周辺環境:南野川小学校(自然豊かな地域にある小学校です。 元気な挨拶!明るい笑顔!南野川っ子は毎日輝いています!)

小学校

約730m

約1,500m

中学校

周辺環境:野川中学校(自己の将来を思慮しながら、自主的、創造的に活動する生徒の育成を目指します。)

中学校

約1,500m

価格 4,680万円
物件種別 新築一戸建て
間取り 3SLDK
所在地 川崎市宮前区 南野川2丁目
交通
  • グリーンライン「東山田」駅 徒歩 23 分
  • 田園都市線「鷺沼」駅 バス停「久末」まで 徒歩 4 分 バス利用 22分
土地面積 139.93㎡
建物面積 103.09㎡
学区 南野川小学校、野川中学校
用途地域 第一種低層住居専用
建ぺい率 40%
容積率 80%
地目 宅地
駐車場 有り カースペース
接道 北6m
権利 所有権
私道面積 無し
セットバック 無し
建物構造 木造
建物階数 2階
築年月 2026年07月
入居日 2026年07月
都市計画 市街化区域
取引態様 仲介
物件番号 A2221-1
設備 公営水道、公共下水、駐車場1台、緑豊かな住宅地、閑静な住宅地、都市近郊、開発分譲地内、地盤調査済、前道6m以上、市街地が近い、周辺交通量少なめ、2沿線以上利用可、小学校徒歩10分以内、公園5分以内、コンビニ5分以内、システムキッチン、ガスコンロ、ガス3口、カウンタキッチン、食器洗い機付き、浄水器、ユニットバス、追い焚き、浴室乾燥機、ウォシュレット、オートバス付き、トイレ2ヶ所、浴室1坪以上、浴室に窓、暖房便座、浴室暖房、バルコニー、テラス、南面バルコニー、2階建、LDK18畳以上、採光3面、南向き、全室2面採光、フローリング、全室フローリング、クローゼット、収納、床下収納、下駄箱、全居室収納、シャンプドレッサー付き、庭、年内入居可、モニタ付きインターフォン、複層ガラス、火災警報器(報知機)、セキュリティ充実、通風良好、陽当り良好、24時間換気システム、建物10年保証
建築確認番号 第KBI-SGM25-10-5696
特記事項 不整形地:有/壁面後退:有/景観法:有/宅地造成工事規制区域:有/高度地区:有/準防火地域:有/日影制限:有/敷地内段差:有/敷地面積最低限度:有/高さ限度:有/間取Sは納戸。 /建蔽率2:60% 容積率2:200% 用途地域2:第一種住居
備考 閑静な住宅街に位置した2階建て住宅 静かな日常を送ることの出来る住環境です 床暖房など充実の標準設備

こだわりポイント

  • 建売だけど一味違うこだわり建物
  • カッコイイ系のこだわり建物
  • 床暖房
  • 食器洗い洗浄乾燥機
  • 浴室換気乾燥暖房機
  • 運転ラクラク生活
  • 外食を楽しめる生活
  • 広い庭のある暮らし
  • LDKは1階に
  • 2階建て住宅限定
  • LDK18帖以上
  • 対面キッチン
  • 浴室1坪以上
  • 小学校10分以内
  • コンビニ10分以内
  • 小児科医院10分以内
  • 保育園10分以内
  • 幼稚園10分以内
  • 公園10分以内
  • 都市ガス
  • 5棟以上の分譲地
  • 道路広々(5m以上)

お気軽にどうぞ!

資料請求 現地見学 電話でお問い合わせ
0120-150-580

このエリアでお探しの方へ

川崎市宮前区犬蔵1丁目 新築一戸建 4380万円 2号棟

田園都市線「鷺沼」駅 徒歩 20 分

田園都市線「たまプラーザ」駅 徒歩 22 分

川崎市宮前区 犬蔵1丁目

4,380万円

3LDK

川崎市宮前区菅生2丁目 一戸建 4480万円 A棟

田園都市線「鷺沼」駅 バス停「蔵敷」まで 徒歩 4 分 バス利用 12分

南武線「武蔵溝ノ口」駅 バス停「蔵敷」まで 徒歩 4 分 バス利用 19分

川崎市宮前区 菅生2丁目

4,480万円

2LDK+2S

川崎市宮前区南野川2丁目 新築一戸建 4480万円 4号棟

田園都市線「鷺沼」駅 バス停「和田八幡宮下」まで 徒歩 1 分 バス利用 15分

グリーンライン「東山田」駅 徒歩 22 分

川崎市宮前区 南野川2丁目

4,480万円

4LDK

川崎市宮前区犬蔵1丁目 新築一戸建 4480万円 1号棟

田園都市線「鷺沼」駅 徒歩 20 分

田園都市線「たまプラーザ」駅 徒歩 22 分

川崎市宮前区 犬蔵1丁目

4,480万円

4LDK

川崎市宮前区南野川2丁目 新築一戸建 4530万円 3号棟

田園都市線「鷺沼」駅 バス停「和田八幡宮下」まで 徒歩 1 分 バス利用 15分

グリーンライン「東山田」駅 徒歩 22 分

川崎市宮前区 南野川2丁目

4,530万円

4LDK

川崎市宮前区南野川2丁目 新築一戸建 4580万円 2号棟

田園都市線「鷺沼」駅 バス停「和田八幡宮下」まで 徒歩 1 分 バス利用 15分

グリーンライン「東山田」駅 徒歩 22 分

川崎市宮前区 南野川2丁目

4,580万円

4LDK

川崎市宮前区南野川2丁目 新築一戸建 4580万円 6号棟

グリーンライン「東山田」駅 徒歩 23 分

田園都市線「鷺沼」駅 バス停「久末」まで 徒歩 4 分 バス利用 22分

川崎市宮前区 南野川2丁目

4,580万円

4LDK

川崎市宮前区南野川2丁目 新築一戸建 4680万円 5号棟

田園都市線「鷺沼」駅 バス停「和田八幡宮下」まで 徒歩 1 分 バス利用 15分

グリーンライン「東山田」駅 徒歩 22 分

川崎市宮前区 南野川2丁目

4,680万円

4LDK

川崎市宮前区南野川2丁目 新築一戸建 4680万円 1号棟

田園都市線「鷺沼」駅 バス停「和田八幡宮下」まで 徒歩 1 分 バス利用 15分

グリーンライン「東山田」駅 徒歩 22 分

川崎市宮前区 南野川2丁目

4,680万円

4LDK

川崎市宮前区南野川2丁目 新築一戸建 4780万円 4号棟

グリーンライン「東山田」駅 徒歩 23 分

田園都市線「鷺沼」駅 バス停「久末」まで 徒歩 4 分 バス利用 22分

川崎市宮前区 南野川2丁目

4,780万円

3SLDK

川崎市宮前区南野川2丁目 新築一戸建 4780万円 2号棟

グリーンライン「東山田」駅 徒歩 23 分

田園都市線「鷺沼」駅 バス停「久末」まで 徒歩 4 分 バス利用 22分

川崎市宮前区 南野川2丁目

4,780万円

4LDK

川崎市宮前区南野川2丁目 新築一戸建 4880万円 5号棟

グリーンライン「東山田」駅 徒歩 23 分

田園都市線「鷺沼」駅 バス停「久末」まで 徒歩 4 分 バス利用 22分

川崎市宮前区 南野川2丁目

4,880万円

3LDK

お気軽にどうぞ!

資料請求 現地見学 電話でお問い合わせ
0120-150-580
来店予約