川崎市中原区木月1丁目 新築一戸建 9290万円 A号棟
- 価格
- 9,290万円
- 物件種別
- 新築一戸建て
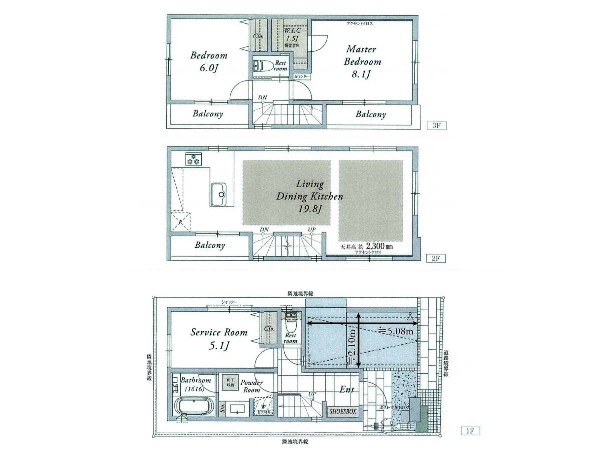
- 間取り
- 2LDK+2S
- 所在地
- 川崎市中原区 木月1丁目
- 交通
-
- 東急東横線「元住吉」駅 徒歩 5 分
- 南武線「武蔵小杉」駅 徒歩 19 分
- 土地面積
- 62.99㎡
- 建物面積
- 112.46㎡
- 前回情報更新日 2025.12.04
- 次回情報更新予定日 2025.12.18
この物件のココがオススメ!
元住吉駅徒歩5分 武蔵小杉駅も徒歩圏 周辺に生活至便施設が多く便利 リビングに床暖房付 収納たっぷり
お気軽にどうぞ!
地図
お気軽にどうぞ!
こだわりポイント
- 床暖房
- 外食を楽しめる生活
- 急行電車でスピード通勤
- 始発で座ってゆったり通勤
- 駅まで平坦ラクラク通勤
- 2沿線利用であんしん通勤
- 子供の多い街に住む
- リビングイン階段
- LDKは2階に
- LDK15帖以上
- 対面キッチン
- 浴室1坪以上
- パントリー
- 小学校10分以内
- スーパー10分以内
- コンビニ10分以内
- 小児科医院10分以内
- 保育園10分以内
- 幼稚園10分以内
- 公園10分以内
- 都市ガス
- 屋根付きカースペース
- 日当たり良好
- 道路と段差無し
- 3階建て以上建築可能地域
お気軽にどうぞ!
このエリアでお探しの方へ
お気軽にどうぞ!