1. トップページ
  2. 今週末モデルハウス見学会開催中!「中田」駅徒歩14分 新築一戸建て 小屋裏収納

今週末モデルハウス見学会開催中!「中田」駅徒歩14分 新築一戸建て 小屋裏収納

価格
2,780万円
物件種別
新築一戸建て
間取り
1SLDK
所在地
横浜市泉区 白百合2丁目
交通
  • ブルーライン「中田」駅 徒歩 14 分
  • 東海道本線「戸塚」駅 バス停「白百合団地」まで 徒歩 5 分 バス利用 12分
土地面積
52.57㎡
建物面積
51.23㎡
  • 前回情報更新日 2025.11.27
  • 次回情報更新予定日 2025.12.11
資料請求 現地見学 電話でお問い合わせ
0120-150-580
外観:◇外観◇  深く豊かな緑と爽快な青い空を感じるまさに横浜に暮らす心地よさを存分に堪能いただける邸宅です。グレードの高い設備仕様が標準装備のデザイン住宅で快適で便利な生活をお送り頂けます。
外観:◇外観◇ 深く豊かな緑と爽快な青い空を感じるまさに横浜に暮らす心地よさを存分に堪能いただける邸宅です。グレードの高い設備仕様が標準装備のデザイン住宅で快適で便利な生活をお送り頂けます。
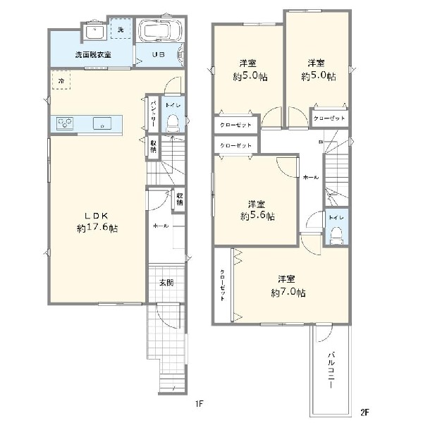
間取図
間取図
◇ダイニング◇  2階にリビングを設けており、プライバシーを確保できます。(本画像はCGで作成しており、実際に現地に家具はおかれておりません。また価格に家具は含まれておりません)
◇ダイニング◇ 2階にリビングを設けており、プライバシーを確保できます。(本画像はCGで作成しており、実際に現地に家具はおかれておりません。また価格に家具は含まれておりません)
外観:◇外観◇  良好な住環境が保たれたエリア。低層の一戸建を中心とした街並みが整然と続き周辺は高い建物が建っておらず、採光や開放性に恵まれ、空が広く緑の多い閑静な趣を感じる環境です。
外観:◇外観◇ 良好な住環境が保たれたエリア。低層の一戸建を中心とした街並みが整然と続き周辺は高い建物が建っておらず、採光や開放性に恵まれ、空が広く緑の多い閑静な趣を感じる環境です。
◇居室◇  光が取り込みやすい2面採光の居室。(本画像はCGで作成しており、実際に現地に家具はおかれておりません。また価格に家具は含まれておりません)
◇居室◇ 光が取り込みやすい2面採光の居室。(本画像はCGで作成しており、実際に現地に家具はおかれておりません。また価格に家具は含まれておりません)
外観:◇玄関◇  玄関にはシューズボックスの他に何かと便利な収納スペースを兼ね備えており来客時にも玄関がキレイ、すっきりとした状態でお迎えできます!
外観:◇玄関◇ 玄関にはシューズボックスの他に何かと便利な収納スペースを兼ね備えており来客時にも玄関がキレイ、すっきりとした状態でお迎えできます!
◇バルコニー◇  開放的なバルコニーは太陽の温かな温もりをめいっぱい受け止めてくれます。太陽の光と爽やかな風を受けたお洗濯物はあっという間に乾き、取りこむ時には太陽の匂いを感じられそうですね。
◇バルコニー◇ 開放的なバルコニーは太陽の温かな温もりをめいっぱい受け止めてくれます。太陽の光と爽やかな風を受けたお洗濯物はあっという間に乾き、取りこむ時には太陽の匂いを感じられそうですね。
外観:◇玄関◇  散らかりがちな玄関もスッキリと保てる玄関収納は家の中に入る時一番最初に目に付く場所だから拘りたいですよね!木目調の落ち着いた雰囲気の色目が、家の雰囲気をそのまま表している家の顔です。
外観:◇玄関◇ 散らかりがちな玄関もスッキリと保てる玄関収納は家の中に入る時一番最初に目に付く場所だから拘りたいですよね!木目調の落ち着いた雰囲気の色目が、家の雰囲気をそのまま表している家の顔です。
キッチン◇  スライド収納付きのシステムキッチン。大きめのボールや圧力鍋、フライパンなどもすっきりと収納可能で、出し入れもスムーズ。料理器具や調味料など細かな物も取りやすく、お料理も捗ります!
キッチン◇ スライド収納付きのシステムキッチン。大きめのボールや圧力鍋、フライパンなどもすっきりと収納可能で、出し入れもスムーズ。料理器具や調味料など細かな物も取りやすく、お料理も捗ります!
外観:◇玄関◇  気持ちの良い一日の始まりは笑顔でスタートしたいですよね。玄関ホールがスッキリ広々としていると帰る時も出ていく時も気持ちが良いものです!
外観:◇玄関◇ 気持ちの良い一日の始まりは笑顔でスタートしたいですよね。玄関ホールがスッキリ広々としていると帰る時も出ていく時も気持ちが良いものです!
◇キッチン◇  「浄水器・食洗機」を標準装備したキッチンはナチュラルな色合いで飽きのこないデザインです。小窓かがあるので料理中の気になる匂いも換気が行えます。
◇キッチン◇ 「浄水器・食洗機」を標準装備したキッチンはナチュラルな色合いで飽きのこないデザインです。小窓かがあるので料理中の気になる匂いも換気が行えます。
◇リビング・ダイニング◇  想像以上の質感が訪れる者の心を離さない。フローリング素材、窓の配置、どれをとってもワンランク上の仕上がり。
◇リビング・ダイニング◇ 想像以上の質感が訪れる者の心を離さない。フローリング素材、窓の配置、どれをとってもワンランク上の仕上がり。
◇居室◇  光が取り込みやすい2面採光の居室。日当たり良好です。クローゼットを完備し、収納スペースも十分。
◇居室◇ 光が取り込みやすい2面採光の居室。日当たり良好です。クローゼットを完備し、収納スペースも十分。
◇居室◇  日差しを長時間受ける事が出来る暖かいお部屋です。もちろんペアガラスなので、遮音性にも優れ結露も発生しにくい構造。サッシ周りのカビが発生しにくくなりますね。
◇居室◇ 日差しを長時間受ける事が出来る暖かいお部屋です。もちろんペアガラスなので、遮音性にも優れ結露も発生しにくい構造。サッシ周りのカビが発生しにくくなりますね。
◇居室◇  日差しを長時間受ける事が出来る暖かいお部屋です。大きな窓からは、眩しいほど光が差し込んでおりました!
◇居室◇ 日差しを長時間受ける事が出来る暖かいお部屋です。大きな窓からは、眩しいほど光が差し込んでおりました!
◇居室◇  居室には収納クローゼットを完備!普段使いのお洋服や小物はもちろん、季節物のお洋服などもしっかりと整理整頓おしまい頂けます。居室空間をより広く隅々までお使いいただけますね。
◇居室◇ 居室には収納クローゼットを完備!普段使いのお洋服や小物はもちろん、季節物のお洋服などもしっかりと整理整頓おしまい頂けます。居室空間をより広く隅々までお使いいただけますね。
◇小屋裏収納スペース◇  普段使わない季節家電やレジャー用品、思い出のアルバムなどの保管にぴったりな小屋裏収納を完備。暮らしのスペースを広く保ちながら、収納力も確保できる賢い間取りです。
◇小屋裏収納スペース◇ 普段使わない季節家電やレジャー用品、思い出のアルバムなどの保管にぴったりな小屋裏収納を完備。暮らしのスペースを広く保ちながら、収納力も確保できる賢い間取りです。
◇浴室◇  ゆったりとした大き目の浴槽が嬉しい。毎日の疲れを取る癒しの場所だからこそこだわった空間です。リラックスできるよう優しいカラーをチョイスしました。時を忘れるほどのんびりできる空間に。
◇浴室◇ ゆったりとした大き目の浴槽が嬉しい。毎日の疲れを取る癒しの場所だからこそこだわった空間です。リラックスできるよう優しいカラーをチョイスしました。時を忘れるほどのんびりできる空間に。
周辺環境:そうてつローゼン山手台店(そうてつローゼン山手台店まで650m)
周辺環境:そうてつローゼン山手台店(そうてつローゼン山手台店まで650m)
周辺環境:エーコープ中田店(エーコープ中田店まで1100m)
周辺環境:エーコープ中田店(エーコープ中田店まで1100m)
周辺環境:領家四丁目公園(領家四丁目公園まで350m)
周辺環境:領家四丁目公園(領家四丁目公園まで350m)
周辺環境:しらゆり公園(しらゆり公園まで400m)
周辺環境:しらゆり公園(しらゆり公園まで400m)
周辺環境:渡辺こどもクリニック(渡辺こどもクリニックまで1300m)
周辺環境:渡辺こどもクリニック(渡辺こどもクリニックまで1300m)
周辺環境:宮の台幼稚園(宮の台幼稚園まで1100m)
周辺環境:宮の台幼稚園(宮の台幼稚園まで1100m)
周辺環境:横浜市立鳥が丘小学校(横浜市立鳥が丘小学校まで850m)
周辺環境:横浜市立鳥が丘小学校(横浜市立鳥が丘小学校まで850m)
周辺環境:横浜市立領家中学校(横浜市立領家中学校まで350m)
周辺環境:横浜市立領家中学校(横浜市立領家中学校まで350m)
周辺環境:白百合愛児園(白百合愛児園まで550m)
周辺環境:白百合愛児園(白百合愛児園まで550m)

この物件のココがオススメ!

BL「中田」駅から徒歩14分。全室2面採光なので、明るく通風良好なお住まいです。プライバシーに配慮した2階リビング。季節物の収納等に便利な小屋裏収納付き。

お気軽にどうぞ!

資料請求 現地見学 電話でお問い合わせ
0120-150-580

地図

申し訳ありません
こちらは会員限定機能です

会員登録で利用できる6つの便利機能

詳しく見る

お気軽にどうぞ!

資料請求 現地見学 電話でお問い合わせ
0120-150-580

頭金0万円・金利0.495%の場合

ボーナス時(年2回)お支払額

0

この物件の月々のお支払額

77,861

年収に対する返済比率

31

  • ※会員登録し、詳細情報を記入されますと、全ての物件で自動的に金額が表示され、大変便利です。
  • ※まだ会員登録をされていない方は、下記チェック欄をご記入ください。
  • ※上記計算は物件価格2,780万円+諸経費 8%込みの金額による結果となります。
  • ※返済金額はあくまでも目安です。

お客様の条件からシミュレーションするには?

会員登録
マイページから登録

金利

直接入力する

ボーナス払い(年2回)

返済年数

頭金

直接入力する

 万円(半角数字)

年収

 万円(半角数字)

約650m

スーパー

周辺環境:そうてつローゼン山手台店(そうてつローゼン山手台店まで650m)

スーパー

約650m

約1,100m

スーパー

周辺環境:エーコープ中田店(エーコープ中田店まで1100m)

スーパー

約1,100m

約350m

公園

周辺環境:領家四丁目公園(領家四丁目公園まで350m)

公園

約350m

約400m

公園

周辺環境:しらゆり公園(しらゆり公園まで400m)

公園

約400m

約1,300m

病院

周辺環境:渡辺こどもクリニック(渡辺こどもクリニックまで1300m)

病院

約1,300m

約1,100m

幼稚園・保育園

周辺環境:宮の台幼稚園(宮の台幼稚園まで1100m)

幼稚園・保育園

約1,100m

約850m

小学校

周辺環境:横浜市立鳥が丘小学校(横浜市立鳥が丘小学校まで850m)

小学校

約850m

約350m

中学校

周辺環境:横浜市立領家中学校(横浜市立領家中学校まで350m)

中学校

約350m

約550m

幼稚園・保育園

周辺環境:白百合愛児園(白百合愛児園まで550m)

幼稚園・保育園

約550m

価格 2,780万円
物件種別 新築一戸建て
間取り 1SLDK
所在地 横浜市泉区 白百合2丁目
交通
  • ブルーライン「中田」駅 徒歩 14 分
  • 東海道本線「戸塚」駅 バス停「白百合団地」まで 徒歩 5 分 バス利用 12分
土地面積 52.57㎡
建物面積 51.23㎡
学区 鳥が丘小学校、領家中学校
用途地域 第一種低層住居専用
建ぺい率 50%
容積率 100%
地目 宅地
駐車場 有り カースペース
接道 北西4m
権利 所有権
私道面積 無し
セットバック 無し
建物構造 木造
建物階数 2階
築年月 2025年02月
入居日 即時
都市計画 市街化区域
取引態様 仲介
物件番号 46098
設備 公営水道、公共下水、駐車場1台、緑豊かな住宅地、閑静な住宅地、スーパーが近い(10分以内)、2沿線以上利用可、中学校徒歩10分以内、公園5分以内、システムキッチン、ガス3口、食器洗い機付き、I型キッチン、ユニットバス、追い焚き、浴室乾燥機、ウォシュレット、トイレ2ヶ所、浴室に窓、暖房便座、浴室暖房、バルコニー、2階建、LDK15畳以上、採光3面、全室南向き、全室2面採光、フローリング、クローゼット、収納、下駄箱、屋根裏収納、全居室収納、シャンプドレッサー付き、モニタ付きインターフォン、24時間換気システム、建物10年保証
建築確認番号 第24KAK建確02258号
特記事項 宅地造成工事規制区域 高度地区 準防火地域 日影制限 敷地面積最低限度 建物高さ10m以下 過小宅地 建築基準法第22条による区域 傾斜地含 敷地内に隣地の給水管が通っている(覚書有) 宅地造成工事規制区域:有/高度地区:有/準防火地域:有/日影制限:有/敷地面積最低限度:有/高さ限度:有/過小宅地 建築基準法第22条による区域 傾斜地含 敷地内に隣地の給水管が通っている(覚書有)。 /
備考 BL「中田」駅から徒歩14分。全室2面採光なので、明るく通風良好なお住まいです。プライバシーに配慮した2階リビング。季節物の収納等に便利な小屋裏収納付き。

こだわりポイント

  • 食器洗い洗浄乾燥機
  • 浴室換気乾燥暖房機
  • 急行電車でスピード通勤
  • 2沿線利用であんしん通勤
  • 大人の二人暮らし
  • 2階建て住宅限定
  • LDKは2階に
  • LDK15帖以上
  • ロフト・小屋裏収納
  • 大規模公園10分以内
  • スーパー10分以内
  • コンビニ10分以内
  • 保育園10分以内
  • 公園10分以内
  • 都市ガス

お気軽にどうぞ!

資料請求 現地見学 電話でお問い合わせ
0120-150-580

このエリアでお探しの方へ

今週末内覧会開催中!「中田」駅徒歩13分 中古一戸建て 全室2面採光

ブルーライン「中田」駅 徒歩 13 分

東海道本線「戸塚」駅 バス停「西が岡三丁目」まで 徒歩 5 分 バス利用 14分

横浜市泉区 白百合3丁目

3,780万円

4LDK

今週末モデルハウス見学会開催中!「中田」駅利用 新築一戸建て 中庭

ブルーライン「中田」駅 徒歩 18 分

東海道本線「戸塚」駅 バス停「住宅前」まで 徒歩 11 分 バス利用 14分

横浜市泉区 中田南5丁目

4,280万円

3SLDK

今週末モデルハウス見学会開催中!「立場」駅徒歩13分 新築一戸建て 主寝室8帖

ブルーライン「立場」駅 徒歩 13 分

ブルーライン「中田」駅 徒歩 18 分

横浜市泉区 中田西3丁目

4,780万円

4LDK

建物完成しました! 今週末内覧会開催中!「中田」駅徒歩9分 新築一戸建て(2)カースペース2台

ブルーライン「中田」駅 徒歩 9 分

ブルーライン「踊場」駅 徒歩 19 分

横浜市泉区 中田東4丁目

5,580万円

4LDK

建物完成しました! 今週末内覧会開催中!「中田」駅徒歩9分 新築一戸建て(1)カースペース2台

ブルーライン「中田」駅 徒歩 9 分

ブルーライン「踊場」駅 徒歩 19 分

横浜市泉区 中田東4丁目

5,680万円

4LDK

今週末モデルハウス見学会開催中!「中田」駅徒歩4分 新築一戸建て(3) カースペース2台

ブルーライン「中田」駅 徒歩 4 分

東海道本線「戸塚」駅 バス停「踊場」まで 徒歩 8 分 バス利用 5分

横浜市泉区 中田南2丁目

5,990万円

4LDK

今週末モデルハウス見学会開催中!「中田」駅徒歩4分 新築一戸建て(1) カースペース2台

ブルーライン「中田」駅 徒歩 4 分

東海道本線「戸塚」駅 バス停「踊場」まで 徒歩 8 分 バス利用 5分

横浜市泉区 中田南2丁目

5,990万円

4LDK

今週末モデルハウス見学会開催中!「中田」駅徒歩4分 新築一戸建て(2) カースペース2台

ブルーライン「中田」駅 徒歩 4 分

東海道本線「戸塚」駅 バス停「踊場」まで 徒歩 8 分 バス利用 5分

横浜市泉区 中田南2丁目

6,290万円

4LDK

値下げしました!今週末モデルハウス見学会開催中!「緑園都市」駅利用 新築一戸建て SIC・WIC完備

いずみ野線「緑園都市」駅 徒歩 21 分

東海道本線「戸塚」駅 バス停「岡津」まで 徒歩 4 分 バス利用 12分

横浜市泉区 岡津町

4,280万円

4LDK

今週末モデルハウス見学会開催中!「立場」駅利用 新築一戸建て 角地

ブルーライン「立場」駅 徒歩 17 分

いずみ野線「いずみ中央」駅 徒歩 22 分

横浜市泉区 和泉が丘2丁目

4,480万円

3LDK

今週末モデルハウス見学会開催中!「弥生台」駅徒歩13分 新築一戸建て(20) ルーフバルコニー

いずみ野線「弥生台」駅 徒歩 13 分

いずみ野線「緑園都市」駅 徒歩 23 分

横浜市泉区 新橋町

4,580万円

4LDK

今週末モデルハウス見学会開催中!「弥生台」駅徒歩13分 新築一戸建て(21) ルーフバルコニー

いずみ野線「弥生台」駅 徒歩 13 分

いずみ野線「緑園都市」駅 徒歩 23 分

横浜市泉区 新橋町

4,680万円

4LDK

お気軽にどうぞ!

資料請求 現地見学 電話でお問い合わせ
0120-150-580
来店予約