ようこそ!ゲストさん
お気に入り
保存した検索条件
閲覧履歴
会員登録
ログイン
0120-150-580
営業時間:午前9:00~午後9:00
詳細条件
-
こだわり
該当件数
1,395件
値下げしました!「本郷台」駅徒歩15分 新築一戸建て(A)ルーフバルコニー付き
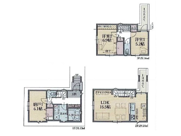
間取り
値下げしました
建物完成しましたのでご見学頂けます!
新築一戸建て
4,180万円
3SLDK
2026.02.19更新
値下げしました! 「南町田グランベリーパーク」駅利用 新築一戸建て 床暖房付
申し訳ありません こちらは会員限定物件です
会員登録で利用できる6つの便利機能
川崎市高津区東野川1丁目 新築一戸建 4180万円 E号棟
2SLDK
2026.02.27更新
川崎市高津区東野川1丁目 新築一戸建 4180万円 F号棟
2026.03.03更新
川崎市多摩区長沢4丁目 新築一戸建 4180万円 1号棟
4LDK
横浜市鶴見区佃野町 新築一戸建 4180万円
3LDK
今週末モデルハウス見学会開催中!ブルーライン「弘明寺」駅徒歩14分 新築一戸建て エコジョーズ
2026.02.26更新
川崎市宮前区平5丁目 新築一戸建 4180万円 3号棟
2026.02.20更新
川崎市宮前区平5丁目 新築一戸建 4180万円 1号棟
横浜市西区西戸部町2丁目 新築一戸建 4180万円 2号棟
横浜市西区西戸部町2丁目 新築一戸建 4180万円 1号棟
今週末モデルハウス見学会開催中!「三ツ境」駅利用 新築一戸建て(2) 長期優良住宅
川崎市宮前区西野川2丁目 新築一戸建 4180万円 E号棟
2LDK+2S