1. トップページ
  2. 建物完成しました! 今週末内覧会開催中!「上永谷」駅徒歩9分 新築一戸建て(A) 閑静な住宅地

建物完成しました! 今週末内覧会開催中!「上永谷」駅徒歩9分 新築一戸建て(A) 閑静な住宅地

価格
4,480万円
物件種別
新築一戸建て
間取り
2SLDK
所在地
横浜市港南区 上永谷1丁目
交通
  • ブルーライン「上永谷」駅 徒歩 9 分
  • 京浜急行本線「上大岡」駅 バス停「月見ヶ丘団地」まで 徒歩 4 分 バス利用 7分
土地面積
80.70㎡
建物面積
72.04㎡
  • 前回情報更新日 2026.03.12
  • 次回情報更新予定日 2026.03.26
資料請求 現地見学 電話でお問い合わせ
0120-150-580
外観:良好な住環境が保たれたエリア。低層の一戸建を中心とした街並みが整然と続き周辺は高い建物が建っておらず、採光や開放性に恵まれ、空が広く緑の多い閑静な趣を感じる環境です。
外観:良好な住環境が保たれたエリア。低層の一戸建を中心とした街並みが整然と続き周辺は高い建物が建っておらず、採光や開放性に恵まれ、空が広く緑の多い閑静な趣を感じる環境です。
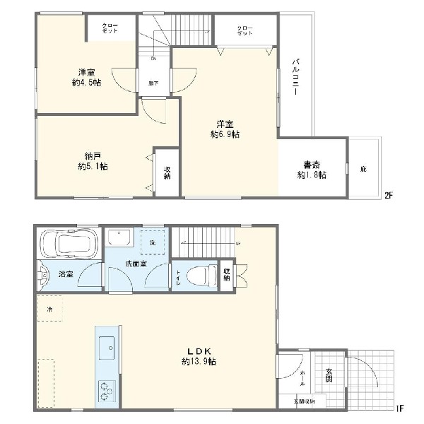
間取り:A棟間取図
間取り:A棟間取図
区画図
区画図
家具の配置がしやすい広さを確保した拘りの間取りです。(本画像はCGで作成しており、実際に現地に家具はおかれておりません。また価格に家具は含まれておりません。)
家具の配置がしやすい広さを確保した拘りの間取りです。(本画像はCGで作成しており、実際に現地に家具はおかれておりません。また価格に家具は含まれておりません。)
外観:深く豊かな緑と爽快な青い空を感じるまさに横浜に暮らす心地よさを存分に堪能いただける邸宅です。グレードの高い設備仕様が標準装備のデザイン住宅で快適で便利な生活をお送り頂けます。
外観:深く豊かな緑と爽快な青い空を感じるまさに横浜に暮らす心地よさを存分に堪能いただける邸宅です。グレードの高い設備仕様が標準装備のデザイン住宅で快適で便利な生活をお送り頂けます。
オープンでのびやかな空間を生み出す、こだわりの広がりとゆとり。家族と過ごす時間を大切にしたい方にぴったりの明るくゆとりある住空間です。窓からの日差しがリビングの隅々までしっかりと届きます!
オープンでのびやかな空間を生み出す、こだわりの広がりとゆとり。家族と過ごす時間を大切にしたい方にぴったりの明るくゆとりある住空間です。窓からの日差しがリビングの隅々までしっかりと届きます!
外観:開放感のある現地で、前面道路よりも少し高くなっておりますので、プライベート感も保たれます!高くなっている分、日当りや風通しも良く快適な生活が待っています!
外観:開放感のある現地で、前面道路よりも少し高くなっておりますので、プライベート感も保たれます!高くなっている分、日当りや風通しも良く快適な生活が待っています!
リビングを見渡せるカウンターキッチンでお子様の様子を伺いながら食事の支度が出来ます。家族の気配を感じられる、そんな空間を演出できるキッチンです。
リビングを見渡せるカウンターキッチンでお子様の様子を伺いながら食事の支度が出来ます。家族の気配を感じられる、そんな空間を演出できるキッチンです。
外観:四季を通じて自然と触れ合えるスポットが周辺には盛りだくさん!お散歩やジョギング、週末のご家族での遊びに最適です。目の前に広がる開放感とゆとり、暮らしの夢を育む理想の住まいがここにはあります。
外観:四季を通じて自然と触れ合えるスポットが周辺には盛りだくさん!お散歩やジョギング、週末のご家族での遊びに最適です。目の前に広がる開放感とゆとり、暮らしの夢を育む理想の住まいがここにはあります。
大切なご家族が集まるLDKはこだわりたいですね!休日はおひさまの光をたっぷりと取りこめるリビングでゆったりと過ごしませんか?子供たちが元気に笑いながら走り回っている姿が目に浮かぶ空間です。
大切なご家族が集まるLDKはこだわりたいですね!休日はおひさまの光をたっぷりと取りこめるリビングでゆったりと過ごしませんか?子供たちが元気に笑いながら走り回っている姿が目に浮かぶ空間です。
外観:気持ちの良い一日の始まりは笑顔でスタートしたいですよね。玄関ホールがスッキリ広々としていると帰る時も出ていく時も気持ちが良いものです!
外観:気持ちの良い一日の始まりは笑顔でスタートしたいですよね。玄関ホールがスッキリ広々としていると帰る時も出ていく時も気持ちが良いものです!
光が沢山取り込める大きな窓。日差しを長時間受ける事が出来る暖かいお部屋です。もちろんペアガラスなので、遮音性に優れ、結露も発生しにくい構造。サッシ周りのカビが発生しにくくなりますね。
光が沢山取り込める大きな窓。日差しを長時間受ける事が出来る暖かいお部屋です。もちろんペアガラスなので、遮音性に優れ、結露も発生しにくい構造。サッシ周りのカビが発生しにくくなりますね。
2面採光でお部屋の隅々まで明るい居室。おひさまの光を、爽やかな風をたっぷりと取り込めます。居室内はいつも明るい印象ですので、気持ちの良い朝を迎えられそう。毎日の生活も自然と明るくなりますね。
2面採光でお部屋の隅々まで明るい居室。おひさまの光を、爽やかな風をたっぷりと取り込めます。居室内はいつも明るい印象ですので、気持ちの良い朝を迎えられそう。毎日の生活も自然と明るくなりますね。
光が取り込みやすい2面採光の居室。日当たり良好です。クローゼットを完備し、収納スペースも十分。初めてのお子様にとっての「自分の部屋」。学習デスクやベッドの配置もラクラクです。
光が取り込みやすい2面採光の居室。日当たり良好です。クローゼットを完備し、収納スペースも十分。初めてのお子様にとっての「自分の部屋」。学習デスクやベッドの配置もラクラクです。
ゆったりとくつろげる広々バス。足までしっかりと伸ばせる浴槽は、心身ともにしっかりと疲れを癒してくれます。お子様とも一緒に浸かれ、ご家族みんなで一緒にバスタイムを楽しめますね♪
ゆったりとくつろげる広々バス。足までしっかりと伸ばせる浴槽は、心身ともにしっかりと疲れを癒してくれます。お子様とも一緒に浸かれ、ご家族みんなで一緒にバスタイムを楽しめますね♪
ゆとりのある洗面スペースで、朝の身支度やお掃除・片付けも快適スムーズです。3面鏡で髪のセットやお化粧もストレスなくこなせ、朝から気分良く通勤通学に向かえそうですね!
ゆとりのある洗面スペースで、朝の身支度やお掃除・片付けも快適スムーズです。3面鏡で髪のセットやお化粧もストレスなくこなせ、朝から気分良く通勤通学に向かえそうですね!
スッキリとしたデザインのトイレは明かり取りの窓からも光が取り込まれ日中は電気を消していてもご使用いただける明るさとなっております。
スッキリとしたデザインのトイレは明かり取りの窓からも光が取り込まれ日中は電気を消していてもご使用いただける明るさとなっております。
周辺環境:イトーヨーカドー上永谷店(イトーヨーカドー上永谷店まで1000m)
周辺環境:イトーヨーカドー上永谷店(イトーヨーカドー上永谷店まで1000m)
周辺環境:ブルーライン上永谷駅(ブルーライン上永谷駅まで750m)
周辺環境:ブルーライン上永谷駅(ブルーライン上永谷駅まで750m)
周辺環境:横浜市立相武山小学校(横浜市立相武山小学校まで190m)
周辺環境:横浜市立相武山小学校(横浜市立相武山小学校まで190m)
周辺環境:横浜市立東永谷中学校(横浜市立東永谷中学校まで450m)
周辺環境:横浜市立東永谷中学校(横浜市立東永谷中学校まで450m)
周辺環境:勧永公園(勧永公園まで350m)
周辺環境:勧永公園(勧永公園まで350m)
周辺環境:京急キッズランド上永谷保育園(京急キッズランド上永谷保育園まで650m)
周辺環境:京急キッズランド上永谷保育園(京急キッズランド上永谷保育園まで650m)
周辺環境:京急百貨店(京急百貨店まで2000m)
周辺環境:京急百貨店(京急百貨店まで2000m)
周辺環境:室の木幼稚園(室の木幼稚園まで450m)
周辺環境:室の木幼稚園(室の木幼稚園まで450m)
周辺環境:竹田こどもクリニック(竹田こどもクリニックまで850m)
周辺環境:竹田こどもクリニック(竹田こどもクリニックまで850m)

この物件のココがオススメ!

BL「上永谷」駅徒歩9分。閑静な住宅地。前道幅員約5.8mで開放感あり。LDKはリビング階段でご家族の様子に気を配ることができます。納戸も居室としてご利用可能。

お気軽にどうぞ!

資料請求 現地見学 電話でお問い合わせ
0120-150-580

地図

申し訳ありません
こちらは会員限定機能です

会員登録で利用できる6つの便利機能

詳しく見る

お気軽にどうぞ!

資料請求 現地見学 電話でお問い合わせ
0120-150-580

頭金0万円・金利0.495%の場合

ボーナス時(年2回)お支払額

0

この物件の月々のお支払額

125,480

年収に対する返済比率

50

  • ※会員登録し、詳細情報を記入されますと、全ての物件で自動的に金額が表示され、大変便利です。
  • ※まだ会員登録をされていない方は、下記チェック欄をご記入ください。
  • ※上記計算は物件価格4,480万円+諸経費 8%込みの金額による結果となります。
  • ※返済金額はあくまでも目安です。

お客様の条件からシミュレーションするには?

会員登録
マイページから登録

金利

直接入力する

ボーナス払い(年2回)

返済年数

頭金

直接入力する

 万円(半角数字)

年収

 万円(半角数字)

約1,000m

スーパー

周辺環境:イトーヨーカドー上永谷店(イトーヨーカドー上永谷店まで1000m)

スーパー

約1,000m

約750m

周辺環境:ブルーライン上永谷駅(ブルーライン上永谷駅まで750m)

約750m

約190m

小学校

周辺環境:横浜市立相武山小学校(横浜市立相武山小学校まで190m)

小学校

約190m

約450m

中学校

周辺環境:横浜市立東永谷中学校(横浜市立東永谷中学校まで450m)

中学校

約450m

約350m

公園

周辺環境:勧永公園(勧永公園まで350m)

公園

約350m

約650m

幼稚園・保育園

周辺環境:京急キッズランド上永谷保育園(京急キッズランド上永谷保育園まで650m)

幼稚園・保育園

約650m

約2,000m

ショッピングセンター

周辺環境:京急百貨店(京急百貨店まで2000m)

ショッピングセンター

約2,000m

約450m

幼稚園・保育園

周辺環境:室の木幼稚園(室の木幼稚園まで450m)

幼稚園・保育園

約450m

約850m

病院

周辺環境:竹田こどもクリニック(竹田こどもクリニックまで850m)

病院

約850m

価格 4,480万円
物件種別 新築一戸建て
間取り 2SLDK
所在地 横浜市港南区 上永谷1丁目
交通
  • ブルーライン「上永谷」駅 徒歩 9 分
  • 京浜急行本線「上大岡」駅 バス停「月見ヶ丘団地」まで 徒歩 4 分 バス利用 7分
土地面積 80.70㎡
建物面積 72.04㎡
学区 相武山小学校、東永谷中学校
用途地域 第一種低層住居専用
建ぺい率 60%
容積率 100%
地目 宅地
駐車場 有り カースペース
接道 北東5.8m
権利 所有権
私道面積 無し
セットバック 無し
建物構造 木造
建物階数 2階
築年月 2025年06月
入居日 即時
都市計画 市街化区域
取引態様 仲介
物件番号 48057-A
設備 公営水道、公共下水、緑豊かな住宅地、閑静な住宅地、2沿線以上利用可、小学校徒歩10分以内、中学校徒歩10分以内、公園5分以内、駐車場1台、システムキッチン、ガス3口、I型キッチン、ユニットバス、追い焚き、ウォシュレット、浴室に窓、暖房便座、バルコニー、2階建、全室2面採光、フローリング、全室フローリング、リビング階段、クローゼット、収納、床下収納、下駄箱、全居室収納、シャンプドレッサー付き、モニタ付きインターフォン、インターフォン、24時間換気システム、建物10年保証
建築確認番号 -
特記事項 宅地造成工事規制区域 高度地区 準防火地域 日影制限 敷地内段差 敷地面積最低限度 建物高さ10m以下 建築基準法第22条区域 横浜市建築基準条例第3条による制限有 建物建築・再建築の際、深基礎、基礎杭、擁壁の補修・再構築、外壁後退等の対策が必要となる場合があります 傾斜地有 過小宅地 宅地造成工事規制区域:有/高度地区:有/準防火地域:有/日影制限:有/敷地内段差:有/敷地面積最低限度:有/高さ限度:有/建築基準法第22条区域 横浜市建築基準条例第3条による制限有 建物建築・再建築の際、深基礎、基礎杭、擁壁の補修・再構築、外壁後退等の対策が必要となる場合があります 傾斜地有 過小宅地。 /
備考 BL「上永谷」駅徒歩9分。閑静な住宅地。前道幅員約5.8mで開放感あり。LDKはリビング階段でご家族の様子に気を配ることができます。納戸も居室としてご利用可能。

こだわりポイント

  • 子供の多い街に住む
  • 大人の二人暮らし
  • LDKは1階に
  • 2階建て住宅限定
  • リビングイン階段
  • 小学校10分以内
  • 保育園10分以内
  • 幼稚園10分以内
  • 公園10分以内
  • 都市ガス
  • 道路広々(5m以上)

お気軽にどうぞ!

資料請求 現地見学 電話でお問い合わせ
0120-150-580

このエリアでお探しの方へ

値下げしました!今週末モデルハウス見学会開催中!「上永谷」駅利用 新築一戸建て 角地 全室2面採光

ブルーライン「上永谷」駅 バス停「東永谷」まで 徒歩 7 分 バス利用 6分

横須賀線「東戸塚」駅 バス停「芹が谷山谷」まで 徒歩 10 分 バス利用 15分

横浜市港南区 東永谷3丁目

4,190万円

4LDK

今週末モデルハウス見学会開催中!「上永谷」駅利用 新築一戸建て 全居室6帖以上

ブルーライン「上永谷」駅 徒歩 16 分

京浜急行本線「上大岡」駅 バス停「公務員住宅入口」まで 徒歩 7 分 バス利用 12分

横浜市港南区 野庭町

4,380万円

3LDK

建物完成しました! 今週末内覧会開催中!「上永谷」駅徒歩9分 新築一戸建て(B) 閑静な住宅地

ブルーライン「上永谷」駅 徒歩 9 分

京浜急行本線「上大岡」駅 バス停「月見ヶ丘団地」まで 徒歩 4 分 バス利用 7分

横浜市港南区 上永谷1丁目

4,480万円

2SLDK

値下げしました!内覧会開催中!「港南中央」駅徒歩6分 中古一戸建て R7年11月リノベーション完了

ブルーライン「港南中央」駅 徒歩 6 分

京浜急行本線「上大岡」駅 徒歩 18 分

横浜市港南区 港南3丁目

4,180万円

3LDK

今週末内覧会開催中!「下永谷」駅利用 中古一戸建て 2LDK+2LDK

ブルーライン「下永谷」駅 徒歩 20 分

横須賀線「東戸塚」駅 バス停「芹が谷団地前」まで 徒歩 8 分 バス利用 10分

横浜市港南区 芹が谷5丁目

4,199万円

4LDK

今週末モデルハウス見学会開催中!「上大岡」駅利用 新築一戸建て(2) エコジョーズ

京浜急行本線「上大岡」駅 徒歩 17 分

横須賀線「東戸塚」駅 バス停「南高校前」まで 徒歩 6 分 バス利用 20分

横浜市港南区 大久保3丁目

4,680万円

2LDK+2S

値下げしました!今週末内覧会開催中! 「下永谷」駅利用 新築一戸建て 床暖房付き ペアガラス

ブルーライン「下永谷」駅 徒歩 15 分

横須賀線「東戸塚」駅 バス停「般若寺橋」まで 徒歩 10 分 バス利用 10分

横浜市港南区 下永谷5丁目

4,698万円

4LDK

値下げしました!今週末内覧会開催中!「上永谷」駅徒歩15分 中古一戸建て 閑静な住宅地

ブルーライン「上永谷」駅 徒歩 15 分

京浜急行本線「上大岡」駅 バス停「日野サザンポート前」まで 徒歩 4 分 バス利用 13分

横浜市港南区 野庭町

3,480万円

3LDK

今週末モデルハウス見学会開催中!「上永谷」駅利用 新築一戸建て 小屋裏収納5.5帖

ブルーライン「上永谷」駅 徒歩 25 分

京浜急行本線「上大岡」駅 バス停「芹が谷団地前」まで 徒歩 5 分 バス利用 17分

横浜市港南区 芹が谷5丁目

3,480万円

3LDK

値下げしました!今週末モデルハウス見学会開催中!「上永谷」駅徒歩15分 新築一戸建て(2) ロフト

ブルーライン「上永谷」駅 徒歩 15 分

京浜急行本線「上大岡」駅 バス停「桜台」まで 徒歩 11 分 バス利用 8分

横浜市港南区 東永谷3丁目

3,530万円

3LDK

値下げしました!「上永谷」駅徒歩8分 新築一戸建て(2) WIC・パントリー完備

ブルーライン「上永谷」駅 徒歩 8 分

京浜急行本線「上大岡」駅 バス停「丸山台」まで 徒歩 4 分 バス利用 20分

横浜市港南区 丸山台2丁目

4,990万円

3SLDK

今週末モデルハウス見学会開催中!「上永谷」駅徒歩12分 新築一戸建て 20帖LDK SIC WIC

ブルーライン「上永谷」駅 徒歩 12 分

京浜急行本線「上大岡」駅 バス停「天谷」まで 徒歩 5 分 バス利用 18分

横浜市港南区 野庭町

5,380万円

3LDK

お気軽にどうぞ!

資料請求 現地見学 電話でお問い合わせ
0120-150-580
来店予約