1. トップページ
  2. 今週末モデルハウス見学会開催中!「高田」駅利用 新築一戸建て(2-1) 全室2面採光

今週末モデルハウス見学会開催中!「高田」駅利用 新築一戸建て(2-1) 全室2面採光

価格
7,690万円
物件種別
新築一戸建て
間取り
4LDK
所在地
横浜市港北区 新吉田東5丁目
交通
  • グリーンライン「高田」駅 徒歩 20 分
  • 横浜線「新横浜」駅 バス停「新田農協前」まで 徒歩 2 分 バス利用 21分
土地面積
112.91㎡
建物面積
98.95㎡
  • 前回情報更新日 2026.04.28
  • 次回情報更新予定日 2026.05.12
資料請求 現地見学 電話でお問い合わせ
0120-150-580
外観:第一種低層住居専用地域の良好な住環境が保たれたエリア。低層の一戸建てを中心とした街並みが整然と続き、採光や開放性に恵まれています。(本画像は外構一部をCGで作成しております。)
外観:第一種低層住居専用地域の良好な住環境が保たれたエリア。低層の一戸建てを中心とした街並みが整然と続き、採光や開放性に恵まれています。(本画像は外構一部をCGで作成しております。)
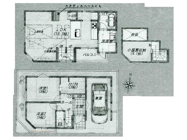
間取り:2-1号棟間取図
間取り:2-1号棟間取図
区画図
区画図
家族と過ごす時間を大切にしたい方にぴったりのゆとりある住空間です。(本画像はCGで作成しており、実際に現地に家具はおかれておりません。また価格に家具は含まれておりません。)
家族と過ごす時間を大切にしたい方にぴったりのゆとりある住空間です。(本画像はCGで作成しており、実際に現地に家具はおかれておりません。また価格に家具は含まれておりません。)
外観:柔らかな風と豊かな緑に包まれた落ち着きある閑静な住宅街に、3棟の邸宅が誕生です。(本画像は外構一部をCGで作成しております。)
外観:柔らかな風と豊かな緑に包まれた落ち着きある閑静な住宅街に、3棟の邸宅が誕生です。(本画像は外構一部をCGで作成しております。)
周囲に高い建物のないエリアだから、バルコニーに出れば景色を広く見渡せて解放的です。空を広く感じながら思わず深呼吸したくなります。
周囲に高い建物のないエリアだから、バルコニーに出れば景色を広く見渡せて解放的です。空を広く感じながら思わず深呼吸したくなります。
外観:第一種低層住居専用地域の良好な住環境が保たれたエリア。低層の一戸建てを中心とした街並みが整然と続き、採光や開放性に恵まれています。(本画像は外構一部をCGで作成しております。)
外観:第一種低層住居専用地域の良好な住環境が保たれたエリア。低層の一戸建てを中心とした街並みが整然と続き、採光や開放性に恵まれています。(本画像は外構一部をCGで作成しております。)
家族と過ごす時間を大切にしたい方にぴったりのゆとりある住空間です。窓からの日差しがリビングの隅々までしっかりと届きます。
家族と過ごす時間を大切にしたい方にぴったりのゆとりある住空間です。窓からの日差しがリビングの隅々までしっかりと届きます。
家族と過ごす時間を大切にしたい方にぴったりのゆとりある住空間です。窓からの日差しがリビングの隅々までしっかりと届きます。
家族と過ごす時間を大切にしたい方にぴったりのゆとりある住空間です。窓からの日差しがリビングの隅々までしっかりと届きます。
背面にカップボードが備え付けされています。システムキッチンと一体感あるカラーで見た目もgood。たまにしか使わない調理家電の収納に重宝します。
背面にカップボードが備え付けされています。システムキッチンと一体感あるカラーで見た目もgood。たまにしか使わない調理家電の収納に重宝します。
「どういう家具を置こうかな」とわくわくする。自分好みのこだわりのお部屋にしてオンリーワンの部屋でゆったりと寛ごう。
「どういう家具を置こうかな」とわくわくする。自分好みのこだわりのお部屋にしてオンリーワンの部屋でゆったりと寛ごう。
「どういう家具を置こうかな」とわくわくする。自分好みのこだわりのお部屋にしてオンリーワンの部屋でゆったりと寛ごう。
「どういう家具を置こうかな」とわくわくする。自分好みのこだわりのお部屋にしてオンリーワンの部屋でゆったりと寛ごう。
「どういう家具を置こうかな」とわくわくする。自分好みのこだわりのお部屋にしてオンリーワンの部屋でゆったりと寛ごう。
「どういう家具を置こうかな」とわくわくする。自分好みのこだわりのお部屋にしてオンリーワンの部屋でゆったりと寛ごう。
鏡の裏に収納棚を確保した三面鏡を採用。化粧品や歯ブラシなどを機能的に収納。便利な床下収納付き。
鏡の裏に収納棚を確保した三面鏡を採用。化粧品や歯ブラシなどを機能的に収納。便利な床下収納付き。
洗浄機能付き便座を標準装備。便座保温機能もあるので寒い季節も安心。
洗浄機能付き便座を標準装備。便座保温機能もあるので寒い季節も安心。
ユニットバスはゆったりとくつろげる1坪タイプ。足までしっかりと伸ばせる浴槽は、心身ともにしっかりと疲れを癒してくれます。お子様と一緒の入浴でも充分な広さです。
ユニットバスはゆったりとくつろげる1坪タイプ。足までしっかりと伸ばせる浴槽は、心身ともにしっかりと疲れを癒してくれます。お子様と一緒の入浴でも充分な広さです。
周辺環境:トレッサ横浜(トレッサ横浜まで4100m)
周辺環境:トレッサ横浜(トレッサ横浜まで4100m)
周辺環境:オーケー新吉田店(オーケー新吉田店まで1200m)
周辺環境:オーケー新吉田店(オーケー新吉田店まで1200m)
周辺環境:いなげや横浜綱島店(いなげや横浜綱島店まで1500m)
周辺環境:いなげや横浜綱島店(いなげや横浜綱島店まで1500m)

この物件のココがオススメ!

GL「高田」駅利用。緑豊かで、閑静な住環境。全室2面採光で明るく、通風良好なお住まいです。食洗機・浴室乾燥機、浄水システム他設備充実。

お気軽にどうぞ!

資料請求 現地見学 電話でお問い合わせ
0120-150-580

地図

申し訳ありません
こちらは会員限定機能です

会員登録で利用できる6つの便利機能

詳しく見る

お気軽にどうぞ!

資料請求 現地見学 電話でお問い合わせ
0120-150-580

頭金0万円・金利0.495%の場合

ボーナス時(年2回)お支払額

0

この物件の月々のお支払額

215,402

年収に対する返済比率

86

  • ※会員登録し、詳細情報を記入されますと、全ての物件で自動的に金額が表示され、大変便利です。
  • ※まだ会員登録をされていない方は、下記チェック欄をご記入ください。
  • ※上記計算は物件価格7,690万円+諸経費 8%込みの金額による結果となります。
  • ※返済金額はあくまでも目安です。

お客様の条件からシミュレーションするには?

会員登録
マイページから登録

金利

直接入力する

ボーナス払い(年2回)

返済年数

頭金

直接入力する

 万円(半角数字)

年収

 万円(半角数字)

約4,100m

ショッピングセンター

周辺環境:トレッサ横浜(トレッサ横浜まで4100m)

ショッピングセンター

約4,100m

約1,200m

スーパー

周辺環境:オーケー新吉田店(オーケー新吉田店まで1200m)

スーパー

約1,200m

約1,500m

スーパー

周辺環境:いなげや横浜綱島店(いなげや横浜綱島店まで1500m)

スーパー

約1,500m

価格 7,690万円
物件種別 新築一戸建て
間取り 4LDK
所在地 横浜市港北区 新吉田東5丁目
交通
  • グリーンライン「高田」駅 徒歩 20 分
  • 横浜線「新横浜」駅 バス停「新田農協前」まで 徒歩 2 分 バス利用 21分
土地面積 112.91㎡
建物面積 98.95㎡
学区 新吉田小学校、新田中学校
用途地域 第一種低層住居専用
建ぺい率 50%
容積率 100%
地目 宅地
駐車場 有り カースペース
接道 西5.4m、南5m
権利 所有権
私道面積 有 8.39㎡
セットバック 無し
建物構造 木造
建物階数 2階
築年月 2026年05月
入居日 2026年06月
都市計画 市街化区域
取引態様 仲介
物件番号 48766-2
設備 公営水道、公共下水、駐車場1台、緑豊かな住宅地、閑静な住宅地、南側道路面す、2沿線以上利用可、小学校徒歩10分以内、システムキッチン、食器洗い機付き、浄水器、I型キッチン、パントリー(食器・食品の収納庫)、ユニットバス、追い焚き、浴室乾燥機、ウォシュレット、トイレ2ヶ所、浴室に窓、バルコニー、南面バルコニー、2階建、LDK15畳以上、全室2面採光、フローリング、クローゼット、収納、床下収納、全居室収納、シャンプドレッサー付き、フラット35Sに対応、モニタ付きインターフォン、24時間換気システム、建物10年保証
建築確認番号 第25KAK建確01865号
特記事項 宅地造成工事規制区域 準防火地域 日影制限 敷地面積最低限度 建物高さ10m以下 建築基準法第22条区域 宅地造成工事規制区域:有/準防火地域:有/日影制限:有/敷地面積最低限度:有/高さ限度:有/建築基準法第22条区域。 /
備考 GL「高田」駅利用。緑豊かで、閑静な住環境。全室2面採光で明るく、通風良好なお住まいです。食洗機・浴室乾燥機、浄水システム他設備充実。

こだわりポイント

  • 省エネに配慮された建物
  • 食器洗い洗浄乾燥機
  • 浴室換気乾燥暖房機
  • LDKは1階に
  • 2階建て住宅限定
  • シューズインクローク
  • LDK15帖以上
  • 対面キッチン
  • 小学校10分以内
  • 幼稚園10分以内
  • 公園10分以内
  • 都市ガス
  • フラット35利用可
  • 隣家との間隔たっぷり
  • 角地限定
  • 道路広々(5m以上)
  • 南道路限定

お気軽にどうぞ!

資料請求 現地見学 電話でお問い合わせ
0120-150-580

このエリアでお探しの方へ

今週末モデルハウス見学会開催中!「高田」駅徒歩12分 新築一戸建て(1) カースペース2台

グリーンライン「高田」駅 徒歩 12 分

東急東横線「綱島」駅 徒歩 26 分

横浜市港北区 新吉田東1丁目

7,390万円

4LDK

今週末モデルハウス見学会開催中!「高田」駅徒歩12分 新築一戸建て(4) カースペース2台

グリーンライン「高田」駅 徒歩 12 分

東急東横線「綱島」駅 徒歩 26 分

横浜市港北区 新吉田東1丁目

7,390万円

4LDK

横浜市港北区新吉田東1丁目 新築一戸建 7390万円 1号棟

グリーンライン「高田」駅 徒歩 12 分

東急東横線「綱島」駅 徒歩 22 分

横浜市港北区 新吉田東1丁目

7,390万円

4LDK

横浜市港北区新吉田東1丁目 新築一戸建 7390万円 4号棟

グリーンライン「高田」駅 徒歩 12 分

東急東横線「綱島」駅 徒歩 22 分

横浜市港北区 新吉田東1丁目

7,390万円

4LDK

今週末モデルハウス見学会開催中!「高田」駅利用 新築一戸建て(4-1) 全室2面採光

グリーンライン「高田」駅 徒歩 20 分

横浜線「新横浜」駅 バス停「新田農協前」まで 徒歩 2 分 バス利用 21分

横浜市港北区 新吉田東5丁目

7,490万円

4LDK

値下げしました!今週末見学会開催中!「大倉山」駅徒歩12分 新築一戸建て(2)  角地

東急東横線「大倉山」駅 徒歩 12 分

東急東横線「大倉山」駅 バス停「太尾神社前」まで 徒歩 7 分 バス利用 3分

横浜市港北区 大曽根台

7,480万円

4LDK

横浜市港北区大曽根台 新築一戸建 7480万円 2号棟

東急東横線「大倉山」駅 徒歩 11 分

ブルーライン「新羽」駅 徒歩 21 分

横浜市港北区 大曽根台

7,480万円

4LDK

今週末モデルハウス見学会開催中!「妙蓮寺」駅徒歩3分 新築一戸建て 角地 小屋裏収納付き

東急東横線「妙蓮寺」駅 徒歩 3 分

東急東横線「菊名」駅 徒歩 20 分

横浜市港北区 篠原東1丁目

7,480万円

2LDK

横浜市港北区篠原東1丁目 新築一戸建 7480万円

東急東横線「妙蓮寺」駅 徒歩 3 分

ブルーライン「岸根公園」駅 徒歩 21 分

横浜市港北区 篠原東1丁目

7,480万円

2LDK

横浜市港北区富士塚1丁目 新築一戸建 7680万円 B棟

東急東横線「妙蓮寺」駅 徒歩 10 分

横浜線「菊名」駅 徒歩 13 分

横浜市港北区 富士塚1丁目

7,680万円

4LDK

横浜市港北区富士塚1丁目 新築一戸建 7680万円 C棟

東急東横線「妙蓮寺」駅 徒歩 10 分

横浜線「菊名」駅 徒歩 13 分

横浜市港北区 富士塚1丁目

7,680万円

4LDK

横浜市港北区富士塚1丁目 新築一戸建 7680万円 A棟

東急東横線「妙蓮寺」駅 徒歩 10 分

横浜線「菊名」駅 徒歩 13 分

横浜市港北区 富士塚1丁目

7,680万円

4LDK

お気軽にどうぞ!

資料請求 現地見学 電話でお問い合わせ
0120-150-580
来店予約