ようこそ!ゲストさん
お気に入り
保存した検索条件
閲覧履歴
会員登録
ログイン
0120-150-580
営業時間:午前9:00~午後9:00
沿線・駅
尻手
詳細条件
-
こだわり
該当件数
6件
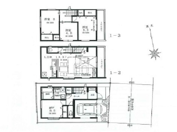
横浜市鶴見区駒岡4丁目 一戸建 4588.3万円 1号棟
間取り
値下げしました
中古一戸建て
4,589万円
3LDK
2026.05.08更新
横浜市鶴見区駒岡4丁目 一戸建 4588.3万円 3号棟
横浜市鶴見区駒岡4丁目 一戸建 4688.3万円 2号棟
4,689万円
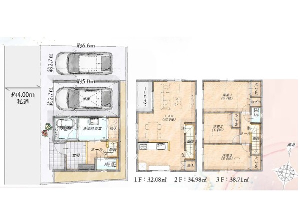
川崎市幸区小倉5丁目 新築一戸建 4980万円 2号棟
新築一戸建て
4,980万円
2026.05.01更新
川崎市幸区小倉5丁目 新築一戸建 5280万円 1号棟
5,280万円
横浜市鶴見区上末吉5丁目 新築一戸建 5499万円
建物完成しましたのでご見学頂けます!
5,499万円
2LDK+2S