ようこそ!ゲストさん
お気に入り
保存した検索条件
閲覧履歴
会員登録
ログイン
0120-150-580
営業時間:午前9:00~午後9:00
エリア
横浜市瀬谷区
詳細条件
-
こだわり
該当件数
61件
今週末現地見学会開催中!「三ツ境」駅利用 建築条件無売地(3) 閑静な住環境
土地・売り地
2,850万円
2025.11.27更新
今週末現地見学会開催中!「三ツ境」駅利用 建築条件無売地 角地に付き開放感あり
3,290万円
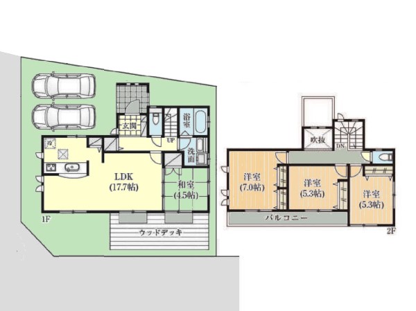
建物完成しました! 今週末内覧会開催中!「瀬谷」駅徒歩9分 新築一戸建て リビング階段 対面キッチン
間取り
建物完成しましたのでご見学頂けます!
新築一戸建て
3,480万円
2LDK
値下げしました!今週末現地見学会開催中!「三ツ境」駅利用 建築条件無売地 角地
値下げしました
3,490万円
2025.12.04更新
申し訳ありません こちらは会員限定物件です
会員登録で利用できる6つの便利機能
今週末モデルハウス見学会開催中!「瀬谷」駅利用 新築一戸建て(2) 対面キッチン・リビングイン階段
3,580万円
3LDK
今週末モデルハウス見学会開催中!「瀬谷」駅利用 新築一戸建て(1) 対面キッチン・リビングイン階段
3,880万円
2SLDK
値下げしました! 「南町田グランベリーパーク」駅利用 新築一戸建て 床暖房付
4,180万円
3SLDK
建物完成しました! 今週末内覧会開催中!「三ツ境」駅利用 新築一戸建て(B) 閑静な住宅地
4,190万円
建物完成しました! 今週末内覧会開催中!「三ツ境」駅利用 新築一戸建て(A) 閑静な住宅地
値下げしました!今週末内覧会開催中!「三ツ境」駅利用 新築一戸建て 長期優良住宅
4,290万円
今週末内覧会開催中!「三ツ境」駅利用 中古一戸建て 南西角地
中古一戸建て
4,380万円
4LDK