横浜市神奈川区三枚町 新築一戸建 6780万円
この物件のココがオススメ!
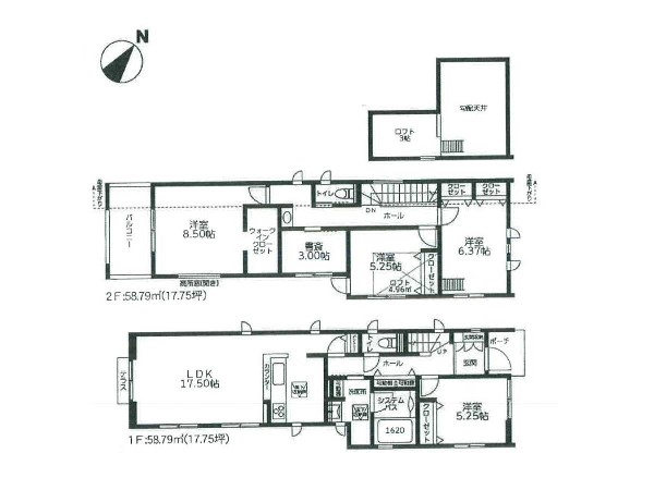
リフォーム済で室内大変綺麗です 南東道路で日当たり良好 LDK17.9帖 主寝室7.8帖 全室収納付
地図
頭金0万円・金利0.495%の場合
ボーナス時(年2回)お支払額
0円
この物件の月々のお支払額
189,906円
年収に対する返済比率
76%
- ※会員登録し、詳細情報を記入されますと、全ての物件で自動的に金額が表示され、大変便利です。
- ※まだ会員登録をされていない方は、下記チェック欄をご記入ください。
- ※上記計算は物件価格6,780万円+諸経費 8%込みの金額による結果となります。
- ※返済金額はあくまでも目安です。
公園
約550m
スーパー
約1,100m
コンビニ
約160m
幼稚園・保育園
約80m
ドラッグストア
約1,300m
ショッピングセンター
約1,900m
スーパー
約1,600m
スーパー
約1,400m
公園
約1,200m
| 価格 | 6,780万円 |
|---|---|
| 物件種別 | 中古一戸建て |
| 間取り | 3SLDK |
| 所在地 | 横浜市神奈川区 三枚町 |
| 交通 |
|
| 土地面積 | 128.62㎡ |
| 建物面積 | 100.69㎡ |
| 学区 | 城郷小学校、六角橋中学校 |
| 用途地域 | 第一種住居 |
| 建ぺい率 | 60% |
| 容積率 | 200% |
| 地目 | 宅地 |
| 駐車場 | 有り カースペース |
| 接道 | 南東5m |
| 権利 | 所有権 |
| 私道面積 | 無し |
| セットバック | 無し |
| 建物構造 | RC |
| 建物階数 | 2階 |
| 築年月 | 2013年08月 |
| 入居日 | 即時 |
| 都市計画 | 市街化区域 |
| 取引態様 | 仲介 |
| 物件番号 | P1081 |
| 設備 | 公営水道、公共下水、駐車場2台以上、都市近郊、南側道路面す、市街地が近い、始発駅、2沿線以上利用可、保育施設・幼稚園5分以内、公園5分以内、コンビニ5分以内、システムキッチン、浄水器、ユニットバス、追い焚き、浴室乾燥機、ウォシュレット、オートバス付き、トイレ2ヶ所、浴室1坪以上、浴室に窓、暖房便座、バルコニー、南面バルコニー、2階建、LDK15畳以上、採光2面、東南向き、フローリング、クローゼット、収納、床下収納、下駄箱、全居室収納、シャンプドレッサー付き、年内入居可、通風良好、陽当り良好、24時間換気システム、建物10年保証 |
| 建築確認番号 | - |
| 特記事項 | 宅地造成工事規制区域:有/高度地区:有/準防火地域:有/日影制限:有/間取りSは納戸。 /内装リフォーム…2025年06月(給湯器、壁、床、洗濯防水パン、2階ウォシュレット、メールボックス) |
| 備考 | リフォーム済で室内大変綺麗です 南東道路で日当たり良好 LDK17.9帖 主寝室7.8帖 全室収納付 |
こだわりポイント
- 線路沿い
- LDKは1階に
- 2階建て住宅限定
- LDK15帖以上
- 対面キッチン
- 浴室1坪以上
- コンビニ10分以内
- 保育園10分以内
- 公園10分以内
- 都市ガス
- カースペース3台以上
- 3階建て以上建築可能地域