川崎市幸区小向西町4丁目 新築一戸建 4480万円 1号棟
この物件のココがオススメ!
鹿島田駅徒歩21分 2階LDKは約21帖のひろびろ空間 キッチンは使い勝手の良いカウンター付きキッチン
地図
頭金0万円・金利0.495%の場合
ボーナス時(年2回)お支払額
0円
この物件の月々のお支払額
125,480円
年収に対する返済比率
50%
- ※会員登録し、詳細情報を記入されますと、全ての物件で自動的に金額が表示され、大変便利です。
- ※まだ会員登録をされていない方は、下記チェック欄をご記入ください。
- ※上記計算は物件価格4,480万円+諸経費 8%込みの金額による結果となります。
- ※返済金額はあくまでも目安です。
小学校
約80m
公園
約130m
スーパー
約210m
幼稚園・保育園
約230m
中学校
約700m
その他環境写真
約1,500m
| 価格 | 4,480万円 |
|---|---|
| 物件種別 | 新築一戸建て |
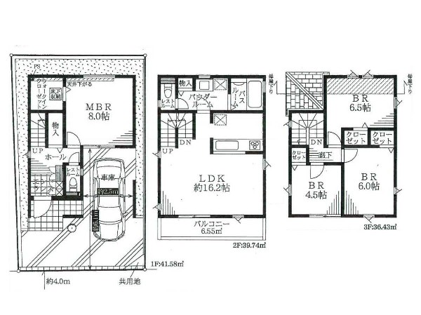
| 間取り | 3SLDK |
| 所在地 | 川崎市幸区 小向西町4丁目 |
| 交通 |
|
| 土地面積 | 64.77㎡ |
| 建物面積 | 120.01㎡ |
| 学区 | 西御幸小学校、御幸中学校 |
| 用途地域 | 第一種住居 |
| 建ぺい率 | 60% |
| 容積率 | 160% |
| 地目 | 宅地 |
| 駐車場 | 有り ビルトイン車庫 |
| 接道 | 西4m |
| 権利 | 所有権 |
| 私道面積 | 無し |
| セットバック | 無し |
| 建物構造 | 木造 |
| 建物階数 | 3階 |
| 築年月 | 2025年08月 |
| 入居日 | 即時 |
| 都市計画 | 市街化区域 |
| 取引態様 | 仲介 |
| 物件番号 | A1937-1 |
| 設備 | 公営水道、公共下水、設計住宅性能評価付、建設住宅性能評価付、省エネルギー対策、BELS/省エネ基準適合認定書あり、ビルトインガレージ、駐車場1台、区画整理地内、閑静な住宅地、平坦地、都市近郊、地盤調査済、周辺交通量少なめ、スーパーが近い(10分以内)、駅まで平坦、2沿線以上利用可、小学校徒歩10分以内、中学校徒歩10分以内、保育施設・幼稚園5分以内、公園5分以内、コンビニ5分以内、システムキッチン、ガス3口、浄水器、ユニットバス、追い焚き、浴室乾燥機、ウォシュレット、オートバス付き、トイレ2ヶ所、浴室に窓、暖房便座、浴室暖房、バルコニー、3階建以上、LDK20畳以上、人感照明センサー、採光3面、フローリング、全室フローリング、リビング階段、クローゼット、収納、床下収納、下駄箱、全居室収納、シャンプドレッサー付き、モニタ付きインターフォン、複層ガラス、火災警報器(報知機)、通風良好、陽当り良好、24時間換気システム、建物10年保証 |
| 建築確認番号 | 第R07SHC101336号 |
| 特記事項 | 景観法:有/宅地造成工事規制区域:有/高度地区:有/準防火地域:有/日影制限:有/高さ限度:有/間取りSは納戸/ 建物面積:1階車庫面積約14.17平米含。 /建蔽率2:80% 容積率2:200% 用途地域2:近隣商業 |
| 備考 | 鹿島田駅徒歩21分 2階LDKは約21帖のひろびろ空間 キッチンは使い勝手の良いカウンター付きキッチン |
こだわりポイント
- 省エネに配慮された建物
- 浴室換気乾燥暖房機
- 外食を楽しめる生活
- 駅まで平坦ラクラク通勤
- 子供の多い街に住む
- 区画整理分譲地内に住む
- リビングイン階段
- LDKは2階に
- LDK20帖以上
- 広々バルコニー
- 対面キッチン
- 小学校10分以内
- スーパー10分以内
- コンビニ10分以内
- 小児科医院10分以内
- 保育園10分以内
- 幼稚園10分以内
- 公園10分以内
- 都市ガス
- 屋根付きカースペース
- 整形地
- 道路と段差無し