1. トップページ
  2. 今週末内覧会開催中!「東戸塚」駅利用 中古一戸建て カースペース2台

今週末内覧会開催中!「東戸塚」駅利用 中古一戸建て カースペース2台

価格
3,799万円
物件種別
中古一戸建て
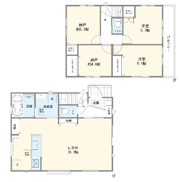
間取り
4LDK
所在地
横浜市保土ケ谷区 権太坂3丁目
交通
  • 横須賀線「東戸塚」駅 バス停「狩場町」まで 徒歩 5 分 バス利用 13分
  • 湘南新宿宇「保土ヶ谷」駅 バス停「狩場町」まで 徒歩 5 分 バス利用 16分
土地面積
100.07㎡
建物面積
101.28㎡
  • 前回情報更新日 2025.12.04
  • 次回情報更新予定日 2025.12.18
資料請求 現地見学 電話でお問い合わせ
0120-150-580
間取図
間取図

この物件のココがオススメ!

JR横須賀線「東戸塚」駅利用。カースペース2台駐車可能。多面採光で通風良好。対面キッチン。南面バルコニー。全居室約6帖以上。全居室収納有。

お気軽にどうぞ!

資料請求 現地見学 電話でお問い合わせ
0120-150-580

地図

申し訳ありません
こちらは会員限定機能です

会員登録で利用できる6つの便利機能

詳しく見る

お気軽にどうぞ!

資料請求 現地見学 電話でお問い合わせ
0120-150-580

頭金0万円・金利0.495%の場合

ボーナス時(年2回)お支払額

0

この物件の月々のお支払額

106,391

年収に対する返済比率

43

  • ※会員登録し、詳細情報を記入されますと、全ての物件で自動的に金額が表示され、大変便利です。
  • ※まだ会員登録をされていない方は、下記チェック欄をご記入ください。
  • ※上記計算は物件価格3,799万円+諸経費 8%込みの金額による結果となります。
  • ※返済金額はあくまでも目安です。

お客様の条件からシミュレーションするには?

会員登録
マイページから登録

金利

直接入力する

ボーナス払い(年2回)

返済年数

頭金

直接入力する

 万円(半角数字)

年収

 万円(半角数字)
価格 3,799万円
物件種別 中古一戸建て
間取り 4LDK
所在地 横浜市保土ケ谷区 権太坂3丁目
交通
  • 横須賀線「東戸塚」駅 バス停「狩場町」まで 徒歩 5 分 バス利用 13分
  • 湘南新宿宇「保土ヶ谷」駅 バス停「狩場町」まで 徒歩 5 分 バス利用 16分
土地面積 100.07㎡
建物面積 101.28㎡
学区 境木小学校、境木中学校
用途地域 第一種低層住居専用
建ぺい率 50%
容積率 80%
地目 宅地
駐車場 有り カースペース
接道 北4.5m
権利 所有権
私道面積 有 115.00㎡ 1/10
セットバック 無し
建物構造 木造
建物階数 2階
築年月 2013年09月
入居日 即時
都市計画 市街化区域
取引態様 仲介
物件番号 47404
設備 公営水道、公共下水、駐車場2台以上、緑豊かな住宅地、閑静な住宅地、スーパーが近い(10分以内)、2沿線以上利用可、小学校徒歩10分以内、中学校徒歩10分以内、公園5分以内、コンビニ5分以内、システムキッチン、ガス3口、I型キッチン、ユニットバス、追い焚き、ウォシュレット、トイレ2ヶ所、浴室に窓、暖房便座、バルコニー、南面バルコニー、内装リフォーム、2階建、全居室6畳以上、LDK20畳以上、採光3面、全室2面採光、フローリング、クローゼット、収納、床下収納、下駄箱、全居室収納、シャンプドレッサー付き、モニタ付きインターフォン、24時間換気システム
建築確認番号 -
特記事項 宅地造成工事規制区域 高度地区 準防火地域 日影制限 敷地面積最低限度 建物高さ10m以下 建築基準法第22条区域 別途その他持分2.29平米×1/7有 第二用途地域:第二種住居地域(建ぺい率60%、容積率180%)過少宅地 宅地造成工事規制区域:有/高度地区:有/準防火地域:有/日影制限:有/敷地面積最低限度:有/高さ限度:有/建築基準法第22条区域 別途その他持分2.29平米×1/7有 第二用途地域:第二種住居地域(建ぺい率60%、容積率180%)過少宅地。 /
備考 JR横須賀線「東戸塚」駅利用。カースペース2台駐車可能。多面採光で通風良好。対面キッチン。南面バルコニー。全居室約6帖以上。全居室収納有。

こだわりポイント

  • 大人の二人暮らし
  • 自然を感じる暮らし
  • LDKは1階に
  • 2階建て住宅限定
  • LDK20帖以上
  • 対面キッチン
  • 小学校10分以内
  • 大規模公園10分以内
  • スーパー10分以内
  • コンビニ10分以内
  • 保育園10分以内
  • 幼稚園10分以内
  • 公園10分以内
  • 都市ガス
  • カースペース2台

お気軽にどうぞ!

資料請求 現地見学 電話でお問い合わせ
0120-150-580

このエリアでお探しの方へ

値下げしました!今週末内覧会開催中!「保土ケ谷」駅徒歩13分 中古一戸建て 閑静な住宅地

横須賀線「保土ヶ谷」駅 徒歩 13 分

京浜急行本線「南太田」駅 徒歩 19 分

横浜市南区 清水ケ丘

4,180万円

4LDK

今週末モデルハウス見学会開催中!「上星川」駅徒歩13分 新築一戸建て(4) 閑静な住宅地

相模鉄道線「上星川」駅 徒歩 13 分

横須賀線「保土ヶ谷」駅 バス停「仏向向原」まで 徒歩 11 分 バス利用 18分

横浜市保土ケ谷区 仏向町

4,680万円

4LDK

今週末モデルハウス見学会開催中!「上星川」駅徒歩13分 新築一戸建て(1) カースペース2台

相模鉄道線「上星川」駅 徒歩 13 分

横須賀線「保土ヶ谷」駅 バス停「仏向向原」まで 徒歩 11 分 バス利用 18分

横浜市保土ケ谷区 仏向町

4,880万円

4LDK

今週末モデルハウス見学会開催中!「東戸塚」駅利用 新築一戸建て 閑静な住環境

横須賀線「東戸塚」駅 徒歩 26 分

湘南新宿宇「保土ヶ谷」駅 バス停「境木中学校前」まで 徒歩 8 分 バス利用 15分

横浜市保土ケ谷区 境木本町

4,980万円

4LDK

今週末モデルハウス見学会開催中!「上星川」駅徒歩13分 新築一戸建て(3) カースペース2台

相模鉄道線「上星川」駅 徒歩 13 分

横須賀線「保土ヶ谷」駅 バス停「仏向向原」まで 徒歩 11 分 バス利用 18分

横浜市保土ケ谷区 仏向町

5,080万円

4LDK

値下げしました! 「保土ケ谷」駅徒歩12分 新築一戸建て(3)小屋裏収納付き

横須賀線「保土ヶ谷」駅 徒歩 12 分

相模鉄道線「天王町」駅 徒歩 13 分

横浜市保土ケ谷区 桜ケ丘1丁目

5,250万円

4LDK

今週末モデルハウス見学会開催中!「井土ケ谷」駅徒歩15分 新築一戸建て 全居室6帖以上

京浜急行本線「井土ヶ谷」駅 徒歩 15 分

横須賀線「保土ヶ谷」駅 徒歩 22 分

横浜市南区 永田東2丁目

5,280万円

3LDK

今週末モデルハウス見学会開催中!「上星川」駅徒歩13分 新築一戸建て(2) 角地

相模鉄道線「上星川」駅 徒歩 13 分

横須賀線「保土ヶ谷」駅 バス停「仏向向原」まで 徒歩 11 分 バス利用 18分

横浜市保土ケ谷区 仏向町

5,280万円

4LDK

今週末モデルハウス見学会開催中!「上星川」駅徒歩13分 新築一戸建て(5) カースペース2台

相模鉄道線「上星川」駅 徒歩 13 分

横須賀線「保土ヶ谷」駅 バス停「仏向向原」まで 徒歩 11 分 バス利用 18分

横浜市保土ケ谷区 仏向町

5,280万円

4LDK

横浜市西区東久保町 新築一戸建 5290万円 A号棟

横須賀線「保土ヶ谷」駅 徒歩 10 分

相模鉄道線「西横浜」駅 徒歩 12 分

横浜市西区 東久保町

5,290万円

1LDK+2S

値下げしました! 「保土ケ谷」駅徒歩12分 新築一戸建て(4)ルーフバルコニー付き

横須賀線「保土ヶ谷」駅 徒歩 12 分

相模鉄道線「天王町」駅 徒歩 13 分

横浜市保土ケ谷区 桜ケ丘1丁目

5,350万円

4LDK

今週末モデルハウス見学会開催中!「保土ケ谷」駅利用 新築一戸建て エコジョーズ カースペース2並列台

横須賀線「保土ヶ谷」駅 徒歩 16 分

相模鉄道線「星川」駅 徒歩 19 分

横浜市保土ケ谷区 霞台

5,380万円

2LDK+2S

お気軽にどうぞ!

資料請求 現地見学 電話でお問い合わせ
0120-150-580
来店予約