1. トップページ
  2. 値下げしました! 「杉田」駅徒歩9分 新築一戸建て(2)勾配天井 小屋裏収納有

値下げしました! 「杉田」駅徒歩9分 新築一戸建て(2)勾配天井 小屋裏収納有

価格
4,680万円
物件種別
新築一戸建て
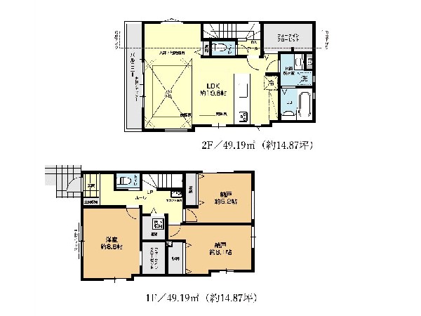
間取り
2LDK+2S
所在地
横浜市磯子区 中原4丁目
交通
  • 京浜急行本線「杉田」駅 徒歩 9 分
  • 根岸線「新杉田」駅 徒歩 15 分
土地面積
132.38㎡
建物面積
99.05㎡
  • 前回情報更新日 2025.11.27
  • 次回情報更新予定日 2025.12.11
資料請求 現地見学 電話でお問い合わせ
0120-150-580
外観:前面道路は閑静な住宅地をはしる車通りの少ない道路。お車の出し入れが苦手なママや小さなお子様にも安心ですね。しっかり舗装もされているので、ベビーカーや自転車で通っても快適に通行できます。
外観:前面道路は閑静な住宅地をはしる車通りの少ない道路。お車の出し入れが苦手なママや小さなお子様にも安心ですね。しっかり舗装もされているので、ベビーカーや自転車で通っても快適に通行できます。
間取り:2号棟間取図
間取り:2号棟間取図
区画図
区画図
外観:第一種低層住居専用地域の良好な住環境が保たれたエリア。低層の一戸建てを中心とした街並みが整然と続き、周辺は高い建物が建っていないので、採光や開放性に恵まれ、空が広く緑の多い閑静な趣を感じる環境です。
外観:第一種低層住居専用地域の良好な住環境が保たれたエリア。低層の一戸建てを中心とした街並みが整然と続き、周辺は高い建物が建っていないので、採光や開放性に恵まれ、空が広く緑の多い閑静な趣を感じる環境です。
外観:毎日のお散歩も快適な緑に恵まれた閑静な住宅地は、伸び伸びスローライフを叶えてくれます。自然豊富な季節の移ろいを身近に感じられる環境で子育てすれば、お子様もきっと素直に成長してくれるはずです!
外観:毎日のお散歩も快適な緑に恵まれた閑静な住宅地は、伸び伸びスローライフを叶えてくれます。自然豊富な季節の移ろいを身近に感じられる環境で子育てすれば、お子様もきっと素直に成長してくれるはずです!
外観:一種低層住居専用地域は殆どの住宅が2階建て。それぞれの敷地にしっかり日当たりを確保できるよう設計された住宅専用地域です。閑静な住宅街で住環境を重視する方にオススメできる立地です。
外観:一種低層住居専用地域は殆どの住宅が2階建て。それぞれの敷地にしっかり日当たりを確保できるよう設計された住宅専用地域です。閑静な住宅街で住環境を重視する方にオススメできる立地です。
外観:季節の移ろいを感じられる立地。休日は四季を感じながら、ジョギングをしたり、お子様と一緒に遊べる公園がすぐ近くに。わが家のお庭感覚で利用できる公園が近くにあると、お子様も伸び伸び成長してくれますね!
外観:季節の移ろいを感じられる立地。休日は四季を感じながら、ジョギングをしたり、お子様と一緒に遊べる公園がすぐ近くに。わが家のお庭感覚で利用できる公園が近くにあると、お子様も伸び伸び成長してくれますね!
外観:閑静な住宅地で子育て家族にピッタリ。毎日のお散歩も快適な緑に恵まれたエリアで、自然に包まれた穏やかな暮らしを実現するための、ゆとりある住環境が整っています。緑の潤いを感じながらホッと生活できそう。
外観:閑静な住宅地で子育て家族にピッタリ。毎日のお散歩も快適な緑に恵まれたエリアで、自然に包まれた穏やかな暮らしを実現するための、ゆとりある住環境が整っています。緑の潤いを感じながらホッと生活できそう。
外観:ワイドバルコニーや2箇所のウォークインクローゼット、LDK吹き抜けなど注文住宅を彷彿とさせる間取りで新しい生活をスタートさせてみませんか。
外観:ワイドバルコニーや2箇所のウォークインクローゼット、LDK吹き抜けなど注文住宅を彷彿とさせる間取りで新しい生活をスタートさせてみませんか。
周辺環境:岩崎学園附属磯子幼稚園(岩崎学園附属磯子幼稚園まで700m)
周辺環境:岩崎学園附属磯子幼稚園(岩崎学園附属磯子幼稚園まで700m)
周辺環境:屏風ヶ浦保育園(屏風ヶ浦保育園まで1300m)
周辺環境:屏風ヶ浦保育園(屏風ヶ浦保育園まで1300m)
周辺環境:横浜市立杉田小学校(横浜市立杉田小学校まで850m)
周辺環境:横浜市立杉田小学校(横浜市立杉田小学校まで850m)
周辺環境:横浜市立浜中学校(横浜市立浜中学校まで700m)
周辺環境:横浜市立浜中学校(横浜市立浜中学校まで700m)
周辺環境:中原公園(中原公園まで550m)
周辺環境:中原公園(中原公園まで550m)
周辺環境:松ノ内公園(松ノ内公園まで180m)
周辺環境:松ノ内公園(松ノ内公園まで180m)
周辺環境:京急ストア屏風ヶ浦店(京急ストア屏風ヶ浦店まで1600m)
周辺環境:京急ストア屏風ヶ浦店(京急ストア屏風ヶ浦店まで1600m)
周辺環境:ラビスタ新杉田(ラビスタ新杉田まで1100m)
周辺環境:ラビスタ新杉田(ラビスタ新杉田まで1100m)
周辺環境:ユーコープ杉田店(ユーコープ杉田店まで1800m)
周辺環境:ユーコープ杉田店(ユーコープ杉田店まで1800m)

この物件のココがオススメ!

京急本線「杉田」駅から徒歩9分。収納に心強い小屋裏収納有。プライバシーに配慮した2階リビング。納戸もお部屋としてご利用いただけます。

お気軽にどうぞ!

資料請求 現地見学 電話でお問い合わせ
0120-150-580

地図

申し訳ありません
こちらは会員限定機能です

会員登録で利用できる6つの便利機能

詳しく見る

お気軽にどうぞ!

資料請求 現地見学 電話でお問い合わせ
0120-150-580

頭金0万円・金利0.495%の場合

ボーナス時(年2回)お支払額

0

この物件の月々のお支払額

131,082

年収に対する返済比率

52

  • ※会員登録し、詳細情報を記入されますと、全ての物件で自動的に金額が表示され、大変便利です。
  • ※まだ会員登録をされていない方は、下記チェック欄をご記入ください。
  • ※上記計算は物件価格4,680万円+諸経費 8%込みの金額による結果となります。
  • ※返済金額はあくまでも目安です。

お客様の条件からシミュレーションするには?

会員登録
マイページから登録

金利

直接入力する

ボーナス払い(年2回)

返済年数

頭金

直接入力する

 万円(半角数字)

年収

 万円(半角数字)

約700m

幼稚園・保育園

周辺環境:岩崎学園附属磯子幼稚園(岩崎学園附属磯子幼稚園まで700m)

幼稚園・保育園

約700m

約1,300m

幼稚園・保育園

周辺環境:屏風ヶ浦保育園(屏風ヶ浦保育園まで1300m)

幼稚園・保育園

約1,300m

約850m

小学校

周辺環境:横浜市立杉田小学校(横浜市立杉田小学校まで850m)

小学校

約850m

約700m

中学校

周辺環境:横浜市立浜中学校(横浜市立浜中学校まで700m)

中学校

約700m

約550m

公園

周辺環境:中原公園(中原公園まで550m)

公園

約550m

約180m

公園

周辺環境:松ノ内公園(松ノ内公園まで180m)

公園

約180m

約1,600m

スーパー

周辺環境:京急ストア屏風ヶ浦店(京急ストア屏風ヶ浦店まで1600m)

スーパー

約1,600m

約1,100m

ショッピングセンター

周辺環境:ラビスタ新杉田(ラビスタ新杉田まで1100m)

ショッピングセンター

約1,100m

約1,800m

スーパー

周辺環境:ユーコープ杉田店(ユーコープ杉田店まで1800m)

スーパー

約1,800m

価格 4,680万円
物件種別 新築一戸建て
間取り 2LDK+2S
所在地 横浜市磯子区 中原4丁目
交通
  • 京浜急行本線「杉田」駅 徒歩 9 分
  • 根岸線「新杉田」駅 徒歩 15 分
土地面積 132.38㎡
建物面積 99.05㎡
学区 杉田小学校、浜中学校
用途地域 第一種低層住居専用
建ぺい率 50%
容積率 100%
地目 宅地
駐車場 有り カースペース
接道 東6m
権利 所有権
私道面積 無し
セットバック 無し
建物構造 木造
建物階数 2階
築年月 2025年12月
入居日 2026年01月
都市計画 市街化区域
取引態様 仲介
物件番号 46700-2
設備 公営水道、公共下水、駐車場1台、緑豊かな住宅地、閑静な住宅地、前道6m以上、2沿線以上利用可、中学校徒歩10分以内、公園5分以内、システムキッチン、ガス3口、I型キッチン、パントリー(食器・食品の収納庫)、ユニットバス、追い焚き、ウォシュレット、トイレ2ヶ所、浴室1坪以上、浴室に窓、暖房便座、バルコニー、南面バルコニー、2階建、LDK15畳以上、グルニエ、採光2面、フローリング、クローゼット、収納、全居室収納、シャンプドレッサー付き、モニタ付きインターフォン、陽当り良好、24時間換気システム、建物10年保証、勾配天井
建築確認番号 第25UDI1K建00605号
特記事項 不整形地 宅地造成工事規制区域 高度地区 準防火地域 日影制限 敷地面積最低限度 建物高さ10m以下 建築基準法第22条区域 横浜市建築基準条例第3条による制限有 建物建築・再建築の際、防護壁の設置、高基礎、外壁後退等の対策が必要となる場合があります 不整形地:有/宅地造成工事規制区域:有/高度地区:有/準防火地域:有/日影制限:有/敷地面積最低限度:有/高さ限度:有/建築基準法第22条区域 横浜市建築基準条例第3条による制限有 建物建築・再建築の際、防護壁の設置、高基礎、外壁後退等の対策が必要となる場合があります。 /
備考 京急本線「杉田」駅から徒歩9分。収納に心強い小屋裏収納有。プライバシーに配慮した2階リビング。納戸もお部屋としてご利用いただけます。

こだわりポイント

  • 大型商業施設のある街に住む
  • 急行電車でスピード通勤
  • 2沿線利用であんしん通勤
  • 大人の二人暮らし
  • 2階建て住宅限定
  • シューズインクローク
  • LDKは2階に
  • LDK15帖以上
  • 対面キッチン
  • ロフト・小屋裏収納
  • パントリー
  • 大型商業施設15分以内
  • コンビニ10分以内
  • 幼稚園10分以内
  • 公園10分以内
  • 都市ガス
  • 道路広々(5m以上)

お気軽にどうぞ!

資料請求 現地見学 電話でお問い合わせ
0120-150-580

このエリアでお探しの方へ

今週末モデルハウス見学会開催中!「根岸」駅利用 新築一戸建て(3) 全居室ペアガラス

根岸線「根岸」駅 バス停「浜」まで 徒歩 5 分 バス利用 6分

根岸線「磯子」駅 バス停「浜」まで 徒歩 3 分 バス利用 5分

横浜市磯子区 久木町

4,380万円

3LDK

今週末モデルハウス見学会開催中!「根岸」駅利用 新築一戸建て(1) 全居室ペアガラス

根岸線「根岸」駅 バス停「浜」まで 徒歩 5 分 バス利用 6分

根岸線「磯子」駅 バス停「浜」まで 徒歩 3 分 バス利用 5分

横浜市磯子区 久木町

4,580万円

3LDK

今週末モデルハウス見学会開催中!「根岸」駅利用 新築一戸建て(2) 全居室ペアガラス

根岸線「根岸」駅 バス停「浜」まで 徒歩 5 分 バス利用 6分

根岸線「磯子」駅 バス停「浜」まで 徒歩 3 分 バス利用 5分

横浜市磯子区 久木町

4,580万円

2SLDK

今週末モデルハウス見学会開催中!ブルーライン「弘明寺」駅利用 新築一戸建て(1) 閑静な住宅地

ブルーライン「弘明寺」駅 徒歩 18 分

京浜急行本線「上大岡」駅 徒歩 29 分

横浜市磯子区 岡村4丁目

4,680万円

4LDK

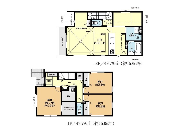
今週末モデルハウス見学会開催中!「杉田」駅徒歩9分 新築一戸建て(1)勾配天井 小屋裏収納有

京浜急行本線「杉田」駅 徒歩 9 分

根岸線「新杉田」駅 徒歩 15 分

横浜市磯子区 中原4丁目

5,280万円

2SLDK

今週末内覧会開催中!BL「弘明寺」駅利用 中古一戸建て 角地

ブルーライン「弘明寺」駅 徒歩 18 分

京浜急行本線「弘明寺」駅 徒歩 23 分

横浜市磯子区 岡村4丁目

3,290万円

4LDK

今週末モデルハウス見学会開催中!ブルーライン「弘明寺」駅利用 新築一戸建て(2) 閑静な住宅地

ブルーライン「弘明寺」駅 徒歩 18 分

京浜急行本線「上大岡」駅 徒歩 29 分

横浜市磯子区 岡村4丁目

3,880万円

4LDK

値下げしました! 「上大岡」駅利用 新築一戸建て(B) ルーフバルコニー

京浜急行本線「上大岡」駅 徒歩 23 分

ブルーライン「弘明寺」駅 徒歩 14 分

横浜市磯子区 岡村4丁目

4,180万円

3LDK

値下げしました! 「上大岡」駅利用 新築一戸建て(A) ルーフバルコニー

京浜急行本線「上大岡」駅 徒歩 23 分

ブルーライン「弘明寺」駅 徒歩 14 分

横浜市磯子区 岡村4丁目

4,280万円

3LDK

今週末モデルハウス見学会開催中!「根岸」駅利用 新築一戸建て(3) 床暖房 エコジョーズ

根岸線「根岸」駅 徒歩 23 分

京浜急行本線「上大岡」駅 バス停「古泉」まで 徒歩 1 分 バス利用 16分

横浜市磯子区 岡村1丁目

5,199万円

1LDK+2S

今週末モデルハウス見学会開催中!「杉田」駅利用 新築一戸建て(2) 全室2面採光

京浜急行本線「杉田」駅 徒歩 20 分

根岸線「洋光台」駅 徒歩 20 分

横浜市磯子区 栗木3丁目

5,290万円

4LDK

今週末モデルハウス見学会開催中!「根岸」駅利用 新築一戸建て(2) 床暖房 エコジョーズ

根岸線「根岸」駅 徒歩 23 分

京浜急行本線「上大岡」駅 バス停「古泉」まで 徒歩 1 分 バス利用 16分

横浜市磯子区 岡村1丁目

5,399万円

1LDK+2S

お気軽にどうぞ!

資料請求 現地見学 電話でお問い合わせ
0120-150-580
来店予約