1. トップページ
  2. 川崎市麻生区王禅寺西3丁目 新築一戸建 5180万円

川崎市麻生区王禅寺西3丁目 新築一戸建 5180万円

価格
5,180万円
物件種別
新築一戸建て
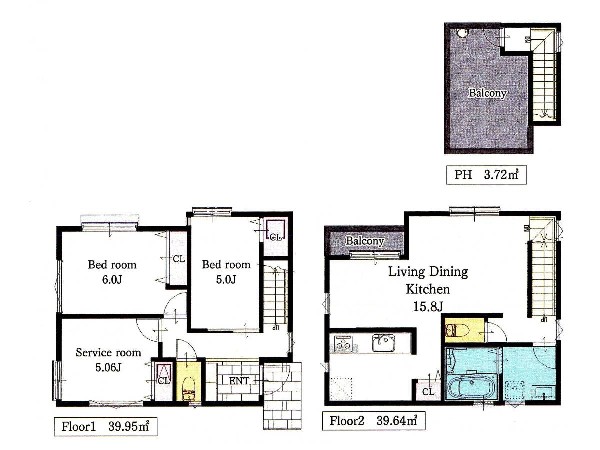
間取り
3LDK
所在地
川崎市麻生区 王禅寺西3丁目
交通
  • 小田急線「新百合ヶ丘」駅 徒歩 18 分
  • 小田急線「百合ヶ丘」駅 徒歩 22 分
土地面積
97.23㎡
建物面積
77.60㎡
  • 前回情報更新日 2026.03.06
  • 次回情報更新予定日 2026.03.20
資料請求 現地見学 電話でお問い合わせ
0120-150-580
外観:季節感を演出する多彩な樹木と豊かな彩りが重なり、四季折々の変化を楽しめる心地よい場所となることでしょう。時間の経過と共に味わいが出る素敵な空間へ。
外観:季節感を演出する多彩な樹木と豊かな彩りが重なり、四季折々の変化を楽しめる心地よい場所となることでしょう。時間の経過と共に味わいが出る素敵な空間へ。
間取り
間取り
区画図
区画図
外観:新築の時のトキメキ、心地よさが5年後も、10年後も続きますように。 充実の保証制度を採用。アフターフォロー専任のスタッフが、メンテナンスや増改築のご要望にお応えします。
外観:新築の時のトキメキ、心地よさが5年後も、10年後も続きますように。 充実の保証制度を採用。アフターフォロー専任のスタッフが、メンテナンスや増改築のご要望にお応えします。
外観:風景画のようにみずみずしい緑をたたえる環境や自然光があふれる開放的なスペースは、さりげなくデザインされた室内ドアの色使い等がアート感覚を創出。
外観:風景画のようにみずみずしい緑をたたえる環境や自然光があふれる開放的なスペースは、さりげなくデザインされた室内ドアの色使い等がアート感覚を創出。
24時間換気システム:シックハウス防止を主な目的に全ての住宅に義務化された。1時間に換気回数0.5回以上の機械換気を行う。
24時間換気システム:シックハウス防止を主な目的に全ての住宅に義務化された。1時間に換気回数0.5回以上の機械換気を行う。
浄水器一体シャワー水栓:浄水と水道水を切り替えて使用できる浄水器一体型水栓。ヘッドを引き出して使えるのでシンクの掃除が容易です。
浄水器一体シャワー水栓:浄水と水道水を切り替えて使用できる浄水器一体型水栓。ヘッドを引き出して使えるのでシンクの掃除が容易です。
3口ガスコンロ:慣れている方も多く、火力が目に見えるため、使いやすいという方も多い、3口のガスコンロ仕様です。
3口ガスコンロ:慣れている方も多く、火力が目に見えるため、使いやすいという方も多い、3口のガスコンロ仕様です。
浴室暖房乾燥機:暖房機能も備えた浴室乾燥機を標準装備。雨の日・夜間のお洗濯や、冬場の入浴時に役立ちます。
浴室暖房乾燥機:暖房機能も備えた浴室乾燥機を標準装備。雨の日・夜間のお洗濯や、冬場の入浴時に役立ちます。
外観:類似外観同仕様:施工例のため分譲中の建物とは外壁、屋根開口部等の形状・仕様が異なります。
外観:類似外観同仕様:施工例のため分譲中の建物とは外壁、屋根開口部等の形状・仕様が異なります。
テレビモニタ付きインタフォーン:戸建暮らしだと、集合住宅に比べ、より不安になりがちな防犯面、目で確認できるからあんしんです。
テレビモニタ付きインタフォーン:戸建暮らしだと、集合住宅に比べ、より不安になりがちな防犯面、目で確認できるからあんしんです。
食洗機:利用者が増えているのはメリットが多いから。時間の節約、手が荒れない、水道代の節約、高温度で洗うので油汚れもしっかり落とせる。まさに理想家電。
食洗機:利用者が増えているのはメリットが多いから。時間の節約、手が荒れない、水道代の節約、高温度で洗うので油汚れもしっかり落とせる。まさに理想家電。
周辺環境:新百合ヶ丘エルミロード(衣料品のブティック、スーパーマーケット、ベーカリー、フードコートが入る 8 階建てのショッピング センター。)
周辺環境:新百合ヶ丘エルミロード(衣料品のブティック、スーパーマーケット、ベーカリー、フードコートが入る 8 階建てのショッピング センター。)
周辺環境:イオンスタイル新百合ヶ丘(映画館やイオンをはじめとして様々な商業施設があり、大変便利な施設です。)
周辺環境:イオンスタイル新百合ヶ丘(映画館やイオンをはじめとして様々な商業施設があり、大変便利な施設です。)
周辺環境:西友新ゆりグリーンタウン店(年中無休で営業しています。新百合ヶ丘駅よりバスにて約10分の距離にあります。)
周辺環境:西友新ゆりグリーンタウン店(年中無休で営業しています。新百合ヶ丘駅よりバスにて約10分の距離にあります。)
周辺環境:長沢中学校(広いグランドで部活や体育祭など、団体競技で青春を謳歌。1学年4クラス、約440人の生徒数。確かな学力、豊かな心を育てるのが目標の学校。)
周辺環境:長沢中学校(広いグランドで部活や体育祭など、団体競技で青春を謳歌。1学年4クラス、約440人の生徒数。確かな学力、豊かな心を育てるのが目標の学校。)
周辺環境:南百合丘小学校(お子様が大切な成長期を過ごす小学校。のびのびと過ごし、広い校庭で元気に駆け回ったり、どんどん成長していくお子様の姿が目に浮かびます。)
周辺環境:南百合丘小学校(お子様が大切な成長期を過ごす小学校。のびのびと過ごし、広い校庭で元気に駆け回ったり、どんどん成長していくお子様の姿が目に浮かびます。)
周辺環境:王禅寺公園(閑静な住宅街の中にある公園です。遊具のある広場が二か所あるほか、原っぱや公園の真中に遊歩道があります。野鳥もおり、自然にいやされます。)
周辺環境:王禅寺公園(閑静な住宅街の中にある公園です。遊具のある広場が二か所あるほか、原っぱや公園の真中に遊歩道があります。野鳥もおり、自然にいやされます。)
周辺環境:いなげや 新ゆりヨネッティー王禅寺前店(営業時間9時から22時、駐車場226台完備の大型スーパーです。)
周辺環境:いなげや 新ゆりヨネッティー王禅寺前店(営業時間9時から22時、駐車場226台完備の大型スーパーです。)
周辺環境:新百合丘オーパ (新百合ヶ丘駅目の前にある、大型ショッピング施設。ユニクロ、無印良品、100均、食料品、レストランなど、欲しいものが揃います。)
周辺環境:新百合丘オーパ (新百合ヶ丘駅目の前にある、大型ショッピング施設。ユニクロ、無印良品、100均、食料品、レストランなど、欲しいものが揃います。)
周辺環境:イトーヨーカドー・新百合ヶ丘店(駅を降りたら徒歩1分で買い物ができます。品揃えも豊富で低価格。このエリアの買い物事情は困りません。)
周辺環境:イトーヨーカドー・新百合ヶ丘店(駅を降りたら徒歩1分で買い物ができます。品揃えも豊富で低価格。このエリアの買い物事情は困りません。)

この物件のココがオススメ!

「新百合ヶ丘」駅徒歩18分 車通りの少ない閑静な住宅街 グルニエやWICなど豊富な収納スペースを確保

お気軽にどうぞ!

資料請求 現地見学 電話でお問い合わせ
0120-150-580

地図

申し訳ありません
こちらは会員限定機能です

会員登録で利用できる6つの便利機能

詳しく見る

お気軽にどうぞ!

資料請求 現地見学 電話でお問い合わせ
0120-150-580

頭金0万円・金利0.495%の場合

ボーナス時(年2回)お支払額

0

この物件の月々のお支払額

145,088

年収に対する返済比率

58

  • ※会員登録し、詳細情報を記入されますと、全ての物件で自動的に金額が表示され、大変便利です。
  • ※まだ会員登録をされていない方は、下記チェック欄をご記入ください。
  • ※上記計算は物件価格5,180万円+諸経費 8%込みの金額による結果となります。
  • ※返済金額はあくまでも目安です。

お客様の条件からシミュレーションするには?

会員登録
マイページから登録

金利

直接入力する

ボーナス払い(年2回)

返済年数

頭金

直接入力する

 万円(半角数字)

年収

 万円(半角数字)

約1,380m

ショッピングセンター

周辺環境:新百合ヶ丘エルミロード(衣料品のブティック、スーパーマーケット、ベーカリー、フードコートが入る 8 階建てのショッピング センター。)

ショッピングセンター

約1,380m

約1,470m

ショッピングセンター

周辺環境:イオンスタイル新百合ヶ丘(映画館やイオンをはじめとして様々な商業施設があり、大変便利な施設です。)

ショッピングセンター

約1,470m

約800m

スーパー

周辺環境:西友新ゆりグリーンタウン店(年中無休で営業しています。新百合ヶ丘駅よりバスにて約10分の距離にあります。)

スーパー

約800m

約1,640m

中学校

周辺環境:長沢中学校(広いグランドで部活や体育祭など、団体競技で青春を謳歌。1学年4クラス、約440人の生徒数。確かな学力、豊かな心を育てるのが目標の学校。)

中学校

約1,640m

約610m

小学校

周辺環境:南百合丘小学校(お子様が大切な成長期を過ごす小学校。のびのびと過ごし、広い校庭で元気に駆け回ったり、どんどん成長していくお子様の姿が目に浮かびます。)

小学校

約610m

約530m

公園

周辺環境:王禅寺公園(閑静な住宅街の中にある公園です。遊具のある広場が二か所あるほか、原っぱや公園の真中に遊歩道があります。野鳥もおり、自然にいやされます。)

公園

約530m

約1,400m

スーパー

周辺環境:いなげや 新ゆりヨネッティー王禅寺前店(営業時間9時から22時、駐車場226台完備の大型スーパーです。)

スーパー

約1,400m

約1,400m

ショッピングセンター

周辺環境:新百合丘オーパ (新百合ヶ丘駅目の前にある、大型ショッピング施設。ユニクロ、無印良品、100均、食料品、レストランなど、欲しいものが揃います。)

ショッピングセンター

約1,400m

約1,300m

スーパー

周辺環境:イトーヨーカドー・新百合ヶ丘店(駅を降りたら徒歩1分で買い物ができます。品揃えも豊富で低価格。このエリアの買い物事情は困りません。)

スーパー

約1,300m

価格 5,180万円
物件種別 新築一戸建て
間取り 3LDK
所在地 川崎市麻生区 王禅寺西3丁目
交通
  • 小田急線「新百合ヶ丘」駅 徒歩 18 分
  • 小田急線「百合ヶ丘」駅 徒歩 22 分
土地面積 97.23㎡
建物面積 77.60㎡
学区 南百合丘小学校、長沢中学校
用途地域 第一種低層住居専用
建ぺい率 40%
容積率 80%
地目 宅地
駐車場 有り カースペース
接道 東7m
権利 所有権
私道面積 無し
セットバック 無し
建物構造 木造
建物階数 2階
築年月 2025年12月
入居日 即時
都市計画 市街化区域
取引態様 仲介
物件番号 A1207
設備 公営水道、公共下水、省エネルギー対策、耐震構造、外壁サイディング、駐車場1台、閑静な住宅地、都市近郊、地盤調査済、前道6m以上、市街地が近い、周辺交通量少なめ、スーパーが近い(10分以内)、小学校徒歩10分以内、公園5分以内、システムキッチン、ガス3口、カウンタキッチン、食器洗い機付き、浄水器、ユニットバス、追い焚き、浴室乾燥機、ウォシュレット、オートバス付き、トイレ2ヶ所、TV付浴室、浴室1坪以上、浴室に窓、暖房便座、浴室暖房、バルコニー、2階建、グルニエ、省エネ給湯器、採光2面、全室南向き、南向き、フローリング、全室フローリング、クローゼット、収納、床下収納、下駄箱、全居室収納、シャンプドレッサー付き、モニタ付きインターフォン、カードキー、複層ガラス、火災警報器(報知機)、通風良好、陽当り良好、24時間換気システム、建物10年保証
建築確認番号 第24UDI1K建02091号
特記事項 壁面後退:有/景観法:有/宅地造成工事規制区域:有/高度地区:有/日影制限:有/敷地面積最低限度:有/高さ限度:有/建築基準法22条による区域。 /
備考 「新百合ヶ丘」駅徒歩18分 車通りの少ない閑静な住宅街 グルニエやWICなど豊富な収納スペースを確保

こだわりポイント

  • 建売だけど一味違うこだわり建物
  • カワイイ系のこだわり建物
  • 耐震に配慮された建物
  • 断熱に配慮された建物
  • 省エネに配慮された建物
  • 食器洗い洗浄乾燥機
  • 浴室換気乾燥暖房機
  • 運転ラクラク生活
  • 区画整理分譲地内に住む
  • 自然を感じる暮らし
  • LDKは1階に
  • 2階建て住宅限定
  • ウォークインクローゼット
  • 対面キッチン
  • 浴室1坪以上
  • ロフト・小屋裏収納
  • 小学校10分以内
  • 大規模公園10分以内
  • スーパー10分以内
  • コンビニ10分以内
  • 公園10分以内
  • 都市ガス
  • 道路広々(5m以上)
  • 日当たり良好
  • 道路と段差無し
  • 低層住居専用地域

お気軽にどうぞ!

資料請求 現地見学 電話でお問い合わせ
0120-150-580

このエリアでお探しの方へ

川崎市多摩区西生田5丁目 新築一戸建 4880万円

小田急線「読売ランド前」駅 徒歩 13 分

小田急線「百合ヶ丘」駅 徒歩 14 分

川崎市多摩区 西生田5丁目

4,880万円

2LDK+2S

川崎市麻生区王禅寺 新築一戸建 4990万円 2号棟

小田急線「新百合ヶ丘」駅 バス停「琴平下」まで 徒歩 6 分 バス利用 20分

田園都市線「あざみ野」駅 バス停「虹が丘営業所」まで 徒歩 6 分 バス利用 15分

川崎市麻生区 王禅寺

4,990万円

4LDK

稲城市平尾2丁目 新築一戸建 4999万円 2号棟

小田急多摩線「五月台」駅 徒歩 11 分

小田急線「新百合ヶ丘」駅 徒歩 29 分

稲城市 平尾2丁目

4,999万円

4LDK

川崎市麻生区東百合丘1丁目 新築一戸建 5080万円

小田急線「新百合ヶ丘」駅 バス停「中の台」まで 徒歩 7 分 バス利用 22分

小田急線「百合ヶ丘」駅 バス停「中の台」まで 徒歩 7 分 バス利用 13分

川崎市麻生区 東百合丘1丁目

5,080万円

4LDK

川崎市麻生区細山8丁目 新築一戸建 5080万円

小田急線「新百合ヶ丘」駅 バス停「千代ヶ丘九丁目」まで 徒歩 10 分 バス利用 10分

小田急線「読売ランド前」駅 徒歩 29 分

川崎市麻生区 細山8丁目

5,080万円

4LDK

横浜市青葉区もみの木台 新築一戸建 5190万円 B棟

田園都市線「あざみ野」駅 バス停「もみの木台」まで 徒歩 3 分 バス利用 7分

小田急線「新百合ヶ丘」駅 バス停「もみの木台」まで 徒歩 3 分 バス利用 19分

横浜市青葉区 もみの木台

5,190万円

2SLDK

川崎市麻生区千代ケ丘6丁目 新築一戸建 5280万円 3号棟

小田急線「百合ヶ丘」駅 徒歩 16 分

小田急線「新百合ヶ丘」駅 バス停「千代ヶ丘七丁目」まで 徒歩 2 分 バス利用 5分

川崎市麻生区 千代ケ丘6丁目

5,280万円

3SLDK

川崎市麻生区高石5丁目 新築一戸建 5380万円

小田急線「百合ヶ丘」駅 徒歩 13 分

小田急線「新百合ヶ丘」駅 徒歩 21 分

川崎市麻生区 高石5丁目

5,380万円

4LDK

稲城市坂浜 新築一戸建 5380万円 10号棟

京王相模原線「若葉台」駅 徒歩 18 分

小田急線「新百合ヶ丘」駅 バス停「若葉台一丁目」まで 徒歩 7 分 バス利用 24分

稲城市 坂浜

5,380万円

2SLDK

横浜市青葉区もみの木台 新築一戸建 5450万円 A棟

田園都市線「あざみ野」駅 バス停「もみの木台」まで 徒歩 3 分 バス利用 7分

小田急線「新百合ヶ丘」駅 バス停「もみの木台」まで 徒歩 3 分 バス利用 19分

横浜市青葉区 もみの木台

5,450万円

2SLDK

稲城市坂浜 新築一戸建 5480万円 11号棟

京王相模原線「若葉台」駅 徒歩 18 分

小田急線「新百合ヶ丘」駅 バス停「若葉台一丁目」まで 徒歩 7 分 バス利用 24分

稲城市 坂浜

5,480万円

2LDK+2S

川崎市麻生区細山4丁目 新築一戸建 4980万円 3号棟

小田急線「読売ランド前」駅 徒歩 21 分

京王相模原線「京王よみうりランド」駅 バス停「細山」まで 徒歩 4 分 バス利用 21分

川崎市麻生区 細山4丁目

4,980万円

4SLDK

お気軽にどうぞ!

資料請求 現地見学 電話でお問い合わせ
0120-150-580
来店予約