1. トップページ
  2. 建物完成しました! 今週末内覧会開催中!「上大岡」駅利用 新築一戸建て ロフト完備

建物完成しました! 今週末内覧会開催中!「上大岡」駅利用 新築一戸建て ロフト完備

価格
4,480万円
物件種別
新築一戸建て
間取り
4LDK
所在地
横浜市港南区 芹が谷4丁目
交通
  • 京浜急行本線「上大岡」駅 バス停「せりぎんタウン」まで 徒歩 4 分 バス利用 16分
  • ブルーライン「上永谷」駅 バス停「澁谷台」まで 徒歩 3 分 バス利用 8分
土地面積
119.01㎡
建物面積
94.39㎡
  • 前回情報更新日 2026.04.28
  • 次回情報更新予定日 2026.05.12
資料請求 現地見学 電話でお問い合わせ
0120-150-580
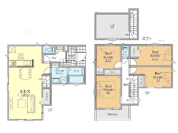
間取図
間取図

この物件のココがオススメ!

2路線が乗り入れる「上大岡」駅利用。全室2面採光なので、明るく通風良好。LDKは、対面キッチン・リビングイン階段。季節物等の収納に便利な固定階段のロフト完備。

お気軽にどうぞ!

資料請求 現地見学 電話でお問い合わせ
0120-150-580

地図

申し訳ありません
こちらは会員限定機能です

会員登録で利用できる6つの便利機能

詳しく見る

お気軽にどうぞ!

資料請求 現地見学 電話でお問い合わせ
0120-150-580

頭金0万円・金利0.495%の場合

ボーナス時(年2回)お支払額

0

この物件の月々のお支払額

125,480

年収に対する返済比率

50

  • ※会員登録し、詳細情報を記入されますと、全ての物件で自動的に金額が表示され、大変便利です。
  • ※まだ会員登録をされていない方は、下記チェック欄をご記入ください。
  • ※上記計算は物件価格4,480万円+諸経費 8%込みの金額による結果となります。
  • ※返済金額はあくまでも目安です。

お客様の条件からシミュレーションするには?

会員登録
マイページから登録

金利

直接入力する

ボーナス払い(年2回)

返済年数

頭金

直接入力する

 万円(半角数字)

年収

 万円(半角数字)
価格 4,480万円
物件種別 新築一戸建て
間取り 4LDK
所在地 横浜市港南区 芹が谷4丁目
交通
  • 京浜急行本線「上大岡」駅 バス停「せりぎんタウン」まで 徒歩 4 分 バス利用 16分
  • ブルーライン「上永谷」駅 バス停「澁谷台」まで 徒歩 3 分 バス利用 8分
土地面積 119.01㎡
建物面積 94.39㎡
学区 芹が谷南小学校、芹が谷中学校
用途地域 第一種低層住居専用
建ぺい率 50%
容積率 80%
地目 宅地
駐車場 有り カースペース
接道 東4m
権利 所有権
私道面積 有 0.17㎡
セットバック 無し
建物構造 木造
建物階数 2階
築年月 2026年03月
入居日 即時
都市計画 市街化区域
取引態様 仲介
物件番号 48749
設備 公営水道、公共下水、駐車場2台以上、緑豊かな住宅地、閑静な住宅地、スーパーが近い(10分以内)、2沿線以上利用可、小学校徒歩10分以内、中学校徒歩10分以内、保育施設・幼稚園5分以内、コンビニ5分以内、システムキッチン、ガス3口、食器洗い機付き、I型キッチン、ユニットバス、追い焚き、浴室乾燥機、ウォシュレット、トイレ2ヶ所、浴室に窓、暖房便座、浴室暖房、バルコニー、南面バルコニー、2階建、ロフト、LDK18畳以上、採光3面、全室2面採光、フローリング、リビング階段、クローゼット、収納、床下収納、下駄箱、屋根裏収納、全居室収納、シャンプドレッサー付き、フラット35Sに対応、モニタ付きインターフォン、複層ガラス、24時間換気システム、建物10年保証
建築確認番号 -
特記事項 崖下につき建築制限 崖上につき建築制限 宅地造成工事規制区域 高度地区 日影制限 敷地面積最低限度 建物高さ10m以下 過小宅地 建築基準法第22条による区域 建物建築・再建築の際、深基礎、基礎杭、擁壁の補修・再構築、外壁後退等の対策が必要となる場合有。建物建築・再建築の際、防護壁の設置、高基礎、外壁後退等の対策が必要となる場合有。 崖下につき建築制限:有/崖上につき建築制限:有/宅地造成工事規制区域:有/高度地区:有/日影制限:有/敷地面積最低限度:有/高さ限度:有/過小宅地 建築基準法第22条による区域 建物建築・再建築の際、深基礎、基礎杭、擁壁の補修・再構築、外壁後退等の対策が必要となる場合有。建物建築・再建築の際、防護壁の設置、高基礎、外壁後退等の対策が必要となる場合有。 /
備考 2路線が乗り入れる「上大岡」駅利用。全室2面採光なので、明るく通風良好。LDKは、対面キッチン・リビングイン階段。季節物等の収納に便利な固定階段のロフト完備。

こだわりポイント

  • 道路狭い(4メートル未満)
  • 食器洗い洗浄乾燥機
  • 浴室換気乾燥暖房機
  • 急行電車でスピード通勤
  • 始発で座ってゆったり通勤
  • 子供の多い街に住む
  • 大人の二人暮らし
  • LDKは1階に
  • 2階建て住宅限定
  • シューズインクローク
  • リビングイン階段
  • LDK18帖以上
  • 対面キッチン
  • ロフト・小屋裏収納
  • 小学校10分以内
  • スーパー10分以内
  • コンビニ10分以内
  • 幼稚園10分以内
  • 公園10分以内
  • 都市ガス
  • フラット35利用可
  • カースペース2台

お気軽にどうぞ!

資料請求 現地見学 電話でお問い合わせ
0120-150-580

このエリアでお探しの方へ

今週末モデルハウス見学会開催中!「上永谷」駅利用 新築一戸建て 小屋裏収納付き

京浜急行本線「上大岡」駅 徒歩 21 分

ブルーライン「上永谷」駅 徒歩 20 分

横浜市港南区 東永谷1丁目

4,180万円

3LDK

値下げしました!今週末内覧会開催中!「上永谷」駅徒歩9分 新築一戸建て(A) 閑静な住宅地

ブルーライン「上永谷」駅 徒歩 9 分

京浜急行本線「上大岡」駅 バス停「月見ヶ丘団地」まで 徒歩 4 分 バス利用 7分

横浜市港南区 上永谷1丁目

4,280万円

2SLDK

値下げしました!今週末内覧会開催中!「上永谷」駅徒歩9分 新築一戸建て(B) 閑静な住宅地

ブルーライン「上永谷」駅 徒歩 9 分

京浜急行本線「上大岡」駅 バス停「月見ヶ丘団地」まで 徒歩 4 分 バス利用 7分

横浜市港南区 上永谷1丁目

4,380万円

2SLDK

今週末モデルハウス見学会開催中!「上永谷」駅利用 新築一戸建て 全居室6帖以上

ブルーライン「上永谷」駅 徒歩 16 分

京浜急行本線「上大岡」駅 バス停「公務員住宅入口」まで 徒歩 7 分 バス利用 12分

横浜市港南区 野庭町

4,380万円

3LDK

今週末モデルハウス見学会開催中!「上永谷」駅徒歩9分 新築一戸建て エコジョーズ

ブルーライン「上永谷」駅 徒歩 9 分

京浜急行本線「上大岡」駅 バス停「月見ケ丘団地前」まで 徒歩 5 分 バス利用 7分

横浜市港南区 上永谷1丁目

4,480万円

2SLDK

今週末モデルハウス見学会開催中!「下永谷」駅利用 新築一戸建て 角地 ロフト 吹抜け

ブルーライン「下永谷」駅 徒歩 17 分

ブルーライン「上永谷」駅 徒歩 20 分

横浜市港南区 芹が谷5丁目

4,662万円

3LDK

値下げしました!内覧会開催中!「港南中央」駅徒歩6分 中古一戸建て R7年11月リノベーション完了

ブルーライン「港南中央」駅 徒歩 6 分

京浜急行本線「上大岡」駅 徒歩 18 分

横浜市港南区 港南3丁目

4,180万円

3LDK

今週末モデルハウス見学会開催中!「港南台」駅利用 新築一戸建て(B) エコジョーズ

根岸線「港南台」駅 徒歩 19 分

京浜急行本線「上大岡」駅 バス停「日野小学校前」まで 徒歩 9 分 バス利用 10分

横浜市港南区 日野中央2丁目

4,580万円

2LDK+2S

今週末モデルハウス見学会開催中!「港南台」駅利用 新築一戸建て(C) エコジョーズ

根岸線「港南台」駅 徒歩 19 分

京浜急行本線「上大岡」駅 バス停「日野小学校前」まで 徒歩 9 分 バス利用 10分

横浜市港南区 日野中央2丁目

4,580万円

2LDK+2S

今週末モデルハウス見学会開催中!「上永谷」駅利用 新築一戸建て 小屋裏収納5.5帖

ブルーライン「上永谷」駅 徒歩 25 分

京浜急行本線「上大岡」駅 バス停「芹が谷団地前」まで 徒歩 5 分 バス利用 17分

横浜市港南区 芹が谷5丁目

3,480万円

3LDK

今週末モデルハウス見学会開催中!「上永谷」駅徒歩15分 新築一戸建て エコジョーズ

ブルーライン「上永谷」駅 徒歩 15 分

ブルーライン「港南中央」駅 徒歩 19 分

横浜市港南区 日野4丁目

5,180万円

1LDK+2S

今週末モデルハウス見学会開催中!「上永谷」駅徒歩12分 新築一戸建て 20帖LDK SIC WIC

ブルーライン「上永谷」駅 徒歩 12 分

京浜急行本線「上大岡」駅 バス停「天谷」まで 徒歩 5 分 バス利用 18分

横浜市港南区 野庭町

5,380万円

3LDK

お気軽にどうぞ!

資料請求 現地見学 電話でお問い合わせ
0120-150-580
来店予約