1. トップページ
  2. 建物完成しました! 今週末内覧会開催中!「下永谷」駅利用 新築一戸建て 全室2面採光

建物完成しました! 今週末内覧会開催中!「下永谷」駅利用 新築一戸建て 全室2面採光

価格
4,980万円
物件種別
新築一戸建て
間取り
4LDK
所在地
横浜市港南区 下永谷5丁目
交通
  • ブルーライン「下永谷」駅 徒歩 19 分
  • 横須賀線「東戸塚」駅 バス停「柏尾台住宅入口」まで 徒歩 5 分 バス利用 6分
土地面積
125.82㎡
建物面積
96.05㎡
  • 前回情報更新日 2026.03.30
  • 次回情報更新予定日 2026.04.13
資料請求 現地見学 電話でお問い合わせ
0120-150-580
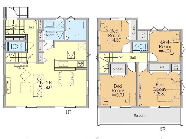
間取図
間取図

この物件のココがオススメ!

BL「下永谷」駅利用。全室2面採光なので、明るく通風良好。LDKは、対面キッチン。南面ワイドバルコニー付。食洗機・浴室乾燥機・ペアガラス他設備充実。

お気軽にどうぞ!

資料請求 現地見学 電話でお問い合わせ
0120-150-580

地図

申し訳ありません
こちらは会員限定機能です

会員登録で利用できる6つの便利機能

詳しく見る

お気軽にどうぞ!

資料請求 現地見学 電話でお問い合わせ
0120-150-580

頭金0万円・金利0.495%の場合

ボーナス時(年2回)お支払額

0

この物件の月々のお支払額

139,486

年収に対する返済比率

56

  • ※会員登録し、詳細情報を記入されますと、全ての物件で自動的に金額が表示され、大変便利です。
  • ※まだ会員登録をされていない方は、下記チェック欄をご記入ください。
  • ※上記計算は物件価格4,980万円+諸経費 8%込みの金額による結果となります。
  • ※返済金額はあくまでも目安です。

お客様の条件からシミュレーションするには?

会員登録
マイページから登録

金利

直接入力する

ボーナス払い(年2回)

返済年数

頭金

直接入力する

 万円(半角数字)

年収

 万円(半角数字)
価格 4,980万円
物件種別 新築一戸建て
間取り 4LDK
所在地 横浜市港南区 下永谷5丁目
交通
  • ブルーライン「下永谷」駅 徒歩 19 分
  • 横須賀線「東戸塚」駅 バス停「柏尾台住宅入口」まで 徒歩 5 分 バス利用 6分
土地面積 125.82㎡
建物面積 96.05㎡
学区 永谷小学校、上永谷中学校
用途地域 第二種低層住居専用
建ぺい率 50%
容積率 80%
地目 宅地
駐車場 有り カースペース
接道 北東8.6m
権利 所有権
私道面積 無し
セットバック 無し
建物構造 木造
建物階数 2階
築年月 2026年01月
入居日 即時
都市計画 市街化区域
取引態様 仲介
物件番号 48591
設備 公営水道、公共下水、駐車場2台以上、緑豊かな住宅地、閑静な住宅地、前道6m以上、スーパーが近い(10分以内)、2沿線以上利用可、総合病院徒歩10分以内、小学校徒歩10分以内、公園5分以内、コンビニ5分以内、システムキッチン、ガス3口、カウンタキッチン、食器洗い機付き、I型キッチン、パントリー(食器・食品の収納庫)、ユニットバス、追い焚き、浴室乾燥機、ウォシュレット、トイレ2ヶ所、浴室1坪以上、浴室に窓、暖房便座、浴室暖房、バルコニー、ワイドバルコニー、南面バルコニー、2階建、LDK18畳以上、採光3面、全室2面採光、フローリング、クローゼット、収納、床下収納、下駄箱、全居室収納、シャンプドレッサー付き、モニタ付きインターフォン、複層ガラス、24時間換気システム、建物10年保証
建築確認番号 第25KAK建確00851号
特記事項 宅地造成工事規制区域 高度地区 日影制限 敷地面積最低限度 建物高さ10m以下 建築基準法第22条による区域 宅地造成工事規制区域:有/高度地区:有/日影制限:有/敷地面積最低限度:有/高さ限度:有/建築基準法第22条による区域。 /
備考 BL「下永谷」駅利用。全室2面採光なので、明るく通風良好。LDKは、対面キッチン。南面ワイドバルコニー付。食洗機・浴室乾燥機・ペアガラス他設備充実。

こだわりポイント

  • 断熱に配慮された建物
  • 食器洗い洗浄乾燥機
  • 浴室換気乾燥暖房機
  • 2沿線利用であんしん通勤
  • 大人の二人暮らし
  • LDKは1階に
  • 2階建て住宅限定
  • LDK18帖以上
  • 広々バルコニー
  • 対面キッチン
  • 浴室1坪以上
  • パントリー
  • 小学校10分以内
  • スーパー10分以内
  • コンビニ10分以内
  • 総合病院10分以内
  • 公園10分以内
  • 都市ガス
  • カースペース2台
  • 道路広々(5m以上)

お気軽にどうぞ!

資料請求 現地見学 電話でお問い合わせ
0120-150-580

このエリアでお探しの方へ

値下げしました!今週末内覧会開催中! 「下永谷」駅利用 新築一戸建て 床暖房付き ペアガラス

ブルーライン「下永谷」駅 徒歩 15 分

横須賀線「東戸塚」駅 バス停「般若寺橋」まで 徒歩 10 分 バス利用 10分

横浜市港南区 下永谷5丁目

4,698万円

4LDK

今週末モデルハウス見学会開催中!「上大岡」駅利用 新築一戸建て(2) エコジョーズ

京浜急行本線「上大岡」駅 徒歩 17 分

横須賀線「東戸塚」駅 バス停「南高校前」まで 徒歩 6 分 バス利用 20分

横浜市港南区 大久保3丁目

4,680万円

2LDK+2S

今週末モデルハウス見学会開催中!「洋光台」駅利用 新築一戸建て 角地

根岸線「洋光台」駅 徒歩 19 分

ブルーライン「港南中央」駅 徒歩 21 分

横浜市港南区 笹下6丁目

4,980万円

4LDK

値下げしました!「上永谷」駅徒歩8分 新築一戸建て(2) WIC・パントリー完備

ブルーライン「上永谷」駅 徒歩 8 分

京浜急行本線「上大岡」駅 バス停「丸山台」まで 徒歩 4 分 バス利用 20分

横浜市港南区 丸山台2丁目

4,990万円

3SLDK

値下げしました!今週末内覧会開催中!「港南台」駅徒歩13分 未入居中古一戸建て(4) 閑静な住宅地

根岸線「港南台」駅 徒歩 13 分

京浜急行本線「上大岡」駅 バス停「日野」まで 徒歩 13 分 バス利用 10分

横浜市港南区 港南台1丁目

5,180万円

3SLDK

今週末モデルハウス見学会開催中!「上大岡」駅徒歩11分 新築一戸建て 角地

京浜急行本線「上大岡」駅 徒歩 11 分

ブルーライン「上大岡」駅 徒歩 11 分

横浜市港南区 上大岡東3丁目

5,280万円

4LDK

今週末内覧会開催中!「下永谷」駅利用 中古一戸建て 2LDK+2LDK

ブルーライン「下永谷」駅 徒歩 20 分

横須賀線「東戸塚」駅 バス停「芹が谷団地前」まで 徒歩 8 分 バス利用 10分

横浜市港南区 芹が谷5丁目

4,199万円

4LDK

建物完成しました!今週末内覧会開催中!「下永谷」駅徒歩2分 新築一戸建て(2) カースペース2台

ブルーライン「下永谷」駅 徒歩 2 分

京浜急行本線「上大岡」駅 バス停「スポーツ公園前」まで 徒歩 7 分 バス利用 23分

横浜市港南区 日限山1丁目

5,780万円

4LDK

今週末モデルハウス見学会開催中!「上永谷」駅徒歩14分 新築一戸建て(3) 全室2面採光

ブルーライン「上永谷」駅 徒歩 14 分

ブルーライン「下永谷」駅 徒歩 14 分

横浜市港南区 下永谷2丁目

6,080万円

4LDK

今週末モデルハウス見学会開催中!「上永谷」駅徒歩14分 新築一戸建て(5) 全室2面採光

ブルーライン「上永谷」駅 徒歩 14 分

ブルーライン「下永谷」駅 徒歩 14 分

横浜市港南区 下永谷2丁目

6,280万円

4LDK

値下げしました!「下永谷」駅利用 新築一戸建て カースペース3台

ブルーライン「下永谷」駅 徒歩 17 分

東海道本線「戸塚」駅 バス停「舞岡」まで 徒歩 10 分 バス利用 12分

横浜市港南区 下永谷5丁目

6,290万円

4LDK

建物完成しました!今週末内覧会開催中!「下永谷」駅徒歩2分 新築一戸建て(1) カースペース2台

ブルーライン「下永谷」駅 徒歩 2 分

京浜急行本線「上大岡」駅 バス停「スポーツ公園前」まで 徒歩 7 分 バス利用 23分

横浜市港南区 日限山1丁目

6,580万円

4LDK

お気軽にどうぞ!

資料請求 現地見学 電話でお問い合わせ
0120-150-580
来店予約