1. トップページ
  2. 今週末モデルハウス見学会開催中!「上大岡」駅利用 新築一戸建て(2) エコジョーズ

今週末モデルハウス見学会開催中!「上大岡」駅利用 新築一戸建て(2) エコジョーズ

価格
4,680万円
物件種別
新築一戸建て
間取り
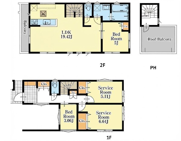
2LDK+2S
所在地
横浜市港南区 大久保3丁目
交通
  • 京浜急行本線「上大岡」駅 徒歩 17 分
  • 横須賀線「東戸塚」駅 バス停「南高校前」まで 徒歩 6 分 バス利用 20分
土地面積
79.24㎡
建物面積
107.65㎡
  • 前回情報更新日 2026.02.24
  • 次回情報更新予定日 2026.03.10
資料請求 現地見学 電話でお問い合わせ
0120-150-580
間取り:間取図2号棟
間取り:間取図2号棟
区画図
区画図

この物件のココがオススメ!

2路線が乗り入れる「上大岡」駅利用。省エネ性能に優れたガス給湯器ecoジョーズ・浴室乾燥機・ペアガラス他設備充実。日差し溢れるルーフバルコニー付。

お気軽にどうぞ!

資料請求 現地見学 電話でお問い合わせ
0120-150-580

地図

申し訳ありません
こちらは会員限定機能です

会員登録で利用できる6つの便利機能

詳しく見る

お気軽にどうぞ!

資料請求 現地見学 電話でお問い合わせ
0120-150-580

頭金0万円・金利0.495%の場合

ボーナス時(年2回)お支払額

0

この物件の月々のお支払額

131,082

年収に対する返済比率

52

  • ※会員登録し、詳細情報を記入されますと、全ての物件で自動的に金額が表示され、大変便利です。
  • ※まだ会員登録をされていない方は、下記チェック欄をご記入ください。
  • ※上記計算は物件価格4,680万円+諸経費 8%込みの金額による結果となります。
  • ※返済金額はあくまでも目安です。

お客様の条件からシミュレーションするには?

会員登録
マイページから登録

金利

直接入力する

ボーナス払い(年2回)

返済年数

頭金

直接入力する

 万円(半角数字)

年収

 万円(半角数字)
価格 4,680万円
物件種別 新築一戸建て
間取り 2LDK+2S
所在地 横浜市港南区 大久保3丁目
交通
  • 京浜急行本線「上大岡」駅 徒歩 17 分
  • 横須賀線「東戸塚」駅 バス停「南高校前」まで 徒歩 6 分 バス利用 20分
土地面積 79.24㎡
建物面積 107.65㎡
学区 下永谷小学校、港南中学校
用途地域 第一種中高層住居専用
建ぺい率 60%
容積率 150%
地目 宅地
駐車場 有り ビルトイン車庫 駐車場面積:12.42㎡
接道 南西4.5m
権利 所有権
私道面積 無し
セットバック 無し
建物構造 木造
建物階数 2階
築年月 2026年03月
入居日 2026年04月
都市計画 市街化区域
取引態様 仲介
物件番号 48385-2
設備 公営水道、公共下水、外壁サイディング、ビルトインガレージ、駐車場1台、緑豊かな住宅地、閑静な住宅地、スーパーが近い(10分以内)、2沿線以上利用可、小学校徒歩10分以内、公園5分以内、コンビニ5分以内、システムキッチン、ガス3口、I型キッチン、ユニットバス、追い焚き、浴室乾燥機、ウォシュレット、トイレ2ヶ所、浴室に窓、暖房便座、浴室暖房、バルコニー、ルーフバルコニー、2階建、LDK18畳以上、省エネ給湯器、全室2面採光、フローリング、クローゼット、収納、床下収納、下駄箱、シャンプドレッサー付き、フラット35Sに対応、モニタ付きインターフォン、全居室複層ガラスか複層サッシ、24時間換気システム、建物10年保証
建築確認番号 第KBI-YKH25-10-2858号
特記事項 宅地造成工事規制区域 高度地区 準防火地域 日影制限 建築基準法第22条による区域 建物面積に車庫12.42平米含建物面積にペントハウス4.14平米含 宅地造成工事規制区域:有/高度地区:有/準防火地域:有/日影制限:有/建築基準法第22条による区域 建物面積に車庫12.42平米含建物面積にペントハウス4.14平米含。 /
備考 2路線が乗り入れる「上大岡」駅利用。省エネ性能に優れたガス給湯器ecoジョーズ・浴室乾燥機・ペアガラス他設備充実。日差し溢れるルーフバルコニー付。

こだわりポイント

  • 断熱に配慮された建物
  • 省エネに配慮された建物
  • 浴室換気乾燥暖房機
  • 急行電車でスピード通勤
  • 2沿線利用であんしん通勤
  • 子供の多い街に住む
  • 大人の二人暮らし
  • 2階建て住宅限定
  • スカイバルコニー
  • リビングイン階段
  • LDKは2階に
  • LDK18帖以上
  • 対面キッチン
  • 小学校10分以内
  • スーパー10分以内
  • コンビニ10分以内
  • 保育園10分以内
  • 公園10分以内
  • 都市ガス
  • フラット35利用可

お気軽にどうぞ!

資料請求 現地見学 電話でお問い合わせ
0120-150-580

このエリアでお探しの方へ

川崎市麻生区細山4丁目 新築一戸建 4380万円 2号棟

小田急線「読売ランド前」駅 徒歩 21 分

京王相模原線「京王よみうりランド」駅 バス停「細山」まで 徒歩 4 分 バス利用 21分

川崎市麻生区 細山4丁目

4,380万円

3LDK

建物完成しました! 今週末内覧会開催中!「三ツ境」駅利用 新築一戸建て 閑静な住宅地

相模鉄道線「三ッ境」駅 徒歩 17 分

いずみ野線「二俣川」駅 バス停「ニュータウン第7」まで 徒歩 9 分 バス利用 9分

横浜市旭区 金が谷1丁目

4,380万円

4LDK

川崎市高津区明津 一戸建 4380万円

東急東横線「元住吉」駅 徒歩 20 分

横須賀線「武蔵小杉」駅 バス停「井田営業所」まで 徒歩 3 分 バス利用 9分

川崎市高津区 明津

4,380万円

2SLDK

今週末モデルハウス見学会開催中!「ゆめが丘」駅利用 新築一戸建て(C) 小屋裏収納付き

いずみ野線「ゆめが丘」駅 バス停「富士見ケ丘入口」まで 徒歩 2 分 バス利用 9分

東海道本線「戸塚」駅 バス停「二軒家」まで 徒歩 12 分 バス利用 13分

横浜市戸塚区 深谷町

4,380万円

4LDK

川崎市宮前区水沢3丁目 新築一戸建 4380万円 1号棟

田園都市線「宮前平」駅 バス停「水沢一丁目」まで 徒歩 5 分 バス利用 15分

小田急線「新百合ヶ丘」駅 バス停「稗原」まで 徒歩 7 分 バス利用 21分

川崎市宮前区 水沢3丁目

4,380万円

2LDK+2S

値下げしました!「本郷台」駅徒歩15分 新築一戸建て(D)ルーフバルコニー付き

横須賀線「大船」駅 バス停「鎌倉女子大前」まで 徒歩 3 分 バス利用 4分

東海道本線「戸塚」駅 バス停「鎌倉女子大前」まで 徒歩 3 分 バス利用 28分

鎌倉市 岩瀬

4,380万円

4LDK

横浜市西区西戸部町3丁目 新築一戸建 4380万円

京浜急行本線「戸部」駅 徒歩 14 分

相模鉄道線「西横浜」駅 徒歩 12 分

横浜市西区 西戸部町3丁目

4,380万円

3LDK

川崎市宮前区西野川2丁目 新築一戸建 4380万円 B号棟

南武線「武蔵新城」駅 バス停「野川小学校」まで 徒歩 4 分 バス利用 14分

田園都市線「宮前平」駅 バス停「野川小学校」まで 徒歩 4 分 バス利用 11分

川崎市宮前区 西野川2丁目

4,380万円

3SLDK

川崎市宮前区西野川2丁目 新築一戸建 4380万円 F号棟

南武線「武蔵新城」駅 バス停「野川小学校」まで 徒歩 4 分 バス利用 14分

田園都市線「宮前平」駅 バス停「野川小学校」まで 徒歩 4 分 バス利用 11分

川崎市宮前区 西野川2丁目

4,380万円

3SLDK

今週末内覧会開催中!「港南中央」駅徒歩6分 中古一戸建て R7年11月リノベーション完了

ブルーライン「港南中央」駅 徒歩 6 分

京浜急行本線「上大岡」駅 徒歩 18 分

横浜市港南区 港南3丁目

4,380万円

3LDK

値下げしました! 「弥生台」駅徒歩13分 新築一戸建て(20) ルーフバルコニー

いずみ野線「弥生台」駅 徒歩 13 分

いずみ野線「緑園都市」駅 徒歩 23 分

横浜市泉区 新橋町

4,380万円

4LDK

横浜市鶴見区栄町通2丁目 中古一戸建 4380万円

京浜急行本線「鶴見市場」駅 徒歩 15 分

京浜東北線「鶴見」駅 徒歩 20 分

横浜市鶴見区 栄町通2丁目

4,380万円

4LDK

お気軽にどうぞ!

資料請求 現地見学 電話でお問い合わせ
0120-150-580
来店予約