1. トップページ
  2. 今週末モデルハウス見学会開催中!「六浦」駅利用 新築一戸建て(6)SIC完備 リビング階段

今週末モデルハウス見学会開催中!「六浦」駅利用 新築一戸建て(6)SIC完備 リビング階段

価格
4,380万円
物件種別
新築一戸建て
間取り
3LDK
所在地
横浜市金沢区 六浦3丁目
交通
  • 逗子線「六浦」駅 徒歩 13 分
  • 金沢シーサイドライン「金沢八景」駅 バス停「大道小学校前」まで 徒歩 7 分 バス利用 5分
土地面積
100.60㎡
建物面積
83.07㎡
  • 前回情報更新日 2026.05.07
  • 次回情報更新予定日 2026.05.21
資料請求 現地見学 電話でお問い合わせ
0120-150-580
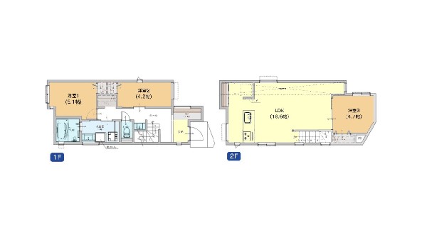
間取り:6号棟間取図
間取り:6号棟間取図
区画図
区画図

この物件のココがオススメ!

京急逗子線「六浦」駅利用。プライバシーに配慮した2階リビング。SIC完備。LDKは対面キッチン・リビングイン階段。食洗機他、設備充実。

お気軽にどうぞ!

資料請求 現地見学 電話でお問い合わせ
0120-150-580

地図

申し訳ありません
こちらは会員限定機能です

会員登録で利用できる6つの便利機能

詳しく見る

お気軽にどうぞ!

資料請求 現地見学 電話でお問い合わせ
0120-150-580

頭金0万円・金利0.495%の場合

ボーナス時(年2回)お支払額

0

この物件の月々のお支払額

122,679

年収に対する返済比率

49

  • ※会員登録し、詳細情報を記入されますと、全ての物件で自動的に金額が表示され、大変便利です。
  • ※まだ会員登録をされていない方は、下記チェック欄をご記入ください。
  • ※上記計算は物件価格4,380万円+諸経費 8%込みの金額による結果となります。
  • ※返済金額はあくまでも目安です。

お客様の条件からシミュレーションするには?

会員登録
マイページから登録

金利

直接入力する

ボーナス払い(年2回)

返済年数

頭金

直接入力する

 万円(半角数字)

年収

 万円(半角数字)
価格 4,380万円
物件種別 新築一戸建て
間取り 3LDK
所在地 横浜市金沢区 六浦3丁目
交通
  • 逗子線「六浦」駅 徒歩 13 分
  • 金沢シーサイドライン「金沢八景」駅 バス停「大道小学校前」まで 徒歩 7 分 バス利用 5分
土地面積 100.60㎡
建物面積 83.07㎡
学区 高舟台小学校、大道中学校
用途地域 第一種低層住居専用
建ぺい率 50%
容積率 100%
地目 宅地
駐車場 有り カースペース
接道 東6.5m
権利 所有権
私道面積 無し
セットバック 無し
建物構造 木造
建物階数 2階
築年月 2026年09月
入居日 2026年10月
都市計画 市街化区域
取引態様 仲介
物件番号 48585-6
設備 公営水道、公共下水、駐車場1台、緑豊かな住宅地、閑静な住宅地、スーパーが近い(10分以内)、2沿線以上利用可、小学校徒歩10分以内、公園5分以内、コンビニ5分以内、システムキッチン、ガス3口、食器洗い機付き、I型キッチン、ユニットバス、追い焚き、浴室乾燥機、ウォシュレット、トイレ2ヶ所、浴室に窓、暖房便座、浴室暖房、2階建、LDK18畳以上、採光2面、フローリング、リビング階段、クローゼット、収納、床下収納、全居室収納、シャンプドレッサー付き、フラット35Sに対応、モニタ付きインターフォン、複層ガラス、全居室複層ガラスか複層サッシ、24時間換気システム、建物10年保証
建築確認番号 第2025SBC-確02977H号
特記事項 崖上につき建築制限 不整形地 宅地造成工事規制区域 高度地区 準防火地域: 日影制限 敷地内段差 敷地面積最低限度 建物高さ10m以下 建築基準法第22条区域 建物建築・再建築の際、深基礎、基礎杭、擁壁の補修・再構築、外壁後退等の対策が必要となる場合有。傾斜地含  地形三角 崖上につき建築制限:有/不整形地:有/宅地造成工事規制区域:有/高度地区:有/準防火地域:有/日影制限:有/敷地内段差:有/敷地面積最低限度:有/高さ限度:有/建築基準法第22条区域 建物建築・再建築の際、深基礎、基礎杭、擁壁の補修・再構築、外壁後退等の対策が必要となる場合有。傾斜地含  地形三角。 /
備考 京急逗子線「六浦」駅利用。プライバシーに配慮した2階リビング。SIC完備。LDKは対面キッチン・リビングイン階段。食洗機他、設備充実。

こだわりポイント

  • ごみ置き場隣接
  • 断熱に配慮された建物
  • 食器洗い洗浄乾燥機
  • 浴室換気乾燥暖房機
  • 2階建て住宅限定
  • シューズインクローク
  • リビングイン階段
  • LDKは2階に
  • LDK18帖以上
  • 対面キッチン
  • 小学校10分以内
  • スーパー10分以内
  • コンビニ10分以内
  • 保育園10分以内
  • 公園10分以内
  • 都市ガス
  • 道路広々(5m以上)

お気軽にどうぞ!

資料請求 現地見学 電話でお問い合わせ
0120-150-580

このエリアでお探しの方へ

値下げしました!建物完成しました! 今週末内覧会開催中!「金沢八景」駅利用 新築一戸建て ロフト

京浜急行本線「金沢八景」駅 徒歩 17 分

逗子線「六浦」駅 徒歩 14 分

横浜市金沢区 六浦3丁目

4,080万円

2SLDK

今週末モデルハウス見学会開催中!「六浦」駅利用 新築一戸建て(7)SIC完備 リビング階段

逗子線「六浦」駅 徒歩 13 分

金沢シーサイドライン「金沢八景」駅 バス停「大道小学校前」まで 徒歩 7 分 バス利用 5分

横浜市金沢区 六浦3丁目

4,280万円

3LDK

今週末モデルハウス見学会開催中!「六浦」駅利用 新築一戸建て(1) 閑静な住宅地

逗子線「六浦」駅 徒歩 16 分

京浜急行本線「金沢八景」駅 バス停「大道小学校前」まで 徒歩 12 分 バス利用 6分

横浜市金沢区 六浦3丁目

4,480万円

3LDK

今週末モデルハウス見学会開催中!「六浦」駅利用 新築一戸建て(2) 閑静な住宅地

逗子線「六浦」駅 徒歩 16 分

京浜急行本線「金沢八景」駅 バス停「大道小学校前」まで 徒歩 12 分 バス利用 6分

横浜市金沢区 六浦3丁目

4,580万円

3LDK

建物完成しました! 今週末内覧会開催中!「六浦」駅利用 新築一戸建て(2) WIC2カ所完備

逗子線「六浦」駅 徒歩 23 分

京浜急行本線「金沢八景」駅 バス停「大道中学校前」まで 徒歩 5 分 バス利用 8分

横浜市金沢区 東朝比奈3丁目

4,680万円

4LDK

値下げしました! 「金沢文庫」駅徒歩15分 新築一戸建て 対面キッチン

京浜急行本線「金沢文庫」駅 徒歩 15 分

京浜急行本線「能見台」駅 徒歩 17 分

横浜市金沢区 片吹

4,299万円

3LDK

今週末モデルハウス見学会開催中!「六浦」駅徒歩5分 新築一戸建て ゆとりの4LDK 床暖房付き

逗子線「六浦」駅 徒歩 5 分

京浜急行本線「金沢八景」駅 徒歩 20 分

横浜市金沢区 六浦南1丁目

5,398万円

4LDK

今週末モデルハウス見学会開催中!「六浦」駅徒歩9分 新築一戸建て(1) 全室2面採光

逗子線「六浦」駅 徒歩 9 分

京浜急行本線「追浜」駅 徒歩 17 分

横浜市金沢区 六浦南1丁目

5,399万円

4LDK

値下げしました!今週末内覧会開催中!「金沢八景」駅徒歩13分 新築一戸建て(3) 長期優良住宅

京浜急行本線「金沢八景」駅 徒歩 13 分

逗子線「金沢八景」駅 徒歩 13 分

横浜市金沢区 柳町

5,580万円

4LDK

今週末モデルハウス見学会開催中!「六浦」駅利用 新築一戸建て 全室南向き カースペース並列2台

逗子線「六浦」駅 徒歩 23 分

京浜急行本線「金沢八景」駅 バス停「三信センター」まで 徒歩 7 分 バス利用 12分

横浜市金沢区 東朝比奈2丁目

5,590万円

4LDK

今週末モデルハウス見学会開催中!「六浦」駅徒歩9分 新築一戸建て(2) 角地

逗子線「六浦」駅 徒歩 9 分

京浜急行本線「追浜」駅 徒歩 17 分

横浜市金沢区 六浦南1丁目

5,699万円

4LDK

今週末モデルハウス見学会開催中!「六浦」駅利用 新築一戸建て SIC完備 リビング階段

逗子線「六浦」駅 徒歩 19 分

金沢シーサイドライン「金沢八景」駅 バス停「三信センター」まで 徒歩 4 分 バス利用 15分

横浜市金沢区 東朝比奈2丁目

5,799万円

4LDK

お気軽にどうぞ!

資料請求 現地見学 電話でお問い合わせ
0120-150-580
来店予約