1. トップページ
  2. 今週末モデルハウス見学会開催中!「六浦」駅利用 新築一戸建て 全室南向き カースペース並列2台

今週末モデルハウス見学会開催中!「六浦」駅利用 新築一戸建て 全室南向き カースペース並列2台

価格
5,590万円
物件種別
新築一戸建て
間取り
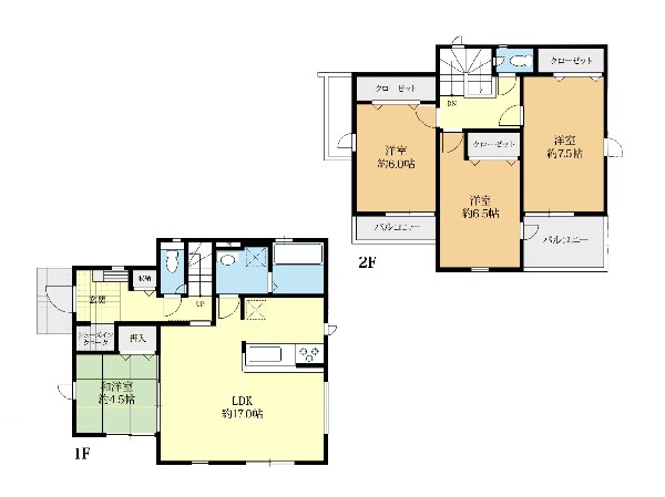
4LDK
所在地
横浜市金沢区 東朝比奈2丁目
交通
  • 逗子線「六浦」駅 徒歩 23 分
  • 京浜急行本線「金沢八景」駅 バス停「三信センター」まで 徒歩 7 分 バス利用 12分
土地面積
174.77㎡
建物面積
101.85㎡
  • 前回情報更新日 2026.04.23
  • 次回情報更新予定日 2026.05.07
資料請求 現地見学 電話でお問い合わせ
0120-150-580
間取図
間取図

この物件のココがオススメ!

京急逗子線「六浦」駅利用。閑静な住宅地。敷地約52坪 南道路接道に付き日当たり良好。LDKは対面キッチンでご家族との会話が弾みます。カースペース並列2台。

お気軽にどうぞ!

資料請求 現地見学 電話でお問い合わせ
0120-150-580

地図

申し訳ありません
こちらは会員限定機能です

会員登録で利用できる6つの便利機能

詳しく見る

お気軽にどうぞ!

資料請求 現地見学 電話でお問い合わせ
0120-150-580

頭金0万円・金利0.495%の場合

ボーナス時(年2回)お支払額

0

この物件の月々のお支払額

156,578

年収に対する返済比率

63

  • ※会員登録し、詳細情報を記入されますと、全ての物件で自動的に金額が表示され、大変便利です。
  • ※まだ会員登録をされていない方は、下記チェック欄をご記入ください。
  • ※上記計算は物件価格5,590万円+諸経費 8%込みの金額による結果となります。
  • ※返済金額はあくまでも目安です。

お客様の条件からシミュレーションするには?

会員登録
マイページから登録

金利

直接入力する

ボーナス払い(年2回)

返済年数

頭金

直接入力する

 万円(半角数字)

年収

 万円(半角数字)
価格 5,590万円
物件種別 新築一戸建て
間取り 4LDK
所在地 横浜市金沢区 東朝比奈2丁目
交通
  • 逗子線「六浦」駅 徒歩 23 分
  • 京浜急行本線「金沢八景」駅 バス停「三信センター」まで 徒歩 7 分 バス利用 12分
土地面積 174.77㎡
建物面積 101.85㎡
学区 朝比奈小学校、大道中学校
用途地域 第一種低層住居専用
建ぺい率 40%
容積率 80%
地目 宅地
駐車場 有り カースペース
接道 南4.5m
権利 所有権
私道面積 無し
セットバック 無し
建物構造 木造
建物階数 2階
築年月 2026年05月
入居日 2026年06月
都市計画 市街化区域
取引態様 仲介
物件番号 48550
設備 公営水道、公共下水、駐車場2台以上、緑豊かな住宅地、閑静な住宅地、土地50坪以上、南側道路面す、2沿線以上利用可、小学校徒歩10分以内、保育施設・幼稚園5分以内、公園5分以内、システムキッチン、ガス3口、カウンタキッチン、I型キッチン、ユニットバス、追い焚き、ウォシュレット、トイレ2ヶ所、浴室1坪以上、浴室に窓、暖房便座、南面バルコニー、2階建、LDK15畳以上、採光2面、全室南向き、フローリング、クローゼット、収納、下駄箱、全居室収納、シャンプドレッサー付き、オーナーチェンジ、フラット35Sに対応、モニタ付きインターフォン、インターフォン、複層ガラス、24時間換気システム、建物10年保証
建築確認番号 第HPA-25-13965-1号
特記事項 壁面後退 宅地造成工事規制区域 急傾斜地崩壊危険区域 高度地区 日影制限 敷地面積最低限度 建物高さ10m以下 金沢東朝比奈地区地区計画 建築基準法第22条区域 土砂災害警戒区域 壁面後退:有/宅地造成工事規制区域:有/急傾斜地崩壊危険区域:有/高度地区:有/日影制限:有/敷地面積最低限度:有/高さ限度:有/金沢東朝比奈地区地区計画 建築基準法第22条区域 土砂災害警戒区域。 /
備考 京急逗子線「六浦」駅利用。閑静な住宅地。敷地約52坪 南道路接道に付き日当たり良好。LDKは対面キッチンでご家族との会話が弾みます。カースペース並列2台。

こだわりポイント

  • 耐震に配慮された建物
  • 子供の多い街に住む
  • 大人の二人暮らし
  • LDKは1階に
  • 2階建て住宅限定
  • シューズインクローク
  • LDK15帖以上
  • 和室有り
  • 対面キッチン
  • 浴室1坪以上
  • 小学校10分以内
  • 幼稚園10分以内
  • 公園10分以内
  • 都市ガス
  • フラット35利用可
  • カースペース2台
  • 南道路限定

お気軽にどうぞ!

資料請求 現地見学 電話でお問い合わせ
0120-150-580

このエリアでお探しの方へ

今週末モデルハウス見学会開催中!「六浦」駅徒歩9分 新築一戸建て(1) 全室2面採光

逗子線「六浦」駅 徒歩 9 分

京浜急行本線「追浜」駅 徒歩 17 分

横浜市金沢区 六浦南1丁目

5,399万円

4LDK

今週末モデルハウス見学会開催中!「六浦」駅徒歩9分 新築一戸建て(2) 角地

逗子線「六浦」駅 徒歩 9 分

京浜急行本線「追浜」駅 徒歩 17 分

横浜市金沢区 六浦南1丁目

5,699万円

4LDK

今週末モデルハウス見学会開催中!「六浦」駅利用 新築一戸建て SIC完備 リビング階段

逗子線「六浦」駅 徒歩 19 分

金沢シーサイドライン「金沢八景」駅 バス停「三信センター」まで 徒歩 4 分 バス利用 15分

横浜市金沢区 東朝比奈2丁目

5,799万円

4LDK

値下げしました!建物完成しました!「金沢文庫」駅徒歩5分 新築一戸建て(2) カースペース3台

京浜急行本線「金沢文庫」駅 徒歩 5 分

金沢シーサイドライン「海の公園南口」駅 徒歩 13 分

横浜市金沢区 金沢町

5,380万円

3LDK

今週末モデルハウス見学会開催中!「京急富岡」駅徒歩9分 新築一戸建て(2)カースペース2台 角地

京浜急行本線「京急富岡」駅 徒歩 9 分

京浜急行本線「能見台」駅 徒歩 13 分

横浜市金沢区 富岡西7丁目

5,780万円

4LDK

値下げしました!今週末内覧会開催中!「能見台」駅利用 未入居中古一戸建て エコジョーズ

京浜急行本線「能見台」駅 バス停「能見台センター」まで 徒歩 5 分 バス利用 5分

京浜急行本線「金沢文庫」駅 バス停「能見台センター」まで 徒歩 3 分 バス利用 13分

横浜市金沢区 能見台1丁目

5,880万円

3LDK

値下げしました!今週末内覧会開催中!「金沢八景」駅徒歩13分 新築一戸建て(3) 長期優良住宅

京浜急行本線「金沢八景」駅 徒歩 13 分

逗子線「金沢八景」駅 徒歩 13 分

横浜市金沢区 柳町

5,880万円

4LDK

値下げしました! 「六浦」駅利用 未入居中古一戸建て(D) 閑静な住宅地

逗子線「六浦」駅 徒歩 25 分

京浜急行本線「金沢文庫」駅 バス停「高舟台」まで 徒歩 3 分 バス利用 15分

横浜市金沢区 高舟台2丁目

3,990万円

3LDK

建物完成しました! 今週末内覧会開催中!「金沢八景」駅利用 新築一戸建て ロフト

京浜急行本線「金沢八景」駅 徒歩 17 分

逗子線「六浦」駅 徒歩 14 分

横浜市金沢区 六浦3丁目

4,280万円

2SLDK

今週末モデルハウス見学会開催中!「六浦」駅利用 新築一戸建て(7)SIC完備 リビング階段

逗子線「六浦」駅 徒歩 13 分

金沢シーサイドライン「金沢八景」駅 バス停「大道小学校前」まで 徒歩 7 分 バス利用 5分

横浜市金沢区 六浦3丁目

4,280万円

3LDK

今週末モデルハウス見学会開催中!「六浦」駅利用 新築一戸建て(6)SIC完備 リビング階段

逗子線「六浦」駅 徒歩 13 分

金沢シーサイドライン「金沢八景」駅 バス停「大道小学校前」まで 徒歩 7 分 バス利用 5分

横浜市金沢区 六浦3丁目

4,380万円

3LDK

今週末モデルハウス見学会開催中!「六浦」駅利用 新築一戸建て(1) 閑静な住宅地

逗子線「六浦」駅 徒歩 16 分

京浜急行本線「金沢八景」駅 バス停「大道小学校前」まで 徒歩 12 分 バス利用 6分

横浜市金沢区 六浦3丁目

4,480万円

3LDK

お気軽にどうぞ!

資料請求 現地見学 電話でお問い合わせ
0120-150-580
来店予約