1. トップページ
  2. サンリヤン東戸塚 中古マンション

サンリヤン東戸塚 中古マンション

価格
7,080万円
物件種別
中古マンション
間取り
2SLDK
所在地
横浜市戸塚区 前田町
交通
  • 横須賀線「東戸塚」駅 徒歩 10 分
  • 東海道本線「横浜」駅 バス停「品濃口」まで 徒歩 6 分 バス利用 45分
建物面積
68.92㎡
  • 前回情報更新日 2026.02.19
  • 次回情報更新予定日 2026.03.05
資料請求 現地見学 電話でお問い合わせ
0120-150-580
外観:JR東戸塚駅徒歩10分。通勤・通学も快適な住環境です。
外観:JR東戸塚駅徒歩10分。通勤・通学も快適な住環境です。
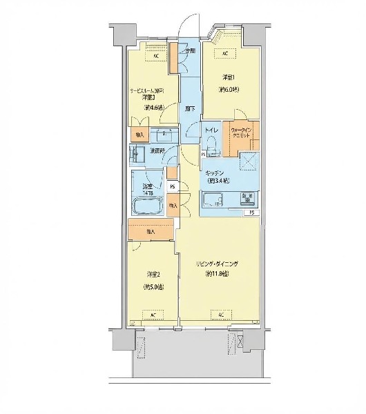
間取図
間取図
大容量のシューズクローク付きで玄関まわりもすっきり。いつでも綺麗を保てる収納力が魅力です。
大容量のシューズクローク付きで玄関まわりもすっきり。いつでも綺麗を保てる収納力が魅力です。
外観:重厚感あるエントランスアプローチ。ゆとりある動線と整った植栽が、住まう方を静かに迎え入れます。
外観:重厚感あるエントランスアプローチ。ゆとりある動線と整った植栽が、住まう方を静かに迎え入れます。
南向きの明るいLDK。ワイドスパンで開放感があり、家族団らんをゆったり楽しめる空間です。  ※写真内の家具・家電・小物は売買対象外となります。
南向きの明るいLDK。ワイドスパンで開放感があり、家族団らんをゆったり楽しめる空間です。 ※写真内の家具・家電・小物は売買対象外となります。
外観:南側バルコニーから広がる開放的な眺望。遮るものの少ない抜け感と、たっぷりの陽光が心地よい明るい住空間を実現します。
外観:南側バルコニーから広がる開放的な眺望。遮るものの少ない抜け感と、たっぷりの陽光が心地よい明るい住空間を実現します。
明るい陽光が差し込む開放的なLDK。ゆとりある空間設計で、家族が自然と集う心地よいリビングです。  ※写真内の家具・家電・小物は売買対象外となります。
明るい陽光が差し込む開放的なLDK。ゆとりある空間設計で、家族が自然と集う心地よいリビングです。 ※写真内の家具・家電・小物は売買対象外となります。
端正な広さを確保したLDK。整形で美しい空間設計が、上質で落ち着きある住まいを演出します。  ※写真内の家具・家電・小物は売買対象外となります。
端正な広さを確保したLDK。整形で美しい空間設計が、上質で落ち着きある住まいを演出します。 ※写真内の家具・家電・小物は売買対象外となります。
大きな窓から光がたっぷり入る、抜け感のあるLDK。バルコニーとつながる開放的な空間で、ふたりの時間をもっと心地よく。  ※写真内の家具・家電・小物は売買対象外となります。
大きな窓から光がたっぷり入る、抜け感のあるLDK。バルコニーとつながる開放的な空間で、ふたりの時間をもっと心地よく。 ※写真内の家具・家電・小物は売買対象外となります。
動線良好な対面キッチン。リビングを見渡せる安心設計です。  ※写真内の家具・家電・小物は売買対象外となります。
動線良好な対面キッチン。リビングを見渡せる安心設計です。 ※写真内の家具・家電・小物は売買対象外となります。
三面鏡付き洗面化粧台と充実の収納。ゆとりある洗面室で、毎日の身支度も快適にこなせます。  ※写真内の家具・家電・小物は売買対象外となります。
三面鏡付き洗面化粧台と充実の収納。ゆとりある洗面室で、毎日の身支度も快適にこなせます。 ※写真内の家具・家電・小物は売買対象外となります。
木目調パネルが上質さを演出するバスルーム。ゆったりとした浴槽で、一日の疲れを癒す寛ぎの空間です。  ※写真内の家具・家電・小物は売買対象外となります。
木目調パネルが上質さを演出するバスルーム。ゆったりとした浴槽で、一日の疲れを癒す寛ぎの空間です。 ※写真内の家具・家電・小物は売買対象外となります。
落ち着いた雰囲気の洋室。主寝室やワークスペースとしても活用できる、使い勝手の良い一室です。  ※写真内の家具・家電・小物は売買対象外となります。
落ち着いた雰囲気の洋室。主寝室やワークスペースとしても活用できる、使い勝手の良い一室です。 ※写真内の家具・家電・小物は売買対象外となります。
間接照明が美しく映えるエントランス。昼夜で表情を変える、上質な迎賓空間を演出します。
間接照明が美しく映えるエントランス。昼夜で表情を変える、上質な迎賓空間を演出します。
洗練されたラウンジスペースを備えた共用設計。ホテルライクな空間が、住まいの格を一段引き上げます。
洗練されたラウンジスペースを備えた共用設計。ホテルライクな空間が、住まいの格を一段引き上げます。

この物件のココがオススメ!

JR横須賀線「東戸塚」駅徒歩10分。南向きのバルコニーは日当たり良好。LDKは対面式カウンターキッチンでご家族との会話が弾みます。納戸も居室としてご利用可能。

お気軽にどうぞ!

資料請求 現地見学 電話でお問い合わせ
0120-150-580

地図

申し訳ありません
こちらは会員限定機能です

会員登録で利用できる6つの便利機能

詳しく見る

お気軽にどうぞ!

資料請求 現地見学 電話でお問い合わせ
0120-150-580

頭金0万円・金利0.495%の場合

ボーナス時(年2回)お支払額

0

この物件の月々のお支払額

198,310

年収に対する返済比率

79

  • ※会員登録し、詳細情報を記入されますと、全ての物件で自動的に金額が表示され、大変便利です。
  • ※まだ会員登録をされていない方は、下記チェック欄をご記入ください。
  • ※上記計算は物件価格7,080万円+諸経費 8%込みの金額による結果となります。
  • ※返済金額はあくまでも目安です。

お客様の条件からシミュレーションするには?

会員登録
マイページから登録

金利

直接入力する

ボーナス払い(年2回)

返済年数

頭金

直接入力する

 万円(半角数字)

年収

 万円(半角数字)
価格 7,080万円
物件種別 中古マンション
間取り 2SLDK
所在地 横浜市戸塚区 前田町
交通
  • 横須賀線「東戸塚」駅 徒歩 10 分
  • 東海道本線「横浜」駅 バス停「品濃口」まで 徒歩 6 分 バス利用 45分
土地面積 -
建物面積 68.92㎡
学区 品濃小学校、秋葉中学校
用途地域 準工業
建ぺい率 -
容積率 -
地目 -
駐車場 無し
接道 -
権利 所有権
私道面積 無し
セットバック 無し
建物構造 RC
建物階数 7階
築年月 2021年11月
入居日 相談
都市計画 -
取引態様 仲介
物件番号 48374
設備 公営水道、公共下水、エレベータ、緑豊かな住宅地、閑静な住宅地、スーパーが近い(10分以内)、2沿線以上利用可、小学校徒歩10分以内、保育施設・幼稚園5分以内、公園5分以内、コンビニ5分以内、ガス3口、カウンタキッチン、I型キッチン、バルコニー、南面バルコニー、LDK15畳以上、フローリング、クローゼット、収納、下駄箱
建築確認番号 -
特記事項 宅地造成工事規制区域 高度地区 準防火地域 日影制限 建築基準法第22条区域 宅地造成工事規制区域:有/高度地区:有/準防火地域:有/日影制限:有/建築基準法第22条区域。 /
備考 JR横須賀線「東戸塚」駅徒歩10分。南向きのバルコニーは日当たり良好。LDKは対面式カウンターキッチンでご家族との会話が弾みます。納戸も居室としてご利用可能。

こだわりポイント

  • 大型商業施設のある街に住む
  • おしゃれイメージな街に住む
  • ウォークインクローゼット
  • 対面キッチン
  • 小学校10分以内
  • 有料道路インター2キロ以内
  • 大型商業施設15分以内
  • スーパー10分以内
  • コンビニ10分以内
  • 小児科医院10分以内
  • 保育園10分以内
  • 公園10分以内
  • 都市ガス

お気軽にどうぞ!

資料請求 現地見学 電話でお問い合わせ
0120-150-580

このエリアでお探しの方へ

稲城市平尾4丁目 新築一戸建 6780万円 12号棟

小田急多摩線「栗平」駅 徒歩 10 分

京王相模原線「若葉台」駅 徒歩 25 分

稲城市 平尾4丁目

6,780万円

4LDK

横浜市港北区富士塚2丁目 新築一戸建 6780万円 B号棟

東急東横線「菊名」駅 徒歩 9 分

横浜線「新横浜」駅 徒歩 16 分

横浜市港北区 富士塚2丁目

6,780万円

4LDK

川崎市宮前区東有馬4丁目 新築一戸建 6780万円 5号棟

グリーンライン「北山田」駅 徒歩 12 分

田園都市線「鷺沼」駅 バス停「有馬変電所」まで 徒歩 10 分 バス利用 10分

川崎市宮前区 東有馬4丁目

6,780万円

4LDK

川崎市宮前区東有馬4丁目 新築一戸建 6780万円 3号棟

グリーンライン「北山田」駅 徒歩 12 分

田園都市線「鷺沼」駅 バス停「有馬変電所」まで 徒歩 10 分 バス利用 10分

川崎市宮前区 東有馬4丁目

6,780万円

4LDK

川崎市宮前区東有馬4丁目 新築一戸建 6780万円 4号棟

グリーンライン「北山田」駅 徒歩 12 分

田園都市線「鷺沼」駅 バス停「有馬変電所」まで 徒歩 10 分 バス利用 10分

川崎市宮前区 東有馬4丁目

6,780万円

4LDK

横浜市港北区下田町3丁目 新築一戸建 6790万円 C号棟

東急東横線「日吉」駅 徒歩 25 分

グリーンライン「日吉本町」駅 徒歩 22 分

横浜市港北区 下田町3丁目

6,790万円

2SLDK

川崎市中原区上平間 新築一戸建 6790万円 A号棟

南武線「平間」駅 徒歩 8 分

横須賀線「新川崎」駅 徒歩 17 分

川崎市中原区 上平間

6,790万円

3SLDK

今週末モデルハウス見学会開催中!「東戸塚」駅利用 新築一戸建て カースペース2台

横須賀線「東戸塚」駅 徒歩 17 分

東海道本線「戸塚」駅 バス停「秋葉三叉路」まで 徒歩 6 分 バス利用 14分

横浜市戸塚区 前田町

6,790万円

4LDK

狛江市中和泉5丁目 新築一戸建 6790万円 C号棟

小田急線「狛江」駅 徒歩 22 分

京王線「国領」駅 徒歩 22 分

狛江市 中和泉5丁目

6,790万円

3LDK

川崎市麻生区王禅寺西5丁目 新築一戸建 6790万円

小田急線「新百合ヶ丘」駅 バス停「日光隧道」まで 徒歩 3 分 バス利用 4分

小田急線「新百合ヶ丘」駅 徒歩 22 分

川崎市麻生区 王禅寺西5丁目

6,790万円

4LDK

横浜市緑区鴨居4丁目 新築一戸建 6798万円 2号棟

横浜線「鴨居」駅 徒歩 7 分

横浜線「中山」駅 バス停「中村通」まで 徒歩 5 分 バス利用 12分

横浜市緑区 鴨居4丁目

6,798万円

4LDK

横浜市神奈川区白幡仲町 新築一戸建 6798万円

東急東横線「白楽」駅 徒歩 11 分

横浜線「大口」駅 バス停「白幡向町」まで 徒歩 5 分 バス利用 7分

横浜市神奈川区 白幡仲町

6,798万円

4LDK

お気軽にどうぞ!

資料請求 現地見学 電話でお問い合わせ
0120-150-580
来店予約