1. トップページ
  2. 値下げしました! 「東戸塚」駅利用 新築一戸建て カースペース2台

値下げしました! 「東戸塚」駅利用 新築一戸建て カースペース2台

価格
6,390万円
物件種別
新築一戸建て
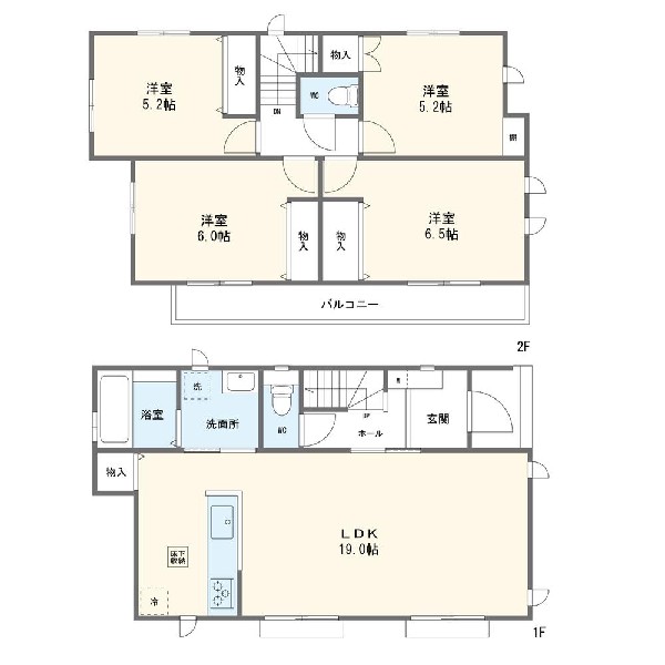
間取り
4LDK
所在地
横浜市戸塚区 前田町
交通
  • 横須賀線「東戸塚」駅 徒歩 17 分
  • 東海道本線「戸塚」駅 バス停「秋葉三叉路」まで 徒歩 6 分 バス利用 14分
土地面積
147.99㎡
建物面積
96.05㎡
  • 前回情報更新日 2026.04.09
  • 次回情報更新予定日 2026.04.23
資料請求 現地見学 電話でお問い合わせ
0120-150-580
外観:光と風が行わたる開放感あふれる邸宅 春には気持ちの良いそよ風、冬には朝の暖かな光 季節の移り変わりを感じる暮らしを実現
外観:光と風が行わたる開放感あふれる邸宅 春には気持ちの良いそよ風、冬には朝の暖かな光 季節の移り変わりを感じる暮らしを実現
間取図
間取図
家族と過ごす時間を大切にしたい方にぴったりのゆとりある住空間です。(本画像はCGで作成しており、実際に現地に家具はおかれておりません。また価格に家具は含まれておりません。)
家族と過ごす時間を大切にしたい方にぴったりのゆとりある住空間です。(本画像はCGで作成しており、実際に現地に家具はおかれておりません。また価格に家具は含まれておりません。)
外観:前面道路は車通りの少ない道路。段差もなくお車の出し入れが苦手な方も駐車しやすそうです。
外観:前面道路は車通りの少ない道路。段差もなくお車の出し入れが苦手な方も駐車しやすそうです。
家族だんらんのスペースとなるリビング。窓が多い設計なので色々な角度から光が取り込めます。明るいリビングで新しい生活を。
家族だんらんのスペースとなるリビング。窓が多い設計なので色々な角度から光が取り込めます。明るいリビングで新しい生活を。
外観:玄関は家の中に入る時一番最初に目に付く場所だからこだわりたいですよね!明るい雰囲気の色目でお部屋の雰囲気をそのまま表しているようです。
外観:玄関は家の中に入る時一番最初に目に付く場所だからこだわりたいですよね!明るい雰囲気の色目でお部屋の雰囲気をそのまま表しているようです。
家族だんらんのスペースとなるリビング。窓が多い設計なので色々な角度から光が取り込めます。明るいリビングで新しい生活を。
家族だんらんのスペースとなるリビング。窓が多い設計なので色々な角度から光が取り込めます。明るいリビングで新しい生活を。
外観:暮らしに潤いと癒しをもたらすお庭があります。手入れをしやすい広さだからこそ、ひとつひとつの樹木、花達の変化に目が届き、家族の会話にも花が咲きます。ガーデニングを始めてみませんか。
外観:暮らしに潤いと癒しをもたらすお庭があります。手入れをしやすい広さだからこそ、ひとつひとつの樹木、花達の変化に目が届き、家族の会話にも花が咲きます。ガーデニングを始めてみませんか。
リビングのお子様を見守りながらお料理が出来る対面式カウンターキッチン。ご家族との会話がはずみます。
リビングのお子様を見守りながらお料理が出来る対面式カウンターキッチン。ご家族との会話がはずみます。
「どういう家具を置こうかな」とわくわくする。自分好みのこだわりのお部屋にしてオンリーワンの部屋でゆったりと寛ごう。
「どういう家具を置こうかな」とわくわくする。自分好みのこだわりのお部屋にしてオンリーワンの部屋でゆったりと寛ごう。
「どういう家具を置こうかな」とわくわくする。自分好みのこだわりのお部屋にしてオンリーワンの部屋でゆったりと寛ごう。
「どういう家具を置こうかな」とわくわくする。自分好みのこだわりのお部屋にしてオンリーワンの部屋でゆったりと寛ごう。
南からの明るい光が差しこむ陽だまりの空間。お洗濯もあっという間に乾きそうです。
南からの明るい光が差しこむ陽だまりの空間。お洗濯もあっという間に乾きそうです。
洗浄機能付き便座を標準装備。便座保温機能もあるので寒い季節も安心。
洗浄機能付き便座を標準装備。便座保温機能もあるので寒い季節も安心。
鏡の裏に収納棚を確保した三面鏡を採用。化粧品や歯ブラシなどを機能的に収納。便利な床下収納付き。
鏡の裏に収納棚を確保した三面鏡を採用。化粧品や歯ブラシなどを機能的に収納。便利な床下収納付き。
周辺環境:横浜市立川上小学校(横浜市立川上小学校まで700m)
周辺環境:横浜市立川上小学校(横浜市立川上小学校まで700m)
周辺環境:横浜市立秋葉中学校(横浜市立秋葉中学校まで600m)
周辺環境:横浜市立秋葉中学校(横浜市立秋葉中学校まで600m)
周辺環境:前田町第二公園(前田町第二公園まで170m)
周辺環境:前田町第二公園(前田町第二公園まで170m)
周辺環境:ちゃいれっく前田町保育園(ちゃいれっく前田町保育園まで650m)
周辺環境:ちゃいれっく前田町保育園(ちゃいれっく前田町保育園まで650m)
周辺環境:オリンピック東戸塚店(オリンピック東戸塚店まで800m)
周辺環境:オリンピック東戸塚店(オリンピック東戸塚店まで800m)
周辺環境:秋葉第四公園(秋葉第四公園まで350m)
周辺環境:秋葉第四公園(秋葉第四公園まで350m)
周辺環境:秋葉幼稚園(秋葉幼稚園まで800m)
周辺環境:秋葉幼稚園(秋葉幼稚園まで800m)
周辺環境:マルエツ名瀬店(マルエツ名瀬店まで1200m)
周辺環境:マルエツ名瀬店(マルエツ名瀬店まで1200m)
周辺環境:和田医院(小児科)(和田医院(小児科)まで600m)
周辺環境:和田医院(小児科)(和田医院(小児科)まで600m)

この物件のココがオススメ!

JR横須賀線「東戸塚」駅利用。緑豊かで閑静な住宅地。4LDKのゆとりの間取り、全居室収納。会話が弾む対面キッチン。浴室暖房乾燥機、床下収納付。カースペース並行2台。

お気軽にどうぞ!

資料請求 現地見学 電話でお問い合わせ
0120-150-580

地図

申し訳ありません
こちらは会員限定機能です

会員登録で利用できる6つの便利機能

詳しく見る

お気軽にどうぞ!

資料請求 現地見学 電話でお問い合わせ
0120-150-580

頭金0万円・金利0.495%の場合

ボーナス時(年2回)お支払額

0

この物件の月々のお支払額

178,987

年収に対する返済比率

72

  • ※会員登録し、詳細情報を記入されますと、全ての物件で自動的に金額が表示され、大変便利です。
  • ※まだ会員登録をされていない方は、下記チェック欄をご記入ください。
  • ※上記計算は物件価格6,390万円+諸経費 8%込みの金額による結果となります。
  • ※返済金額はあくまでも目安です。

お客様の条件からシミュレーションするには?

会員登録
マイページから登録

金利

直接入力する

ボーナス払い(年2回)

返済年数

頭金

直接入力する

 万円(半角数字)

年収

 万円(半角数字)

約700m

小学校

周辺環境:横浜市立川上小学校(横浜市立川上小学校まで700m)

小学校

約700m

約600m

中学校

周辺環境:横浜市立秋葉中学校(横浜市立秋葉中学校まで600m)

中学校

約600m

約170m

公園

周辺環境:前田町第二公園(前田町第二公園まで170m)

公園

約170m

約650m

幼稚園・保育園

周辺環境:ちゃいれっく前田町保育園(ちゃいれっく前田町保育園まで650m)

幼稚園・保育園

約650m

約800m

スーパー

周辺環境:オリンピック東戸塚店(オリンピック東戸塚店まで800m)

スーパー

約800m

約350m

公園

周辺環境:秋葉第四公園(秋葉第四公園まで350m)

公園

約350m

約800m

幼稚園・保育園

周辺環境:秋葉幼稚園(秋葉幼稚園まで800m)

幼稚園・保育園

約800m

約1,200m

スーパー

周辺環境:マルエツ名瀬店(マルエツ名瀬店まで1200m)

スーパー

約1,200m

約600m

病院

周辺環境:和田医院(小児科)(和田医院(小児科)まで600m)

病院

約600m

価格 6,390万円
物件種別 新築一戸建て
間取り 4LDK
所在地 横浜市戸塚区 前田町
交通
  • 横須賀線「東戸塚」駅 徒歩 17 分
  • 東海道本線「戸塚」駅 バス停「秋葉三叉路」まで 徒歩 6 分 バス利用 14分
土地面積 147.99㎡
建物面積 96.05㎡
学区 川上小学校、秋葉中学校
用途地域 第一種低層住居専用
建ぺい率 50%
容積率 80%
地目 宅地
駐車場 有り カースペース
接道 北東4.1m
権利 所有権
私道面積 無し
セットバック 無し
建物構造 木造
建物階数 2階
築年月 2026年02月
入居日 -
都市計画 市街化区域
取引態様 仲介
物件番号 48210
設備 公営水道、公共下水、外壁サイディング、駐車場2台以上、緑豊かな住宅地、閑静な住宅地、スーパーが近い(10分以内)、2沿線以上利用可、小学校徒歩10分以内、中学校徒歩10分以内、公園5分以内、システムキッチン、ガス3口、I型キッチン、ユニットバス、追い焚き、浴室乾燥機、ウォシュレット、トイレ2ヶ所、浴室に窓、暖房便座、浴室暖房、バルコニー、ワイドバルコニー、2階建、LDK18畳以上、採光2面、全室2面採光、フローリング、クローゼット、収納、床下収納、下駄箱、全居室収納、シャンプドレッサー付き、フラット35Sに対応、モニタ付きインターフォン、インターフォン、24時間換気システム、建物10年保証
建築確認番号 第HPA-25-10304-1号
特記事項 不整形地 宅地造成工事規制区域 高度地区 日影制限 敷地面積最低限度 建物高さ10m以下 建築基準法第22条区域 不整形地:有/宅地造成工事規制区域:有/高度地区:有/日影制限:有/敷地面積最低限度:有/高さ限度:有/建築基準法第22条区域。 /
備考 JR横須賀線「東戸塚」駅利用。緑豊かで閑静な住宅地。4LDKのゆとりの間取り、全居室収納。会話が弾む対面キッチン。浴室暖房乾燥機、床下収納付。カースペース並行2台。

こだわりポイント

  • 耐震に配慮された建物
  • 断熱に配慮された建物
  • 長期優良住宅
  • 浴室換気乾燥暖房機
  • 大人の二人暮らし
  • LDKは1階に
  • 2階建て住宅限定
  • LDK18帖以上
  • 広々バルコニー
  • 対面キッチン
  • 小学校10分以内
  • 有料道路インター2キロ以内
  • スーパー10分以内
  • コンビニ10分以内
  • 小児科医院10分以内
  • 保育園10分以内
  • 幼稚園10分以内
  • 公園10分以内
  • 都市ガス
  • フラット35利用可
  • カースペース2台

お気軽にどうぞ!

資料請求 現地見学 電話でお問い合わせ
0120-150-580

このエリアでお探しの方へ

横浜市鶴見区本町4丁目 新築一戸建 6090万円 No.2

鶴見線「鶴見小野」駅 徒歩 7 分

京浜急行本線「京急鶴見」駅 徒歩 15 分

横浜市鶴見区 本町通4丁目

6,090万円

2LDK+2S

川崎市宮前区菅生3丁目 新築一戸建 6090万円 B号棟

南武線「武蔵溝ノ口」駅 バス停「菅生三丁目」まで 徒歩 2 分 バス利用 21分

田園都市線「宮前平」駅 バス停「水沢一丁目」まで 徒歩 9 分 バス利用 15分

川崎市宮前区 菅生3丁目

6,090万円

4LDK

川崎市宮前区菅生3丁目 新築一戸建 6090万円 A号棟

南武線「武蔵溝ノ口」駅 バス停「菅生三丁目」まで 徒歩 2 分 バス利用 21分

田園都市線「宮前平」駅 バス停「水沢一丁目」まで 徒歩 9 分 バス利用 15分

川崎市宮前区 菅生3丁目

6,090万円

4LDK

川崎市宮前区五所塚1丁目 新築一戸建 6099万円 1号棟

南武線「宿河原」駅 徒歩 17 分

小田急線「登戸」駅 徒歩 24 分

川崎市宮前区 五所塚1丁目

6,099万円

4LDK

建物完成しました! 今週末内覧会開催中!「山手」駅徒歩12分 新築一戸建て(3) 3面採光LDK

根岸線「山手」駅 徒歩 12 分

東海道本線「横浜」駅 バス停「千代崎町」まで 徒歩 11 分 バス利用 24分

横浜市中区 本郷町3丁目

6,120万円

1LDK+2S

値下げしました!「下永谷」駅利用 新築一戸建て カースペース3台

ブルーライン「下永谷」駅 徒歩 17 分

東海道本線「戸塚」駅 バス停「舞岡」まで 徒歩 10 分 バス利用 12分

横浜市港南区 下永谷5丁目

6,150万円

4LDK

今週末モデルハウス見学会開催中!「上大岡」駅徒歩10分 新築一戸建て(B) 全室2面採光

京浜急行本線「上大岡」駅 徒歩 10 分

ブルーライン「上大岡」駅 徒歩 10 分

横浜市南区 大岡4丁目

6,180万円

3SLDK

川崎市麻生区千代ケ丘6丁目 新築一戸建 6180万円 1号棟

小田急線「百合ヶ丘」駅 徒歩 16 分

小田急線「新百合ヶ丘」駅 バス停「千代ヶ丘七丁目」まで 徒歩 2 分 バス利用 5分

川崎市麻生区 千代ケ丘6丁目

6,180万円

3LDK

今週末モデルハウス見学会開催中!「六浦」駅徒歩14分 新築一戸建て 長期優良住宅

逗子線「六浦」駅 徒歩 14 分

京浜急行本線「金沢八景」駅 バス停「三信住宅」まで 徒歩 3 分 バス利用 15分

横浜市金沢区 東朝比奈1丁目

6,180万円

4LDK

川崎市宮前区野川本町1丁目 新築一戸建 6180万円 1号棟

田園都市線「梶が谷」駅 徒歩 22 分

田園都市線「溝の口」駅 徒歩 35 分

川崎市宮前区 野川本町1丁目

6,180万円

4LDK

川崎市麻生区高石2丁目 新築一戸建 6180万円

小田急線「百合ヶ丘」駅 徒歩 8 分

小田急線「読売ランド前」駅 徒歩 22 分

川崎市麻生区 高石2丁目

6,180万円

4LDK

川崎市麻生区王禅寺西5丁目 新築一戸建 6180万円 1号棟

小田急線「新百合ヶ丘」駅 徒歩 18 分

田園都市線「あざみ野」駅 バス停「日光」まで 徒歩 3 分 バス利用 30分

川崎市麻生区 王禅寺西5丁目

6,180万円

3SLDK

お気軽にどうぞ!

資料請求 現地見学 電話でお問い合わせ
0120-150-580
来店予約