1. トップページ
  2. 横浜市緑区長津田みなみ台7丁目 中古一戸建 5980万円

横浜市緑区長津田みなみ台7丁目 中古一戸建 5980万円

価格
5,980万円
物件種別
中古一戸建て
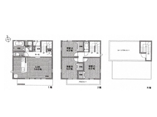
間取り
3LDK
所在地
横浜市緑区 長津田みなみ台7丁目
交通
  • 横浜線「十日市場」駅 徒歩 14 分
  • 田園都市線「長津田」駅 徒歩 19 分
土地面積
201.90㎡
建物面積
79.90㎡
  • 前回情報更新日 2026.01.16
  • 次回情報更新予定日 2026.01.30
資料請求 現地見学 電話でお問い合わせ
0120-150-580
間取り
間取り
周辺環境:後谷公園(車輪の形をした市電記念碑があり、汽車の遊具が特徴的な公園。季節になると桜や紫陽花が綺麗に咲きます。)
周辺環境:後谷公園(車輪の形をした市電記念碑があり、汽車の遊具が特徴的な公園。季節になると桜や紫陽花が綺麗に咲きます。)
周辺環境:業務スーパーいぶき野店(食べ盛りのお子様がいらっしゃるご家庭の強い味方!量・価格が魅力のスーパー。9時~営業。酒取扱いあり。)
周辺環境:業務スーパーいぶき野店(食べ盛りのお子様がいらっしゃるご家庭の強い味方!量・価格が魅力のスーパー。9時~営業。酒取扱いあり。)
周辺環境:ローソン横浜十日市場町店(スイーツが人気。ATM、お酒、たばこ、無印良品の取り扱い有。24時間営業で便利なコンビニです。 )
周辺環境:ローソン横浜十日市場町店(スイーツが人気。ATM、お酒、たばこ、無印良品の取り扱い有。24時間営業で便利なコンビニです。 )
周辺環境:横浜新緑総合病院(近くにあると安心な総合病院。24時間救急外来、人間ドック有。診療時間は9~13時、14~17時。)
周辺環境:横浜新緑総合病院(近くにあると安心な総合病院。24時間救急外来、人間ドック有。診療時間は9~13時、14~17時。)
周辺環境:長津田こども園(園内はワンフロアで壁がなく異年齢の子供たちが交流します。体操・料理・習字等を体験し成長できる保育園。)
周辺環境:長津田こども園(園内はワンフロアで壁がなく異年齢の子供たちが交流します。体操・料理・習字等を体験し成長できる保育園。)
周辺環境:いぶき野小学校(長津田みなみ台公園に隣接する小学校。教育目標は「夢に向かって希望をもち ともにはばたくいぶき野の子」)
周辺環境:いぶき野小学校(長津田みなみ台公園に隣接する小学校。教育目標は「夢に向かって希望をもち ともにはばたくいぶき野の子」)
周辺環境:ドラッグセイムスいぶき野店(薬や化粧品・日用品に加えて、食料品や文房具なども取り扱っているドラッグストア。駐車場も広く便利です。)
周辺環境:ドラッグセイムスいぶき野店(薬や化粧品・日用品に加えて、食料品や文房具なども取り扱っているドラッグストア。駐車場も広く便利です。)
周辺環境:スーパービバホーム長津田店(生活用品をはじめ、インテリア、DIY、園芸、ワーク用品等が一通りそろう大規模なホームセンター。)
周辺環境:スーパービバホーム長津田店(生活用品をはじめ、インテリア、DIY、園芸、ワーク用品等が一通りそろう大規模なホームセンター。)
周辺環境:サイゼリヤ長津田店(手頃な価格でイタリアンを提供するファミレス。ドリアやサラダが人気でワインや1品料理も充実しています。)
周辺環境:サイゼリヤ長津田店(手頃な価格でイタリアンを提供するファミレス。ドリアやサラダが人気でワインや1品料理も充実しています。)

この物件のココがオススメ!

室内クリーニング実施 田園都市線など2路線利用可能 大型ルーフバルコニー 冷暖房効率の良い玄関階段 床暖房

お気軽にどうぞ!

資料請求 現地見学 電話でお問い合わせ
0120-150-580

地図

申し訳ありません
こちらは会員限定機能です

会員登録で利用できる6つの便利機能

詳しく見る

お気軽にどうぞ!

資料請求 現地見学 電話でお問い合わせ
0120-150-580

頭金0万円・金利0.495%の場合

ボーナス時(年2回)お支払額

0

この物件の月々のお支払額

167,497

年収に対する返済比率

67

  • ※会員登録し、詳細情報を記入されますと、全ての物件で自動的に金額が表示され、大変便利です。
  • ※まだ会員登録をされていない方は、下記チェック欄をご記入ください。
  • ※上記計算は物件価格5,980万円+諸経費 8%込みの金額による結果となります。
  • ※返済金額はあくまでも目安です。

お客様の条件からシミュレーションするには?

会員登録
マイページから登録

金利

直接入力する

ボーナス払い(年2回)

返済年数

頭金

直接入力する

 万円(半角数字)

年収

 万円(半角数字)

約240m

公園

周辺環境:後谷公園(車輪の形をした市電記念碑があり、汽車の遊具が特徴的な公園。季節になると桜や紫陽花が綺麗に咲きます。)

公園

約240m

約500m

スーパー

周辺環境:業務スーパーいぶき野店(食べ盛りのお子様がいらっしゃるご家庭の強い味方!量・価格が魅力のスーパー。9時~営業。酒取扱いあり。)

スーパー

約500m

約650m

コンビニ

周辺環境:ローソン横浜十日市場町店(スイーツが人気。ATM、お酒、たばこ、無印良品の取り扱い有。24時間営業で便利なコンビニです。 )

コンビニ

約650m

約550m

病院

周辺環境:横浜新緑総合病院(近くにあると安心な総合病院。24時間救急外来、人間ドック有。診療時間は9~13時、14~17時。)

病院

約550m

約550m

幼稚園・保育園

周辺環境:長津田こども園(園内はワンフロアで壁がなく異年齢の子供たちが交流します。体操・料理・習字等を体験し成長できる保育園。)

幼稚園・保育園

約550m

約450m

小学校

周辺環境:いぶき野小学校(長津田みなみ台公園に隣接する小学校。教育目標は「夢に向かって希望をもち ともにはばたくいぶき野の子」)

小学校

約450m

約600m

ドラッグストア

周辺環境:ドラッグセイムスいぶき野店(薬や化粧品・日用品に加えて、食料品や文房具なども取り扱っているドラッグストア。駐車場も広く便利です。)

ドラッグストア

約600m

約100m

ホームセンター

周辺環境:スーパービバホーム長津田店(生活用品をはじめ、インテリア、DIY、園芸、ワーク用品等が一通りそろう大規模なホームセンター。)

ホームセンター

約100m

約1,000m

飲食店

周辺環境:サイゼリヤ長津田店(手頃な価格でイタリアンを提供するファミレス。ドリアやサラダが人気でワインや1品料理も充実しています。)

飲食店

約1,000m

価格 5,980万円
物件種別 中古一戸建て
間取り 3LDK
所在地 横浜市緑区 長津田みなみ台7丁目
交通
  • 横浜線「十日市場」駅 徒歩 14 分
  • 田園都市線「長津田」駅 徒歩 19 分
土地面積 201.90㎡
建物面積 79.90㎡
学区 いぶき野小学校、田奈中学校
用途地域 第一種低層住居専用
建ぺい率 40%
容積率 80%
地目 宅地
駐車場 有り カーポート
接道 南東4.5m、東4.4m
権利 所有権
私道面積 無し
セットバック 無し
建物構造 木造
建物階数 2階
築年月 2015年02月
入居日 即時
都市計画 市街化区域
取引態様 仲介
物件番号 P1109
設備 公営水道、公共下水、スレート葺、陸屋根、駐車場1台、高台に立地、緑豊かな住宅地、閑静な住宅地、角地、都市近郊、土地50坪以上、南側道路面す、市街地が近い、隣家との間隔が大きい、周辺交通量少なめ、ゴルフ場が近い、テニスコートが近い、スーパーが近い(10分以内)、始発駅、2沿線以上利用可、総合病院徒歩10分以内、小学校徒歩10分以内、公園5分以内、システムキッチン、カウンタキッチン、ユニットバス、トイレ2ヶ所、浴室1坪以上、浴室に窓、バルコニー、バルコニー2面、ルーフバルコニー、ワイドバルコニー、南面バルコニー、2階建、採光3面、南向き、全室2面採光、フローリング、クローゼット、収納、下駄箱、全居室収納、シャンプドレッサー付き、南庭、庭、10㎡以上の庭、年内入居可、通風良好、陽当り良好
建築確認番号 -
特記事項 壁面後退:有/宅地造成工事規制区域:有/高度地区:有/日影制限:有/敷地面積最低限度:有/高さ限度:有/緑化地域 建築基準法第22条による区域 横浜市建築基準条例第3条による制限有。 /
備考 室内クリーニング実施 田園都市線など2路線利用可能 大型ルーフバルコニー 冷暖房効率の良い玄関階段 床暖房

こだわりポイント

  • 前面道路急坂
  • 床暖房
  • 大型商業施設のある街に住む
  • 急行電車でスピード通勤
  • 2沿線利用であんしん通勤
  • 広い庭のある暮らし
  • LDKは1階に
  • 2階建て住宅限定
  • スカイバルコニー
  • 広々バルコニー
  • 対面キッチン
  • 浴室1坪以上
  • 小学校10分以内
  • 大型商業施設15分以内
  • スーパー10分以内
  • コンビニ10分以内
  • 総合病院10分以内
  • 小児科医院10分以内
  • 保育園10分以内
  • 公園10分以内
  • 都市ガス
  • 屋根付きカースペース
  • 角地限定
  • 日当たり良好
  • 南道路限定
  • 眺望良好
  • 低層住居専用地域

お気軽にどうぞ!

資料請求 現地見学 電話でお問い合わせ
0120-150-580

このエリアでお探しの方へ

値下げしました!今週末見学会開催中!「長津田」駅徒歩15分 新築一戸建て(3) 角地

田園都市線「長津田」駅 徒歩 15 分

横浜線「十日市場」駅 徒歩 15 分

横浜市緑区 長津田みなみ台7丁目

5,680万円

4LDK

横浜市緑区長津田町 新築一戸建 5680万円 1号棟

田園都市線「長津田」駅 徒歩 14 分

田園都市線「つくし野」駅 徒歩 13 分

横浜市緑区 長津田町

5,680万円

3SLDK

横浜市緑区長津田みなみ台7丁目 新築一戸建 5780万円 3号棟

田園都市線「長津田」駅 徒歩 15 分

横浜線「十日市場」駅 徒歩 15 分

横浜市緑区 長津田みなみ台7丁目

5,780万円

4LDK

横浜市緑区東本郷5丁目 新築一戸建 5780万円

横浜線「小机」駅 徒歩 17 分

ブルーライン「新横浜」駅 バス停「住吉神社前」まで 徒歩 5 分 バス利用 24分

横浜市緑区 東本郷5丁目

5,780万円

3LDK

横浜市緑区鴨居4丁目 新築一戸建 6198万円 1号棟

横浜線「鴨居」駅 徒歩 7 分

横浜線「中山」駅 バス停「中村通」まで 徒歩 5 分 バス利用 12分

横浜市緑区 鴨居4丁目

6,198万円

3SLDK

横浜市緑区十日市場町 中古一戸建 3499万円

横浜線「十日市場」駅 徒歩 13 分

田園都市線「長津田」駅 徒歩 20 分

横浜市緑区 十日市場町

3,499万円

4LDK

横浜市緑区いぶき野 中古一戸建 3899万円

田園都市線「田奈」駅 徒歩 13 分

横浜線「長津田」駅 徒歩 18 分

横浜市緑区 いぶき野

3,899万円

4LDK

値下げしました!今週末見学会開催中!「長津田」駅徒歩15分 新築一戸建て(7) 閑静な住宅地

田園都市線「長津田」駅 徒歩 15 分

横浜線「十日市場」駅 徒歩 15 分

横浜市緑区 長津田みなみ台7丁目

4,780万円

4LDK

値下げしました!今週末見学会開催中!「長津田」駅徒歩15分 新築一戸建て(8) 閑静な住宅地

田園都市線「長津田」駅 徒歩 15 分

横浜線「十日市場」駅 徒歩 15 分

横浜市緑区 長津田みなみ台7丁目

4,980万円

4LDK

横浜市緑区長津田みなみ台7丁目 新築一戸建 4980万円 7号棟

田園都市線「長津田」駅 徒歩 15 分

横浜線「十日市場」駅 徒歩 15 分

横浜市緑区 長津田みなみ台7丁目

4,980万円

4LDK

値下げしました!今週末見学会開催中!「長津田」駅徒歩15分 新築一戸建て(1) 閑静な住宅地

田園都市線「長津田」駅 徒歩 15 分

横浜線「十日市場」駅 徒歩 15 分

横浜市緑区 長津田みなみ台7丁目

5,180万円

4LDK

横浜市緑区長津田みなみ台7丁目 新築一戸建 5180万円 8号棟

田園都市線「長津田」駅 徒歩 15 分

横浜線「十日市場」駅 徒歩 15 分

横浜市緑区 長津田みなみ台7丁目

5,180万円

4LDK

お気軽にどうぞ!

資料請求 現地見学 電話でお問い合わせ
0120-150-580
来店予約