1. トップページ
  2. 川崎市宮前区潮見台 中古一戸建 3499万円

川崎市宮前区潮見台 中古一戸建 3499万円

価格
3,499万円
物件種別
中古一戸建て
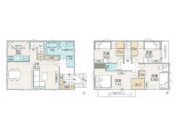
間取り
4LDK
所在地
川崎市宮前区 潮見台
交通
  • 小田急線「生田」駅 バス停「稗原」まで 徒歩 3 分 バス利用 15分
  • 田園都市線「たまプラーザ」駅 バス停「稗原」まで 徒歩 5 分 バス利用 10分
土地面積
124.01㎡
建物面積
94.23㎡
  • 前回情報更新日 2026.03.26
  • 次回情報更新予定日 2026.04.09
資料請求 現地見学 電話でお問い合わせ
0120-150-580
外観:シート(2026/03/10撮影)
外観:シート(2026/03/10撮影)
間取り
間取り
区画図
区画図
外観:シート(2026/03/10撮影)
外観:シート(2026/03/10撮影)
外観:シート(2026/03/10撮影)
外観:シート(2026/03/10撮影)
外観:シート(2026/03/10撮影)
外観:シート(2026/03/10撮影)
外観:シート(2026/03/10撮影)
外観:シート(2026/03/10撮影)
周辺環境:潮見台みどり幼稚園 (教育目標は「のびのび明るく元気な子」)
周辺環境:潮見台みどり幼稚園 (教育目標は「のびのび明るく元気な子」)
周辺環境:西長沢公園 (敷地の大きい公園でメイン設備は広い芝生のグラウンドです。最近では無料駐車場が開設され利用しやすくなりました。)
周辺環境:西長沢公園 (敷地の大きい公園でメイン設備は広い芝生のグラウンドです。最近では無料駐車場が開設され利用しやすくなりました。)
周辺環境:いなげや 新ゆりヨネッティー王禅寺前店 (店内が広く、駐車場もあります。22時まで営業。お肉がおいしいです。焼きたてのパン屋さんもあります。)
周辺環境:いなげや 新ゆりヨネッティー王禅寺前店 (店内が広く、駐車場もあります。22時まで営業。お肉がおいしいです。焼きたてのパン屋さんもあります。)
周辺環境:稗原小学校 (算数名人、稗原太鼓など、地域に根ざした教育を推進しています。子どもたちの笑顔がはじける学校です。)
周辺環境:稗原小学校 (算数名人、稗原太鼓など、地域に根ざした教育を推進しています。子どもたちの笑顔がはじける学校です。)
周辺環境:保育所どんぐり山潮見台園 (川崎市認定保育園 1.外遊びが基本 2.自分のことは自分でする そんな保育を心がけています。)
周辺環境:保育所どんぐり山潮見台園 (川崎市認定保育園 1.外遊びが基本 2.自分のことは自分でする そんな保育を心がけています。)
周辺環境:菅生中学校 (小学校よりもより長い時間を過ごす中学校。ここで過ごす時間はお子様にとって大切な思い出となるはずです。)
周辺環境:菅生中学校 (小学校よりもより長い時間を過ごす中学校。ここで過ごす時間はお子様にとって大切な思い出となるはずです。)

この物件のココがオススメ!

生田駅 新規内装リフォーム完了 4LDKの穏やかな2階建て住宅 癒される和室付き 主寝室はグルニエ付き

お気軽にどうぞ!

資料請求 現地見学 電話でお問い合わせ
0120-150-580

地図

申し訳ありません
こちらは会員限定機能です

会員登録で利用できる6つの便利機能

詳しく見る

お気軽にどうぞ!

資料請求 現地見学 電話でお問い合わせ
0120-150-580

頭金0万円・金利0.495%の場合

ボーナス時(年2回)お支払額

0

この物件の月々のお支払額

97,987

年収に対する返済比率

39

  • ※会員登録し、詳細情報を記入されますと、全ての物件で自動的に金額が表示され、大変便利です。
  • ※まだ会員登録をされていない方は、下記チェック欄をご記入ください。
  • ※上記計算は物件価格3,499万円+諸経費 8%込みの金額による結果となります。
  • ※返済金額はあくまでも目安です。

お客様の条件からシミュレーションするには?

会員登録
マイページから登録

金利

直接入力する

ボーナス払い(年2回)

返済年数

頭金

直接入力する

 万円(半角数字)

年収

 万円(半角数字)

約650m

幼稚園・保育園

周辺環境:潮見台みどり幼稚園 (教育目標は「のびのび明るく元気な子」)

幼稚園・保育園

約650m

約750m

公園

周辺環境:西長沢公園 (敷地の大きい公園でメイン設備は広い芝生のグラウンドです。最近では無料駐車場が開設され利用しやすくなりました。)

公園

約750m

約850m

スーパー

周辺環境:いなげや 新ゆりヨネッティー王禅寺前店 (店内が広く、駐車場もあります。22時まで営業。お肉がおいしいです。焼きたてのパン屋さんもあります。)

スーパー

約850m

約850m

小学校

周辺環境:稗原小学校 (算数名人、稗原太鼓など、地域に根ざした教育を推進しています。子どもたちの笑顔がはじける学校です。)

小学校

約850m

約850m

幼稚園・保育園

周辺環境:保育所どんぐり山潮見台園 (川崎市認定保育園 1.外遊びが基本 2.自分のことは自分でする そんな保育を心がけています。)

幼稚園・保育園

約850m

約1,900m

中学校

周辺環境:菅生中学校 (小学校よりもより長い時間を過ごす中学校。ここで過ごす時間はお子様にとって大切な思い出となるはずです。)

中学校

約1,900m

価格 3,499万円
物件種別 中古一戸建て
間取り 4LDK
所在地 川崎市宮前区 潮見台
交通
  • 小田急線「生田」駅 バス停「稗原」まで 徒歩 3 分 バス利用 15分
  • 田園都市線「たまプラーザ」駅 バス停「稗原」まで 徒歩 5 分 バス利用 10分
土地面積 124.01㎡
建物面積 94.23㎡
学区 稗原小学校、菅生中学校
用途地域 準住居
建ぺい率 60%
容積率 200%
地目 宅地
駐車場 有り カースペース
接道 西6m
権利 所有権
私道面積 無し
セットバック 無し
建物構造 木造
建物階数 2階
築年月 2005年09月
入居日 即時
都市計画 市街化区域
取引態様 仲介
物件番号 A2315
設備 公営水道、公共下水、スレート葺、駐車場1台、緑豊かな住宅地、都市近郊、前道6m以上、市街地が近い、周辺交通量少なめ、2沿線以上利用可、公園5分以内、コンビニ5分以内、システムキッチン、ガス3口、浄水器、ユニットバス、追い焚き、浴室乾燥機、ウォシュレット、トイレ2ヶ所、浴室に窓、暖房便座、浴室暖房、バルコニー、南面バルコニー、内外装リフォーム、2階建、LDK15畳以上、和室、グルニエ、採光3面、南西向き、全室南西向き、フローリング、クローゼット、押し入れ、収納、下駄箱、全居室収納、シャンプドレッサー付き、年内入居可、通風良好、陽当り良好、24時間換気システム
建築確認番号 -
特記事項 不整形地:有/景観法:有/宅地造成工事規制区域:有/高度地区:有/準防火地域:有/日影制限:有/高さ限度:有/ゴミ置場持分:4.29平米×19/304有/2017年:キッチン交換、給湯器交換済、外壁塗装済。 /内装リフォーム…2026年03月(キッチン、トイレ、洗面所、壁、床) 外装リフォーム…2026年03月(屋根)
備考 生田駅 新規内装リフォーム完了 4LDKの穏やかな2階建て住宅 癒される和室付き 主寝室はグルニエ付き

こだわりポイント

  • 浴室換気乾燥暖房機
  • 運転ラクラク生活
  • LDKは1階に
  • 2階建て住宅限定
  • LDK15帖以上
  • 和室有り
  • 広々バルコニー
  • ロフト・小屋裏収納
  • コンビニ10分以内
  • 保育園10分以内
  • 幼稚園10分以内
  • 公園10分以内
  • 都市ガス
  • 道路広々(5m以上)
  • 日当たり良好
  • 道路と段差無し

お気軽にどうぞ!

資料請求 現地見学 電話でお問い合わせ
0120-150-580

このエリアでお探しの方へ

川崎市宮前区犬蔵2丁目 中古一戸建 3780万円

田園都市線「たまプラーザ」駅 徒歩 17 分

田園都市線「鷺沼」駅 徒歩 17 分

川崎市宮前区 犬蔵2丁目

3,780万円

4DK

川崎市宮前区初山2丁目 新築一戸建 3780万円

田園都市線「溝の口」駅 バス停「緑地」まで 徒歩 2 分 バス利用 20分

小田急線「登戸」駅 バス停「緑地」まで 徒歩 2 分 バス利用 20分

川崎市宮前区 初山2丁目

3,780万円

3LDK

川崎市宮前区犬蔵1丁目 新築一戸建 4480万円 1号棟

田園都市線「鷺沼」駅 徒歩 20 分

田園都市線「たまプラーザ」駅 徒歩 22 分

川崎市宮前区 犬蔵1丁目

4,480万円

4LDK

川崎市多摩区南生田5丁目 新築一戸建 4580万円 3号棟

小田急線「生田」駅 徒歩 23 分

南武線「登戸」駅 バス停「鷲ヶ峰営業所」まで 徒歩 6 分 バス利用 33分

川崎市多摩区 南生田5丁目

4,580万円

4LDK

川崎市多摩区栗谷2丁目 中古一戸建 4580万円

小田急線「読売ランド前」駅 徒歩 14 分

小田急線「生田」駅 徒歩 18 分

川崎市多摩区 栗谷2丁目

4,580万円

4LDK

川崎市多摩区栗谷2丁目 中古一戸建 4599万円

小田急線「読売ランド前」駅 徒歩 13 分

小田急線「生田」駅 徒歩 15 分

川崎市多摩区 栗谷2丁目

4,599万円

4LDK

川崎市多摩区南生田5丁目 新築一戸建 4680万円 1号棟

小田急線「生田」駅 徒歩 23 分

南武線「登戸」駅 バス停「鷲ヶ峰営業所」まで 徒歩 6 分 バス利用 33分

川崎市多摩区 南生田5丁目

4,680万円

4LDK

川崎市多摩区南生田6丁目 新築一戸建 4880万円 1号棟

小田急線「生田」駅 徒歩 18 分

田園都市線「溝の口」駅 バス停「鷲ヶ峰営業所」まで 徒歩 13 分 バス利用 28分

川崎市多摩区 南生田6丁目

4,880万円

4LDK

川崎市麻生区王禅寺東6丁目 新築一戸建 4999万円 1号棟

小田急線「柿生」駅 徒歩 28 分

田園都市線「たまプラーザ」駅 バス停「王禅寺口」まで 徒歩 4 分 バス利用 26分

川崎市麻生区 王禅寺東6丁目

4,999万円

4LDK

川崎市多摩区南生田1丁目 新築一戸建 5280万円

小田急線「読売ランド前」駅 徒歩 10 分

小田急線「生田」駅 徒歩 18 分

川崎市多摩区 南生田1丁目

5,280万円

3LDK

川崎市多摩区南生田3丁目 新築一戸建 5399万円 1号棟

小田急線「生田」駅 徒歩 19 分

小田急線「読売ランド前」駅 徒歩 20 分

川崎市多摩区 南生田3丁目

5,399万円

4LDK

川崎市多摩区南生田3丁目 新築一戸建 5399万円 4号棟

小田急線「生田」駅 徒歩 19 分

小田急線「読売ランド前」駅 徒歩 20 分

川崎市多摩区 南生田3丁目

5,399万円

3LDK

お気軽にどうぞ!

資料請求 現地見学 電話でお問い合わせ
0120-150-580
来店予約