1. トップページ
  2. 稲城市東長沼 新築一戸建 6799万円

稲城市東長沼 新築一戸建 6799万円

価格
6,799万円
物件種別
新築一戸建て
間取り
4LDK
所在地
稲城市 東長沼
交通
  • 南武線「稲城長沼」駅 徒歩 10 分
  • 京王相模原線「稲城」駅 徒歩 26 分
土地面積
124.15㎡
建物面積
98.60㎡
  • 前回情報更新日 2026.02.20
  • 次回情報更新予定日 2026.03.06
資料請求 現地見学 電話でお問い合わせ
0120-150-580
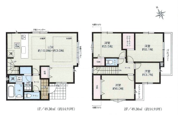
間取り
間取り
区画図
区画図
周辺環境:梨花幼稚園(園舎・園庭から子供たちの元気な声が聞こえてきます。できることが増えていく、お子様の成長が楽しみです。)
周辺環境:梨花幼稚園(園舎・園庭から子供たちの元気な声が聞こえてきます。できることが増えていく、お子様の成長が楽しみです。)
周辺環境:イオンタウン稲城長沼(駐車場を165台完備、最初の60分無料ピーコックストアは9時~22時45分まで営業!)
周辺環境:イオンタウン稲城長沼(駐車場を165台完備、最初の60分無料ピーコックストアは9時~22時45分まで営業!)
周辺環境:稲城北緑地公園(多摩川沿いにある公園。遊び場、野球、テニス、バスケット ボールなどの施設がある。)
周辺環境:稲城北緑地公園(多摩川沿いにある公園。遊び場、野球、テニス、バスケット ボールなどの施設がある。)
周辺環境:稲城長沼駅 (駅近くには「いなぎ発信基地ペアテラス」(観光案内スポット)があり、イベントなども開催しています。)
周辺環境:稲城長沼駅 (駅近くには「いなぎ発信基地ペアテラス」(観光案内スポット)があり、イベントなども開催しています。)
周辺環境:稲城市立稲城第六小学校(学校教育目標「よく聞きよく考えて伝え合う子 仲良く助け合う子 すすんで体を動かす子」)
周辺環境:稲城市立稲城第六小学校(学校教育目標「よく聞きよく考えて伝え合う子 仲良く助け合う子 すすんで体を動かす子」)
周辺環境:稲城市立稲城第四中学校(学校教育目標:自ら学び、考え、表現する 他を思いやり、力を合わせる たくましい気力・体力を。)
周辺環境:稲城市立稲城第四中学校(学校教育目標:自ら学び、考え、表現する 他を思いやり、力を合わせる たくましい気力・体力を。)

この物件のココがオススメ!

稲城長沼駅徒歩10分の好立地 カースペース2台有 19.8帖の広々としたLDKに主寝室は8.1帖 床暖房付

お気軽にどうぞ!

資料請求 現地見学 電話でお問い合わせ
0120-150-580

地図

申し訳ありません
こちらは会員限定機能です

会員登録で利用できる6つの便利機能

詳しく見る

お気軽にどうぞ!

資料請求 現地見学 電話でお問い合わせ
0120-150-580

頭金0万円・金利0.495%の場合

ボーナス時(年2回)お支払額

0

この物件の月々のお支払額

190,425

年収に対する返済比率

76

  • ※会員登録し、詳細情報を記入されますと、全ての物件で自動的に金額が表示され、大変便利です。
  • ※まだ会員登録をされていない方は、下記チェック欄をご記入ください。
  • ※上記計算は物件価格6,799万円+諸経費 8%込みの金額による結果となります。
  • ※返済金額はあくまでも目安です。

お客様の条件からシミュレーションするには?

会員登録
マイページから登録

金利

直接入力する

ボーナス払い(年2回)

返済年数

頭金

直接入力する

 万円(半角数字)

年収

 万円(半角数字)

約550m

幼稚園・保育園

周辺環境:梨花幼稚園(園舎・園庭から子供たちの元気な声が聞こえてきます。できることが増えていく、お子様の成長が楽しみです。)

幼稚園・保育園

約550m

約700m

ショッピングセンター

周辺環境:イオンタウン稲城長沼(駐車場を165台完備、最初の60分無料ピーコックストアは9時~22時45分まで営業!)

ショッピングセンター

約700m

約700m

公園

周辺環境:稲城北緑地公園(多摩川沿いにある公園。遊び場、野球、テニス、バスケット ボールなどの施設がある。)

公園

約700m

約750m

周辺環境:稲城長沼駅 (駅近くには「いなぎ発信基地ペアテラス」(観光案内スポット)があり、イベントなども開催しています。)

約750m

約800m

小学校

周辺環境:稲城市立稲城第六小学校(学校教育目標「よく聞きよく考えて伝え合う子 仲良く助け合う子 すすんで体を動かす子」)

小学校

約800m

約1,100m

中学校

周辺環境:稲城市立稲城第四中学校(学校教育目標:自ら学び、考え、表現する 他を思いやり、力を合わせる たくましい気力・体力を。)

中学校

約1,100m

価格 6,799万円
物件種別 新築一戸建て
間取り 4LDK
所在地 稲城市 東長沼
交通
  • 南武線「稲城長沼」駅 徒歩 10 分
  • 京王相模原線「稲城」駅 徒歩 26 分
土地面積 124.15㎡
建物面積 98.60㎡
学区 稲城市立稲城第六小学校、稲城市立稲城第四中学校
用途地域 第一種低層住居専用
建ぺい率 40%
容積率 80%
地目 宅地
駐車場 有り カースペース
接道 東4m、南東4m
権利 所有権
私道面積 有 54.92㎡ 1/7
セットバック 無し
建物構造 木造
建物階数 2階
築年月 2026年01月
入居日 2026年02月
都市計画 市街化区域
取引態様 仲介
物件番号 A2010
設備 公営水道、公共下水、防犯シャッター、省エネルギー対策、BELS/省エネ基準適合認定書あり、駐車場2台以上、閑静な住宅地、平坦地、角地、都市近郊、地盤調査済、市街地が近い、隣家との間隔が大きい、周辺交通量少なめ、スーパーが近い(10分以内)、駅まで平坦、2沿線以上利用可、小学校徒歩10分以内、コンビニ5分以内、システムキッチン、ガス3口、カウンタキッチン、食器洗い機付き、浄水器、ユニットバス、追い焚き、浴室乾燥機、ウォシュレット、オートバス付き、トイレ2ヶ所、浴室1坪以上、浴室に窓、暖房便座、浴室暖房、バルコニー、2階建、LDK18畳以上、照明器具付き、採光3面、全室2面採光、フローリング、全室フローリング、リビング階段、クローゼット、収納、床下収納、下駄箱、シャンプドレッサー付き、フラット35Sに対応、年度内入居可、モニタ付きインターフォン、複層ガラス、火災警報器(報知機)、全居室複層ガラスか複層サッシ、通風良好、陽当り良好、24時間換気システム、建物10年保証
建築確認番号 第25UDI1W建03715号
特記事項 隅切り:有/景観法:有/高度地区:有/日影制限:有/高さ限度:有/建築基準法22条による区域/私道持分:約5.81平米有り。 /
備考 稲城長沼駅徒歩10分の好立地 カースペース2台有 19.8帖の広々としたLDKに主寝室は8.1帖 床暖房付

こだわりポイント

  • 断熱に配慮された建物
  • 省エネに配慮された建物
  • 床暖房
  • 食器洗い洗浄乾燥機
  • 浴室換気乾燥暖房機
  • 急行電車でスピード通勤
  • 駅まで平坦ラクラク通勤
  • 自然を感じる暮らし
  • LDKは1階に
  • 2階建て住宅限定
  • ウォークインクローゼット
  • LDK18帖以上
  • 主寝室 8帖以上
  • 広々バルコニー
  • 対面キッチン
  • 浴室1坪以上
  • 小学校10分以内
  • スーパー10分以内
  • コンビニ10分以内
  • 幼稚園10分以内
  • 公園10分以内
  • 都市ガス
  • フラット35利用可
  • カースペース2台
  • 隣家との間隔たっぷり
  • 角地限定
  • 日当たり良好
  • 低層住居専用地域

お気軽にどうぞ!

資料請求 現地見学 電話でお問い合わせ
0120-150-580

このエリアでお探しの方へ

横浜市緑区三保町 新築一戸建 6499万円

横浜線「中山」駅 バス停「自治会館前」まで 徒歩 2 分 バス利用 15分

グリーンライン「中山」駅 バス停「自治会館前」まで 徒歩 2 分 バス利用 15分

横浜市緑区 三保町

6,499万円

4LDK

横浜市都筑区東山田町 中古一戸建 6499万円

グリーンライン「東山田」駅 徒歩 11 分

ブルーライン「センター北」駅 バス停「東山田営業所」まで 徒歩 3 分 バス利用 18分

横浜市都筑区 東山田町

6,499万円

4LDK

川崎市高津区梶ケ谷3丁目 新築一戸建 6499万円 2号棟

田園都市線「梶が谷」駅 徒歩 13 分

南武線「武蔵溝ノ口」駅 徒歩 24 分

川崎市高津区 梶ケ谷3丁目

6,499万円

2LDK+2S

建物完成しました! 今週末内覧会開催中!「能見台」駅徒歩10分 新築一戸建て(A)カースペース3台

京浜急行本線「能見台」駅 徒歩 10 分

京浜急行本線「金沢文庫」駅 バス停「谷津坂住宅入口」まで 徒歩 4 分 バス利用 3分

横浜市金沢区 西柴1丁目

6,562万円

4LDK

川崎市高津区向ケ丘 新築一戸建 6580万円 10号棟

田園都市線「宮崎台」駅 徒歩 18 分

南武線「武蔵溝ノ口」駅 バス停「上作団地前」まで 徒歩 5 分 バス利用 9分

川崎市高津区 向ケ丘

6,580万円

4LDK

今週末モデルハウス見学会開催中!「金沢文庫」駅利用 新築一戸建て LDK20帖

京浜急行本線「金沢文庫」駅 バス停「野村住宅センター」まで 徒歩 5 分 バス利用 16分

逗子線「金沢八景」駅 バス停「相武隧道」まで 徒歩 16 分 バス利用 11分

横浜市金沢区 釜利谷西6丁目

6,580万円

4LDK

川崎市宮前区けやき平 新築一戸建 6580万円 A号棟

田園都市線「宮前平」駅 徒歩 14 分

東急大井町線「溝の口」駅 バス停「東名向丘入口」まで 徒歩 9 分 バス利用 17分

川崎市宮前区 けやき平

6,580万円

4LDK

川崎市宮前区けやき平 新築一戸建 6580万円 B号棟

田園都市線「宮前平」駅 徒歩 14 分

東急大井町線「溝の口」駅 バス停「東名向丘入口」まで 徒歩 9 分 バス利用 17分

川崎市宮前区 けやき平

6,580万円

4LDK

稲城市平尾4丁目 新築一戸建 6580万円 16号棟

小田急多摩線「栗平」駅 徒歩 10 分

京王相模原線「若葉台」駅 徒歩 25 分

稲城市 平尾4丁目

6,580万円

4LDK

川崎市中原区上小田中2丁目 新築一戸建 6580万円 No.1

南武線「武蔵新城」駅 徒歩 9 分

東急東横線「武蔵小杉」駅 バス停「西下橋」まで 徒歩 6 分 バス利用 14分

川崎市中原区 上小田中2丁目

6,580万円

2SLDK

横浜市港北区鳥山町 新築一戸建 6588万2500円 G棟

横浜線「小机」駅 徒歩 16 分

ブルーライン「新横浜」駅 徒歩 22 分

横浜市港北区 鳥山町

6,588万円

5LDK

値下げしました!  「菊名」「大倉山」駅利用 新築一戸建て(2) 対面キッチン

東急東横線「菊名」駅 徒歩 17 分

東急東横線「大倉山」駅 徒歩 20 分

横浜市鶴見区 上の宮2丁目

6,588万円

4LDK

お気軽にどうぞ!

資料請求 現地見学 電話でお問い合わせ
0120-150-580
来店予約