1. トップページ
  2. 川崎市宮前区東有馬1丁目 新築一戸建 5450万円

川崎市宮前区東有馬1丁目 新築一戸建 5450万円

価格
5,450万円
物件種別
新築一戸建て
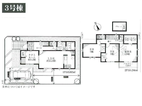
間取り
3LDK
所在地
川崎市宮前区 東有馬1丁目
交通
  • 田園都市線「宮前平」駅 徒歩 17 分
  • 田園都市線「宮崎台」駅 徒歩 17 分
土地面積
63.47㎡
建物面積
109.73㎡
  • 前回情報更新日 2026.05.01
  • 次回情報更新予定日 2026.05.15
資料請求 現地見学 電話でお問い合わせ
0120-150-580
間取り
間取り
■リビング■本画像はAIがCGで家具作成しており、実際の現地に家具は設置されておりません。また、販売価格に家具等は含まれておりません。
■リビング■本画像はAIがCGで家具作成しており、実際の現地に家具は設置されておりません。また、販売価格に家具等は含まれておりません。
居室空間をすっきり保てる、ウォークインクローゼット付です。広いため、使い慣れた収納家具をこの空間に設置することもできます。
居室空間をすっきり保てる、ウォークインクローゼット付です。広いため、使い慣れた収納家具をこの空間に設置することもできます。
トイレのすぐ横に洗面台があるため、衛生的で使い勝手が良いです。メインの洗面室とは分かれているので、来客時もプライベートな空間を見せることなく利用していただけます。
トイレのすぐ横に洗面台があるため、衛生的で使い勝手が良いです。メインの洗面室とは分かれているので、来客時もプライベートな空間を見せることなく利用していただけます。
外観:収納豊富な3LDKの間取り!主寝室は南向きで8.26帖の広々としたスペースにウォークインクローゼットを確保した贅沢な広さです。
外観:収納豊富な3LDKの間取り!主寝室は南向きで8.26帖の広々としたスペースにウォークインクローゼットを確保した贅沢な広さです。
全居室には大型の収納クローゼットを完備。普段使いのお洋服や小物はもちろん、季節物のお洋服などもしっかりと整理整頓出来る。居室空間を隅々まで使えるのが嬉しい。
全居室には大型の収納クローゼットを完備。普段使いのお洋服や小物はもちろん、季節物のお洋服などもしっかりと整理整頓出来る。居室空間を隅々まで使えるのが嬉しい。
毎日使うキッチンが綺麗で清潔ならお料理を作るのも楽しくなりますよね。機能性とデザイン性を兼ね備えた嬉しいキッチン。
毎日使うキッチンが綺麗で清潔ならお料理を作るのも楽しくなりますよね。機能性とデザイン性を兼ね備えた嬉しいキッチン。
対面式のカウンターキッチンですので、出来上がったお料理をカウンターに並べてお子様が運ぶなど、お手伝いの時間も増えそうですね。
対面式のカウンターキッチンですので、出来上がったお料理をカウンターに並べてお子様が運ぶなど、お手伝いの時間も増えそうですね。
大切な家族が集まるからこそLDKにはこだわりたい。日当たりのよい広いLDKを、子供たちが元気に走り回っている姿を見た時「広い家にして良かった」と思う。
大切な家族が集まるからこそLDKにはこだわりたい。日当たりのよい広いLDKを、子供たちが元気に走り回っている姿を見た時「広い家にして良かった」と思う。
オープンな空間を生み出す、広がりとゆとり。家族と過ごす時間を大切にしたい方にぴったりのゆとりある住空間です。日差しがリビングの隅々までしっかりと届きます。
オープンな空間を生み出す、広がりとゆとり。家族と過ごす時間を大切にしたい方にぴったりのゆとりある住空間です。日差しがリビングの隅々までしっかりと届きます。
光を取り込みやすい2面採光の居室は日当良好。クローゼットの完備で収納スペースも十分。お子様にとっての「自分の部屋」。学習デスクやベッドの配置もラクラクです。
光を取り込みやすい2面採光の居室は日当良好。クローゼットの完備で収納スペースも十分。お子様にとっての「自分の部屋」。学習デスクやベッドの配置もラクラクです。
玄関ホールがスッキリ広々としていると帰る時も出ていく時も気持ちが良い。来客を出迎える玄関が綺麗ならその家の印象が良くなる。
玄関ホールがスッキリ広々としていると帰る時も出ていく時も気持ちが良い。来客を出迎える玄関が綺麗ならその家の印象が良くなる。
鏡の裏に収納棚を確保した三面鏡を採用。化粧品や歯ブラシなどを機能的に収納。また、三面鏡の本当の利点は三枚の鏡を合わせることで、頭の側面や背面が見れること。
鏡の裏に収納棚を確保した三面鏡を採用。化粧品や歯ブラシなどを機能的に収納。また、三面鏡の本当の利点は三枚の鏡を合わせることで、頭の側面や背面が見れること。
ゆったり入れる一坪バス。足を伸ばして入れるサイズは一日の疲れを癒すのに嬉しい広さ。お子様と一緒の入浴でも充分な広さです。
ゆったり入れる一坪バス。足を伸ばして入れるサイズは一日の疲れを癒すのに嬉しい広さ。お子様と一緒の入浴でも充分な広さです。
ウォシュレット、暖房便座機能付のトイレです。従来型に比べ節水効果があり、お手入れもしやすいので、家計も家事の負担も軽減してくれます。
ウォシュレット、暖房便座機能付のトイレです。従来型に比べ節水効果があり、お手入れもしやすいので、家計も家事の負担も軽減してくれます。
収納力が豊富な大型クローゼット。普段着やスーツはもちろんのこと、コート類などもしっかり掛けられます。奥行きもあり、部屋がスッキリしますね。
収納力が豊富な大型クローゼット。普段着やスーツはもちろんのこと、コート類などもしっかり掛けられます。奥行きもあり、部屋がスッキリしますね。
周辺環境:宮崎台駅(閑静な住宅街に位置する駅、周辺は並木通りがキレイで整然としています。)
周辺環境:宮崎台駅(閑静な住宅街に位置する駅、周辺は並木通りがキレイで整然としています。)
周辺環境:ライフ東有馬店(食べ盛りのお子様がいるご家庭の強い味方、魅力の量・価格のスーパーが近くにあると、とても心強いですね。)
周辺環境:ライフ東有馬店(食べ盛りのお子様がいるご家庭の強い味方、魅力の量・価格のスーパーが近くにあると、とても心強いですね。)
周辺環境:ロピア馬絹店(電気店のノジマと同じ建物にあります。ロープライスのユートピアを作ることを目標にしています。)
周辺環境:ロピア馬絹店(電気店のノジマと同じ建物にあります。ロープライスのユートピアを作ることを目標にしています。)
周辺環境:クリエイトS・D 川崎東有馬店(いまや生活に欠かせないという方も多いドラッグストアは、近所にあると頼もしい限りですね。駐車場も広く、便利です。)
周辺環境:クリエイトS・D 川崎東有馬店(いまや生活に欠かせないという方も多いドラッグストアは、近所にあると頼もしい限りですね。駐車場も広く、便利です。)
周辺環境:東有馬植木の里公園(とても開放的な公園で晴れた日にはボール遊びやバトミントンなどで遊ぶのにお子さんが喜びそうな場所。)
周辺環境:東有馬植木の里公園(とても開放的な公園で晴れた日にはボール遊びやバトミントンなどで遊ぶのにお子さんが喜びそうな場所。)
周辺環境:にじいろ保育園有馬(2022年4月に開園した、お子さま受け入れ60名の園です。毎日子どもたちの元気いっぱいな声が園舎から響き活気がある保育園です。)
周辺環境:にじいろ保育園有馬(2022年4月に開園した、お子さま受け入れ60名の園です。毎日子どもたちの元気いっぱいな声が園舎から響き活気がある保育園です。)
周辺環境:東有馬白百合幼稚園(きょうみ、かんしん、かんしゃ、かんげき、かんどう心を豊かにする『こころの五感』を育てます。)
周辺環境:東有馬白百合幼稚園(きょうみ、かんしん、かんしゃ、かんげき、かんどう心を豊かにする『こころの五感』を育てます。)
周辺環境:宮崎小学校(お子様が一日の中でも長い時間を過ごす小学校。どんどん成長していくお子様の姿が目に浮かびます。)
周辺環境:宮崎小学校(お子様が一日の中でも長い時間を過ごす小学校。どんどん成長していくお子様の姿が目に浮かびます。)
周辺環境:宮崎中学校(1学年8クラスのマンモス校。お友達もたくさんできる環境です。)
周辺環境:宮崎中学校(1学年8クラスのマンモス校。お友達もたくさんできる環境です。)

この物件のココがオススメ!

宮前平駅徒歩17分 LDK17.89帖の大型3LDK 浴室TVや食洗機など設備充実 制震ダンパー付

お気軽にどうぞ!

資料請求 現地見学 電話でお問い合わせ
0120-150-580

地図

申し訳ありません
こちらは会員限定機能です

会員登録で利用できる6つの便利機能

詳しく見る

お気軽にどうぞ!

資料請求 現地見学 電話でお問い合わせ
0120-150-580

頭金0万円・金利0.495%の場合

ボーナス時(年2回)お支払額

0

この物件の月々のお支払額

152,661

年収に対する返済比率

61

  • ※会員登録し、詳細情報を記入されますと、全ての物件で自動的に金額が表示され、大変便利です。
  • ※まだ会員登録をされていない方は、下記チェック欄をご記入ください。
  • ※上記計算は物件価格5,450万円+諸経費 8%込みの金額による結果となります。
  • ※返済金額はあくまでも目安です。

お客様の条件からシミュレーションするには?

会員登録
マイページから登録

金利

直接入力する

ボーナス払い(年2回)

返済年数

頭金

直接入力する

 万円(半角数字)

年収

 万円(半角数字)

約1,300m

周辺環境:宮崎台駅(閑静な住宅街に位置する駅、周辺は並木通りがキレイで整然としています。)

約1,300m

約400m

スーパー

周辺環境:ライフ東有馬店(食べ盛りのお子様がいるご家庭の強い味方、魅力の量・価格のスーパーが近くにあると、とても心強いですね。)

スーパー

約400m

約700m

スーパー

周辺環境:ロピア馬絹店(電気店のノジマと同じ建物にあります。ロープライスのユートピアを作ることを目標にしています。)

スーパー

約700m

約350m

ドラッグストア

周辺環境:クリエイトS・D 川崎東有馬店(いまや生活に欠かせないという方も多いドラッグストアは、近所にあると頼もしい限りですね。駐車場も広く、便利です。)

ドラッグストア

約350m

約1,500m

公園

周辺環境:東有馬植木の里公園(とても開放的な公園で晴れた日にはボール遊びやバトミントンなどで遊ぶのにお子さんが喜びそうな場所。)

公園

約1,500m

約1,000m

幼稚園・保育園

周辺環境:にじいろ保育園有馬(2022年4月に開園した、お子さま受け入れ60名の園です。毎日子どもたちの元気いっぱいな声が園舎から響き活気がある保育園です。)

幼稚園・保育園

約1,000m

約800m

幼稚園・保育園

周辺環境:東有馬白百合幼稚園(きょうみ、かんしん、かんしゃ、かんげき、かんどう心を豊かにする『こころの五感』を育てます。)

幼稚園・保育園

約800m

約280m

小学校

周辺環境:宮崎小学校(お子様が一日の中でも長い時間を過ごす小学校。どんどん成長していくお子様の姿が目に浮かびます。)

小学校

約280m

約1,700m

中学校

周辺環境:宮崎中学校(1学年8クラスのマンモス校。お友達もたくさんできる環境です。)

中学校

約1,700m

価格 5,450万円
物件種別 新築一戸建て
間取り 3LDK
所在地 川崎市宮前区 東有馬1丁目
交通
  • 田園都市線「宮前平」駅 徒歩 17 分
  • 田園都市線「宮崎台」駅 徒歩 17 分
土地面積 63.47㎡
建物面積 109.73㎡
学区 宮崎小学校、宮崎中学校
用途地域 準住居
建ぺい率 60%
容積率 200%
地目 宅地
駐車場 有り ビルトイン車庫
接道 北22m
権利 所有権
私道面積 有 4.96㎡ 2/10
セットバック 無し
建物構造 木造
建物階数 3階
築年月 2025年11月
入居日 即時
都市計画 市街化区域
取引態様 仲介
物件番号 A0931
設備 公営水道、公共下水、外壁サイディング、耐震・制震・免震、ビルトインガレージ、駐車場1台、閑静な住宅地、都市近郊、地盤調査済、前道6m以上、市街地が近い、スーパーが近い(10分以内)、小学校徒歩10分以内、保育施設・幼稚園5分以内、公園5分以内、システムキッチン、ガス3口、カウンタキッチン、食器洗い機付き、浄水器、パントリー(食器・食品の収納庫)、ユニットバス、追い焚き、浴室乾燥機、ウォシュレット、オートバス付き、トイレ2ヶ所、浴室に窓、暖房便座、セカンド洗面台、浴室暖房、バルコニー、南面バルコニー、3階建以上、LDK15畳以上、採光3面、南向き、全室2面採光、フローリング、全室フローリング、リビング階段、クローゼット、収納、床下収納、下駄箱、全居室収納、シャンプドレッサー付き、モニタ付きインターフォン、カードキー、複層ガラス、火災警報器(報知機)、通風良好、陽当り良好、24時間換気システム、建物10年保証
建築確認番号 第KBI-SGM24-10-5624号
特記事項 壁面後退:有/景観法:有/宅地造成工事規制区域:有/高度地区:有/準防火地域:有/日影制限:有/高さ限度:有/建物面積109.73m2のうち車庫部分面積12.13m2含む。 /
備考 宮前平駅徒歩17分 LDK17.89帖の大型3LDK 浴室TVや食洗機など設備充実 制震ダンパー付

こだわりポイント

  • 大通り沿い
  • 建売だけど一味違うこだわり建物
  • カワイイ系のこだわり建物
  • 耐震に配慮された建物
  • 断熱に配慮された建物
  • 食器洗い洗浄乾燥機
  • 浴室換気乾燥暖房機
  • 運転ラクラク生活
  • 急行電車でスピード通勤
  • ウォークインクローゼット
  • リビングイン階段
  • LDKは2階に
  • LDK15帖以上
  • 主寝室 8帖以上
  • 対面キッチン
  • 浴室1坪以上
  • パントリー
  • 小学校10分以内
  • スーパー10分以内
  • コンビニ10分以内
  • 保育園10分以内
  • 幼稚園10分以内
  • 公園10分以内
  • 都市ガス
  • 屋根付きカースペース
  • 道路広々(5m以上)
  • 道路と段差無し

お気軽にどうぞ!

資料請求 現地見学 電話でお問い合わせ
0120-150-580

このエリアでお探しの方へ

川崎市宮前区東有馬1丁目 新築一戸建 5250万円

田園都市線「宮前平」駅 徒歩 20 分

田園都市線「鷺沼」駅 バス停「寺台」まで 徒歩 9 分 バス利用 12分

川崎市宮前区 東有馬1丁目

5,250万円

3LDK

川崎市多摩区南生田6丁目 新築一戸建 5498万円 2号棟

小田急線「生田」駅 バス停「南生田四丁目」まで 徒歩 4 分 バス利用 10分

田園都市線「宮前平」駅 バス停「鷲ヶ峰営業所前」まで 徒歩 4 分 バス利用 20分

川崎市多摩区 南生田6丁目

5,498万円

4LDK

川崎市多摩区南生田6丁目 新築一戸建 5498万円 1号棟

小田急線「生田」駅 バス停「南生田四丁目」まで 徒歩 4 分 バス利用 10分

田園都市線「宮前平」駅 バス停「鷲ヶ峰営業所前」まで 徒歩 4 分 バス利用 20分

川崎市多摩区 南生田6丁目

5,498万円

4LDK

川崎市宮前区梶ケ谷 新築一戸建 5580万円 2号棟

田園都市線「宮崎台」駅 徒歩 22 分

南武線「武蔵新城」駅 バス停「金山」まで 徒歩 5 分 バス利用 19分

川崎市宮前区 梶ケ谷

5,580万円

4LDK

川崎市宮前区梶ケ谷 新築一戸建 5680万円 1号棟

田園都市線「宮崎台」駅 徒歩 22 分

南武線「武蔵新城」駅 バス停「金山」まで 徒歩 5 分 バス利用 19分

川崎市宮前区 梶ケ谷

5,680万円

4LDK

川崎市宮前区野川本町1丁目 新築一戸建 5190万円 B号棟

田園都市線「梶が谷」駅 徒歩 23 分

南武線「武蔵新城」駅 徒歩 25 分

川崎市宮前区 野川本町1丁目

5,190万円

4LDK

川崎市宮前区野川本町1丁目 新築一戸建 5430万円 1号棟

田園都市線「梶が谷」駅 徒歩 26 分

南武線「武蔵溝ノ口」駅 バス停「新作八幡下」まで 徒歩 10 分 バス利用 9分

川崎市宮前区 野川本町1丁目

5,430万円

4LDK

川崎市宮前区野川本町1丁目 新築一戸建 5430万円  2号棟

田園都市線「梶が谷」駅 徒歩 26 分

南武線「武蔵溝ノ口」駅 バス停「新作八幡下」まで 徒歩 10 分 バス利用 9分

川崎市宮前区 野川本町1丁目

5,430万円

4LDK

川崎市宮前区野川本町1丁目 新築一戸建 5690万円 A号棟

田園都市線「梶が谷」駅 徒歩 23 分

南武線「武蔵新城」駅 徒歩 25 分

川崎市宮前区 野川本町1丁目

5,690万円

4LDK

川崎市宮前区白幡台1丁目 新築一戸建 4180万円 2号棟

田園都市線「宮前平」駅 徒歩 30 分

南武線「武蔵溝ノ口」駅 バス停「平」まで 徒歩 5 分 バス利用 16分

川崎市宮前区 白幡台1丁目

4,180万円

4LDK

川崎市宮前区白幡台1丁目 新築一戸建 4280万円 1号棟

田園都市線「宮前平」駅 徒歩 30 分

南武線「武蔵溝ノ口」駅 バス停「平」まで 徒歩 5 分 バス利用 16分

川崎市宮前区 白幡台1丁目

4,280万円

4LDK

川崎市宮前区南平台 新築一戸建 4480万円 3号棟

田園都市線「宮前平」駅 徒歩 23 分

南武線「武蔵溝ノ口」駅 バス停「東名向丘入口」まで 徒歩 1 分 バス利用 16分

川崎市宮前区 南平台

4,480万円

2SLDK

お気軽にどうぞ!

資料請求 現地見学 電話でお問い合わせ
0120-150-580
来店予約