1. トップページ
  2. 今週末モデルハウス見学会開催中!「鶴見」駅利用 新築一戸建て(3) 全室2面採光

今週末モデルハウス見学会開催中!「鶴見」駅利用 新築一戸建て(3) 全室2面採光

価格
5,480万円
物件種別
新築一戸建て
間取り
4LDK
所在地
横浜市鶴見区 梶山2丁目
交通
  • 京浜東北線「鶴見」駅 バス停「陸橋下」まで 徒歩 7 分 バス利用 15分
  • 東急東横線「大倉山」駅 バス停「陸橋下」まで 徒歩 7 分 バス利用 13分
土地面積
157.45㎡
建物面積
105.57㎡
  • 前回情報更新日 2026.04.24
  • 次回情報更新予定日 2026.05.08
資料請求 現地見学 電話でお問い合わせ
0120-150-580
外観:目の前に広がる開放感とゆとり、暮らしの夢を育む理想の住まいがここにはあります。堂々とした姿で完成したこの住宅は見る人を魅了してくれる高級感があります!
外観:目の前に広がる開放感とゆとり、暮らしの夢を育む理想の住まいがここにはあります。堂々とした姿で完成したこの住宅は見る人を魅了してくれる高級感があります!
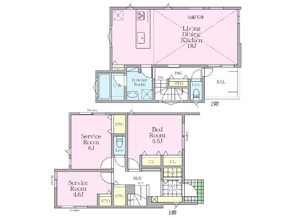
間取り:3号棟間取図
間取り:3号棟間取図
区画図
区画図
外観:深く豊かな緑と爽快な青い空を感じるまさに横浜に暮らす心地よさを存分に堪能いただける邸宅です。グレードの高い設備仕様が標準装備のデザイン住宅で快適で便利な生活をお送り頂けます。
外観:深く豊かな緑と爽快な青い空を感じるまさに横浜に暮らす心地よさを存分に堪能いただける邸宅です。グレードの高い設備仕様が標準装備のデザイン住宅で快適で便利な生活をお送り頂けます。
外観:前面道路は閑静な車通りの少ない道路。お車の出し入れが苦手なママや小さなお子様にも安心ですね。駐車スペースも広々しているので楽々駐車できますね!
外観:前面道路は閑静な車通りの少ない道路。お車の出し入れが苦手なママや小さなお子様にも安心ですね。駐車スペースも広々しているので楽々駐車できますね!
外観:毎日のお散歩も快適な緑に恵まれたエリアは伸び伸びスローライフを叶えてくれます。自然豊富な季節の移ろいを身近に感じられる環境でストレスフリーな生活をお送りください。
外観:毎日のお散歩も快適な緑に恵まれたエリアは伸び伸びスローライフを叶えてくれます。自然豊富な季節の移ろいを身近に感じられる環境でストレスフリーな生活をお送りください。
外観:開放感のある現地で、前面道路よりも少し高くなっておりますので、プライベート感も保たれます!高くなっている分、日当りや風通しも良く快適な生活が待っています!
外観:開放感のある現地で、前面道路よりも少し高くなっておりますので、プライベート感も保たれます!高くなっている分、日当りや風通しも良く快適な生活が待っています!
周辺環境:イオン駒岡店(イオン駒岡店まで1717m 食品・日用品が揃う便利なショッピング施設で、毎日の買物もスムーズ♪)
周辺環境:イオン駒岡店(イオン駒岡店まで1717m 食品・日用品が揃う便利なショッピング施設で、毎日の買物もスムーズ♪)
周辺環境:横浜市駒岡地区センター
周辺環境:横浜市駒岡地区センター
周辺環境:クリエイトエス・ディー鶴見下末吉店
周辺環境:クリエイトエス・ディー鶴見下末吉店
周辺環境:駒岡保育園
周辺環境:駒岡保育園
周辺環境:あさひ台幼稚園
周辺環境:あさひ台幼稚園
周辺環境:横浜市立末吉中学校
周辺環境:横浜市立末吉中学校
周辺環境:横浜市立上末吉小学校
周辺環境:横浜市立上末吉小学校
周辺環境:梶山二丁目公園
周辺環境:梶山二丁目公園

この物件のココがオススメ!

JR「鶴見」駅利用。閑静な住環境。ご家族とのコミュニケーションが取りやすい、対面キッチン・リビングイン階段のLDK。エコジョーズ、浴室乾燥機他設備充実。

お気軽にどうぞ!

資料請求 現地見学 電話でお問い合わせ
0120-150-580

地図

申し訳ありません
こちらは会員限定機能です

会員登録で利用できる6つの便利機能

詳しく見る

お気軽にどうぞ!

資料請求 現地見学 電話でお問い合わせ
0120-150-580

頭金0万円・金利0.495%の場合

ボーナス時(年2回)お支払額

0

この物件の月々のお支払額

153,491

年収に対する返済比率

61

  • ※会員登録し、詳細情報を記入されますと、全ての物件で自動的に金額が表示され、大変便利です。
  • ※まだ会員登録をされていない方は、下記チェック欄をご記入ください。
  • ※上記計算は物件価格5,480万円+諸経費 8%込みの金額による結果となります。
  • ※返済金額はあくまでも目安です。

お客様の条件からシミュレーションするには?

会員登録
マイページから登録

金利

直接入力する

ボーナス払い(年2回)

返済年数

頭金

直接入力する

 万円(半角数字)

年収

 万円(半角数字)

約1,717m

ショッピングセンター

周辺環境:イオン駒岡店(イオン駒岡店まで1717m 食品・日用品が揃う便利なショッピング施設で、毎日の買物もスムーズ♪)

ショッピングセンター

約1,717m

約1,100m

その他環境写真

周辺環境:横浜市駒岡地区センター

その他環境写真

約1,100m

約1,700m

ドラッグストア

周辺環境:クリエイトエス・ディー鶴見下末吉店

ドラッグストア

約1,700m

約1,500m

幼稚園・保育園

周辺環境:駒岡保育園

幼稚園・保育園

約1,500m

約1,400m

幼稚園・保育園

周辺環境:あさひ台幼稚園

幼稚園・保育園

約1,400m

約1,300m

中学校

周辺環境:横浜市立末吉中学校

中学校

約1,300m

約1,100m

小学校

周辺環境:横浜市立上末吉小学校

小学校

約1,100m

約100m

公園

周辺環境:梶山二丁目公園

公園

約100m

価格 5,480万円
物件種別 新築一戸建て
間取り 4LDK
所在地 横浜市鶴見区 梶山2丁目
交通
  • 京浜東北線「鶴見」駅 バス停「陸橋下」まで 徒歩 7 分 バス利用 15分
  • 東急東横線「大倉山」駅 バス停「陸橋下」まで 徒歩 7 分 バス利用 13分
土地面積 157.45㎡
建物面積 105.57㎡
学区 上末吉小学校、末吉中学校
用途地域 第一種低層住居専用
建ぺい率 40%
容積率 80%
地目 宅地
駐車場 有り カースペース
接道 東6.4m
権利 所有権
私道面積 無し
セットバック 無し
建物構造 木造
建物階数 2階
築年月 2026年06月
入居日 2026年06月
都市計画 市街化区域
取引態様 仲介
物件番号 48744-3
設備 公営水道、公共下水、駐車場2台以上、緑豊かな住宅地、閑静な住宅地、前道6m以上、2沿線以上利用可、公園5分以内、システムキッチン、I型キッチン、浴室乾燥機、ウォシュレット、オートバス付き、トイレ2ヶ所、浴室1坪以上、浴室に窓、バルコニー、南面バルコニー、2階建、LDK20畳以上、省エネ給湯器、全室2面採光、フローリング、全室フローリング、リビング階段、クローゼット、収納、床下収納、下駄箱、全居室収納、シャンプドレッサー付き、フラット35Sに対応、モニタ付きインターフォン、複層ガラス、全居室複層ガラスか複層サッシ、通風良好、24時間換気システム、建物10年保証
建築確認番号 第25UDI1K建02124号
特記事項 不整形地 壁面後退 宅地造成工事規制区域 高度地区 風致地区 日影制限 敷地内段差 敷地面積最低限度 建物高さ10m以下 建築基準法第22条区域 横浜市建築基準条例第3条による制限有 傾斜地含 不整形地:有/壁面後退:有/宅地造成工事規制区域:有/高度地区:有/風致地区:有/日影制限:有/敷地内段差:有/敷地面積最低限度:有/高さ限度:有/建築基準法第22条区域 横浜市建築基準条例第3条による制限有 傾斜地含。 /
備考 JR「鶴見」駅利用。閑静な住環境。ご家族とのコミュニケーションが取りやすい、対面キッチン・リビングイン階段のLDK。エコジョーズ、浴室乾燥機他設備充実。

こだわりポイント

  • 省エネに配慮された建物
  • 浴室換気乾燥暖房機
  • LDKは1階に
  • 2階建て住宅限定
  • リビングイン階段
  • LDK20帖以上
  • 対面キッチン
  • 公園10分以内
  • 都市ガス
  • 5棟以上の分譲地

お気軽にどうぞ!

資料請求 現地見学 電話でお問い合わせ
0120-150-580

このエリアでお探しの方へ

今週末モデルハウス見学会開催中!「大口」駅利用 新築一戸建て(1) 全室2面採光

横浜線「大口」駅 徒歩 19 分

京浜東北線「鶴見」駅 バス停「宝蔵院前」まで 徒歩 3 分 バス利用 12分

横浜市鶴見区 東寺尾1丁目

5,180万円

2SLDK

今週末内覧会開催中!「洋光台」駅徒歩15分 中古一戸建て 太陽光パネル有

根岸線「洋光台」駅 徒歩 15 分

根岸線「洋光台」駅 バス停「洋光台2丁目」まで 徒歩 10 分 バス利用 3分

横浜市港南区 笹下6丁目

5,180万円

1SLDK

川崎市中原区井田3丁目 新築一戸建 5180万円 3号棟

東急東横線「日吉」駅 徒歩 22 分

グリーンライン「日吉本町」駅 徒歩 23 分

川崎市中原区 井田3丁目

5,180万円

3SLDK

今週末モデルハウス見学会開催中!「桜ケ丘」「瀬谷」駅利用 新築一戸建て(1) カースペース2台

江ノ島線「桜ヶ丘」駅 徒歩 18 分

相模鉄道線「瀬谷」駅 徒歩 26 分

横浜市瀬谷区 北新

5,180万円

4LDK

川崎市高津区千年 新築一戸建 5180万円 1号棟

南武線「武蔵新城」駅 徒歩 22 分

田園都市線「溝の口」駅 バス停「千年」まで 徒歩 6 分 バス利用 17分

川崎市高津区 千年

5,180万円

2SLDK

今週末モデルハウス見学会開催中!「上永谷」駅徒歩15分 新築一戸建て エコジョーズ

ブルーライン「上永谷」駅 徒歩 15 分

ブルーライン「港南中央」駅 徒歩 19 分

横浜市港南区 日野4丁目

5,180万円

1LDK+2S

値下げしました! 「蒔田」駅徒歩8分 新築一戸建て(3) エコジョーズ

ブルーライン「蒔田」駅 徒歩 8 分

ブルーライン「弘明寺」駅 徒歩 14 分

横浜市南区 大岡1丁目

5,180万円

2LDK+2S

値下げしました!今週末内覧会開催中!「港南台」駅徒歩13分 未入居中古一戸建て(4) 閑静な住宅地

根岸線「港南台」駅 徒歩 13 分

京浜急行本線「上大岡」駅 バス停「日野」まで 徒歩 13 分 バス利用 10分

横浜市港南区 港南台1丁目

5,180万円

3SLDK

横浜市神奈川区菅田町 新築一戸建 5180万円 2号棟

横浜線「鴨居」駅 バス停「小川橋」まで 徒歩 5 分 バス利用 10分

ブルーライン「片倉町」駅 バス停「小川橋」まで 徒歩 4 分 バス利用 13分

横浜市神奈川区 菅田町

5,180万円

4LDK

今週末内覧会開催中!「山手」駅利用 中古一戸建て 全室2面採光

根岸線「山手」駅 バス停「本牧」まで 徒歩 10 分 バス利用 18分

みなとみらい線「元町・中華街」駅 バス停「本牧大里町」まで 徒歩 3 分 バス利用 20分

横浜市中区 本牧元町

5,180万円

4LDK

建物完成しました! 今週末内覧会開催中!「西谷」駅徒歩15分 新築一戸建て エコジョーズ

相模鉄道線「西谷」駅 徒歩 15 分

相模鉄道線「鶴ヶ峰」駅 徒歩 25 分

横浜市保土ケ谷区 川島町

5,180万円

4LDK

今週末モデルハウス見学会開催中!「大口」駅利用 新築一戸建て(2) 全室2面採光

横浜線「大口」駅 徒歩 19 分

京浜東北線「鶴見」駅 バス停「宝蔵院前」まで 徒歩 3 分 バス利用 12分

横浜市鶴見区 東寺尾1丁目

5,180万円

3SLDK

お気軽にどうぞ!

資料請求 現地見学 電話でお問い合わせ
0120-150-580
来店予約