1. トップページ
  2. 今週末モデルハウス見学会開催中!「弥生台」駅徒歩9分 新築一戸建て カースペース2台

今週末モデルハウス見学会開催中!「弥生台」駅徒歩9分 新築一戸建て カースペース2台

価格
6,499万円
物件種別
新築一戸建て
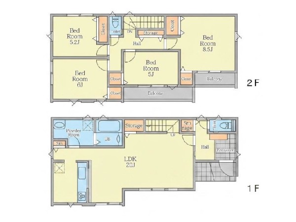
間取り
4LDK
所在地
横浜市泉区 新橋町
交通
  • いずみ野線「弥生台」駅 徒歩 9 分
  • 東海道本線「戸塚」駅 バス停「新橋町」まで 徒歩 7 分 バス利用 22分
土地面積
218.68㎡
建物面積
108.47㎡
  • 前回情報更新日 2026.05.21
  • 次回情報更新予定日 2026.06.04
資料請求 現地見学 電話でお問い合わせ
0120-150-580
間取図
間取図

この物件のココがオススメ!

相鉄いずみ野線「弥生台」駅徒歩9分。緑豊かで閑静な住宅地。4LDKのゆとりの間取り。広々20帖LDKは、対面式キッチン・リビングイン階段で、ご家族での会話が弾みます。

お気軽にどうぞ!

資料請求 現地見学 電話でお問い合わせ
0120-150-580

地図

申し訳ありません
こちらは会員限定機能です

会員登録で利用できる6つの便利機能

詳しく見る

お気軽にどうぞ!

資料請求 現地見学 電話でお問い合わせ
0120-150-580

頭金0万円・金利0.495%の場合

ボーナス時(年2回)お支払額

0

この物件の月々のお支払額

182,021

年収に対する返済比率

73

  • ※会員登録し、詳細情報を記入されますと、全ての物件で自動的に金額が表示され、大変便利です。
  • ※まだ会員登録をされていない方は、下記チェック欄をご記入ください。
  • ※上記計算は物件価格6,499万円+諸経費 8%込みの金額による結果となります。
  • ※返済金額はあくまでも目安です。

お客様の条件からシミュレーションするには?

会員登録
マイページから登録

金利

直接入力する

ボーナス払い(年2回)

返済年数

頭金

直接入力する

 万円(半角数字)

年収

 万円(半角数字)
価格 6,499万円
物件種別 新築一戸建て
間取り 4LDK
所在地 横浜市泉区 新橋町
交通
  • いずみ野線「弥生台」駅 徒歩 9 分
  • 東海道本線「戸塚」駅 バス停「新橋町」まで 徒歩 7 分 バス利用 22分
土地面積 218.68㎡
建物面積 108.47㎡
学区 新橋小学校、岡津中学校
用途地域 第一種低層住居専用
建ぺい率 50%
容積率 80%
地目 宅地
駐車場 有り カースペース
接道 東6.5m
権利 所有権
私道面積 無し
セットバック 無し
建物構造 木造
建物階数 2階
築年月 2026年04月
入居日 即時
都市計画 市街化区域
取引態様 仲介
物件番号 48689
設備 個別LPG、公営水道、公共下水、防犯シャッター、駐車場2台以上、緑豊かな住宅地、閑静な住宅地、土地50坪以上、前道6m以上、2沿線以上利用可、小学校徒歩10分以内、保育施設・幼稚園5分以内、公園5分以内、システムキッチン、ガス3口、食器洗い機付き、I型キッチン、ユニットバス、追い焚き、浴室乾燥機、ウォシュレット、トイレ2ヶ所、浴室1坪以上、浴室に窓、暖房便座、バルコニー、南面バルコニー、2階建、LDK20畳以上、採光2面、フローリング、リビング階段、クローゼット、収納、床下収納、下駄箱、全居室収納、シャンプドレッサー付き、フラット35Sに対応、モニタ付きインターフォン、インターフォン、24時間換気システム、建物10年保証
建築確認番号 第25UDI1W建09956号
特記事項 不整形地 宅地造成工事規制区域 高度地区 日影制限 接道と段差 敷地面積最低限度 建物高さ10m以下 建築基準法第22条区域 横浜市建築基準条例第3条による制限有 建物建築・再建築の際、深基礎、基礎杭、擁壁の補修・再構築、外壁後退等の対策が必要となる場合があります 建物建築・再建築の際、防護壁の設置、高基礎、外壁後退等の対策が必要となる場合があります 不整形地:有/宅地造成工事規制区域:有/高度地区:有/日影制限:有/接道と段差:有/敷地面積最低限度:有/高さ限度:有/建築基準法第22条区域 横浜市建築基準条例第3条による制限有 建物建築・再建築の際、深基礎、基礎杭、擁壁の補修・再構築、外壁後退等の対策が必要となる場合があります 建物建築・再建築の際、防護壁の設置、高基礎、外壁後退等の対策が必要となる場合があります。 /
備考 相鉄いずみ野線「弥生台」駅徒歩9分。緑豊かで閑静な住宅地。4LDKのゆとりの間取り。広々20帖LDKは、対面式キッチン・リビングイン階段で、ご家族での会話が弾みます。

こだわりポイント

  • プロパンガス
  • 断熱に配慮された建物
  • 食器洗い洗浄乾燥機
  • 浴室換気乾燥暖房機
  • 子供の多い街に住む
  • 大人の二人暮らし
  • LDKは1階に
  • 2階建て住宅限定
  • リビングイン階段
  • LDK20帖以上
  • 主寝室 8帖以上
  • 対面キッチン
  • 小学校10分以内
  • コンビニ10分以内
  • 保育園10分以内
  • 幼稚園10分以内
  • 公園10分以内
  • フラット35利用可
  • カースペース2台
  • 道路広々(5m以上)

お気軽にどうぞ!

資料請求 現地見学 電話でお問い合わせ
0120-150-580

このエリアでお探しの方へ

建物完成しました! 今週末内覧会開催中!「立場」駅徒歩13分 新築一戸建て カースペース3台

ブルーライン「立場」駅 徒歩 13 分

いずみ野線「いずみ中央」駅 徒歩 19 分

横浜市泉区 和泉中央北1丁目

6,790万円

4LDK

値下げしました! 「弥生台」駅徒歩13分 新築一戸建て(20) ルーフバルコニー

いずみ野線「弥生台」駅 徒歩 13 分

いずみ野線「緑園都市」駅 徒歩 23 分

横浜市泉区 新橋町

4,180万円

4LDK

値下げしました! 「弥生台」駅徒歩13分 新築一戸建て(21) ルーフバルコニー

いずみ野線「弥生台」駅 徒歩 13 分

いずみ野線「緑園都市」駅 徒歩 23 分

横浜市泉区 新橋町

4,280万円

4LDK

今週末モデルハウス見学会開催中!「中田」駅徒歩15分 新築一戸建て 閑静な住宅地

ブルーライン「中田」駅 徒歩 15 分

いずみ野線「弥生台」駅 徒歩 23 分

横浜市泉区 中田東4丁目

4,280万円

3LDK

今週末モデルハウス見学会開催中!「弥生台」駅徒歩13分 新築一戸建て(18) 地下車庫

いずみ野線「弥生台」駅 徒歩 13 分

いずみ野線「緑園都市」駅 徒歩 23 分

横浜市泉区 新橋町

4,980万円

4LDK

今週末モデルハウス見学会開催中!「弥生台」駅徒歩13分 新築一戸建て(17) 地下車庫

いずみ野線「弥生台」駅 徒歩 13 分

いずみ野線「緑園都市」駅 徒歩 23 分

横浜市泉区 新橋町

4,980万円

4LDK

今週末モデルハウス見学会開催中!「弥生台」駅徒歩13分 新築一戸建て(2) カースペース2台

いずみ野線「弥生台」駅 徒歩 13 分

いずみ野線「緑園都市」駅 徒歩 18 分

横浜市泉区 新橋町

5,699万円

4LDK

今週末内覧会開催中!「高座渋谷」駅利用 中古一戸建て R8年7月リフォーム完了予定

江ノ島線「高座渋谷」駅 徒歩 20 分

いずみ野線「いずみ野」駅 バス停「中屋敷」まで 徒歩 8 分 バス利用 9分

横浜市泉区 上飯田町

2,799万円

3LDK

値下げしました!今週末内覧会開催中!「中田」駅徒歩13分 中古一戸建て 全室2面採光

ブルーライン「中田」駅 徒歩 13 分

東海道本線「戸塚」駅 バス停「西が岡三丁目」まで 徒歩 5 分 バス利用 14分

横浜市泉区 白百合3丁目

3,580万円

4LDK

今週末内覧会開催中!「緑園都市」駅利用 中古一戸建て 1LDK+2DK

いずみ野線「緑園都市」駅 徒歩 18 分

東海道本線「戸塚」駅 バス停「岡津橋」まで 徒歩 8 分 バス利用 18分

横浜市泉区 岡津町

4,199万円

3LDK

今週末モデルハウス見学会開催中!「いずみ野」駅徒歩9分 新築一戸建て 閑静な住宅地

いずみ野線「いずみ野」駅 徒歩 9 分

ブルーライン「立場」駅 バス停「泉警察署前」まで 徒歩 7 分 バス利用 5分

横浜市泉区 和泉町

4,980万円

3LDK

今週末モデルハウス見学会開催中!「中田」駅徒歩8分 新築一戸建て(C) 全4棟 閑静な住宅地

ブルーライン「中田」駅 徒歩 8 分

東海道本線「戸塚」駅 バス停「鳥が丘南」まで 徒歩 12 分 バス利用 8分

横浜市泉区 中田東2丁目

4,990万円

3LDK

お気軽にどうぞ!

資料請求 現地見学 電話でお問い合わせ
0120-150-580
来店予約