1. トップページ
  2. 今週末モデルハウス見学会開催中!「阪東橋」駅利用 新築一戸建て(3)WIC・リビング階段

今週末モデルハウス見学会開催中!「阪東橋」駅利用 新築一戸建て(3)WIC・リビング階段

価格
4,580万円
物件種別
新築一戸建て
間取り
3SLDK
所在地
横浜市南区 平楽
交通
  • ブルーライン「阪東橋」駅 徒歩 17 分
  • 根岸線「桜木町」駅 バス停「平楽中学校前」まで 徒歩 1 分 バス利用 24分
土地面積
142.95㎡
建物面積
87.87㎡
  • 前回情報更新日 2026.03.30
  • 次回情報更新予定日 2026.04.13
資料請求 現地見学 電話でお問い合わせ
0120-150-580
外観:第一種低層住居専用地域の良好な住環境が保たれたエリア。低層の一戸建てを中心とした街並みが整然と続き、採光や開放性に恵まれています。(本画像は外構一部をCGで作成しております)
外観:第一種低層住居専用地域の良好な住環境が保たれたエリア。低層の一戸建てを中心とした街並みが整然と続き、採光や開放性に恵まれています。(本画像は外構一部をCGで作成しております)
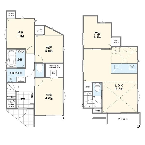
間取り:3号棟間取図
間取り:3号棟間取図
区画図
区画図
家族と過ごす時間を大切にしたい方にぴったりのゆとりある住空間です。窓からの日差しがリビングの隅々までしっかりと届きます。
家族と過ごす時間を大切にしたい方にぴったりのゆとりある住空間です。窓からの日差しがリビングの隅々までしっかりと届きます。
外観:第一種低層住居専用地域の良好な住環境が保たれたエリア。低層の一戸建てを中心とした街並みが整然と続き、採光や開放性に恵まれています。
外観:第一種低層住居専用地域の良好な住環境が保たれたエリア。低層の一戸建てを中心とした街並みが整然と続き、採光や開放性に恵まれています。
キッチン隣には、ストック食材や調理家電の収納に便利なパントリー収納付です。これだけのスペースがあれば、お水や非常食などの備蓄庫としても活躍しそうです。
キッチン隣には、ストック食材や調理家電の収納に便利なパントリー収納付です。これだけのスペースがあれば、お水や非常食などの備蓄庫としても活躍しそうです。
外観:第一種低層住居専用地域の良好な住環境が保たれたエリア。低層の一戸建てを中心とした街並みが整然と続き、採光や開放性に恵まれています。
外観:第一種低層住居専用地域の良好な住環境が保たれたエリア。低層の一戸建てを中心とした街並みが整然と続き、採光や開放性に恵まれています。
リビングを見渡せる対面式キッチンは、ご家族との会話もできて毎日のお料理が楽しくなります。リビングで遊ぶお子様にも目が届くので安心して家事が出来ますね。
リビングを見渡せる対面式キッチンは、ご家族との会話もできて毎日のお料理が楽しくなります。リビングで遊ぶお子様にも目が届くので安心して家事が出来ますね。
「どういう家具を置こうかな」とわくわくする。自分好みのこだわりのお部屋にしてオンリーワンの部屋でゆったりと寛ごう。
「どういう家具を置こうかな」とわくわくする。自分好みのこだわりのお部屋にしてオンリーワンの部屋でゆったりと寛ごう。
明るい光が差しこむ陽だまりの空間。お洗濯もあっという間に乾きそうです。
明るい光が差しこむ陽だまりの空間。お洗濯もあっという間に乾きそうです。
周辺環境:横浜市南区役所(横浜市南区役所まで800m)
周辺環境:横浜市南区役所(横浜市南区役所まで800m)
周辺環境:横浜市立大学附属市民総合医療センター(横浜市立大学附属市民総合医療センターまで1200m)
周辺環境:横浜市立大学附属市民総合医療センター(横浜市立大学附属市民総合医療センターまで1200m)
周辺環境:マックスバリュエクスプレス横浜吉野町店(マックスバリュエクスプレス横浜吉野町店まで1700m)
周辺環境:マックスバリュエクスプレス横浜吉野町店(マックスバリュエクスプレス横浜吉野町店まで1700m)
周辺環境:ブルーライン阪東橋駅(ブルーライン阪東橋駅まで1300m)
周辺環境:ブルーライン阪東橋駅(ブルーライン阪東橋駅まで1300m)
周辺環境:横浜れんげ幼稚園(横浜れんげ幼稚園まで2200m)
周辺環境:横浜れんげ幼稚園(横浜れんげ幼稚園まで2200m)
周辺環境:中村愛児園(中村愛児園まで250m)
周辺環境:中村愛児園(中村愛児園まで250m)
周辺環境:唐沢公園(唐沢公園まで150m)
周辺環境:唐沢公園(唐沢公園まで150m)
周辺環境:横浜市立石川小学校(横浜市立石川小学校まで500m)
周辺環境:横浜市立石川小学校(横浜市立石川小学校まで500m)
周辺環境:横浜市立平楽中学校(横浜市立平楽中学校まで110m)
周辺環境:横浜市立平楽中学校(横浜市立平楽中学校まで110m)

この物件のココがオススメ!

地下鉄BL「阪東橋」駅利用。ペアガラス他、設備充実。WIC・SIC完備。対面キッチン・リビングイン階段。納戸もお部屋としてご利用いただけます。

お気軽にどうぞ!

資料請求 現地見学 電話でお問い合わせ
0120-150-580

地図

申し訳ありません
こちらは会員限定機能です

会員登録で利用できる6つの便利機能

詳しく見る

お気軽にどうぞ!

資料請求 現地見学 電話でお問い合わせ
0120-150-580

頭金0万円・金利0.495%の場合

ボーナス時(年2回)お支払額

0

この物件の月々のお支払額

128,281

年収に対する返済比率

51

  • ※会員登録し、詳細情報を記入されますと、全ての物件で自動的に金額が表示され、大変便利です。
  • ※まだ会員登録をされていない方は、下記チェック欄をご記入ください。
  • ※上記計算は物件価格4,580万円+諸経費 8%込みの金額による結果となります。
  • ※返済金額はあくまでも目安です。

お客様の条件からシミュレーションするには?

会員登録
マイページから登録

金利

直接入力する

ボーナス払い(年2回)

返済年数

頭金

直接入力する

 万円(半角数字)

年収

 万円(半角数字)

約800m

役所

周辺環境:横浜市南区役所(横浜市南区役所まで800m)

役所

約800m

約1,200m

病院

周辺環境:横浜市立大学附属市民総合医療センター(横浜市立大学附属市民総合医療センターまで1200m)

病院

約1,200m

約1,700m

スーパー

周辺環境:マックスバリュエクスプレス横浜吉野町店(マックスバリュエクスプレス横浜吉野町店まで1700m)

スーパー

約1,700m

約1,300m

周辺環境:ブルーライン阪東橋駅(ブルーライン阪東橋駅まで1300m)

約1,300m

約2,200m

幼稚園・保育園

周辺環境:横浜れんげ幼稚園(横浜れんげ幼稚園まで2200m)

幼稚園・保育園

約2,200m

約250m

幼稚園・保育園

周辺環境:中村愛児園(中村愛児園まで250m)

幼稚園・保育園

約250m

約150m

公園

周辺環境:唐沢公園(唐沢公園まで150m)

公園

約150m

約500m

小学校

周辺環境:横浜市立石川小学校(横浜市立石川小学校まで500m)

小学校

約500m

約110m

中学校

周辺環境:横浜市立平楽中学校(横浜市立平楽中学校まで110m)

中学校

約110m

価格 4,580万円
物件種別 新築一戸建て
間取り 3SLDK
所在地 横浜市南区 平楽
交通
  • ブルーライン「阪東橋」駅 徒歩 17 分
  • 根岸線「桜木町」駅 バス停「平楽中学校前」まで 徒歩 1 分 バス利用 24分
土地面積 142.95㎡
建物面積 87.87㎡
学区 石川小学校、平楽中学校
用途地域 第一種低層住居専用
建ぺい率 60%
容積率 100%
地目 宅地
駐車場 有り カースペース
接道 東7.1m
権利 所有権
私道面積 無し
セットバック 無し
建物構造 木造
建物階数 2階
築年月 2026年03月
入居日 2026年04月
都市計画 市街化区域
取引態様 仲介
物件番号 48525-3
設備 公営水道、公共下水、駐車場1台、緑豊かな住宅地、閑静な住宅地、前道6m以上、始発駅、2沿線以上利用可、小学校徒歩10分以内、中学校徒歩10分以内、保育施設・幼稚園5分以内、公園5分以内、コンビニ5分以内、システムキッチン、ガス3口、食器洗い機付き、浄水器、I型キッチン、ユニットバス、追い焚き、浴室乾燥機、ウォシュレット、トイレ2ヶ所、浴室に窓、暖房便座、浴室暖房、バルコニー、南面バルコニー、2階建、LDK15畳以上、採光3面、全室2面採光、全室フローリング、リビング階段、クローゼット、収納、床下収納、下駄箱、全居室収納、シャンプドレッサー付き、モニタ付きインターフォン、複層ガラス、全居室複層ガラスか複層サッシ、24時間換気システム、建物10年保証、勾配天井
建築確認番号 第25KAK建確02400号
特記事項 不整形地 宅地造成工事規制区域 高度地区 準防火地域 日影制限 敷地面積最低限度 建物高さ10m以下 建築基準法第22条区域 不燃化推進地域 敷地延長約5割有 不整形地:有/宅地造成工事規制区域:有/高度地区:有/準防火地域:有/日影制限:有/敷地面積最低限度:有/高さ限度:有/建築基準法第22条区域 不燃化推進地域 敷地延長約5割有。 /
備考 地下鉄BL「阪東橋」駅利用。ペアガラス他、設備充実。WIC・SIC完備。対面キッチン・リビングイン階段。納戸もお部屋としてご利用いただけます。

こだわりポイント

  • 大通り沿い
  • 敷地延長(旗竿地)
  • 断熱に配慮された建物
  • 食器洗い洗浄乾燥機
  • 浴室換気乾燥暖房機
  • 急行電車でスピード通勤
  • 始発で座ってゆったり通勤
  • 2階建て住宅限定
  • シューズインクローク
  • ウォークインクローゼット
  • リビングイン階段
  • LDKは2階に
  • LDK15帖以上
  • 対面キッチン
  • 小学校10分以内
  • コンビニ10分以内
  • 保育園10分以内
  • 公園10分以内
  • 都市ガス
  • 道路広々(5m以上)

お気軽にどうぞ!

資料請求 現地見学 電話でお問い合わせ
0120-150-580

このエリアでお探しの方へ

横浜市西区西戸部町2丁目 新築一戸建 4380万円

京浜急行本線「戸部」駅 徒歩 8 分

根岸線「桜木町」駅 徒歩 15 分

横浜市西区 西戸部町2丁目

4,380万円

3LDK

値下げしました!今週末内覧会開催中!「上大岡」駅利用 新築一戸建て(3) 長期優良住宅

京浜急行本線「上大岡」駅 徒歩 26 分

京浜急行本線「弘明寺」駅 徒歩 26 分

横浜市南区 別所中里台

4,280万円

2SLDK

建物完成しました! 今週末内覧会開催中!BL「弘明寺」駅徒歩13分 新築一戸建て 全室2面採光

ブルーライン「弘明寺」駅 徒歩 13 分

京浜急行本線「弘明寺」駅 徒歩 24 分

横浜市南区 大岡1丁目

4,280万円

3LDK

値下げしました!今週末内覧会開催中!「上大岡」駅利用 新築一戸建て(4) 長期優良住宅

京浜急行本線「上大岡」駅 徒歩 26 分

京浜急行本線「弘明寺」駅 徒歩 26 分

横浜市南区 別所中里台

4,380万円

2SLDK

値下げしました!今週末内覧会開催中!「上大岡」駅利用 新築一戸建て(5) 長期優良住宅

京浜急行本線「上大岡」駅 徒歩 26 分

京浜急行本線「弘明寺」駅 徒歩 26 分

横浜市南区 別所中里台

4,580万円

3SLDK

今週末モデルハウス見学会開催中!京急「弘明寺」駅利用 新築一戸建て ロフト エコジョーズ

京浜急行本線「弘明寺」駅 バス停「こども医療センター」まで 徒歩 3 分 バス利用 8分

横須賀線「東戸塚」駅 バス停「こども医療センター」まで 徒歩 3 分 バス利用 16分

横浜市南区 六ツ川2丁目

4,580万円

4LDK

値下げしました! 京急「弘明寺」駅利用 新築一戸建て(1) 閑静な住宅地

京浜急行本線「弘明寺」駅 バス停「別所小学校入口」まで 徒歩 2 分 バス利用 5分

東海道本線「戸塚」駅 バス停「こども医療センター」まで 徒歩 10 分 バス利用 23分

横浜市南区 別所6丁目

4,680万円

3LDK

今週末モデルハウス見学会開催中!京急「弘明寺」駅利用 新築一戸建て 閑静な住宅地

京浜急行本線「弘明寺」駅 徒歩 23 分

横須賀線「東戸塚」駅 バス停「引越坂」まで 徒歩 3 分 バス利用 15分

横浜市南区 六ツ川2丁目

4,680万円

4LDK

横浜市西区西戸部町2丁目 新築一戸建 4180万円 1号棟

根岸線「桜木町」駅 徒歩 20 分

京浜急行本線「黄金町」駅 徒歩 14 分

横浜市西区 西戸部町2丁目

4,180万円

4LDK

横浜市西区西戸部町2丁目 新築一戸建 4180万円 2号棟

根岸線「桜木町」駅 徒歩 20 分

京浜急行本線「黄金町」駅 徒歩 14 分

横浜市西区 西戸部町2丁目

4,180万円

4LDK

今週末内覧会開催中!「桜木町」駅利用 中古一戸建て 食洗機・浴室乾燥機付

根岸線「桜木町」駅 バス停「増徳院前」まで 徒歩 3 分 バス利用 27分

ブルーライン「阪東橋」駅 徒歩 20 分

横浜市南区 平楽

4,190万円

4LDK

横浜市西区西戸部町2丁目 新築一戸建 4980万円

京浜急行本線「戸部」駅 徒歩 15 分

根岸線「桜木町」駅 徒歩 19 分

横浜市西区 西戸部町2丁目

4,980万円

3SLDK

お気軽にどうぞ!

資料請求 現地見学 電話でお問い合わせ
0120-150-580
来店予約