1. トップページ
  2. 建物完成しました! 今週末内覧会開催中!「戸塚」駅利用 新築一戸建て カースペース2台

建物完成しました! 今週末内覧会開催中!「戸塚」駅利用 新築一戸建て カースペース2台

価格
5,580万円
物件種別
新築一戸建て
間取り
4LDK
所在地
横浜市戸塚区 戸塚町
交通
  • 東海道本線「戸塚」駅 徒歩 19 分
  • 根岸線「大船」駅 バス停「皇谷台団地」まで 徒歩 5 分 バス利用 18分
土地面積
145.86㎡
建物面積
97.70㎡
  • 前回情報更新日 2025.11.06
  • 次回情報更新予定日 2025.11.20
資料請求 現地見学 電話でお問い合わせ
0120-150-580
外観:柔らかな風と豊かな緑に包まれた落ち着きある閑静な住宅街に、4棟の邸宅が誕生です。(駐車スペースの土間コンクリートはCGです。実際の現地には施工されておりません)
外観:柔らかな風と豊かな緑に包まれた落ち着きある閑静な住宅街に、4棟の邸宅が誕生です。(駐車スペースの土間コンクリートはCGです。実際の現地には施工されておりません)
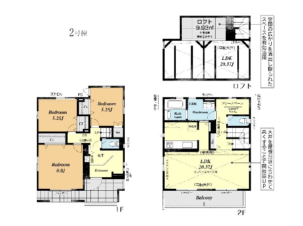
間取図
間取図
区画図
区画図
南からの明るい光が差しこむ陽だまりの空間。お洗濯もあっという間に乾きそうです。
南からの明るい光が差しこむ陽だまりの空間。お洗濯もあっという間に乾きそうです。
外観:四季を通じて自然と触れ合えるスポットが周辺には盛りだくさん!お散歩やジョギング、週末のご家族でのおでかけに最適です。(駐車スペースの土間コンクリートはCGです。実際の現地には施工されておりません)
外観:四季を通じて自然と触れ合えるスポットが周辺には盛りだくさん!お散歩やジョギング、週末のご家族でのおでかけに最適です。(駐車スペースの土間コンクリートはCGです。実際の現地には施工されておりません)
家族と過ごす時間を大切にしたい方にぴったりのゆとりある住空間です。(本画像はCGで作成しており、実際に現地に家具はおかれておりません。また価格に家具は含まれておりません。)
家族と過ごす時間を大切にしたい方にぴったりのゆとりある住空間です。(本画像はCGで作成しており、実際に現地に家具はおかれておりません。また価格に家具は含まれておりません。)
家族だんらんのスペースとなるリビング。窓が多い設計なので色々な角度から光が取り込めます。明るいリビングで新しい生活を。
家族だんらんのスペースとなるリビング。窓が多い設計なので色々な角度から光が取り込めます。明るいリビングで新しい生活を。
リビングを見渡せる対面式キッチンは、ご家族との会話もできて毎日のお料理が楽しくなります。リビングで遊ぶお子様にも目が届くので安心して家事が出来ますね。
リビングを見渡せる対面式キッチンは、ご家族との会話もできて毎日のお料理が楽しくなります。リビングで遊ぶお子様にも目が届くので安心して家事が出来ますね。
新しいキッチンは食事の支度が捗ります。お手伝いをしてくれるお子様と並びながら準備や片付けが出来るキッチンは、ご家族のコミュニケーションを育む場として活躍します。何気ない時間ですが、大切にしたいですね。
新しいキッチンは食事の支度が捗ります。お手伝いをしてくれるお子様と並びながら準備や片付けが出来るキッチンは、ご家族のコミュニケーションを育む場として活躍します。何気ない時間ですが、大切にしたいですね。
ゆとりの洗面スペースで朝の身支度も快適スムーズに。三面鏡で髪のセットやお化粧もストレスなくこなせ、朝から気分良く通勤通学に向かえそうですね!鏡の裏にはたっぷりと収納スペースを標準装備!
ゆとりの洗面スペースで朝の身支度も快適スムーズに。三面鏡で髪のセットやお化粧もストレスなくこなせ、朝から気分良く通勤通学に向かえそうですね!鏡の裏にはたっぷりと収納スペースを標準装備!
タオルや洗剤などしまうものが多い洗面室は、意外に収納場所を確保するのが難しいですよね。そこで洗面所に棚を備え付けました!すっきりと片付くのでうれしいですね。
タオルや洗剤などしまうものが多い洗面室は、意外に収納場所を確保するのが難しいですよね。そこで洗面所に棚を備え付けました!すっきりと片付くのでうれしいですね。
ユニットバスはゆったりとくつろげる1坪タイプ。足までしっかりと伸ばせる浴槽は、心身ともにしっかりと疲れを癒してくれます。お子様と一緒の入浴でも充分な広さです。
ユニットバスはゆったりとくつろげる1坪タイプ。足までしっかりと伸ばせる浴槽は、心身ともにしっかりと疲れを癒してくれます。お子様と一緒の入浴でも充分な広さです。
キッチン隣には、ストック食材や調理家電の収納に便利なパントリー収納付です。
キッチン隣には、ストック食材や調理家電の収納に便利なパントリー収納付です。
ウォークインクローゼットのある住まいで収納上手な生活を実現。衣類だけでなく、箱物や思い出の品もたっぷり収納できます。
ウォークインクローゼットのある住まいで収納上手な生活を実現。衣類だけでなく、箱物や思い出の品もたっぷり収納できます。
光を取り込みやすい2面採光の居室は日当たり良好です。クローゼットの完備で収納スペースも十分。初めてのお子様にとっての「自分の部屋」。学習デスクやベッドの配置もラクラクです。
光を取り込みやすい2面採光の居室は日当たり良好です。クローゼットの完備で収納スペースも十分。初めてのお子様にとっての「自分の部屋」。学習デスクやベッドの配置もラクラクです。
全居室には大型の収納クローゼットを完備。普段使いのお洋服や小物はもちろん、季節物のお洋服などもしっかりと整理整頓出来る。居室空間を隅々まで使えるのが嬉しい。
全居室には大型の収納クローゼットを完備。普段使いのお洋服や小物はもちろん、季節物のお洋服などもしっかりと整理整頓出来る。居室空間を隅々まで使えるのが嬉しい。
光を沢山取り込める大きな窓。日差しを長時間受ける事が出来る暖かいお部屋です。もちろんペアガラスなので、遮音性にも優れ、結露も発生しにくい構造。サッシ周りのカビが発生しにくくなります。
光を沢山取り込める大きな窓。日差しを長時間受ける事が出来る暖かいお部屋です。もちろんペアガラスなので、遮音性にも優れ、結露も発生しにくい構造。サッシ周りのカビが発生しにくくなります。
光を取り込みやすい2面採光の居室は日当たり良好です。クローゼットの完備で収納スペースも十分。(本画像はCGで作成しており、実際に現地に家具はおかれておりません。また価格に家具は含まれておりません。)
光を取り込みやすい2面採光の居室は日当たり良好です。クローゼットの完備で収納スペースも十分。(本画像はCGで作成しており、実際に現地に家具はおかれておりません。また価格に家具は含まれておりません。)
収納力が豊富な大型クローゼット。普段着やスーツはもちろんのこと、コート類などもしっかり掛けられます。奥行きもあるので、収納ボックスもそのまましまえて部屋がスッキリしますね。
収納力が豊富な大型クローゼット。普段着やスーツはもちろんのこと、コート類などもしっかり掛けられます。奥行きもあるので、収納ボックスもそのまましまえて部屋がスッキリしますね。
周辺環境:横浜市立戸塚小学校(横浜市立戸塚小学校まで1000m)
周辺環境:横浜市立戸塚小学校(横浜市立戸塚小学校まで1000m)
周辺環境:横浜市立戸塚中学校(横浜市立戸塚中学校まで2000m)
周辺環境:横浜市立戸塚中学校(横浜市立戸塚中学校まで2000m)
周辺環境:戸塚町南第三公園(戸塚町南第三公園まで600m)
周辺環境:戸塚町南第三公園(戸塚町南第三公園まで600m)
周辺環境:戸塚第二幼稚園(戸塚第二幼稚園まで450m)
周辺環境:戸塚第二幼稚園(戸塚第二幼稚園まで450m)
周辺環境:ライフ戸塚汲沢店(ライフ戸塚汲沢店まで1200m)
周辺環境:ライフ戸塚汲沢店(ライフ戸塚汲沢店まで1200m)
周辺環境:戸塚公園(戸塚公園まで750m)
周辺環境:戸塚公園(戸塚公園まで750m)
周辺環境:芙蓉保育園(芙蓉保育園まで750m)
周辺環境:芙蓉保育園(芙蓉保育園まで750m)
周辺環境:業務スーパー石黒戸塚店(業務スーパー石黒戸塚店まで1200m)
周辺環境:業務スーパー石黒戸塚店(業務スーパー石黒戸塚店まで1200m)
周辺環境:内科小児科むかひら医院(内科小児科むかひら医院まで1700m)
周辺環境:内科小児科むかひら医院(内科小児科むかひら医院まで1700m)

この物件のココがオススメ!

JR東海道線「戸塚」駅利用。閑静な住宅地。4LDKのゆとりの間取り。3面採光で明るく開放感のある20帖LDKは、対面キッチン・リビング階段で、ご家族での会話が弾みます。

お気軽にどうぞ!

資料請求 現地見学 電話でお問い合わせ
0120-150-580

地図

申し訳ありません
こちらは会員限定機能です

会員登録で利用できる6つの便利機能

詳しく見る

お気軽にどうぞ!

資料請求 現地見学 電話でお問い合わせ
0120-150-580

頭金0万円・金利0.495%の場合

ボーナス時(年2回)お支払額

0

この物件の月々のお支払額

156,293

年収に対する返済比率

63

  • ※会員登録し、詳細情報を記入されますと、全ての物件で自動的に金額が表示され、大変便利です。
  • ※まだ会員登録をされていない方は、下記チェック欄をご記入ください。
  • ※上記計算は物件価格5,580万円+諸経費 8%込みの金額による結果となります。
  • ※返済金額はあくまでも目安です。

お客様の条件からシミュレーションするには?

会員登録
マイページから登録

金利

直接入力する

ボーナス払い(年2回)

返済年数

頭金

直接入力する

 万円(半角数字)

年収

 万円(半角数字)

約1,000m

小学校

周辺環境:横浜市立戸塚小学校(横浜市立戸塚小学校まで1000m)

小学校

約1,000m

約2,000m

中学校

周辺環境:横浜市立戸塚中学校(横浜市立戸塚中学校まで2000m)

中学校

約2,000m

約600m

公園

周辺環境:戸塚町南第三公園(戸塚町南第三公園まで600m)

公園

約600m

約450m

幼稚園・保育園

周辺環境:戸塚第二幼稚園(戸塚第二幼稚園まで450m)

幼稚園・保育園

約450m

約1,200m

スーパー

周辺環境:ライフ戸塚汲沢店(ライフ戸塚汲沢店まで1200m)

スーパー

約1,200m

約750m

公園

周辺環境:戸塚公園(戸塚公園まで750m)

公園

約750m

約750m

幼稚園・保育園

周辺環境:芙蓉保育園(芙蓉保育園まで750m)

幼稚園・保育園

約750m

約1,200m

スーパー

周辺環境:業務スーパー石黒戸塚店(業務スーパー石黒戸塚店まで1200m)

スーパー

約1,200m

約1,700m

病院

周辺環境:内科小児科むかひら医院(内科小児科むかひら医院まで1700m)

病院

約1,700m

価格 5,580万円
物件種別 新築一戸建て
間取り 4LDK
所在地 横浜市戸塚区 戸塚町
交通
  • 東海道本線「戸塚」駅 徒歩 19 分
  • 根岸線「大船」駅 バス停「皇谷台団地」まで 徒歩 5 分 バス利用 18分
土地面積 145.86㎡
建物面積 97.70㎡
学区 戸塚小学校、戸塚中学校
用途地域 第二種中高層住居専用
建ぺい率 60%
容積率 150%
地目 宅地
駐車場 有り カースペース
接道 北5.5m
権利 所有権
私道面積 有 5.53㎡ 1/4
セットバック 無し
建物構造 木造
建物階数 2階
築年月 2025年10月
入居日 2025年11月
都市計画 市街化区域
取引態様 仲介
物件番号 47743
設備 公営水道、公共下水、駐車場2台以上、緑豊かな住宅地、閑静な住宅地、大型タウン内、市街地が近い、隣家との間隔が大きい、周辺交通量少なめ、2沿線以上利用可、公園5分以内、コンビニ5分以内、システムキッチン、ガス3口、I型キッチン、ユニットバス、追い焚き、ウォシュレット、トイレ2ヶ所、浴室に窓、暖房便座、バルコニー、南面バルコニー、2階建、LDK20畳以上、採光2面、採光3面、全室2面採光、フローリング、全室フローリング、リビング階段、クローゼット、収納、床下収納、下駄箱、屋根裏収納、全居室収納、シャンプドレッサー付き、モニタ付きインターフォン、インターフォン、通風良好、陽当り良好、24時間換気システム、建物10年保証
建築確認番号 -
特記事項 不整形地 宅地造成工事規制区域 高度地区 準防火地域 日影制限 建築基準法第22条区域 横浜市建築基準条例第3条による制限有 建物建築・再建築の際、深基礎、基礎杭、擁壁の補修・再構築、外壁後退等の対策が必要となる場合があります 敷地面積に別途私道持分155平米×1/6、1.27平米有 不整形地:有/宅地造成工事規制区域:有/高度地区:有/準防火地域:有/日影制限:有/建築基準法第22条区域 横浜市建築基準条例第3条による制限有 建物建築・再建築の際、深基礎、基礎杭、擁壁の補修・再構築、外壁後退等の対策が必要となる場合があります 敷地面積に別途私道持分155平米×1/6、1.27平米有。 /
備考 JR東海道線「戸塚」駅利用。閑静な住宅地。4LDKのゆとりの間取り。3面採光で明るく開放感のある20帖LDKは、対面キッチン・リビング階段で、ご家族での会話が弾みます。

こだわりポイント

  • 急行電車でスピード通勤
  • 大人の二人暮らし
  • LDKは1階に
  • 2階建て住宅限定
  • ウォークインクローゼット
  • リビングイン階段
  • LDK20帖以上
  • 対面キッチン
  • ロフト・小屋裏収納
  • 大規模公園10分以内
  • コンビニ10分以内
  • 保育園10分以内
  • 幼稚園10分以内
  • 公園10分以内
  • 都市ガス
  • カースペース2台
  • 道路広々(5m以上)

お気軽にどうぞ!

資料請求 現地見学 電話でお問い合わせ
0120-150-580

このエリアでお探しの方へ

値下げしました!今週末内覧会開催中!「港南台」駅利用 新築一戸建て(2-1) カースペース3台

根岸線「港南台」駅 バス停「庄戸一丁目」まで 徒歩 3 分 バス利用 22分

湘南モノレール「大船」駅 バス停「みどりが丘南」まで 徒歩 10 分 バス利用 22分

横浜市栄区 庄戸1丁目

5,299万円

4LDK

今週末モデルハウス見学会開催中!「大船」駅利用 新築一戸建て(5)ビルトイン車庫

東海道本線「大船」駅 徒歩 17 分

根岸線「本郷台」駅 徒歩 26 分

横浜市栄区 笠間4丁目

5,380万円

2LDK+2S

今週末モデルハウス見学会開催中!「大船」駅利用 新築一戸建て(2)パントリー完備

東海道本線「大船」駅 徒歩 17 分

根岸線「本郷台」駅 徒歩 26 分

横浜市栄区 笠間4丁目

5,480万円

3SLDK

今週末モデルハウス見学会開催中!「大船」駅利用 新築一戸建て(6)ビルトイン車庫

東海道本線「大船」駅 徒歩 17 分

根岸線「本郷台」駅 徒歩 26 分

横浜市栄区 笠間4丁目

5,480万円

2LDK+2S

今週末モデルハウス見学会開催中!「大船」駅利用 新築一戸建て(4)ルーフバルコニー付き

東海道本線「大船」駅 徒歩 17 分

根岸線「本郷台」駅 徒歩 26 分

横浜市栄区 笠間4丁目

5,580万円

1LDK+2S

値下げしました!今週末内覧会開催中!「港南台」駅利用 新築一戸建て SIC・WIC完備

根岸線「港南台」駅 バス停「光明寺」まで 徒歩 1 分 バス利用 19分

湘南モノレール「大船」駅 バス停「みどりが丘南」まで 徒歩 8 分 バス利用 26分

横浜市栄区 庄戸1丁目

5,580万円

4LDK

建物完成しました! 今週末内覧会開催中!「港南台」駅利用 新築一戸建て リビング床暖房付き WIC完

根岸線「港南台」駅 バス停「矢沢」まで 徒歩 4 分 バス利用 18分

湘南モノレール「大船」駅 バス停「矢沢」まで 徒歩 3 分 バス利用 19分

横浜市栄区 桂台南1丁目

5,599万円

4LDK

今週末モデルハウス見学会開催中!「本郷台」駅徒歩9分 新築一戸建て(2) 南側道路接道 対面キッチン

根岸線「本郷台」駅 徒歩 9 分

東海道本線「大船」駅 バス停「天神橋」まで 徒歩 1 分 バス利用 11分

横浜市栄区 桂町

5,780万円

2SLDK

今週末モデルハウス見学会開催中!「踊場」駅徒歩13分 新築一戸建て(2) カースペース2台

ブルーライン「踊場」駅 徒歩 13 分

東海道本線「戸塚」駅 バス停「踊場」まで 徒歩 12 分 バス利用 5分

横浜市戸塚区 汲沢6丁目

5,280万円

3LDK

今週末モデルハウス見学会開催中!「戸塚」駅利用 新築一戸建て 北西角地 カースペース2台

東海道本線「戸塚」駅 徒歩 27 分

根岸線「本郷台」駅 バス停「下倉田」まで 徒歩 9 分 バス利用 13分

横浜市戸塚区 下倉田町

5,370万円

5LDK

今週末モデルハウス見学会開催中!「東戸塚」駅利用 新築一戸建て(2) カースペース2台

横須賀線「東戸塚」駅 徒歩 17 分

東海道本線「横浜」駅 バス停「坂下口」まで 徒歩 3 分 バス利用 31分

横浜市戸塚区 平戸町

5,480万円

4LDK

今週末モデルハウス見学会開催中!「東戸塚」駅利用 新築一戸建て(1) カースペース3台

横須賀線「東戸塚」駅 徒歩 17 分

東海道本線「横浜」駅 バス停「坂下口」まで 徒歩 3 分 バス利用 31分

横浜市戸塚区 平戸町

5,580万円

3LDK

お気軽にどうぞ!

資料請求 現地見学 電話でお問い合わせ
0120-150-580
来店予約