1. トップページ
  2. 値下げしました! 「菊名」駅利用 新築一戸建て(15) 閑静な住環境

値下げしました! 「菊名」駅利用 新築一戸建て(15) 閑静な住環境

価格
6,280万円
物件種別
新築一戸建て
間取り
4LDK
所在地
横浜市鶴見区 北寺尾6丁目
交通
  • 東急東横線「菊名」駅 徒歩 20 分
  • 鶴見線「鶴見」駅 バス停「北寺尾七丁目」まで 徒歩 4 分 バス利用 12分
土地面積
118.49㎡
建物面積
103.50㎡
  • 前回情報更新日 2026.04.16
  • 次回情報更新予定日 2026.04.30
資料請求 現地見学 電話でお問い合わせ
0120-150-580
外観:第一種低層住居専用地域の良好な住環境が保たれたエリア。低層の一戸建てを中心とした街並みが整然と続き、周辺は高い建物が建っていないので、採光や開放性に恵まれ、空が広く緑の多い閑静な趣を感じる環境です。
外観:第一種低層住居専用地域の良好な住環境が保たれたエリア。低層の一戸建てを中心とした街並みが整然と続き、周辺は高い建物が建っていないので、採光や開放性に恵まれ、空が広く緑の多い閑静な趣を感じる環境です。
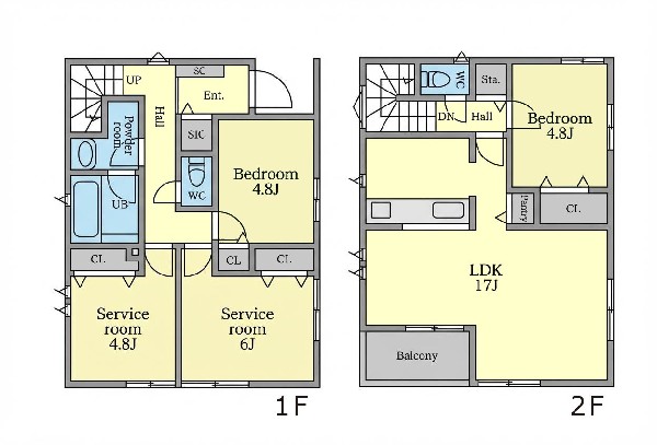
間取り:間取図15号棟
間取り:間取図15号棟
区画図
区画図
南に大きく面した掃出し窓から光が降りそそぐ開放的なリビング。大きな窓からは、太陽のやわらかな光はもちろん、年中爽やかな風が吹き抜けます。自然の恵みが、快適で心地の良い空間を演出してくれますね。
南に大きく面した掃出し窓から光が降りそそぐ開放的なリビング。大きな窓からは、太陽のやわらかな光はもちろん、年中爽やかな風が吹き抜けます。自然の恵みが、快適で心地の良い空間を演出してくれますね。
外観:一種低層住居専用地域は殆どの住宅が2階建て。それぞれの敷地にしっかり日当たりを確保できるよう設計された住宅専用地域です。閑静な住宅街で住環境を重視する方にオススメできる立地です。
外観:一種低層住居専用地域は殆どの住宅が2階建て。それぞれの敷地にしっかり日当たりを確保できるよう設計された住宅専用地域です。閑静な住宅街で住環境を重視する方にオススメできる立地です。
大切なご家族が集まるからこそLDKはこだわりたいですよね!休日はおひさまの光をたっぷりと取りこめるリビングでゆったりと過ごしませんか?子供たちが元気に笑いながら走り回っている姿が目に浮かぶ空間です。
大切なご家族が集まるからこそLDKはこだわりたいですよね!休日はおひさまの光をたっぷりと取りこめるリビングでゆったりと過ごしませんか?子供たちが元気に笑いながら走り回っている姿が目に浮かぶ空間です。
外観:閑静な住宅地で子育て家族にピッタリ。毎日のお散歩も快適な緑に恵まれたエリアで、自然に包まれた穏やかな暮らしを実現するための、ゆとりある住環境が整っています。緑の潤いを感じながらホッと生活できそう。
外観:閑静な住宅地で子育て家族にピッタリ。毎日のお散歩も快適な緑に恵まれたエリアで、自然に包まれた穏やかな暮らしを実現するための、ゆとりある住環境が整っています。緑の潤いを感じながらホッと生活できそう。
リビングで遊ぶお子様を見守りながらお料理が出来る対面式カウンターキッチンは、料理をしながらでもご家族との会話を楽しめます!大切なご家族をいつも身近に感じられ、毎日のお料理も楽しくなりますね!
リビングで遊ぶお子様を見守りながらお料理が出来る対面式カウンターキッチンは、料理をしながらでもご家族との会話を楽しめます!大切なご家族をいつも身近に感じられ、毎日のお料理も楽しくなりますね!
外観:散らかりがちな玄関もスッキリと保てる玄関収納は、家の中に入る時一番最初に目に付く場所だからこだわりたいですよね!落ち着いた雰囲気の色目が、お部屋の雰囲気をそのまま表している家の顔です。
外観:散らかりがちな玄関もスッキリと保てる玄関収納は、家の中に入る時一番最初に目に付く場所だからこだわりたいですよね!落ち着いた雰囲気の色目が、お部屋の雰囲気をそのまま表している家の顔です。
毎日使うキッチン周りが綺麗で清潔に保たれていると、お料理を作るのも楽しくなりますよね。機能性とデザイン性を持たせたキッチンで気持ちよくお料理が出来そうです。
毎日使うキッチン周りが綺麗で清潔に保たれていると、お料理を作るのも楽しくなりますよね。機能性とデザイン性を持たせたキッチンで気持ちよくお料理が出来そうです。
外観:玄関収納をホールに設置し、タタキを広くしています。のびのびと身支度ができる玄関です。ベビーカーを置いたり、将来的に靴を履くための椅子を置いたりもできそうです。
外観:玄関収納をホールに設置し、タタキを広くしています。のびのびと身支度ができる玄関です。ベビーカーを置いたり、将来的に靴を履くための椅子を置いたりもできそうです。
背面にカップボードが備え付けされています。システムキッチンと一体感あるカラーで見た目もgood。たまにしか使わない調理家電の収納に重宝します。
背面にカップボードが備え付けされています。システムキッチンと一体感あるカラーで見た目もgood。たまにしか使わない調理家電の収納に重宝します。
ゆとりの洗面スペースで朝の身支度も快適スムーズに。3面鏡で髪のセットやお化粧もストレスなくこなせ、朝から気分良く通勤通学に向かえそうですね!鏡の裏にはたっぷりと収納スペースを標準装備!
ゆとりの洗面スペースで朝の身支度も快適スムーズに。3面鏡で髪のセットやお化粧もストレスなくこなせ、朝から気分良く通勤通学に向かえそうですね!鏡の裏にはたっぷりと収納スペースを標準装備!
一日の疲れを癒す場として、ゆったりと足を伸ばしてくつろげる綺麗で清潔感のある色味の浴室。気持ちの良い光と爽やかな風をたっぷりと取りこめる開閉式の窓を設置。浴室乾燥機も標準装備です。
一日の疲れを癒す場として、ゆったりと足を伸ばしてくつろげる綺麗で清潔感のある色味の浴室。気持ちの良い光と爽やかな風をたっぷりと取りこめる開閉式の窓を設置。浴室乾燥機も標準装備です。
ご家族だんらんのスペースとなるリビング。家具の配置がしやすい広さを確保しつつ、窓が多い設計は色々な角度から光が取り込めるこだわりの間取りです。明るいリビングで寛ぐ新しい生活をスタートさせてみませんか。
ご家族だんらんのスペースとなるリビング。家具の配置がしやすい広さを確保しつつ、窓が多い設計は色々な角度から光が取り込めるこだわりの間取りです。明るいリビングで寛ぐ新しい生活をスタートさせてみませんか。
全居室に収納クローゼットを完備!普段使いのお洋服や小物はもちろん、季節物のお洋服などもしっかりと整理整頓おしまい頂けます。居室空間をより広く隅々までお使いいただけますね。
全居室に収納クローゼットを完備!普段使いのお洋服や小物はもちろん、季節物のお洋服などもしっかりと整理整頓おしまい頂けます。居室空間をより広く隅々までお使いいただけますね。
全居室に収納クローゼットを完備!普段使いのお洋服や小物はもちろん、季節物のお洋服などもしっかりと整理整頓おしまい頂けます。居室空間をより広く隅々までお使いいただけますね。
全居室に収納クローゼットを完備!普段使いのお洋服や小物はもちろん、季節物のお洋服などもしっかりと整理整頓おしまい頂けます。居室空間をより広く隅々までお使いいただけますね。
光が取り込みやすい2面採光の居室。日当たり良好です。しっかりとした大きさのクローゼットを完備し、収納スペースも十分。初めてのお子様にとっての「自分の部屋」。学習デスクやベッドの配置もラクラクです。
光が取り込みやすい2面採光の居室。日当たり良好です。しっかりとした大きさのクローゼットを完備し、収納スペースも十分。初めてのお子様にとっての「自分の部屋」。学習デスクやベッドの配置もラクラクです。
光が取り込みやすい2面採光の居室。日当たり良好です。しっかりとした大きさのクローゼットを完備し、収納スペースも十分。初めてのお子様にとっての「自分の部屋」。学習デスクやベッドの配置もラクラクです。
光が取り込みやすい2面採光の居室。日当たり良好です。しっかりとした大きさのクローゼットを完備し、収納スペースも十分。初めてのお子様にとっての「自分の部屋」。学習デスクやベッドの配置もラクラクです。
南に大きく面したバルコニーは太陽の温かな温もりをめいいっぱい受け止めてくれます。太陽の光と爽やかな風を受けたお洗濯物はあっという間に乾き、取りこむ時には太陽の匂いを感じられそうですね。
南に大きく面したバルコニーは太陽の温かな温もりをめいいっぱい受け止めてくれます。太陽の光と爽やかな風を受けたお洗濯物はあっという間に乾き、取りこむ時には太陽の匂いを感じられそうですね。
周辺環境:サミットストア菊名店(サミットストア菊名店まで1500m)
周辺環境:サミットストア菊名店(サミットストア菊名店まで1500m)
周辺環境:トレッサ横浜(トレッサ横浜まで1700m)
周辺環境:トレッサ横浜(トレッサ横浜まで1700m)
周辺環境:北寺尾第二公園(北寺尾第二公園まで350m)
周辺環境:北寺尾第二公園(北寺尾第二公園まで350m)
周辺環境:北寺尾渋沢公園(北寺尾渋沢公園まで350m)
周辺環境:北寺尾渋沢公園(北寺尾渋沢公園まで350m)
周辺環境:横浜市立馬場小学校(横浜市立馬場小学校まで350m)
周辺環境:横浜市立馬場小学校(横浜市立馬場小学校まで350m)
周辺環境:横浜市立上の宮中学校(横浜市立上の宮中学校まで850m)
周辺環境:横浜市立上の宮中学校(横浜市立上の宮中学校まで850m)
周辺環境:菊名記念病院(菊名記念病院まで1200m)
周辺環境:菊名記念病院(菊名記念病院まで1200m)
周辺環境:すみれが丘幼稚園(すみれが丘幼稚園まで450m)
周辺環境:すみれが丘幼稚園(すみれが丘幼稚園まで450m)
周辺環境:馬場保育園(馬場保育園まで1200m)
周辺環境:馬場保育園(馬場保育園まで1200m)

この物件のココがオススメ!

複数路線が乗り入れる「菊名」駅利用。緑豊かで、閑静な住環境。LDK床暖房、ペアガラス、浴室暖房乾燥機他設便充実のお住まいです。

お気軽にどうぞ!

資料請求 現地見学 電話でお問い合わせ
0120-150-580

地図

申し訳ありません
こちらは会員限定機能です

会員登録で利用できる6つの便利機能

詳しく見る

お気軽にどうぞ!

資料請求 現地見学 電話でお問い合わせ
0120-150-580

頭金0万円・金利0.495%の場合

ボーナス時(年2回)お支払額

0

この物件の月々のお支払額

175,900

年収に対する返済比率

70

  • ※会員登録し、詳細情報を記入されますと、全ての物件で自動的に金額が表示され、大変便利です。
  • ※まだ会員登録をされていない方は、下記チェック欄をご記入ください。
  • ※上記計算は物件価格6,280万円+諸経費 8%込みの金額による結果となります。
  • ※返済金額はあくまでも目安です。

お客様の条件からシミュレーションするには?

会員登録
マイページから登録

金利

直接入力する

ボーナス払い(年2回)

返済年数

頭金

直接入力する

 万円(半角数字)

年収

 万円(半角数字)

約1,500m

スーパー

周辺環境:サミットストア菊名店(サミットストア菊名店まで1500m)

スーパー

約1,500m

約1,700m

ショッピングセンター

周辺環境:トレッサ横浜(トレッサ横浜まで1700m)

ショッピングセンター

約1,700m

約350m

公園

周辺環境:北寺尾第二公園(北寺尾第二公園まで350m)

公園

約350m

約350m

公園

周辺環境:北寺尾渋沢公園(北寺尾渋沢公園まで350m)

公園

約350m

約350m

小学校

周辺環境:横浜市立馬場小学校(横浜市立馬場小学校まで350m)

小学校

約350m

約850m

中学校

周辺環境:横浜市立上の宮中学校(横浜市立上の宮中学校まで850m)

中学校

約850m

約1,200m

病院

周辺環境:菊名記念病院(菊名記念病院まで1200m)

病院

約1,200m

約450m

幼稚園・保育園

周辺環境:すみれが丘幼稚園(すみれが丘幼稚園まで450m)

幼稚園・保育園

約450m

約1,200m

幼稚園・保育園

周辺環境:馬場保育園(馬場保育園まで1200m)

幼稚園・保育園

約1,200m

価格 6,280万円
物件種別 新築一戸建て
間取り 4LDK
所在地 横浜市鶴見区 北寺尾6丁目
交通
  • 東急東横線「菊名」駅 徒歩 20 分
  • 鶴見線「鶴見」駅 バス停「北寺尾七丁目」まで 徒歩 4 分 バス利用 12分
土地面積 118.49㎡
建物面積 103.50㎡
学区 馬場小学校、上の宮中学校
用途地域 第一種低層住居専用
建ぺい率 50%
容積率 100%
地目 宅地
駐車場 有り カースペース
接道 北5.5m、西5.5m
権利 所有権
私道面積 有 497.77㎡ 1/19
セットバック 無し
建物構造 木造
建物階数 2階
築年月 2026年01月
入居日 即時
都市計画 市街化区域
取引態様 仲介
物件番号 47382-15
設備 公営水道、公共下水、駐車場1台、緑豊かな住宅地、閑静な住宅地、始発駅、2沿線以上利用可、小学校徒歩10分以内、保育施設・幼稚園5分以内、公園5分以内、システムキッチン、食器洗い機付き、I型キッチン、ユニットバス、浴室乾燥機、ウォシュレット、オートバス付き、トイレ2ヶ所、浴室に窓、バルコニー、2階建、LDK18畳以上、採光2面、フローリング、リビング階段、クローゼット、収納、下駄箱、全居室収納、シャンプドレッサー付き、フラット35Sに対応、モニタ付きインターフォン、複層ガラス、24時間換気システム、建物10年保証
建築確認番号 第2025SBC-確00673Y号
特記事項 宅地造成工事規制区域 高度地区 準防火地域 日影制限 敷地内段差 敷地面積最低限度 建物高さ10m以下 傾斜地含 横浜市建築基準条例第3条による制限有 ※建物建築・再建築の際、深基礎、基礎杭、擁壁の補修・再構築、外壁後退等の対策が必要となる場合があります 建物建築・再建築の際、防護壁の設置、高基礎、外壁後退等の対策が必要となる場合があります 排水用地持分38.07平米×1/19有 その他持分30.4平米×1/19有 隅切有 不整形地 傾斜地含 横浜市建築基準条例第3条による制限有 ※建物建築・再建築の際、深基礎、基礎杭、擁壁の補修・再構築、外壁後退等の対策が必要となる場合があります 建物建築・再建築の際、防護壁の設置、高基礎、外壁後退等の対策が必要となる場合があります 排水用地持分38.07平米×1/19有 その他持分30.4平米×1/19有/不整形
備考 複数路線が乗り入れる「菊名」駅利用。緑豊かで、閑静な住環境。LDK床暖房、ペアガラス、浴室暖房乾燥機他設便充実のお住まいです。

こだわりポイント

  • 前面道路急坂
  • 建売だけど一味違うこだわり建物
  • 耐震に配慮された建物
  • 床暖房
  • 食器洗い洗浄乾燥機
  • 浴室換気乾燥暖房機
  • 運転ラクラク生活
  • 2沿線利用であんしん通勤
  • LDKは1階に
  • 2階建て住宅限定
  • LDK18帖以上
  • 対面キッチン
  • 小学校10分以内
  • コンビニ10分以内
  • 保育園10分以内
  • 幼稚園10分以内
  • 公園10分以内
  • 都市ガス
  • 道路広々(5m以上)

お気軽にどうぞ!

資料請求 現地見学 電話でお問い合わせ
0120-150-580

このエリアでお探しの方へ

今週末モデルハウス見学会開催中!「和田町」駅徒歩9分 新築一戸建て 閑静な住宅地

相模鉄道線「和田町」駅 徒歩 9 分

ブルーライン「三ッ沢上町」駅 バス停「常盤園前」まで 徒歩 4 分 バス利用 6分

横浜市保土ケ谷区 和田2丁目

5,980万円

4LDK

今週末モデルハウス見学会開催中!「東戸塚」駅利用 新築一戸建て 吹抜け ゆとりの4LDK

横須賀線「東戸塚」駅 徒歩 17 分

東海道本線「横浜」駅 バス停「山谷」まで 徒歩 8 分 バス利用 39分

横浜市戸塚区 平戸5丁目

5,980万円

4LDK

川崎市宮前区馬絹4丁目 新築一戸建 5980万円 1号棟

田園都市線「宮崎台」駅 徒歩 20 分

田園都市線「鷺沼」駅 バス停「宮前休日診療所」まで 徒歩 3 分 バス利用 7分

川崎市宮前区 馬絹4丁目

5,980万円

2LDK+2S

横浜市鶴見区獅子ヶ谷2丁目 新築一戸建 5980万円

京浜東北線「鶴見」駅 バス停「獅子ヶ谷」まで 徒歩 4 分 バス利用 10分

東急新横浜線「新横浜」駅 バス停「獅子ヶ谷」まで 徒歩 5 分 バス利用 22分

横浜市鶴見区 獅子ケ谷2丁目

5,980万円

4LDK

川崎市麻生区王禅寺東5丁目 新築一戸建 5980万円 6号棟

小田急線「柿生」駅 バス停「東柿生小学校」まで 徒歩 1 分 バス利用 6分

田園都市線「市が尾」駅 バス停「下麻生」まで 徒歩 7 分 バス利用 14分

川崎市麻生区 王禅寺東5丁目

5,980万円

4LDK

横浜市青葉区桂台2丁目 中古一戸建 5980万円

田園都市線「青葉台」駅 バス停「桂台公園入口」まで 徒歩 4 分 バス利用 5分

こどもの国線「恩田」駅 徒歩 22 分

横浜市青葉区 桂台2丁目

5,980万円

4LDK

今週末モデルハウス見学会開催中!「東逗子」駅徒歩5分 新築一戸建て(3) 閑静な住環境

横須賀線「東逗子」駅 徒歩 5 分

横須賀線「逗子」駅 バス停「桜山四丁目」まで 徒歩 2 分 バス利用 6分

逗子市 桜山5丁目

5,980万円

2LDK+2S

横浜市都筑区池辺町 新築一戸建 5980万円

横浜線「鴨居」駅 徒歩 6 分

グリーンライン「中山」駅 バス停「ららぽーと横浜」まで 徒歩 4 分 バス利用 15分

横浜市都筑区 池辺町

5,980万円

2SLDK

今週末モデルハウス見学会開催中!「瀬谷」駅徒歩6分 新築一戸建て 閑静な住宅地

相模鉄道線「瀬谷」駅 徒歩 6 分

江ノ島線「鶴間」駅 バス停「瀬谷駅」まで 徒歩 8 分 バス利用 23分

横浜市瀬谷区 瀬谷2丁目

5,980万円

4LDK

今週末モデルハウス見学会開催中!「希望ケ丘」駅徒歩14分 新築一戸建て(A) エコジョーズ

相模鉄道線「希望ヶ丘」駅 徒歩 14 分

いずみ野線「南万騎が原」駅 徒歩 13 分

横浜市旭区 南希望が丘

5,980万円

4LDK

川崎市川崎区京町3丁目 新築一戸建 5980万円 No.1

南武線「小田栄」駅 徒歩 20 分

東海道本線「川崎」駅 バス停「浅田三丁目」まで 徒歩 4 分 バス利用 12分

川崎市川崎区 京町3丁目

5,980万円

2SLDK

川崎市川崎区観音2丁目 新築一戸建 5980万円 1号棟

大師線「川崎大師」駅 徒歩 17 分

京浜東北線「川崎」駅 バス停「観音二丁目」まで 徒歩 5 分 バス利用 12分

川崎市川崎区 観音2丁目

5,980万円

2LDK+2S

お気軽にどうぞ!

資料請求 現地見学 電話でお問い合わせ
0120-150-580
来店予約