1. トップページ
  2. 今週末モデルハウス見学会開催中!「鶴ケ峰」駅徒歩5分 新築一戸建て ゆとりの4LDK WIC

今週末モデルハウス見学会開催中!「鶴ケ峰」駅徒歩5分 新築一戸建て ゆとりの4LDK WIC

価格
5,180万円
物件種別
新築一戸建て
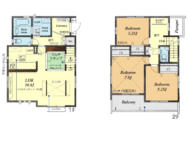
間取り
4LDK
所在地
横浜市旭区 鶴ケ峰1丁目
交通
  • 相模鉄道線「鶴ヶ峰」駅 徒歩 5 分
  • 東海道本線「横浜」駅 バス停「鶴ケ峰駅」まで 徒歩 9 分 バス利用 37分
土地面積
59.15㎡
建物面積
105.80㎡
  • 前回情報更新日 2025.11.13
  • 次回情報更新予定日 2025.11.27
資料請求 現地見学 電話でお問い合わせ
0120-150-580
外観:現地周辺はフラットな住環境です。日頃のお買い物やお子さんの送り迎えなど、日常生活における移動が苦になりません。
外観:現地周辺はフラットな住環境です。日頃のお買い物やお子さんの送り迎えなど、日常生活における移動が苦になりません。
間取図
間取図
オープンでのびやかな空間を生み出す、こだわりの広がりとゆとり。家族と過ごす時間を大切にしたい方にぴったりの明るくゆとりある住空間です。窓からの日差しがリビングの隅々までしっかりと届きます!
オープンでのびやかな空間を生み出す、こだわりの広がりとゆとり。家族と過ごす時間を大切にしたい方にぴったりの明るくゆとりある住空間です。窓からの日差しがリビングの隅々までしっかりと届きます!
外観:角地のため、開放感があり、日当りも良好です!目の前に広がる開放感とゆとり、暮らしの夢を育む理想の住まいがここにはあります。散歩やジョギング、週末のご家族での遊びに最適な環境です。
外観:角地のため、開放感があり、日当りも良好です!目の前に広がる開放感とゆとり、暮らしの夢を育む理想の住まいがここにはあります。散歩やジョギング、週末のご家族での遊びに最適な環境です。
開放的なバルコニーは太陽の温かな温もりをめいっぱい受け止めてくれます。太陽の光と爽やかな風を受けたお洗濯物はあっという間に乾き、取りこむ時には太陽の匂いを感じられそうですね。
開放的なバルコニーは太陽の温かな温もりをめいっぱい受け止めてくれます。太陽の光と爽やかな風を受けたお洗濯物はあっという間に乾き、取りこむ時には太陽の匂いを感じられそうですね。
外観:気持ちの良い一日の始まりは笑顔でスタートしたいですよね。玄関ホールがスッキリ広々としていると帰る時も出ていく時も気持ちが良いものです!
外観:気持ちの良い一日の始まりは笑顔でスタートしたいですよね。玄関ホールがスッキリ広々としていると帰る時も出ていく時も気持ちが良いものです!
リビングを見渡せるカウンターキッチンでお子様の様子を伺いながら食事の支度が出来ます。家族の気配を感じられる、そんな空間を演出できるキッチンです。
リビングを見渡せるカウンターキッチンでお子様の様子を伺いながら食事の支度が出来ます。家族の気配を感じられる、そんな空間を演出できるキッチンです。
大切なご家族が集まるLDKはこだわりたいですね!休日はおひさまの光をたっぷりと取りこめるリビングでゆったりと過ごしませんか?子供たちが元気に笑いながら走り回っている姿が目に浮かぶ空間です。
大切なご家族が集まるLDKはこだわりたいですね!休日はおひさまの光をたっぷりと取りこめるリビングでゆったりと過ごしませんか?子供たちが元気に笑いながら走り回っている姿が目に浮かぶ空間です。
家族と過ごす時間を大切にする方にピッタリのゆとりの住空間です。お子様が元気に走り回っても安心して見守れます。家族の笑い声が今にも目に浮かびそうですね。
家族と過ごす時間を大切にする方にピッタリのゆとりの住空間です。お子様が元気に走り回っても安心して見守れます。家族の笑い声が今にも目に浮かびそうですね。
光が取り込みやすい2面採光の居室。日当たり良好です。クローゼットを完備し、収納スペースも十分。初めてのお子様にとっての「自分の部屋」。学習デスクやベッドの配置もラクラクです。
光が取り込みやすい2面採光の居室。日当たり良好です。クローゼットを完備し、収納スペースも十分。初めてのお子様にとっての「自分の部屋」。学習デスクやベッドの配置もラクラクです。
居室には収納クローゼットを完備!普段使いのお洋服や小物はもちろん、季節物のお洋服などもしっかりと整理整頓おしまい頂けます。居室空間をより広く隅々までお使いいただけますね。
居室には収納クローゼットを完備!普段使いのお洋服や小物はもちろん、季節物のお洋服などもしっかりと整理整頓おしまい頂けます。居室空間をより広く隅々までお使いいただけますね。
日差しを長時間受ける事が出来る暖かいお部屋です。もちろんペアガラスなので、遮音性にも優れ結露も発生しにくい構造。サッシ周りのカビが発生しにくくなりますね。
日差しを長時間受ける事が出来る暖かいお部屋です。もちろんペアガラスなので、遮音性にも優れ結露も発生しにくい構造。サッシ周りのカビが発生しにくくなりますね。
光が沢山取り込める大きな窓。日差しを長時間受ける事が出来る暖かいお部屋です。もちろんペアガラスなので、遮音性に優れ、結露も発生しにくい構造。サッシ周りのカビが発生しにくくなりますね。
光が沢山取り込める大きな窓。日差しを長時間受ける事が出来る暖かいお部屋です。もちろんペアガラスなので、遮音性に優れ、結露も発生しにくい構造。サッシ周りのカビが発生しにくくなりますね。
ゆとりのある洗面スペースで、朝の身支度やお掃除・片付けも快適スムーズです。3面鏡で髪のセットやお化粧もストレスなくこなせ、朝から気分良く通勤通学に向かえそうですね!
ゆとりのある洗面スペースで、朝の身支度やお掃除・片付けも快適スムーズです。3面鏡で髪のセットやお化粧もストレスなくこなせ、朝から気分良く通勤通学に向かえそうですね!
ゆったりとくつろげる広々バス。足までしっかりと伸ばせる浴槽は、心身ともにしっかりと疲れを癒してくれます。お子様とも一緒に浸かれ、ご家族みんなで一緒にバスタイムを楽しめますね♪
ゆったりとくつろげる広々バス。足までしっかりと伸ばせる浴槽は、心身ともにしっかりと疲れを癒してくれます。お子様とも一緒に浸かれ、ご家族みんなで一緒にバスタイムを楽しめますね♪
洗浄機能付き便座を標準装備。冬の寒い時期には暖房機能も活躍。快適にご利用いただけます。また、ペーパーホルダーの下の収納にはトイレットペーパーなど効率的に収納できます。
洗浄機能付き便座を標準装備。冬の寒い時期には暖房機能も活躍。快適にご利用いただけます。また、ペーパーホルダーの下の収納にはトイレットペーパーなど効率的に収納できます。
周辺環境:鶴ヶ峰公園(鶴ヶ峰公園まで500m)
周辺環境:鶴ヶ峰公園(鶴ヶ峰公園まで500m)
周辺環境:西川島町たぶの木陰公園(西川島町たぶの木陰公園まで300m)
周辺環境:西川島町たぶの木陰公園(西川島町たぶの木陰公園まで300m)
周辺環境:西友鶴ヶ峰店(西友鶴ヶ峰店まで550m)
周辺環境:西友鶴ヶ峰店(西友鶴ヶ峰店まで550m)
周辺環境:鶴ヶ峯幼稚園(鶴ヶ峯幼稚園まで500m)
周辺環境:鶴ヶ峯幼稚園(鶴ヶ峯幼稚園まで500m)
周辺環境:横浜市立鶴ケ峯小学校(横浜市立鶴ケ峯小学校まで130m)
周辺環境:横浜市立鶴ケ峯小学校(横浜市立鶴ケ峯小学校まで130m)
周辺環境:ポプラ保育園
周辺環境:ポプラ保育園
周辺環境:琴寄医院
周辺環境:琴寄医院
周辺環境:そうてつローゼン鶴ヶ峰店
周辺環境:そうてつローゼン鶴ヶ峰店
周辺環境:横浜市立西谷中学校
周辺環境:横浜市立西谷中学校

この物件のココがオススメ!

相鉄線「鶴ケ峰」駅徒歩5分。陽の光を取り込みやすい2階リビング。会話が弾む対面キッチン。全居室収納付き、ゆとりの4LDK。食洗機、浴室TV他、設備充実。

お気軽にどうぞ!

資料請求 現地見学 電話でお問い合わせ
0120-150-580

地図

申し訳ありません
こちらは会員限定機能です

会員登録で利用できる6つの便利機能

詳しく見る

お気軽にどうぞ!

資料請求 現地見学 電話でお問い合わせ
0120-150-580

頭金0万円・金利0.495%の場合

ボーナス時(年2回)お支払額

0

この物件の月々のお支払額

145,088

年収に対する返済比率

58

  • ※会員登録し、詳細情報を記入されますと、全ての物件で自動的に金額が表示され、大変便利です。
  • ※まだ会員登録をされていない方は、下記チェック欄をご記入ください。
  • ※上記計算は物件価格5,180万円+諸経費 8%込みの金額による結果となります。
  • ※返済金額はあくまでも目安です。

お客様の条件からシミュレーションするには?

会員登録
マイページから登録

金利

直接入力する

ボーナス払い(年2回)

返済年数

頭金

直接入力する

 万円(半角数字)

年収

 万円(半角数字)

約500m

公園

周辺環境:鶴ヶ峰公園(鶴ヶ峰公園まで500m)

公園

約500m

約300m

公園

周辺環境:西川島町たぶの木陰公園(西川島町たぶの木陰公園まで300m)

公園

約300m

約550m

スーパー

周辺環境:西友鶴ヶ峰店(西友鶴ヶ峰店まで550m)

スーパー

約550m

約500m

幼稚園・保育園

周辺環境:鶴ヶ峯幼稚園(鶴ヶ峯幼稚園まで500m)

幼稚園・保育園

約500m

約130m

小学校

周辺環境:横浜市立鶴ケ峯小学校(横浜市立鶴ケ峯小学校まで130m)

小学校

約130m

約270m

幼稚園・保育園

周辺環境:ポプラ保育園

幼稚園・保育園

約270m

約450m

病院

周辺環境:琴寄医院

病院

約450m

約450m

スーパー

周辺環境:そうてつローゼン鶴ヶ峰店

スーパー

約450m

約1,400m

中学校

周辺環境:横浜市立西谷中学校

中学校

約1,400m

価格 5,180万円
物件種別 新築一戸建て
間取り 4LDK
所在地 横浜市旭区 鶴ケ峰1丁目
交通
  • 相模鉄道線「鶴ヶ峰」駅 徒歩 5 分
  • 東海道本線「横浜」駅 バス停「鶴ケ峰駅」まで 徒歩 9 分 バス利用 37分
土地面積 59.15㎡
建物面積 105.80㎡
学区 鶴ケ峯小学校、西谷中学校
用途地域 第一種住居
建ぺい率 60%
容積率 200%
地目 宅地
駐車場 有り ビルトイン車庫 駐車場面積:11.48㎡
接道 北東12m、南4m
権利 所有権
私道面積 有 0.14㎡
セットバック 無し
建物構造 木造
建物階数 3階
築年月 2025年06月
入居日 即時
都市計画 市街化区域
取引態様 仲介
物件番号 46099
設備 公営水道、公共下水、緑豊かな住宅地、閑静な住宅地、角地、南側道路面す、前道6m以上、スーパーが近い(10分以内)、2沿線以上利用可、小学校徒歩10分以内、保育施設・幼稚園5分以内、公園5分以内、システムキッチン、ガス3口、カウンタキッチン、食器洗い機付き、浄水器、I型キッチン、ユニットバス、追い焚き、浴室乾燥機、ウォシュレット、トイレ2ヶ所、TV付浴室、浴室に窓、暖房便座、バルコニー、3階建以上、LDK15畳以上、採光2面、フローリング、リビング階段、クローゼット、収納、下駄箱、全居室収納、シャンプドレッサー付き、モニタ付きインターフォン、インターフォン、複層ガラス、24時間換気システム、建物10年保証
建築確認番号 第KBI-SGM24-10-4773号
特記事項 宅地造成工事規制区域 高度地区 準防火地域 日影制限 一部都市計画道路 建築基準法第22条区域 地型三角 建物面積に車庫面積11.48平米含 南側境界上に、横浜市管理のU字溝及び桝が有り、使用承諾継承(横浜市維持管理) 宅地造成工事規制区域:有/高度地区:有/準防火地域:有/日影制限:有/一部都市計画道路:有/建築基準法第22条区域 地型三角 建物面積に車庫面積11.48平米含 南側境界上に、横浜市管理のU字溝及び桝が有り、使用承諾継承(横浜市維持管理)。 /
備考 相鉄線「鶴ケ峰」駅徒歩5分。陽の光を取り込みやすい2階リビング。会話が弾む対面キッチン。全居室収納付き、ゆとりの4LDK。食洗機、浴室TV他、設備充実。

こだわりポイント

  • 耐震に配慮された建物
  • 断熱に配慮された建物
  • 食器洗い洗浄乾燥機
  • 浴室換気乾燥暖房機
  • 急行電車でスピード通勤
  • 子供の多い街に住む
  • 大人の二人暮らし
  • ウォークインクローゼット
  • リビングイン階段
  • LDKは2階に
  • LDK15帖以上
  • 対面キッチン
  • 小学校10分以内
  • スーパー10分以内
  • コンビニ10分以内
  • 小児科医院10分以内
  • 保育園10分以内
  • 幼稚園10分以内
  • 公園10分以内
  • 都市ガス
  • 隣家との間隔たっぷり
  • 角地限定
  • 道路広々(5m以上)
  • 日当たり良好
  • 南道路限定

お気軽にどうぞ!

資料請求 現地見学 電話でお問い合わせ
0120-150-580

このエリアでお探しの方へ

今週末モデルハウス見学会開催中!「二俣川」駅利用 新築一戸建て 吹抜け WIC

相模鉄道線「二俣川」駅 バス停「左近山第2」まで 徒歩 7 分 バス利用 15分

相模鉄道線「鶴ヶ峰」駅 徒歩 23 分

横浜市旭区 小高町

4,990万円

4LDK

値下げしました!「鶴ケ峰」駅利用 新築一戸建て SIC

相模鉄道線「鶴ヶ峰」駅 バス停「辻」まで 徒歩 7 分 バス利用 6分

横浜線「中山」駅 バス停「上白根入口」まで 徒歩 11 分 バス利用 10分

横浜市旭区 上白根2丁目

5,180万円

5LDK

建物完成しました! 今週末内覧会開催中!「鶴ケ峰」駅徒歩15分 新築一戸建て ロフト完備

相模鉄道線「鶴ヶ峰」駅 徒歩 15 分

横浜線「中山」駅 バス停「薬王寺入口」まで 徒歩 6 分 バス利用 25分

横浜市旭区 鶴ケ峰本町2丁目

5,180万円

4LDK

建物完成しました! 今週末内覧会開催中!「鶴ヶ峰」駅利用 新築一戸建て(2) 長期優良住宅

相模鉄道線「鶴ヶ峰」駅 バス停「辻」まで 徒歩 5 分 バス利用 16分

横浜線「中山」駅 バス停「上白根入口」まで 徒歩 11 分 バス利用 10分

横浜市旭区 上白根2丁目

5,280万円

3LDK

建物完成しました! 今週末内覧会開催中!「鶴ヶ峰」駅利用 新築一戸建て(1) 長期優良住宅

相模鉄道線「鶴ヶ峰」駅 バス停「辻」まで 徒歩 5 分 バス利用 16分

横浜線「中山」駅 バス停「上白根入口」まで 徒歩 11 分 バス利用 10分

横浜市旭区 上白根2丁目

5,380万円

4LDK

今週末モデルハウス見学会開催中!「三ツ境」駅利用 新築一戸建て(1) 長期優良住宅

相模鉄道線「三ッ境」駅 バス停「ニュータウン第7」まで 徒歩 2 分 バス利用 7分

いずみ野線「二俣川」駅 バス停「ニュータウン第7」まで 徒歩 2 分 バス利用 9分

横浜市旭区 金が谷2丁目

4,880万円

4LDK

建物完成しました! 今週末内覧会開催中!「希望ケ丘」駅徒歩11分 新築一戸建て(2) 対面キッチン

相模鉄道線「希望ヶ丘」駅 徒歩 11 分

相模鉄道線「二俣川」駅 徒歩 19 分

横浜市旭区 中尾1丁目

4,980万円

4LDK

値下げしました!建物完成しました!内覧会開催中!「三ツ境」駅利用 新築一戸建て(3) カースペース3

相模鉄道線「三ッ境」駅 徒歩 16 分

東海道本線「横浜」駅

横浜市旭区 金が谷1丁目

4,990万円

4LDK

建物完成しました! 今週末内覧会開催中!「三ツ境」駅利用 新築一戸建て WIC完備

相模鉄道線「三ッ境」駅 徒歩 18 分

いずみ野線「二俣川」駅 バス停「ニュータウン第7」まで 徒歩 6 分 バス利用 9分

横浜市旭区 金が谷1丁目

5,180万円

4LDK

建物完成しました! 今週末内覧会開催中!「希望ケ丘」駅徒歩8分 新築一戸建て カースペース2台

相模鉄道線「希望ヶ丘」駅 徒歩 8 分

いずみ野線「二俣川」駅 バス停「半ケ谷」まで 徒歩 11 分 バス利用 6分

横浜市旭区 中希望が丘

5,480万円

4LDK

今週末モデルハウス見学会開催中!「希望ケ丘」駅徒歩7分 新築一戸建て 小屋裏収納有 全居室約6帖以上

相模鉄道線「希望ヶ丘」駅 徒歩 7 分

いずみ野線「南万騎が原」駅 バス停「分譲住宅」まで 徒歩 7 分 バス利用 11分

横浜市旭区 中希望が丘

5,480万円

3LDK

今週末モデルハウス見学会開催中!「鶴ケ峰」駅利用 新築一戸建て エコジョーズ

相模鉄道線「鶴ヶ峰」駅 徒歩 17 分

いずみ野線「二俣川」駅 徒歩 21 分

横浜市旭区 川島町

3,480万円

2LDK

お気軽にどうぞ!

資料請求 現地見学 電話でお問い合わせ
0120-150-580
来店予約