1. トップページ
  2. 横浜市青葉区大場町 新築一戸建 7680万円 3号棟

横浜市青葉区大場町 新築一戸建 7680万円 3号棟

価格
7,680万円
物件種別
新築一戸建て
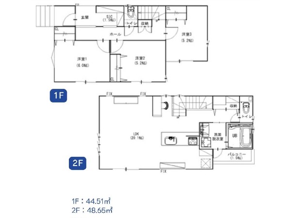
間取り
3LDK
所在地
横浜市青葉区 大場町
交通
  • 田園都市線「あざみ野」駅 徒歩 20 分
  • ブルーライン「あざみ野」駅 徒歩 20 分
土地面積
122.04㎡
建物面積
93.16㎡
  • 前回情報更新日 2025.11.13
  • 次回情報更新予定日 2025.11.27
資料請求 現地見学 電話でお問い合わせ
0120-150-580
外観:注文住宅のような洗練されたデザイナーズ住宅。並列2台のカースペースを備え、ご家族のライフスタイルにゆとりを与えます。暮らしをワンランク上へと導いてくれます。
外観:注文住宅のような洗練されたデザイナーズ住宅。並列2台のカースペースを備え、ご家族のライフスタイルにゆとりを与えます。暮らしをワンランク上へと導いてくれます。
間取り
間取り
(3号棟 内観イメージパース)大切な家族が集まるからこそLDKにはこだわりたい。日当たりのよい広いLDKを、子供たちが走り回っている姿を見た時「広い家にして良かった」
(3号棟 内観イメージパース)大切な家族が集まるからこそLDKにはこだわりたい。日当たりのよい広いLDKを、子供たちが走り回っている姿を見た時「広い家にして良かった」
(3号棟 内観イメージパース)オープンな空間を生み出す、広がりとゆとり。家族と過ごす時間を大切にしたい方にぴったりのゆとりある住空間です。
(3号棟 内観イメージパース)オープンな空間を生み出す、広がりとゆとり。家族と過ごす時間を大切にしたい方にぴったりのゆとりある住空間です。
食洗機 利用者が増えているのはメリットが多いから。時間の節約、手が荒れない、水道代の節約、高温度で洗うので油汚れもしっかり落とせる。まさに理想家電。
食洗機 利用者が増えているのはメリットが多いから。時間の節約、手が荒れない、水道代の節約、高温度で洗うので油汚れもしっかり落とせる。まさに理想家電。
外観:3号棟は、スタイリッシュな黒を基調にした外観!2階LDKでなんと20帖の広々した空間でSICなど収納も豊富です。
外観:3号棟は、スタイリッシュな黒を基調にした外観!2階LDKでなんと20帖の広々した空間でSICなど収納も豊富です。
外観:東急田園都市線「あざみ野」駅まで徒歩20分の立地。周辺は2階建て住宅が建ち並ぶ閑静な住宅街で、落ち着いた雰囲気でお買物施設も充実しており日常生活にも便利な立地です。
外観:東急田園都市線「あざみ野」駅まで徒歩20分の立地。周辺は2階建て住宅が建ち並ぶ閑静な住宅街で、落ち着いた雰囲気でお買物施設も充実しており日常生活にも便利な立地です。
3口以上コンロ 同時並行で調理しやすい3口コンロです。お料理を同時にすすめることができ、料理時間の短縮にもなります。
3口以上コンロ 同時並行で調理しやすい3口コンロです。お料理を同時にすすめることができ、料理時間の短縮にもなります。
TVモニター付インターホン モニター付インターホンが標準仕様です。不安になりがちな防犯面。目で確認できるからあんしんです。
TVモニター付インターホン モニター付インターホンが標準仕様です。不安になりがちな防犯面。目で確認できるからあんしんです。
浴室乾燥機 お風呂場そのものを乾燥機にしてしまう便利な機能。梅雨時期や花粉の時期に助かる。冬の時期には暖房機能がヒートショックを防ぐ
浴室乾燥機 お風呂場そのものを乾燥機にしてしまう便利な機能。梅雨時期や花粉の時期に助かる。冬の時期には暖房機能がヒートショックを防ぐ
オートバス ワンタッチでお湯張りや保温が可能なフルオートバス。保温機能でいつでも快適に入浴が可能です。
オートバス ワンタッチでお湯張りや保温が可能なフルオートバス。保温機能でいつでも快適に入浴が可能です。
温水洗浄便座 ウォシュレット、暖房便座機能付のトイレです。従来型に比べ節水効果があり、お手入れもしやすい。
温水洗浄便座 ウォシュレット、暖房便座機能付のトイレです。従来型に比べ節水効果があり、お手入れもしやすい。
外観:前面道路とカースペースに高低差が無く、道路の幅員も約4.8mありのでお車の駐車もラクラクです。
外観:前面道路とカースペースに高低差が無く、道路の幅員も約4.8mありのでお車の駐車もラクラクです。
外観:全4棟の分譲地!周辺には公園なども点在しており都会の中で自然を感じる事が出来る住環境です。
外観:全4棟の分譲地!周辺には公園なども点在しており都会の中で自然を感じる事が出来る住環境です。
周辺環境:あざみ野ガーデンズ(あざみ野の毎日が、べんりでおいしく楽しくなる。あざみ野ガーデンズ。18のショップ&レストラン、スポーツ施設がございます。)
周辺環境:あざみ野ガーデンズ(あざみ野の毎日が、べんりでおいしく楽しくなる。あざみ野ガーデンズ。18のショップ&レストラン、スポーツ施設がございます。)
周辺環境:あざみ野駅(渋谷駅まで乗り換えなしで約35分で行ける。横浜市内で上位を争う人気の駅。)
周辺環境:あざみ野駅(渋谷駅まで乗り換えなしで約35分で行ける。横浜市内で上位を争う人気の駅。)
周辺環境:ファミリーマート 青葉大場町店(コンビニが近いのは何かと助かります。いまや買物だけではなく、行政、銀行、民間サービス等も関係する最重要施設。)
周辺環境:ファミリーマート 青葉大場町店(コンビニが近いのは何かと助かります。いまや買物だけではなく、行政、銀行、民間サービス等も関係する最重要施設。)
周辺環境:ドラッグストアスマイル青葉黒須田店(スーパーやコンビニとともに生活に欠かせないという方も多いドラッグストアは、近所にあると頼もしい限りですね。)
周辺環境:ドラッグストアスマイル青葉黒須田店(スーパーやコンビニとともに生活に欠かせないという方も多いドラッグストアは、近所にあると頼もしい限りですね。)
周辺環境:大場富士塚公園(特徴的な遊具があり、「円形の大きな壁」遊具があり、子ども向けにユニークな遊び場になっています。)
周辺環境:大場富士塚公園(特徴的な遊具があり、「円形の大きな壁」遊具があり、子ども向けにユニークな遊び場になっています。)
周辺環境:青葉区総合庁舎(開閉庁時間は、主に月~金曜日 午前8時45分~午後5時00分。)
周辺環境:青葉区総合庁舎(開閉庁時間は、主に月~金曜日 午前8時45分~午後5時00分。)
周辺環境:黒須田小学校(学校教育目標は、「えがおいっぱい げんきいっぱい ひらめきいっぱい かがやく子ども」)
周辺環境:黒須田小学校(学校教育目標は、「えがおいっぱい げんきいっぱい ひらめきいっぱい かがやく子ども」)
周辺環境:すすき野中学校(昭和56年4月創立の公立中学校。通称すす中。学校教育目標は、「自立と共生」。)
周辺環境:すすき野中学校(昭和56年4月創立の公立中学校。通称すす中。学校教育目標は、「自立と共生」。)
周辺環境:大場白ゆり幼稚園(1400m 大場白ゆり幼稚園では異学年交流のオープンクラスの導入や専門講師など保育に取り入れています。)
周辺環境:大場白ゆり幼稚園(1400m 大場白ゆり幼稚園では異学年交流のオープンクラスの導入や専門講師など保育に取り入れています。)

この物件のココがオススメ!

閑静な住宅地に、広々とした並列2台のカースペースを備え、ご家族のライフスタイルにゆとりを与えます。

お気軽にどうぞ!

資料請求 現地見学 電話でお問い合わせ
0120-150-580

地図

申し訳ありません
こちらは会員限定機能です

会員登録で利用できる6つの便利機能

詳しく見る

お気軽にどうぞ!

資料請求 現地見学 電話でお問い合わせ
0120-150-580

頭金0万円・金利0.495%の場合

ボーナス時(年2回)お支払額

0

この物件の月々のお支払額

215,116

年収に対する返済比率

86

  • ※会員登録し、詳細情報を記入されますと、全ての物件で自動的に金額が表示され、大変便利です。
  • ※まだ会員登録をされていない方は、下記チェック欄をご記入ください。
  • ※上記計算は物件価格7,680万円+諸経費 8%込みの金額による結果となります。
  • ※返済金額はあくまでも目安です。

お客様の条件からシミュレーションするには?

会員登録
マイページから登録

金利

直接入力する

ボーナス払い(年2回)

返済年数

頭金

直接入力する

 万円(半角数字)

年収

 万円(半角数字)

約300m

ショッピングセンター

周辺環境:あざみ野ガーデンズ(あざみ野の毎日が、べんりでおいしく楽しくなる。あざみ野ガーデンズ。18のショップ&レストラン、スポーツ施設がございます。)

ショッピングセンター

約300m

約1,600m

周辺環境:あざみ野駅(渋谷駅まで乗り換えなしで約35分で行ける。横浜市内で上位を争う人気の駅。)

約1,600m

約550m

コンビニ

周辺環境:ファミリーマート 青葉大場町店(コンビニが近いのは何かと助かります。いまや買物だけではなく、行政、銀行、民間サービス等も関係する最重要施設。)

コンビニ

約550m

約600m

ドラッグストア

周辺環境:ドラッグストアスマイル青葉黒須田店(スーパーやコンビニとともに生活に欠かせないという方も多いドラッグストアは、近所にあると頼もしい限りですね。)

ドラッグストア

約600m

約230m

公園

周辺環境:大場富士塚公園(特徴的な遊具があり、「円形の大きな壁」遊具があり、子ども向けにユニークな遊び場になっています。)

公園

約230m

約2,300m

役所

周辺環境:青葉区総合庁舎(開閉庁時間は、主に月~金曜日 午前8時45分~午後5時00分。)

役所

約2,300m

約750m

小学校

周辺環境:黒須田小学校(学校教育目標は、「えがおいっぱい げんきいっぱい ひらめきいっぱい かがやく子ども」)

小学校

約750m

約1,300m

中学校

周辺環境:すすき野中学校(昭和56年4月創立の公立中学校。通称すす中。学校教育目標は、「自立と共生」。)

中学校

約1,300m

約1,400m

幼稚園・保育園

周辺環境:大場白ゆり幼稚園(1400m 大場白ゆり幼稚園では異学年交流のオープンクラスの導入や専門講師など保育に取り入れています。)

幼稚園・保育園

約1,400m

価格 7,680万円
物件種別 新築一戸建て
間取り 3LDK
所在地 横浜市青葉区 大場町
交通
  • 田園都市線「あざみ野」駅 徒歩 20 分
  • ブルーライン「あざみ野」駅 徒歩 20 分
土地面積 122.04㎡
建物面積 93.16㎡
学区 黒須田小学校、すすき野中学校
用途地域 第一種低層住居専用
建ぺい率 40%
容積率 80%
地目 宅地
駐車場 有り カースペース
接道 西4.8m
権利 所有権
私道面積 無し
セットバック 無し
建物構造 木造
建物階数 2階
築年月 2026年04月
入居日 2026年04月
都市計画 市街化区域
取引態様 仲介
物件番号 A1685-3
設備 公営水道、公共下水、防犯シャッター、宅配ロッカー、省エネルギー対策、駐車場2台以上、緑豊かな住宅地、閑静な住宅地、都市近郊、地盤調査済、市街地が近い、隣家との間隔が大きい、周辺交通量少なめ、スーパーが近い(10分以内)、始発駅、2沿線以上利用可、総合病院徒歩10分以内、小学校徒歩10分以内、保育施設・幼稚園5分以内、コンビニ5分以内、システムキッチン、ガスコンロ、ガス3口、カウンタキッチン、食器洗い機付き、浄水器、パントリー(食器・食品の収納庫)、ユニットバス、追い焚き、浴室乾燥機、ウォシュレット、オートバス付き、トイレ2ヶ所、浴室1坪以上、浴室に窓、暖房便座、浴室暖房、バルコニー、南面バルコニー、2階建、LDK20畳以上、照明器具付き、採光3面、全室南向き、南向き、全室2面採光、フローリング、全室フローリング、リビング階段、クローゼット、収納、床下収納、下駄箱、全居室収納、シャンプドレッサー付き、フラット35Sに対応、モニタ付きインターフォン、複層ガラス、火災警報器(報知機)、通風良好、陽当り良好、24時間換気システム、建物10年保証
建築確認番号 第25KAK建確00991
特記事項 壁面後退:有/宅地造成工事規制区域:有/高度地区:有/日影制限:有/敷地内段差:有/敷地面積最低限度:有/高さ限度:有/緑化地域、建築基準法22条区域、駐車は車種により2台可。 /
備考 閑静な住宅地に、広々とした並列2台のカースペースを備え、ご家族のライフスタイルにゆとりを与えます。

こだわりポイント

  • 鉄塔近接
  • 断熱に配慮された建物
  • 省エネに配慮された建物
  • 食器洗い洗浄乾燥機
  • 浴室換気乾燥暖房機
  • 外食を楽しめる生活
  • 急行電車でスピード通勤
  • 始発で座ってゆったり通勤
  • 2沿線利用であんしん通勤
  • 子供の多い街に住む
  • 自然を感じる暮らし
  • LDKは1階に
  • 2階建て住宅限定
  • リビングイン階段
  • LDKは2階に
  • LDK20帖以上
  • 対面キッチン
  • 浴室1坪以上
  • パントリー
  • 小学校10分以内
  • 大規模公園10分以内
  • 大型商業施設15分以内
  • スーパー10分以内
  • コンビニ10分以内
  • 総合病院10分以内
  • 小児科医院10分以内
  • 保育園10分以内
  • 幼稚園10分以内
  • 公園10分以内
  • 都市ガス
  • フラット35利用可
  • カースペース2台
  • 整形地
  • 低層住居専用地域

お気軽にどうぞ!

資料請求 現地見学 電話でお問い合わせ
0120-150-580

このエリアでお探しの方へ

横浜市青葉区大場町 新築一戸建 7980万円 1号棟

田園都市線「あざみ野」駅 徒歩 20 分

ブルーライン「あざみ野」駅 徒歩 20 分

横浜市青葉区 大場町

7,980万円

3LDK

横浜市青葉区荏子田2丁目 中古一戸建 7980万円

田園都市線「たまプラーザ」駅 バス停「すすき野入口」まで 徒歩 1 分 バス利用 10分

ブルーライン「あざみ野」駅 バス停「ジェネヒルあざみ野」まで 徒歩 3 分 バス利用 8分

横浜市青葉区 荏子田2丁目

7,980万円

4LDK

横浜市青葉区大場町 新築一戸建 7480万円 B棟

田園都市線「市が尾」駅 徒歩 12 分

グリーンライン「川和町」駅 バス停「大場町入口」まで 徒歩 2 分 バス利用 21分

横浜市青葉区 大場町

7,480万円

4LDK

横浜市青葉区藤が丘2丁目 新築一戸建 7480万円 2号棟

田園都市線「藤が丘」駅 徒歩 10 分

田園都市線「青葉台」駅 徒歩 19 分

横浜市青葉区 藤が丘2丁目

7,480万円

3LDK

横浜市青葉区藤が丘2丁目 新築一戸建 7580万円 1号棟

田園都市線「藤が丘」駅 徒歩 10 分

田園都市線「青葉台」駅 徒歩 19 分

横浜市青葉区 藤が丘2丁目

7,580万円

4SLDK

横浜市青葉区大場町 新築一戸建 7680万円 A棟

田園都市線「市が尾」駅 徒歩 12 分

グリーンライン「川和町」駅 バス停「大場町入口」まで 徒歩 2 分 バス利用 21分

横浜市青葉区 大場町

7,680万円

4LDK

横浜市青葉区大場町 新築一戸建 7780万円 G棟

田園都市線「市が尾」駅 徒歩 12 分

グリーンライン「川和町」駅 バス停「大場町入口」まで 徒歩 2 分 バス利用 21分

横浜市青葉区 大場町

7,780万円

4LDK

横浜市青葉区藤が丘2丁目 新築一戸建 7799万円

田園都市線「藤が丘」駅 徒歩 10 分

田園都市線「青葉台」駅 徒歩 18 分

横浜市青葉区 藤が丘2丁目

7,799万円

2LDK+2S

横浜市青葉区大場町 中古一戸建 3780万円

田園都市線「あざみ野」駅 徒歩 21 分

ブルーライン「あざみ野」駅 バス停「大場町」まで 徒歩 4 分 バス利用 4分

横浜市青葉区 大場町

3,780万円

2SLDK

川崎市麻生区王禅寺東4丁目 新築一戸建 4980万円 3号棟

小田急線「柿生」駅 徒歩 19 分

田園都市線「あざみ野」駅 バス停「真福寺」まで 徒歩 6 分 バス利用 23分

川崎市麻生区 王禅寺東4丁目

4,980万円

4LDK

川崎市麻生区王禅寺東4丁目 新築一戸建 5080万円 4号棟

小田急線「柿生」駅 徒歩 19 分

田園都市線「あざみ野」駅 バス停「真福寺」まで 徒歩 6 分 バス利用 23分

川崎市麻生区 王禅寺東4丁目

5,080万円

3LDK

川崎市麻生区王禅寺東4丁目 新築一戸建 5180万円 2号棟

小田急線「柿生」駅 徒歩 19 分

田園都市線「あざみ野」駅 バス停「真福寺」まで 徒歩 6 分 バス利用 23分

川崎市麻生区 王禅寺東4丁目

5,180万円

4LDK

お気軽にどうぞ!

資料請求 現地見学 電話でお問い合わせ
0120-150-580
来店予約