1. トップページ
  2. 横浜市青葉区美しが丘4丁目 新築一戸建 5780万円 C号棟

横浜市青葉区美しが丘4丁目 新築一戸建 5780万円 C号棟

価格
5,780万円
物件種別
新築一戸建て
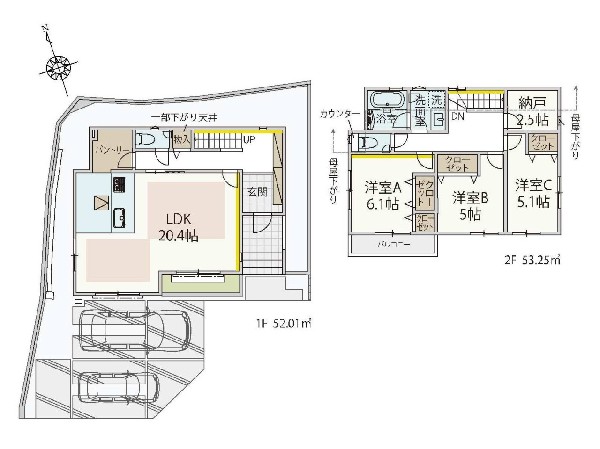
間取り
3LDK
所在地
横浜市青葉区 美しが丘4丁目
交通
  • 田園都市線「たまプラーザ」駅 徒歩 23 分
  • ブルーライン「あざみ野」駅 徒歩 27 分
土地面積
72.41㎡
建物面積
121.71㎡
  • 前回情報更新日 2025.11.13
  • 次回情報更新予定日 2025.11.27
資料請求 現地見学 電話でお問い合わせ
0120-150-580
外観:東急田園都市線「たまプラーザ」駅徒歩23分!商業施設も充実しており、お買物などにも便利な立地です。
外観:東急田園都市線「たまプラーザ」駅徒歩23分!商業施設も充実しており、お買物などにも便利な立地です。
間取り
間取り
区画図
区画図
■リビング■本画像はAIがCGで家具作成しており、実際の現地に家具は設置されておりません。また、販売価格に家具等は含まれておりません。
■リビング■本画像はAIがCGで家具作成しており、実際の現地に家具は設置されておりません。また、販売価格に家具等は含まれておりません。
毎日使うキッチンが綺麗で清潔ならお料理を作るのも楽しくなりますよね。機能性とデザイン性を兼ね備えた嬉しいキッチン。
毎日使うキッチンが綺麗で清潔ならお料理を作るのも楽しくなりますよね。機能性とデザイン性を兼ね備えた嬉しいキッチン。
ペニュシュラカウンターキッチンですので、出来上がったお料理をカウンターに並べてお子様が運ぶなど、お手伝いの時間も増えそうですね。
ペニュシュラカウンターキッチンですので、出来上がったお料理をカウンターに並べてお子様が運ぶなど、お手伝いの時間も増えそうですね。
外観:大きく面した掃出し窓から光が降りそそぐ開放的なリビング。大きな窓からは、太陽の光はもちろん、爽やかな風が吹き抜けます。快適で心地の良い空間を演出してくれます。
外観:大きく面した掃出し窓から光が降りそそぐ開放的なリビング。大きな窓からは、太陽の光はもちろん、爽やかな風が吹き抜けます。快適で心地の良い空間を演出してくれます。
スライド収納付きのシステムキッチン。料理器具なども収納できて出し入れもスムーズ。収納量もたっぷりなので料理器具やストック調味料なども入れられる。
スライド収納付きのシステムキッチン。料理器具なども収納できて出し入れもスムーズ。収納量もたっぷりなので料理器具やストック調味料なども入れられる。
大きいシンクは一度に沢山の洗い物が可能。広いので、調味料などをディスプレイし、お洒落なキッチンを演出してみてはいかがでしょうか。
大きいシンクは一度に沢山の洗い物が可能。広いので、調味料などをディスプレイし、お洒落なキッチンを演出してみてはいかがでしょうか。
大切な家族が集まるからこそLDKにはこだわりたい。日当たりのよい広いLDKを、子供たちが元気に走り回っている姿を見た時「広い家にして良かった」と思う。
大切な家族が集まるからこそLDKにはこだわりたい。日当たりのよい広いLDKを、子供たちが元気に走り回っている姿を見た時「広い家にして良かった」と思う。
家族の出入りはクロークを経由することにより、玄関に靴が散乱することがなくなります。玄関は「綺麗な家」という印象を与えます。
家族の出入りはクロークを経由することにより、玄関に靴が散乱することがなくなります。玄関は「綺麗な家」という印象を与えます。
リビングで遊ぶお子様を見守りながらお料理が出来る対面式カウンターキッチンは、料理をしながらご家族との会話を楽しめます。毎日のお料理も楽しくなりますね。
リビングで遊ぶお子様を見守りながらお料理が出来る対面式カウンターキッチンは、料理をしながらご家族との会話を楽しめます。毎日のお料理も楽しくなりますね。
何かと便利な収納。掃除機など日常的に使うけど、片づけ場所に困る、そんなものを収納するのにピッタリです。すっきりとした空間に保ちたいですね。
何かと便利な収納。掃除機など日常的に使うけど、片づけ場所に困る、そんなものを収納するのにピッタリです。すっきりとした空間に保ちたいですね。
ウォークインクローゼットのある住まいで収納上手な生活を実現。思い出の品もたっぷり収納できます。
ウォークインクローゼットのある住まいで収納上手な生活を実現。思い出の品もたっぷり収納できます。
玄関ホールがスッキリ広々としていると帰る時も出ていく時も気持ちが良い。来客を出迎える玄関が綺麗ならその家の印象が良くなる。
玄関ホールがスッキリ広々としていると帰る時も出ていく時も気持ちが良い。来客を出迎える玄関が綺麗ならその家の印象が良くなる。
全居室には大型の収納クローゼットを完備。普段使いのお洋服や小物はもちろん、季節物のお洋服などもしっかりと整理整頓出来る。居室空間を隅々まで使えるのが嬉しい。
全居室には大型の収納クローゼットを完備。普段使いのお洋服や小物はもちろん、季節物のお洋服などもしっかりと整理整頓出来る。居室空間を隅々まで使えるのが嬉しい。
深いやすらぎへと誘う主寝室。約8.2帖のゆとりの広さと、落ち着いた内装仕様でプライベートな時間を心豊かにお過ごしいただけるように配慮。
深いやすらぎへと誘う主寝室。約8.2帖のゆとりの広さと、落ち着いた内装仕様でプライベートな時間を心豊かにお過ごしいただけるように配慮。
収納力が豊富な大型クローゼット。普段着やスーツはもちろんのこと、コート類などもしっかり掛けられます。奥行きもあり、部屋がスッキリしますね。
収納力が豊富な大型クローゼット。普段着やスーツはもちろんのこと、コート類などもしっかり掛けられます。奥行きもあり、部屋がスッキリしますね。
シックな基調にしたフローリングは心地よく飽きのない色合いで、カーテン、家具などのインテリアを合わせやすいのもうれしい。
シックな基調にしたフローリングは心地よく飽きのない色合いで、カーテン、家具などのインテリアを合わせやすいのもうれしい。
周辺環境:たまプラーザ駅(再開発の駅前が次々と整備されています。より使いやすく、よりブランド力をつけたたまプラーザ駅が誕生するのは間近です。)
周辺環境:たまプラーザ駅(再開発の駅前が次々と整備されています。より使いやすく、よりブランド力をつけたたまプラーザ駅が誕生するのは間近です。)
周辺環境:あざみ野駅(渋谷駅まで乗り換えなしで約35分で行ける。横浜市内で上位を争う人気の駅。)
周辺環境:あざみ野駅(渋谷駅まで乗り換えなしで約35分で行ける。横浜市内で上位を争う人気の駅。)
周辺環境:たまプラーザテラス(東急田園都市線たまプラーザ駅直結のショッピングエリア。ファッション、グルメが楽しめる複合商業施設です。)
周辺環境:たまプラーザテラス(東急田園都市線たまプラーザ駅直結のショッピングエリア。ファッション、グルメが楽しめる複合商業施設です。)
周辺環境:イトーヨーカドーたまプラーザ店(10時~22時まで営業 駐車場255台を完備しておりお買物に便利です。)
周辺環境:イトーヨーカドーたまプラーザ店(10時~22時まで営業 駐車場255台を完備しておりお買物に便利です。)
周辺環境:食生活ロピア川崎水沢店(異業種コラボ店舗ロピア・マツモトキヨシ・ノジマがオープン。ローコストをうたい文句にしたお店が、一つ館に集まりました。)
周辺環境:食生活ロピア川崎水沢店(異業種コラボ店舗ロピア・マツモトキヨシ・ノジマがオープン。ローコストをうたい文句にしたお店が、一つ館に集まりました。)
周辺環境:ローソン 横浜美しが丘四丁目店(「マチのほっとステーション」をスローガンに掲げる通り、忙しい日々に「ほっ」とするひとときをもたらします。)
周辺環境:ローソン 横浜美しが丘四丁目店(「マチのほっとステーション」をスローガンに掲げる通り、忙しい日々に「ほっ」とするひとときをもたらします。)
周辺環境:山内公園(閑静な住宅街の中にある、自然豊かでスポーツも楽しめる公園です。)
周辺環境:山内公園(閑静な住宅街の中にある、自然豊かでスポーツも楽しめる公園です。)
周辺環境:元石川小学校(お子様が一日の中でも長い時間を過ごす小学校。のびのびと過ごし、広い校庭で元気に駆け回ったり、どんどん成長していく姿が目に浮かびます。)
周辺環境:元石川小学校(お子様が一日の中でも長い時間を過ごす小学校。のびのびと過ごし、広い校庭で元気に駆け回ったり、どんどん成長していく姿が目に浮かびます。)
周辺環境:山内中学校(昭和22年開校。美しが丘の閑静な住宅街に位置する中学校です。)
周辺環境:山内中学校(昭和22年開校。美しが丘の閑静な住宅街に位置する中学校です。)
鏡の裏に収納棚を確保した三面鏡を採用。化粧品や歯ブラシなどを機能的に収納。また、三面鏡の本当の利点は三枚の鏡を合わせることで、頭の側面や背面が見れること。
鏡の裏に収納棚を確保した三面鏡を採用。化粧品や歯ブラシなどを機能的に収納。また、三面鏡の本当の利点は三枚の鏡を合わせることで、頭の側面や背面が見れること。
ゆったり入れる一坪バス。足を伸ばして入れるサイズは一日の疲れを癒すのに嬉しい広さ。お子様と一緒の入浴でも充分な広さです。
ゆったり入れる一坪バス。足を伸ばして入れるサイズは一日の疲れを癒すのに嬉しい広さ。お子様と一緒の入浴でも充分な広さです。
ウォシュレット、暖房便座機能付のトイレです。従来型に比べ節水効果があり、お手入れもしやすいので、家計も家事の負担も軽減してくれます。
ウォシュレット、暖房便座機能付のトイレです。従来型に比べ節水効果があり、お手入れもしやすいので、家計も家事の負担も軽減してくれます。

この物件のココがオススメ!

緑が多く、美しい街並みが人気の美しが丘エリア 歩道も完備されたスッキリとした現地の整形地 完成済 全3棟

お気軽にどうぞ!

資料請求 現地見学 電話でお問い合わせ
0120-150-580

地図

申し訳ありません
こちらは会員限定機能です

会員登録で利用できる6つの便利機能

詳しく見る

お気軽にどうぞ!

資料請求 現地見学 電話でお問い合わせ
0120-150-580

頭金0万円・金利0.495%の場合

ボーナス時(年2回)お支払額

0

この物件の月々のお支払額

161,895

年収に対する返済比率

65

  • ※会員登録し、詳細情報を記入されますと、全ての物件で自動的に金額が表示され、大変便利です。
  • ※まだ会員登録をされていない方は、下記チェック欄をご記入ください。
  • ※上記計算は物件価格5,780万円+諸経費 8%込みの金額による結果となります。
  • ※返済金額はあくまでも目安です。

お客様の条件からシミュレーションするには?

会員登録
マイページから登録

金利

直接入力する

ボーナス払い(年2回)

返済年数

頭金

直接入力する

 万円(半角数字)

年収

 万円(半角数字)

約1,800m

周辺環境:たまプラーザ駅(再開発の駅前が次々と整備されています。より使いやすく、よりブランド力をつけたたまプラーザ駅が誕生するのは間近です。)

約1,800m

約2,100m

周辺環境:あざみ野駅(渋谷駅まで乗り換えなしで約35分で行ける。横浜市内で上位を争う人気の駅。)

約2,100m

約1,900m

ショッピングセンター

周辺環境:たまプラーザテラス(東急田園都市線たまプラーザ駅直結のショッピングエリア。ファッション、グルメが楽しめる複合商業施設です。)

ショッピングセンター

約1,900m

約1,800m

スーパー

周辺環境:イトーヨーカドーたまプラーザ店(10時~22時まで営業 駐車場255台を完備しておりお買物に便利です。)

スーパー

約1,800m

約1,200m

スーパー

周辺環境:食生活ロピア川崎水沢店(異業種コラボ店舗ロピア・マツモトキヨシ・ノジマがオープン。ローコストをうたい文句にしたお店が、一つ館に集まりました。)

スーパー

約1,200m

約290m

コンビニ

周辺環境:ローソン 横浜美しが丘四丁目店(「マチのほっとステーション」をスローガンに掲げる通り、忙しい日々に「ほっ」とするひとときをもたらします。)

コンビニ

約290m

約1,000m

公園

周辺環境:山内公園(閑静な住宅街の中にある、自然豊かでスポーツも楽しめる公園です。)

公園

約1,000m

約550m

小学校

周辺環境:元石川小学校(お子様が一日の中でも長い時間を過ごす小学校。のびのびと過ごし、広い校庭で元気に駆け回ったり、どんどん成長していく姿が目に浮かびます。)

小学校

約550m

約1,200m

中学校

周辺環境:山内中学校(昭和22年開校。美しが丘の閑静な住宅街に位置する中学校です。)

中学校

約1,200m

価格 5,780万円
物件種別 新築一戸建て
間取り 3LDK
所在地 横浜市青葉区 美しが丘4丁目
交通
  • 田園都市線「たまプラーザ」駅 徒歩 23 分
  • ブルーライン「あざみ野」駅 徒歩 27 分
土地面積 72.41㎡
建物面積 121.71㎡
学区 元石川小学校、山内中学校
用途地域 準住居
建ぺい率 60%
容積率 200%
地目 宅地
駐車場 有り ビルトイン車庫
接道 西22m
権利 所有権
私道面積 無し
セットバック 無し
建物構造 木造
建物階数 3階
築年月 2025年07月
入居日 即時
都市計画 市街化区域
取引態様 仲介
物件番号 A1428-C
設備 公営水道、公共下水、省エネルギー対策、シックハウス対策、ビルトインガレージ、駐車場1台、閑静な住宅地、平坦地、都市近郊、地盤調査済、前道6m以上、市街地が近い、整備された歩道、始発駅、2沿線以上利用可、小学校徒歩10分以内、公園5分以内、コンビニ5分以内、システムキッチン、ガスコンロ、ガス3口、カウンタキッチン、食器洗い機付き、浄水器、ユニットバス、追い焚き、浴室乾燥機、ウォシュレット、オートバス付き、トイレ2ヶ所、浴室1坪以上、浴室に窓、暖房便座、浴室暖房、バルコニー、3階建以上、LDK18畳以上、全居室6畳以上、省エネ給湯器、採光3面、全室2面採光、フローリング、全室フローリング、リビング階段、クローゼット、収納、下駄箱、全居室収納、シャンプドレッサー付き、フラット35Sに対応、年内入居可、モニタ付きインターフォン、複層ガラス、火災警報器(報知機)、セキュリティ充実、通風良好、陽当り良好、24時間換気システム、建物10年保証
建築確認番号 -
特記事項 宅地造成工事規制区域:有/高度地区:有/準防火地域:有/日影制限:有/緑化地域/建物面積:車庫面積11.45m2含む。 /
備考 緑が多く、美しい街並みが人気の美しが丘エリア 歩道も完備されたスッキリとした現地の整形地 完成済 全3棟

こだわりポイント

  • 断熱に配慮された建物
  • 床暖房
  • 食器洗い洗浄乾燥機
  • 浴室換気乾燥暖房機
  • 運転ラクラク生活
  • 急行電車でスピード通勤
  • シューズインクローク
  • ウォークインクローゼット
  • リビングイン階段
  • LDKは2階に
  • LDK18帖以上
  • 主寝室 8帖以上
  • 広々バルコニー
  • 対面キッチン
  • 浴室1坪以上
  • 小学校10分以内
  • コンビニ10分以内
  • 保育園10分以内
  • 幼稚園10分以内
  • 公園10分以内
  • 都市ガス
  • フラット35利用可
  • 屋根付きカースペース
  • 道路広々(5m以上)
  • 3階建て以上建築可能地域

お気軽にどうぞ!

資料請求 現地見学 電話でお問い合わせ
0120-150-580

このエリアでお探しの方へ

川崎市麻生区王禅寺東4丁目 新築一戸建 5480万円 5号棟

小田急線「柿生」駅 徒歩 19 分

田園都市線「あざみ野」駅 バス停「真福寺」まで 徒歩 6 分 バス利用 23分

川崎市麻生区 王禅寺東4丁目

5,480万円

3SLDK

川崎市麻生区王禅寺東5丁目 新築一戸建 5490万円 宅地3

小田急線「新百合ヶ丘」駅 バス停「王禅寺中央中学校前」まで 徒歩 8 分 バス利用 15分

田園都市線「あざみ野」駅 バス停「王禅寺中央中学校前」まで 徒歩 8 分 バス利用 22分

川崎市麻生区 王禅寺東5丁目

5,490万円

3LDK

横浜市青葉区もみの木台 新築一戸建 5490万円 A棟

田園都市線「あざみ野」駅 バス停「もみの木台」まで 徒歩 3 分 バス利用 7分

小田急線「新百合ヶ丘」駅 バス停「もみの木台」まで 徒歩 3 分 バス利用 19分

横浜市青葉区 もみの木台

5,490万円

2SLDK

横浜市青葉区美しが丘4丁目 新築一戸建 5580万円 A号棟

田園都市線「たまプラーザ」駅 徒歩 23 分

ブルーライン「あざみ野」駅 徒歩 27 分

横浜市青葉区 美しが丘4丁目

5,580万円

3LDK

川崎市麻生区王禅寺東6丁目 新築一戸建 5599万円 1号棟

小田急線「柿生」駅 徒歩 28 分

田園都市線「たまプラーザ」駅 バス停「王禅寺口」まで 徒歩 4 分 バス利用 26分

川崎市麻生区 王禅寺東6丁目

5,599万円

4LDK

川崎市宮前区犬蔵2丁目 新築一戸建 5690万円

田園都市線「たまプラーザ」駅 徒歩 18 分

小田急線「登戸」駅 バス停「菅生車庫」まで 徒歩 5 分 バス利用 22分

川崎市宮前区 犬蔵2丁目

5,690万円

2LDK+2S

川崎市麻生区王禅寺 新築一戸建 5690万円 2号棟

小田急線「新百合ヶ丘」駅 バス停「琴平下」まで 徒歩 6 分 バス利用 20分

田園都市線「あざみ野」駅 バス停「虹が丘営業所」まで 徒歩 6 分 バス利用 15分

川崎市麻生区 王禅寺

5,690万円

4LDK

川崎市麻生区王禅寺東5丁目 新築一戸建 5790万円 宅地7

小田急線「新百合ヶ丘」駅 バス停「王禅寺中央中学校前」まで 徒歩 8 分 バス利用 15分

田園都市線「あざみ野」駅 バス停「王禅寺中央中学校前」まで 徒歩 8 分 バス利用 22分

川崎市麻生区 王禅寺東5丁目

5,790万円

3LDK

川崎市麻生区王禅寺東5丁目 新築一戸建 5790万円 4号棟

小田急線「柿生」駅 バス停「東柿生小学校」まで 徒歩 1 分 バス利用 6分

田園都市線「たまプラーザ」駅 バス停「東柿生小学校」まで 徒歩 1 分 バス利用 28分

川崎市麻生区 王禅寺東5丁目

5,790万円

3SLDK

川崎市麻生区王禅寺 新築一戸建 5790万円 1号棟

小田急線「新百合ヶ丘」駅 バス停「琴平下」まで 徒歩 6 分 バス利用 20分

田園都市線「あざみ野」駅 バス停「虹が丘営業所」まで 徒歩 6 分 バス利用 15分

川崎市麻生区 王禅寺

5,790万円

4LDK

川崎市麻生区王禅寺東5丁目 新築一戸建 5820万円 5号棟

小田急線「柿生」駅 バス停「東柿生小学校」まで 徒歩 1 分 バス利用 6分

田園都市線「たまプラーザ」駅 バス停「東柿生小学校」まで 徒歩 1 分 バス利用 28分

川崎市麻生区 王禅寺東5丁目

5,820万円

4LDK

川崎市麻生区王禅寺東5丁目 新築一戸建 5890万円 宅地4

小田急線「新百合ヶ丘」駅 バス停「王禅寺中央中学校前」まで 徒歩 8 分 バス利用 15分

田園都市線「あざみ野」駅 バス停「王禅寺中央中学校前」まで 徒歩 8 分 バス利用 22分

川崎市麻生区 王禅寺東5丁目

5,890万円

3LDK

お気軽にどうぞ!

資料請求 現地見学 電話でお問い合わせ
0120-150-580
来店予約